W
Mein Konto
Hausbau - Ratgeber
Bauherrenhilfe
- Bauherrenhilfe vor Vertragsabschluss
-- Warum einen unabhängigen Baubetreuer?
-- Vertragsgrundlagen
-- Bausumme
-- Zahlungsplan zur Kostenkontrolle
-- Pflichten des Bauherren vor Vertragsabschluss
-- Unterlagen beim Hausbau vor Vertragsabschluss
- Bauherrenhilfe nach Vertragsabschluss
-- Bauantrag bei Behörden
-- Bau-Genehmigungsverfahren bei Baubehörden
-- Bauspezifische Versicherungen
-- Bauzeitenplan
-- Baubeginn - die Letzten Pflichten der Bauherrschaft
- Bauherrenhilfe während der Bauzeit
- Gewährleistungsansprüche
- Bauabnahme
Baufinanzierung
- Baufinanzierung - Allgemeine Fragen
- Kreditarten
- Kredit-Konditionen
- Bausparen
- Staatliche Förderungen
- Verkehrswert
- Haushaltsrechnung und Bonität
Hausbau Planung
- Haustypen
- Hausbau Vorbereitungsarbeiten
- Das Baugrundstück
- Baugrund beim Hausbau
- Baurecht
- Gebäudeschutz
- Erdarbeiten und Wasserhaltung
- Stützmauern
- Einfriedung
- Untergeschoss
- Kanalisation
- Tragende Elemente
- Nichttragende Innenwände
- Fundation / Fundament
- Deckenkonstruktionen
- Dächer
- Kaminanlagen
- Treppen Rampen Leitern
- Dachbeläge und Spengler
- Fenster
- Sonnen und Wetterschutz
- Aussenputze
- Einbauten, Küchen, Türen
- Bodenbeläge und Unterlagsböden
- Parkett
- Gips, Wand, Decke
Haustechnik und Energie
- Heiztechnik
- Lüftung und Klimatechnik
- Sanitärtechnik
- Elektrotechnik
- Erneuerbare Energie
Whirlpools / Jacuzzi
Hausbau Magazin
- Baufinanzierung trotz Krise?
- Das Blockhaus
- Moderne Dämmstoffe im Vergleich
- Erker Vor- und Nachteile
- Glasflächen beim Hausbau
- Günstig ein Haus Bauen
- Mediterraner Hausbaustil
- Mehrgenerationenhaus
- Moderne Architektur
- Gartengestaltung leicht gemacht
- Traditioneller Ziegelbau
- Villa als höchster Traum
- Im Eigenheim Ruhestand geniessen
- Altbau sanieren
- Kauf einer Holzgarage
- Immobilienmakler
- Arbeitshandschuhe für den Winter
- Zuhause verschönern
- Outdoor-Plissees
- Schlafzimmer planen
- Terrassenüberdachung
- Wohngebäudeversicherung
- Zaunarten und Eigenschaften
- Hauseingang gestalten
- Der perfekte Grundriss
- Sparsamer heizen im Altbau
- Einfamilienhaus smart finanzieren
- Planung einer PV-Anlage
- Neues Haus
- Immobilienfinanzierung
- Installation einer Photovoltaikanlage
- Asbest erkennen und entfernen
- Sauna im Fokus - Wellness zuhause
- Erfolgreich vermieten
- Die perfekte Winterbekleidung
- Das Niedrigenergiehaus
- Der April und seine Stürme
- Architektonische Vielfalt
- Ökologisch und nachhaltig bauen
- Das perfekte Schlafzimmer
- Nachhaltige Energieversorgung
- Zukunftsorientiert bauen
- Nachhaltigkeit beim Hausbau
- Tiny Houses
- Wärmepumpen als nachhaltige Heizvariante
- Maßgeschneiderten Kleiderschrank
- Der richtige Baukredit
- Ratgeber für erfolgreichen Hausbau
- Haus als Altersvorsorge
Do-it-yourself Anleitungen
- Verlegeanleitung für Bodenbeläge und Parkett
- Bodenbeläge und Parkett reinigen und pflegen
- Malerarbeiten am Haus
- Garten Tipps
- Umzug und Reinigung

ᐅ Grundriss-Entwurf: Einfamilienhaus mit Keller; 560qm Grundstück


Erstellt am: 10.03.24 13:26

JKHandler10.03.24 13:26
Hallo zusammen,

wir sind bisher nur stille Mitleser in diesem Forum und haben dadurch schon einige interessante Ideen gewonnen. Derzeit befinden wir uns in der Planungsphase eines Einfamilienhaus mit Keller und haben versucht unsere Wünsche in einen Grundriss zu überführen. Vielleicht hat ja der ein oder andere auch Feedback zu unseren ersten Entwürfen. Wichtig: Der Entwurf ist noch nicht komplett fertig. Aus diesem Grund fehlen z.B. noch Lichtschächte, Bad im OG ist noch nicht fertig ausgeplant, Außenanlagen, etc pp. Deshalb sind noch einige Änderungen möglich, weshalb wir gerne konstruktive Kritik entgegennehmen.

Bebauungsplan/Einschränkungen
  • Größe des Grundstücks: 560m²
  • Hang: geringfügig, ca. 1m Gefälle auf der gesamten Grundstücksbreite
  • Grundflächenzahl: 0,35
  • Geschossflächenzahl: 0,6
  • Baufenster, Baulinie und -grenze: Vorhanden
  • Randbebauung: Möglich mit Garage
  • Anzahl Stellplatz: mind. 2 vorgeschrieben
  • Geschossigkeit: max. 2 Vollgeschosse
  • Dachform: keine direkte Vorschrift, außer Neigungsrichtung bei Pultdächern
  • Stilrichtung: Modern
  • Ausrichtung: Keine Beschränkung
  • Maximale Höhen/Begrenzungen: 7,5m Traufhöhe, 10m Firsthöhe
  • weitere Vorgaben: sollten berücksichtigt sein, können bei Bedarf/Fragen nachgeliefert werden.

Anforderungen der Bauherren
  • Stilrichtung, Dachform, Gebäudetyp: Versetztes Pultdach, möglichst gute Ausrichtung für Photovoltaik oder Satteldach
  • Keller, Geschosse: Keller + 2 Vollgeschosse
  • Anzahl der Personen, Alter: 2 Erwachsene, 2 Kinder (Kleinkind), evtl. 3 Kind
  • Raumbedarf
    • EG, generell so geplant, dass auf dieser Etage zu zweit gewohnt werden kann
      • Flur: So klein wie möglich, so groß wie nötig. Sofern kein Vorraum, muss Platz für Schuhe/Ankleide etc vorhanden sein (Garderobe)
      • Büro: Einer der beiden Eltern sehr oft im Home-Office
      • Großes Wohnzimmer mit getrennter Küche und Speisekammer
      • Badezimmer mit Dusche und WC
    • OG:
      • Flur: So klein wie möglich, so groß wie nötig
      • Büro für Home-Office, falls beide Elternteile von daheim aus arbeiten
      • Zwei Kinderzimmer
      • Elternschlafzimmer
      • Größeres (Haupt)Badezimmer
      • Kleiner Abstellraum für Wäsche, Putzmittel, Staubsauger etc
  • Büro: Familiennutzung oder Homeoffice? Ja
  • Schlafgäste pro Jahr: 5-8 Übernachtungen pro Jahr.
  • offene oder geschlossene Architektur: Geschlossene Küche, Offener Wohn-Essbereich, Flur getrennt
  • konservativ oder moderne Bauweise: modern
  • Anzahl Essplätze: mind. 4, für größere Feiern wie z.B. Silvester oder Weihnachten bis zu 12
  • Kamin: Ja
  • Musik/Stereowand: Surround System wäre gut und teils vorhanden
  • Balkon, Dachterrasse: Ja
  • Garage, Carport: Ja, Doppelgarage
  • Nutzgarten, Treibhaus: Nein

Hausentwurf
  • Von wem stammt die Planung: Architekt in Zusammenarbeit mit uns
Was gefällt besonders? Warum?
  • Wäscheabwurfschacht in beiden Bädern
  • Sehr breite und großzügige Treppe
  • Nasszellen übereinander
  • Schönes großes Wohnzimmer
  • Küche mit direkter Speisekammer und Blick in den Garten
  • Keller vorbereitet für eine mögliche Sauna
  • Große Werkstatt
  • Balkon im OG
  • Unterkellerte Garage
Was gefällt nicht? Warum?
  • Zu kleiner Garten, jedoch bedingt durch Grundstück, Vorgaben der Anzahl der Stellplätze und Bebauungsfenster nicht wirklich zu ändern.
  • Fenster in Küche und Kinderzimmer (Kind 2): Fenster Richtung Straße haben wir weggelassen aufgrund besserer Stellmöglichkeiten im Raum. Weiterhin ist die Aussicht auf das Nachbarhaus auch nicht nach unserer Vorstellung. Leider ist der Nachteil, dass das Haus optisch von Außen darunter leidet. Wie seht ihr das?
  • Wir wollten eigentlich einen Zugang von der Garage direkt zum Haus im EG. Platztechnisch war das leider nicht anständig realisierbar (zu kleine Treppe). Deshalb die Treppe in der Garage zum UG
Grundriss: Doppelgarage links, Wohn-/Essbereich, Küche, Büro/Schlafzimmer, Terrasse rechts.

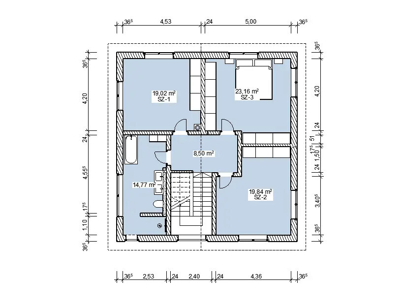
Architektur-Grundriss: Schlafzimmer, Kinderzimmer, Büro, Küche, Bad, Abstellraum, Balkon, Garage.

Grundriss eines Hauses mit Garage, Werkstatt, Wohnbereich, Küche, Sauna, Waschküche und Terrasse.

Schnitt eines zweistöckigen Hauses mit Garage, Auto und Hangkante.
kbt0910.03.24 14:31
Leider fehlen Raumwandmaße.

Flur EG .. wo soll Garderobe für 4 bis 5 Leute und evtl. Gäste hin?

Fahrräder sind ungünstig rauszufahren. Und, kann es sein, dass die Grenzwand länger als 9 m ist?

Garagentreppe reduziert in Garage den ebenerdigen Raum für Rasenmäher und Co. .. Wenn Kellergarage Werkstatt ist, reicht es nicht, dass vom Hausinneren zu betreten? Warum überhaupt so viel Werkstatt?

EG - Büro durch Türposition wenig als echtes Schlafzimmer geeignet.

Küche .. es fehlen wie gesagt Maße, aber das Fenster planunten würde ich schon einplanen.

Warum die abgeflachte Ecke im Wohnbereich?

Wie soll das Dach von der anderen Sichtseite aus aussehen? Balkon und abgeflachte Ecke

Badezimmer OG .. eher unpraktisch beim Reinkommen direkt in die Duschnische zu gucken, davor könnte es auch immer mal etwas feucht sein, durch das aus der Dusche gehen.

GENERELL:
möbel sind nicht maßstabsgerecht eingezeichnet, zumindest Sofa, Esstisch etc.
JKHandler10.03.24 17:23
kbt09 schrieb:

Leider fehlen Raumwandmaße.

Flur EG .. wo soll Garderobe für 4 bis 5 Leute und evtl. Gäste hin?
Dadurch das der Flur 2m breit ist, wollten wir diesen mit entsprechenden Möbeln ausstatten - oder ist dies Deiner Meinung nach zu klein?

kbt09 schrieb:

Fahrräder sind ungünstig rauszufahren. Und, kann es sein, dass die Grenzwand länger als 9 m ist?
Nehmen wir uns mal mit, danke!
kbt09 schrieb:

Garagentreppe reduziert in Garage den ebenerdigen Raum für Rasenmäher und Co. .. Wenn Kellergarage Werkstatt ist, reicht es nicht, dass vom Hausinneren zu betreten? Warum überhaupt so viel Werkstatt?
Es ist einiges an Werkstattausrüsten vorhanden, die verstaut und genutzt werden will. Aus diesem Grund wurde die Garage unterkellert eingeplant, ansonsten ergäbe dies nicht viel Sinn. Mit der Treppe in der Garage können somit schwere Gegenstände, Werkzeuge, Materialien, ... ohne das Haus zu betreten in die Werkstatt gebracht werden.
kbt09 schrieb:

EG - Büro durch Türposition wenig als echtes Schlafzimmer geeignet.
Was wäre hier dein Vorschlag? Wir dachten, die Tür möglichst weit hoch zu setzen, um aus dem Eingangs-/Schmutzbereich Bereich raus zu kommen.
kbt09 schrieb:

Warum die abgeflachte Ecke im Wohnbereich?
Um eine ordentliche Durchgangsbreite zwischen Nord- und Südgarten zu erreichen. Ansonsten wird es zu eng und stört den Fluss zwischen Nord- und Südgarten.
kbt09 schrieb:

Wie soll das Dach von der anderen Sichtseite aus aussehen? Balkon und abgeflachte Ecke
Siehe angehangene Bilder.
kbt09 schrieb:

Badezimmer OG .. eher unpraktisch beim Reinkommen direkt in die Duschnische zu gucken, davor könnte es auch immer mal etwas feucht sein, durch das aus der Dusche gehen.
Danke! Nehmen wir mit.
kbt09 schrieb:

GENERELL:
Möbel sind nicht maßstabsgerecht eingezeichnet, zumindest Sofa, Esstisch etc.
Diese sollten maßstabsgerecht sein. Das Sofa ist nur als große Landschaft (2,5m x 3,5m gezeichnet). Länge des Tischs ist 2,1m und Stühle.


Modernes zweistöckiges Haus mit grauer Fassade, grüner Garten und Hecken; Person im Vordergrund


Grundriss eines Hauses: Doppelgarage, Büro/Schlafzimmer, Küche, Vorrat, Wohnen/Essen, Terrasse.


Grundriss einer Wohnung: Schlafzimmer, Büro, Bad, Abstellraum, zwei Kinderzimmer, Balkon.


Grundriss eines Gebäudes mit zwei Werkstätten, Lager, Waschküche, Technikraum, Sauna und WC
kbt0910.03.24 17:34
Hmm ... wieviel Gesamt-Qm ergibt das eigentlich? Und welches Budget habt ihr angedacht?

Bei der Küche .. wollt ihr da so immer an der Wand lang? Und dann das große Loch in der Mitte?

Der Flur mag 2 m breit sein, aber überlege mal, wo du sinnvoll 2 m Schrank in dem Flur stellen kannst.

Und, was werkelt man denn so, wenn man geschätzt 70 bis 80 qm Werkstattfläche braucht?
ypg10.03.24 21:20
JKHandler schrieb:

Von wem stammt die Planung: Architekt in Zusammenarbeit mit uns
Ihr solltet entweder zu einem Architekten gehen oder wenn es tatsächlich stimmt, dass hier einer „dabei“ war, solltet Ihr Euch etwas zurücknehmen und den Fachmann auch für sein Honorar arbeiten lassen. Denn hier sind ja einige kleine und große Disaster eingebaut, die meiner Meinung nach das kleine 1x1 des Architekten sein müsste.
JKHandler schrieb:

Wir dachten, die Tür möglichst weit hoch zu setzen
Nö, ein Architekt plant Türen und Fenster so, dass man daneben auch noch möblieren kann. Leider ist das kleine 1x1 in keinster Weise im Haus angewendet worden. Im Prinzip ist jede Tür genau gegen der Regel geplant worden. Bei einigen Räumen ist das auch sehr ausschlaggebend für die weitere Möblierung.
JKHandler schrieb:

Dadurch das der Flur 2m breit ist, wollten wir diesen mit entsprechenden Möbeln ausstatten - oder ist dies Deiner Meinung nach zu klein?
Auch hier: kein Schrank geplant, eine Kommode für die Damenhandtaschen kann natürlich hingestellt werden.
JKHandler schrieb:

stört den Fluss zwischen Nord- und Südgarten.
Es gibt auch keinen Fluss. Auch nicht mit abber Ecke. Eher tendiere ich hier zum Feng-Shui-Disaster, der die Partnerschaftsecke hat jetzt ein Manko.
Aber mal ganz am Anfang:
Das hat wohl einen Grund, dass das Budget nicht genannt wird? Ist es gar nicht bei Euch bekannt, was Ihr bauen könnt?
Zumindest setzt ihr Grenzen
JKHandler schrieb:

So klein wie möglich, so groß wie nötig
Sehe ich aber nirgendwo: Fast alles könnte etwas kleiner im Bezug zum erwähnten „so groß wie nötig“. Irgendwie wurde fast alles nicht nur eine Nuance größer geplant. Oder gilt das nur für die Flure?
Die Wand der Doppelgarage ist länger als die erlaubten 9 Meter Grenzbebauung, der Flur ist außerordentlich lang, oben gibt es gleich zwei, weil eine Erschließung im Tetris nicht möglich war, da hat sich dann auch gleich ein Balkon ergeben.
Wohn/Ess ist mit ü50 sehr, sehr üppig, dazu Küche plus Nebenraum.
Schlafzimmer mit ü24qm könnte auch 10qm abgeben, Bad mit vernünftiger Aufteilung könnte man kleiner als die Kinderzimmer planen..
Was noch auffällig ist: Nebenräume sind einfach mal reingeklemmt: so schmückt sich das Büro als verstümmeltes L, weil ein AB noch irgendwo rein musste. Im EG muss man den Vorratsraum umrunden, um ihn zu begehen bzw die Küche zu erreichen. Türen zu Bädern öffnen sich in die Dusche. Keinen Zutritt von der Küche in den Garten… Das sind so die groben Schnitzer, die das Haus nicht gut und nicht funktionell machen.
Über Geschmack, zb die breitere Seite in Bezug zur Haushöhe, die Betonung der Breite durch den Dachwinkel, darüber brauchen wir nicht zu streiten. Aber dass da „irgendetwas nicht richtig angewandt“ wurde, ist recht offensichtlich in der Hausfassade.
JKHandler11.03.24 15:14
kbt09 schrieb:

Hmm ... wieviel Gesamt-Qm ergibt das eigentlich? Und welches Budget habt ihr angedacht?
500k€ exkl. Außenanlage mit hohem Anteil an Eigenleistung.
kbt09 schrieb:

Bei der Küche .. wollt ihr da so immer an der Wand lang? Und dann das große Loch in der Mitte?

Der Flur mag 2 m breit sein, aber überlege mal, wo du sinnvoll 2 m Schrank in dem Flur stellen kannst.
Nach einigen Versuchen später: In der Tat kein befriedigendes Ergebnis. Für mich, und insbesondere nach dem ich die anderen Kommentare gelesen habe, bedeutet das mehr oder minder zurück auf Los?!
kbt09 schrieb:

Und, was werkelt man denn so, wenn man geschätzt 70 bis 80 qm Werkstattfläche braucht?
Schlosserarbeiten mit Sondermaschinenbau.
ypg schrieb:

Ihr solltet entweder zu einem Architekten gehen oder wenn es tatsächlich stimmt, dass hier einer „dabei“ war, solltet Ihr Euch etwas zurücknehmen und den Fachmann auch für sein Honorar arbeiten lassen. Denn hier sind ja einige kleine und große Disaster eingebaut, die meiner Meinung nach das kleine 1x1 des Architekten sein müsste.
In der Tat basiert der aktuell vorliegende Entwurf auf dem initialen Entwurf des Architekten. Diesen haben wir dann wohl mehr oder minder stark modifiziert. Der Architekt ist ein Freund von uns und macht dies sozusagen nebenbei.
ypg schrieb:

Es gibt auch keinen Fluss. Auch nicht mit abber Ecke. Eher tendiere ich hier zum Feng-Shui-Disaster, der die Partnerschaftsecke hat jetzt ein Manko.
Aber mal ganz am Anfang:
Das hat wohl einen Grund, dass das Budget nicht genannt wird? Ist es gar nicht bei Euch bekannt, was Ihr bauen könnt?
Zumindest setzt ihr Grenzen
Das hatte ich dann wohl überlesen oder gelöscht. Antwort siehe oben.
ypg schrieb:

Sehe ich aber nirgendwo: Fast alles könnte etwas kleiner im Bezug zum erwähnten „so groß wie nötig“. Irgendwie wurde fast alles nicht nur eine Nuance größer geplant. Oder gilt das nur für die Flure?
Die Wand der Doppelgarage ist länger als die erlaubten 9 Meter Grenzbebauung, der Flur ist außerordentlich lang, oben gibt es gleich zwei, weil eine Erschließung im Tetris nicht möglich war, da hat sich dann auch gleich ein Balkon ergeben.
Wohn/Ess ist mit ü50 sehr, sehr üppig, dazu Küche plus Nebenraum.
Schlafzimmer mit ü24qm könnte auch 10qm abgeben, Bad mit vernünftiger Aufteilung könnte man kleiner als die Kinderzimmer planen..
Was noch auffällig ist: Nebenräume sind einfach mal reingeklemmt: so schmückt sich das Büro als verstümmeltes L, weil ein AB noch irgendwo rein musste. Im EG muss man den Vorratsraum umrunden, um ihn zu begehen bzw die Küche zu erreichen. Türen zu Bädern öffnen sich in die Dusche. Keinen Zutritt von der Küche in den Garten… Das sind so die groben Schnitzer, die das Haus nicht gut und nicht funktionell machen.
Über Geschmack, zb die breitere Seite in Bezug zur Haushöhe, die Betonung der Breite durch den Dachwinkel, darüber brauchen wir nicht zu streiten. Aber dass da „irgendetwas nicht richtig angewandt“ wurde, ist recht offensichtlich in der Hausfassade.
Das muss man erstmal verdauen, aber ich bin dankbar für den Input. Die Frage die sich mir jetzt stellt ist: Sollen wir den gesamten Grundriss verwerfen, oder lohnt es sich diesen anzupassen? Könnte ich hier von euch Unterstützen erhalten?
doppelgaragekücheflurarchitektensüdgartenkellerbalkontreppewerkstattfenster