Grundriss 200m² Einfamilienhaus, Hochparterre, Bestandsgrundstück, Doppelgarage

4,70 Stern(e) 11 Votes
Zuletzt aktualisiert 23.11.2025
Sie befinden sich auf der Seite 10 der Diskussion zum Thema: Grundriss 200m² Einfamilienhaus, Hochparterre, Bestandsgrundstück, Doppelgarage
>> Zum 1. Beitrag <<

K a t j a

K a t j a

Die Schränke unter den Schrägen sind alles Sideboards mit eben den 1,30m maximaler Höhe. Für Kleider ist der Schrank an der Schlafzimmer-Tür. Ich finde das völlig ausreichend. Notfalls kann man den Schrank im Büro auch noch als Kleiderschrank nutzen. Der Rest sind doch eh meist Socken & Co, die gut in die Sideboards können.
 
Y

ypg

Die Schränke unter den Schrägen sind alles Sideboards mit eben den 1,30m maximaler Höhe. Für Kleider ist der Schrank an der Schlafzimmer-Tür.
Man kann auch sehr schön auf einen Meter 30 Kleiderstangen setzen. Ich habe es so und bestätige Deine Meinung. Allerdings erklärt sich das in der Zeichnung nicht, so dass man annehmen könnte, da passt der lange Pax-Schrank hin, obwohl nur Metod in Eigenbau Platz hat.
 
G

Gustav5789

Ich wollte mich mal melden.
Wir dürfen wohl genauso hoch wie das Bestandshaus bauen. Dieses ist 10m hoch, 8,95 Geschossaufbau und ja 1m erhöht über den Boden.
Abstandsflächen können wir wohl überschneiden, da es sich um ein Grundstück handelt und müssen nur 5m Abstand wegen Brandschutz einhalten.

Auf den Vorschlag den extrem breiten Weg zu kürzen ist er endlich eingegangen, nur das Haus wollte er nicht kleiner machen und uns damit nochmal aufzeigen, dass eine Westausrichtung der längsten Seite viel sinvoller ist.... Und dann wäre sein Entwurf mit drei Kinderzimmer im Westen ja auch viel besser. Ich finde seinen Entwurf eher nicht so gelungen.

Ansonsten verstehen wir endlich, warum die lange Seite Richtung Süden zeigen soll. Aber auch erst, nachdem wir es mehrfach im Grundstück eingezeichnet hatten und alles abgelaufen sind. Schade, dass unser Architekt uns von selbst nicht auf die Idee gebracht hat, sondern wir die Tipps erst von euch erhalten haben ...
Danke für eure Hartknäckigkeit.

Anbei noch seine Pläne vom Innenausbau. Er hat diese noch fertig gestellt, obwohl wir schon mit der Idee von K a t j a um die Ecke kamen und um Änderung baten. Er meinte, er findet den ursprünglichen Ansatz besser und wollte es mit seinen Plänen überzeugen.

Auch die Abstandsflächenberechnung vom viel zu großen Haus.
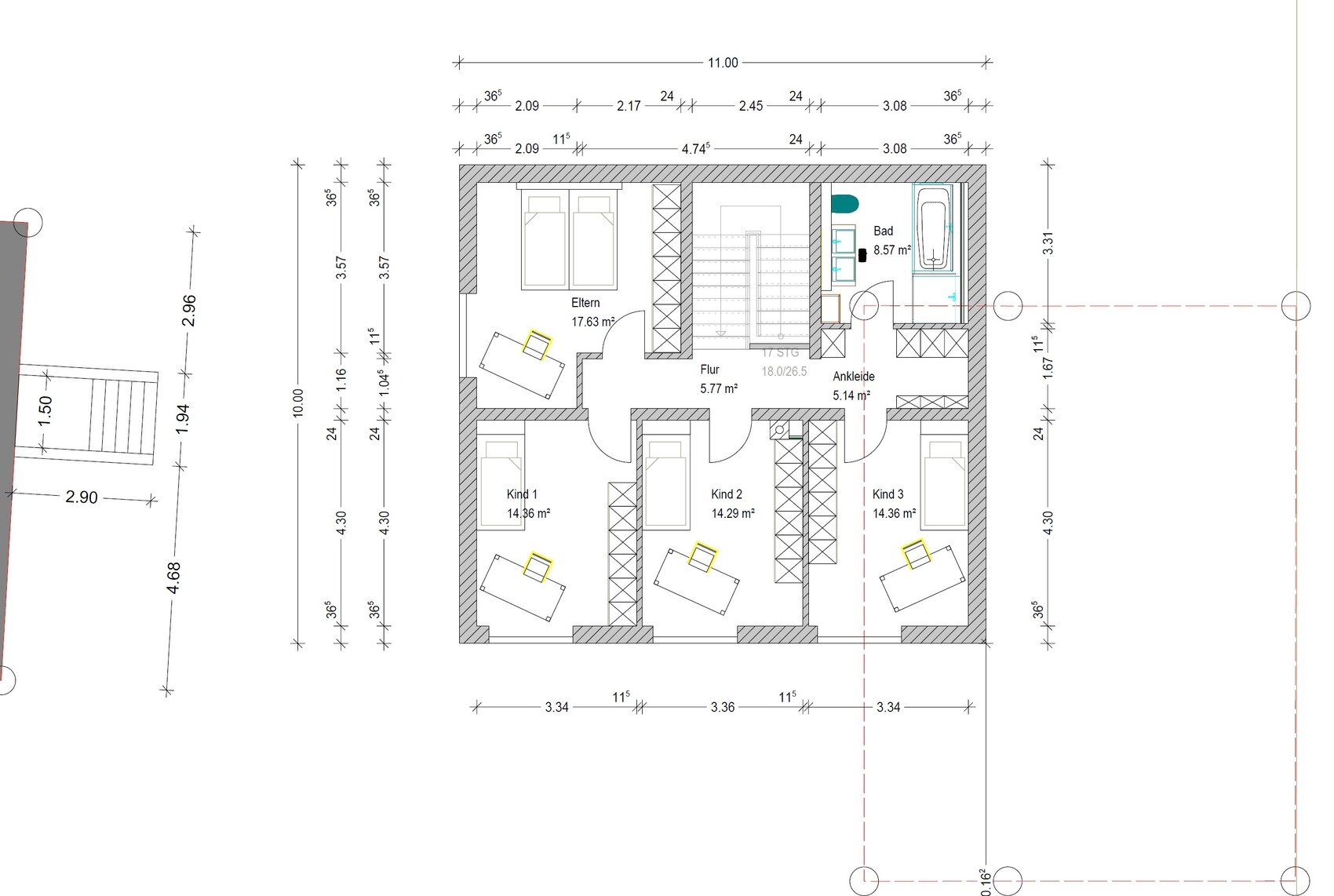
Obergeschoss: Treppenraum mit Flur; Eltern- und drei Kinderzimmer; Bad, HWR, Terrasse rechts.

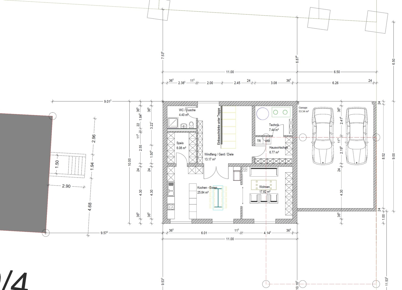
Grundriss Erdgeschoss: Küche/Essen, Studio/Wohnen, Speis, Windfang, Technik, WC/Dusche, Garage.

Grundriss-Erdgeschoss: Küche, Wohnzimmer, Treppenhaus, Abstellraum und Garage für zwei Autos.
 
K a t j a

K a t j a

Grundsätzlich ist das ja oft Geschmackssache der Bauherren. Aber das, was hier gezeigt wird, funktioniert überhaupt nicht oder nur sehr schlecht. Und da hört bei mir das Verständnis auf. Unter der Treppe ist z.B. kein Platz für eine Garderobe mehr. Die 5qm für die Technik sind auch kriminell. Man sieht ja, dass man sich schon an der Heizung bzw. Speicher vorbei quetschen muss. Das gleiche im Elternschlafzimmer. Die Schränke kann man gar nicht öffnen, wenn man davor steht. Ein Bad mit 8qm für 5 Leute ist auch nicht gerade Hit verdächtig.

Letztlich seid Ihr Eures Glückes Schmied. Wir können hier nur Tipps geben. Aber mit diesem Planer würde ich nicht weiter planen. Gut möglich, dass er auf der Baustelle glänzen kann. Aber auf dem Papier wäre mir das zu schlecht.
 
G

Gustav5789

Wir haben einen neuen Entwurf vom Künstler erhalten. Ich hab ihn am telefon sehr deutlich gesagt, wie unzufrieden wir mit seinen Entwürfen sind und warum er sich nicht an die Vorschläge halten kann und immer selbst kreativ werden muss.
Daraufhin haben wir jetzt diese Entwürfe bekommen mit dem Hinweis, dass er jetzt mal ne 36.5 Außenwand genommen hat, wir müssen sparen, das Haus wird sonst zu teuer. Er hat es sogar geschafft, alles in zwei Geschosse unterzubringen, wir brauchen den Dachboden gar nicht und wenn das so für uns jetzt auch passt, würde er es fertigstellen.

Wir haben ihm einen leicht angepassten Entwurf von "K a t j a" mitgegeben. In seinem Entwurf hat er wieder die Grundfläche erhöht, er hat das Home-Office einfach ins Elternschlafzimmer integriert, was in der Praxis absolut nicht funktioniert und die "Ankleide" vors zu kleine Bad gestellt. Wäscheschacht existiert auch keiner. Kinderzimmer sind unter der magischen Grenze, aber hätte ich durchgehen lassen, sofern der Rest gepasst hätte.

EG Find ich die Küche noch nicht gut, aber das kann man ja anpassen. Ansonsten hätte mir das EG auf jeden Fall gefallen.

Aber ohne HO und mit dem kleinen Bad gehts halt irgendwie im OG auch nicht.

Auf in die nächste Runde mit dem Hinweis, dass ich jetzt dann die Reißleine ziehe, sofern es nichts wird, aber ich habe hinten rum schon erfahren, dass er nur noch Aufträge annimmt, die er spannend findet... er hat keine Lust mehr.
Habt ihr vielleicht Ideen, wie man die Treppe ins OG noch anders lösen könnte? Ich habe den Verdacht er ist daran gescheitert und darum ist er auf 2 Vollgeschosse gegangen.
Grundriss eines Hauses mit Elternzimmer, drei Kinderzimmern, Flur, Ankleide und Bad.

Grundriss-Erdgeschoss: Küche, Wohnen, Garage mit zwei Autos, Technik, WC, Speis.
 
Zuletzt aktualisiert 23.11.2025
Im Forum Grundrissplanung / Grundstücksplanung gibt es 2535 Themen mit insgesamt 87992 Beiträgen


Ähnliche Themen zu Grundriss 200m² Einfamilienhaus, Hochparterre, Bestandsgrundstück, Doppelgarage
Nr.ErgebnisBeiträge
1Einfamilienhaus 1,5-Geschosser ca. 150qm Grundrissplanung Do-It-Yourself Entwurf 23
2Neubau Einfamilienhaus 160-170qm, 3 Kinderzimmer 39
3Grundriss - Bitte um Meinungen - Seite 216
4Grundriss-Entwurf: Einfamilienhaus mit Keller; 560qm Grundstück - Seite 365
5Entwurf Grundriss: Planung Erdgeschoss - Seite 227
6Entwurf Grundriss Bungalow - Eure Meinungen bitte! 14
7Ausrichtung der Räume bei Nord-Ost Grundstück - Seite 322
8Planung unseres Einfamilienhaus - Was meint ihr zum Entwurf? - Seite 656
9Erster Entwurf Grundriss Einfamilienhaus (ca. 200qm) - Bitte um Feedback - Seite 646
10Bitte schaut kritisch über unseren Grundriss-Entwurf 13
11Grundrissplanung für schmales Grundstück, 2. Versuch. 14
12Grundrissplanung / Entwurf Einfamilienhaus Flachdach mit Doppelgarage - Seite 587
13Grundrissplanung mit enger werdendem Grundstück - Seite 223
14Einfamilienhaus, ~160m², Bauhausstil; Erster Entwurf nach unseren Wünschen - Seite 3420
15Einfamilienhaus, 3 Kinderzimmer, 2 Bäder, ca. 10,5x10,5 m2 - Seite 431
16Unser Grundriss-Entwurf für ein günstiges Haus 348
17Grundstück nicht Rechteckig - Idee für Grundriss gesucht - 20
18Neubau Einfamilienhaus ca.220qm, 2. Entwurf Stadtvilla - Seite 859
19Entwurf Grundriss Einfamilienhaus (als Zweifamilienhaus im Alter möglich) in Hanglage - Seite 753
203. Grundriss-Entwurf Neubau Einfamilienhaus 220qm 2 Vollgeschosse Dachterrasse - Seite 561

Oben