Einfamilienhaus, 3 Kinderzimmer, 2 Bäder, ca. 10,5x10,5 m2

4,20 Stern(e) 5 Votes
Zuletzt aktualisiert 18.11.2025
Sie befinden sich auf der Seite 4 der Diskussion zum Thema: Einfamilienhaus, 3 Kinderzimmer, 2 Bäder, ca. 10,5x10,5 m2
>> Zum 1. Beitrag <<

kaho674

kaho674

Hier hab ich noch ein Winkelhaus mit Balkon als untergeordnetes Bauteil. Da muss man sich noch ein paar Stützen drunter denken, die hab ich mir auf die Schnelle geschenkt.
Garage wurde zu Gunsten von 2 Stellflächen gekillt. Carport wäre u.U. denkbar.


Grundriss eines Hauses mit Wohnzimmer, Essbereich, Küche, Bad, Gästezimmer, Treppen, Garage.


Grundriss eines Wohnhauses: mehrere Zimmer, Bad, Ankleide, Küche und Terrasse außen.


Zweistöckiges graues Haus mit Holzfenstern; roter Sportwagen und blauer Wagen davor auf Gras.


Zweistöckiges graues Haus mit schwarzem Dach, vielen Fenstern und Balkon rechts.


Schön ist hier auch das Licht im Flur oben. Optisch auch echt ein Hingucker, finde ich.
 
H

Holson!

Hallo zusammen, vielen Dank für die vielen Tipps und Hinweise. Einige Antworten siehe unten.
Wir haben den Grundriss (zumindest die Innenwände und ein bisschen außen) noch mal angepasst. Wir sind nun viel zufriedener damit, trotzdem würde mich natürlich weiterhin eure Meinung dazu interessieren. Bilder im Anhang. Da ich kein Architekturprogramm habe ist das in Sketchup geplant. Türen etc. sieht man daher nur in der schrägen Draufsicht.

Je öfter ich mir den Allraum anschaue, desto mehr missfällt er mir. Der ist schon im Eingangsbereich so ungeplant mit dem halben Küchenbereich.
Ich würde hier mind., wenn es irgendwie so bleiben soll, die Küche in den Erker, sprich Wintergarten machen und den Essbereich als Hauszentrale.
Die Küche war in dem Layout nicht richtig eingezeichnet. Auf jetzt eher schematisch zu verstehen. Den Erker habe ich größer gemacht, dadurch passt der Tisch quer.

Genau, und da kommt dem geübteren Bebauungsplanleser gleich in den Sinn, ein geradwandiges OG statt des Kniestock-180-DG zu bauen und mit einem SD in entweder 22° DN (analog zum Maximum bei PD/ZD) oder z.B. 27° DN zu decken.

[...]quätscher wird der Quatsch dann durch einen Satteldach für die Photovoltaik nebst aus vorauseilendem Gehorsam ggü. dem Bebauungsplan zum Kniestock-DG gechopptem OG.
[...[
Deshalb mein Rat: gar nicht erst in irgendein zufällig nicht-verkatertes Detail verlieben, sondern alles neu machen. Reengineering heißt ja auch nicht, daß jede Übereinstimmung mit dem alten Plan auszumerzen sei - was durch Zufall wieder so ist wie vorher, darf gerne "bleiben" (nur nicht solches, was durch Beibehalt dasselbe geblieben ist).
Der Hinweis mit der evtl. Ausnahme des Bebauungsplan ist sehr gut. Ansonsten wollten wir ein Satteldach nicht wegen der Photovoltaik sondern aus optischen Gründen. Pult- und Zeltdach kommen leider für uns nicht in Frage.
Das Re-engineering haben wir jetzt zumindest für Innen soweit gemacht. -> Andere Treppe, anderer Schnitt im OG, und Großteils im UG. Für unseren Eindruck wesentlich aufgeräumter und klarer.

Ich möchte hier noch mal folgendes fragen:
Ihr habt 16m Grundstück-Breite mit 11m maximaler Hausbreite. Als Garage habt Ihr eine spirrliche Fertiggarage mit unter 3m Breite und 7m Länge eingezeichnet. Wenn da tatsächlich das Familienauto parkt, seh ich hier völlig schwarz. Wo kommen Fahrräder, Roller, Dreiräder, Rasenmäher und Co für 5 Personen hin? Oder sind 2 Stellplätze vor dem Haus geplant und die Garage ist ausschließlich für Gerassel?
Hinter dem Auto sind ja Rund 2 m Platz, die Idee war, dass die Räder davor oder dahinter stehen (hatten wir früher auch so). Sind 3m nicht Standard für eine Garage? Rasenmäher etc. kommen in den Keller, dafür gibts ja eine Außentreppe

Darf die Garage auch direkt an die Straße gebaut werden? Die Regel, dass mindestens 5m Abstand zur Straße vorhanden sein muss, scheint ja nicht zu gelten (in eurem Plan aktuell 4m). Kann natürlich sein, dass sich auch die Garage bei euch an die Baulinie halten muss.
Ich würde mir ja nicht die Westseite mit der Abendsonne verbauen, die Garage also lieber in den Nordosten. Als Option vielleicht einen Doppelcarport direkt an die Straße in der NO Ecke, hinter der Grenzhälfte davon einen Abstellraum für Fahrräder und das Haus dann anschließend auf dem Grundstück?

Anhang anzeigen 41683
Die Garage darf bis auf 3m an die Straße, war auch so geplant aber in dem Plan noch nicht drin.
Da das Grundstück daneben genauso schmal ist rechne ich damit, dass das Nachbarhaus auch recht nahe kommt und damit am Abend sowieso nicht mehr all zu viel Sonne kommt. Andererseits ist auf der Ostseite ein großes Grundstück, hier rechne ich mit mehr Abstand, daher auch eher hier der Blick hin.

Tja, ich weiß nicht so recht. Die Sache ist weder Fisch noch Fleisch. Das schmale WZ, die Küche so verloren im Raum, der Wurmfortsatz im Süden, oben Kinderzimmer 2 so nervig schmal, kein Platz für Auto, Fahrräder & Co und das alles für 580K???

Ok, das Grundstück ist nicht einfach. Eigentlich müsste es 2m breiter sein für Eure Wünsche. Wäre es meins, würde ich einige davon begraben und ein Rechteck bauen.

Das würde dann so aussehen (planoben ist Süden):

Anhang anzeigen 41698
Anhang anzeigen 41697
Eventuell würde ich noch maximal nach Süden rücken für einen kleinen Vorgarten. Photovoltaik geht auch mit Ost-West Ausrichtung - hab ich gerade gelernt. Kinder bekommen die Südseite. Wieso müsst Ihr beim Schlafen in den Garten schauen?
Vielen Dank für die Mühe, die du dir mit den Plänen gemacht hast!! Mit welchem Programm machst du das?
Das Wohnzimmer ist nun breiter, ebenso der Erker und es ist weniger verschenkter Platz. Uns gefällt es jetzt auf jeden Fall schon besser, auch dank der zahlreichen Anregungen hier. Was meint ihr zum neuen Entwurf?

Grundriss eines Gebäudes mit vielen Räumen, Treppenhaus in der Mitte, Maßen in cm.


Grundriss eines Hauses von oben mit Zimmern, Treppenhaus und Möbeln.


Isometrischer Grundriss eines Hauses mit Schlafzimmern, Schreibtischen und Treppe.


Isometrischer Grundriss eines Mehrzimmer-Appartements mit Betten, Tischen und Schränken.


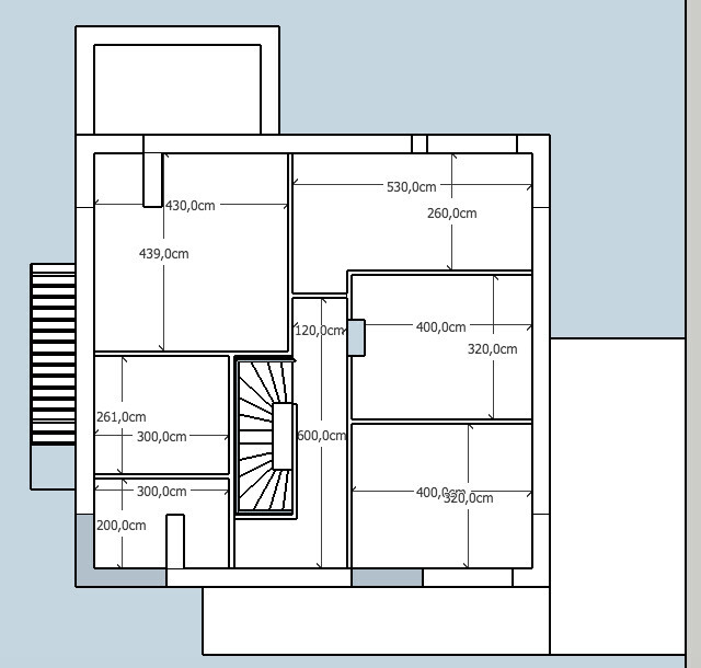
Grundriss eines Gebäudes mit Innenraumaufteilung, Maßangaben in cm, Treppenhaus.


Frontansicht eines modernen Hauses mit grauem Dach, weißer Fassade und Eingangstür.


Zweistöckiges Haus mit Satteldach, seitlichem Anbau und großen Fenstern.


Schnitt durch ein zweigeschossiges Haus mit Keller, Treppe und Fenstern (Innenansicht).


Moderne zweistöckige Hauszeichnung mit Wohnzimmer, Küche und Eingang.


3D-Modell eines modernen zweigeschossigen Hauses mit grauem Dach, Anbau und großer Hoffläche.
 
H

haydee

3 m ist knapp für eine Garage. Die meisten PKW‘s sind Inkl Außenspiegel schon über 2 m breit
Dann sollen noch Fahrräder vorbei ohne das es Kratzer gibt?
Einsteigen geht nur auf einer Seite der Rest muss draußen.


Zum Thema Essplatz im Erker
Google einmal Platzbedarf Esstisch.
 
Y

ypg

Ich komm mit den Plänen nicht klar. Ich seh den Vorteil jetzt von der neuen Erkerform nicht.
Bei 3,70 passt ein 2 Meter-Tisch hin. Was ist das jetzt für eine Sitzecke? Was passiert in der Wohnzimmer“Ecke“?
Ehrlich? Es sieht gewollt und nicht gekonnt aus. Das schöne Geld zerrinnt. Ich würde bei 560000 einen Architekten beauftragen. Bauen kann das dann der BU. Dann kommen auch gute Kinderzimmer raus, der Allraum bekommt seine sinnvollen Zonen.
 
H

Holson!

3 m ist knapp für eine Garage. Die meisten PKW‘s sind Inkl Außenspiegel schon über 2 m breit
Dann sollen noch Fahrräder vorbei ohne das es Kratzer gibt?
Einsteigen geht nur auf einer Seite der Rest muss draußen.


Zum Thema Essplatz im Erker
Google einmal Platzbedarf Esstisch.
Das mit der Garage passt. Muss keiner vorbei, wenn das Auto drinnen ist. Ich kenne das auch nur mit draußen aussteigen.

Essplatz passt grundsätzlich beim Platz (8 Plätze ohne Stuhl an der Stirnwand, hier ist die Darstellung noch nicht ganz passen). Also 240er Tisch...

Ich komm mit den Plänen nicht klar. Ich seh den Vorteil jetzt von der neuen Erkerform nicht.
Bei 3,70 passt ein 2 Meter-Tisch hin. Was ist das jetzt für eine Sitzecke? Was passiert in der Wohnzimmer“Ecke“?
Ehrlich? Es sieht gewollt und nicht gekonnt aus. Das schöne Geld zerrinnt. Ich würde bei 560000 einen Architekten beauftragen. Bauen kann das dann der BU. Dann kommen auch gute Kinderzimmer raus, der Allraum bekommt seine sinnvollen Zonen.
Die Sessel sind noch nicht richtig platziert. Der ganze rechte Bereich ist Wohnzimmer, hinten ist die Fernsehecke, die aber absichtlich nicht den zentralen Platz im Wohnzimmer einnehmen soll.
Die Kinderzimmer finde ich für die zur Verfügung stehende Fläche eigentlich gut, was stört bei dem letzte Entwurf?
 
Zuletzt aktualisiert 18.11.2025
Im Forum Grundrissplanung / Grundstücksplanung gibt es 2536 Themen mit insgesamt 87971 Beiträgen


Ähnliche Themen zu Einfamilienhaus, 3 Kinderzimmer, 2 Bäder, ca. 10,5x10,5 m2
Nr.ErgebnisBeiträge
1Haus, Garage / Carport auf dem Grundstück platzieren - Seite 493
2Grundriss-Entwurf: Einfamilienhaus mit Keller; 560qm Grundstück - Seite 365
3Ausrichtung Einfamilienhaus + Garage bei West-Ost Grundstück mit Strasse im Westen 18
4Grundriss erster Entwurf - Meinungen erwünscht 21
5Planung Grundriss / Erster Entwurf für erstes Feedback 32
6Unser Grundriss-Entwurf, eure Meinungen 20
7Grundriss, längliches Einfamilienhaus, integrierte Garage kein Keller 16
8Grundrissplanung für schmales Grundstück, 2. Versuch. 14
9Einfamilienhaus ca. 185qm - Erster Entwurf - Verbesserungsvorschläge? 17
10Grundstück nicht Rechteckig - Idee für Grundriss gesucht - 20
11Grundstück mit Hanglage, Berg hinterm Haus und fehlende Abendsonne 26
123. Grundriss-Entwurf Neubau Einfamilienhaus 220qm 2 Vollgeschosse Dachterrasse - Seite 561
13Ausrichtung Haus auf Grundstück 12
14Grundriss Einfamilienhaus 240 m² mit teilüberbauter Garage 96
15Einfamilienhaus 1,5-Geschosser ca. 150qm Grundrissplanung Do-It-Yourself Entwurf 23
16Grundriss mit Garage auf Grundstück realisierbar? 29
17Entwurf Einfamilienhaus mit Garage/Carport - bitte um Bewertung 22
18Grundstück - Baufenster - Lage von Haus und Garage 44
19Grundrissplanung mit einigen Anforderungen - Ideen? 50
20Ausrichtung Haus und Garage auf dem Grundstück - Seite 218

Oben