Grundriss 200m² Einfamilienhaus, Hochparterre, Bestandsgrundstück, Doppelgarage

4,70 Stern(e) 11 Votes
Zuletzt aktualisiert 23.11.2025
Sie befinden sich auf der Seite 13 der Diskussion zum Thema: Grundriss 200m² Einfamilienhaus, Hochparterre, Bestandsgrundstück, Doppelgarage
>> Zum 1. Beitrag <<

G

Gustav5789

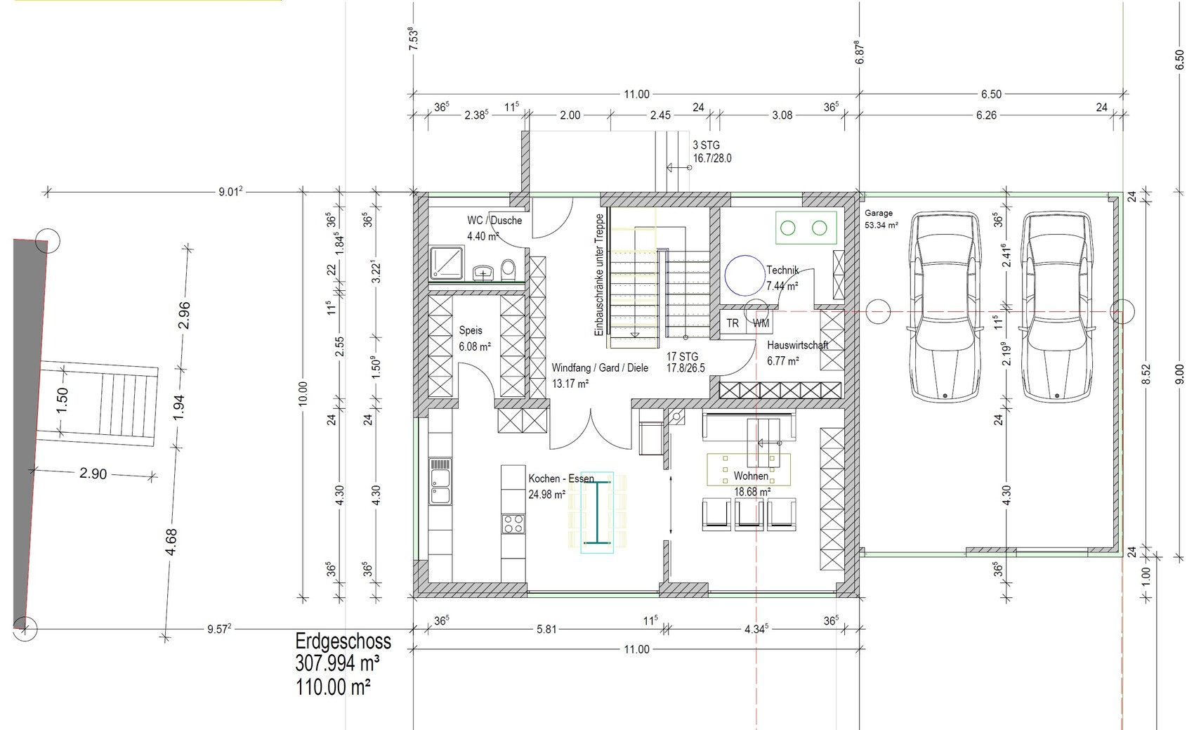
Unser Architekt hat es zwar nicht geschafft mit 11x9m und 42 Ziegeln zu arbeiten .... aber mit 11x10 sind wir ja jetzt schon mal nahe dran.
Drei Badezimmer sind zu viel ... eines muss noch weg, denke das im EG. Fenster bin ich auch noch nicht ganz glücklich. Würde für das Wohnzimmer ein Doppelfenster, aber nicht bodentief nehmen oder ein einfaches und dann in die Küche noch ein weiteres Fenster zwischen den Kochzeilen. Bei einem einfachen Fenster wäre es zumindest außen optisch etwas schöner glaube ich.
In der Speiß fehlt mir auch etwas licht. Durch den extra Meter wird das Kinderzimmer 3 und das Bad schon sehr groß, aber das grundsätzliche Design würde mir gefallen. Die Dusche vielleicht noch mit der Badewanne tauschen und darüber ein Fenster, falls das geht? Oder was meint ihr?

Im DG ist er schon sehr hoch gegangen gefühlt. Er meinte ist Pflicht wegen der Duschhöhe, aber der Raumgewinn wird riesig und vermutlich auch teuer?

Eigentlich sollte er nur so hoch gehen, wie es für die Treppe notwendig ist.
Erdgeschoss Grundriss eines Einfamilienhauses mit Küche, Wohnen und Garage.

Grundriss des Obergeschosses mit drei Kinderzimmern, Bad, Flur, Waschküche und Treppenhaus.

Dachgeschoss-Grundriss: Elternzimmer, Flur DG, Bad, Homeoffice, Treppenaufgang.

3D-Modell eines grauen Hauses mit rotem Satteldach, großen Fenstern und Garage.

Dunkles, mehrstöckiges Haus mit rotem Satteldach, Anbau-Garage und farbiger Eingangstür

3D-Modell eines grauen Hauses mit rotem Satteldach und Holzdeck vorne.

Zweistöckiges Haus mit rotem Dach, grauen Wänden, Glasfront und Holzterrasse; Anbau mit Garage.

3D-Ansicht eines Innenraums mit mehreren Zimmern, grauen Wänden, blauer Bodenfläche und Möbeln.

Isometrischer 3D-Grundriss eines Hauses: Wohnzimmer, Küche, Flure, Treppe, Bad und Möbel

Isometrisches 3D-Hausmodell mit Küche, Essbereich, Wohnzimmer, Treppe und Garage.
 
Y

ypg

Drei Badezimmer sind zu viel ... eines muss noch weg, denke das im EG.
Das wichtigste??! Das ist das, was man am meisten nutzt. Man geht während der Gartenarbeit nicht hoch und schmutzt die Bude ein. Auch nach dem Nachhausekommen drückt es oft bei dem ein oder anderen, da spielt das Alter auch keine Rolle, eher Situationen, dass man nicht noch woanders war.
Eigentlich sollte er nur so hoch gehen, wie es für die Treppe notwendig ist....
Also, wegen Kosten sparen ist das DG schon fast dekadent geraten. Fenster würde ich normalisieren, das bringt Kapital und Wohlgefühl im DG. Es sieht ja eh keiner, bei dem man angeben kann. Dusch-WC reichen im DG 3-4qm. Auch wenn hier keine richtigen Qm genannt sind, so kann man allerdings noch gut einschränken. Wenn Du es Dir leisten kannst, dann lass es so.
 
E

Enrico02

Bezüglich der Speisekammer: Da mit einem Fenster zu arbeiten macht meiner Meinung nach wenig Sinn, da nimmt man sich das einzige wofür eine Speisekammer eigentlich da ist, nämlich Stellfläche. Wenn einem dennoch mehr Licht wichtig ist, würde ich eher über eine Glastür nachdenken. Falls einem diese zu durchsichtig ist, könnte man natürlich auch über Milchglas nachdenken oder was es auch immer mittlerweile an licht-, aber nicht sichtdurchlässigen Materialien bei Türen gibt.
 
kbt09

kbt09

Ich würde den Bereich Küche / Essen, der nur 581 cm hat, nochmal durchdenken und die Wand Richtung Wohnbereich weiterschieben.

Im DG Eltern würde ich das Bett weiter planunten planen und damit einen höheren und weiter nach planunten verlegten Kniestock nachdenken. Denn ich denke, das könnte je nach Körpergrößer sehr ungemütlich beim Aufstehen werden. Genauso in den jeweiligen Bürobereichen. Grund einfach der Neigungswinkel vom Dach.

Ich bin ja auch immer auf Stauraum fixiert, aber irgendwie sehen mir die Einrichtungspläne und die teilweise doch recht groß dimensionierten Räume jetzt nach einer Überproportionierung von Schrankraum aus.
 
G

Gustav5789

Das wichtigste??! Das ist das, was man am meisten nutzt. Man geht während der Gartenarbeit nicht hoch und schmutzt die Bude ein. Auch nach dem Nachhausekommen drückt es oft bei dem ein oder anderen, da spielt das Alter auch keine Rolle, eher Situationen, dass man nicht noch woanders war.
Stimmt schon, aber da würde ein kleiner Raum mit WC langen oder nicht? Klar Dusche und dreck durchs ganze Haus verstehe ich, aber im DG ist eher Platz für das zweite Badezimmer als im EG oder sehe ich das wieder falsch?

Also, wegen Kosten sparen ist das DG schon fast dekadent geraten. Fenster würde ich normalisieren, das bringt Kapital und Wohlgefühl im DG. Es sieht ja eh keiner, bei dem man angeben kann. Dusch-WC reichen im DG 3-4qm. Auch wenn hier keine richtigen Qm genannt sind, so kann man allerdings noch gut einschränken. Wenn Du es Dir leisten kannst, dann lass es so.
Ist mir ehrlich gesagt auch zu groß. Ich wollte nur soviel Höhe, wie für einen ordentlichen Treppenaufgang nötig ist und nicht mehr als 50%, so wie K a t j a es vorgeschlagen hat.

Bezüglich der Speisekammer: Da mit einem Fenster zu arbeiten macht meiner Meinung nach wenig Sinn, da nimmt man sich das einzige wofür eine Speisekammer eigentlich da ist, nämlich Stellfläche. Wenn einem dennoch mehr Licht wichtig ist, würde ich eher über eine Glastür nachdenken. Falls einem diese zu durchsichtig ist, könnte man natürlich auch über Milchglas nachdenken oder was es auch immer mittlerweile an licht-, aber nicht sichtdurchlässigen Materialien bei Türen gibt.
Super Einwand, nehme ich so mit und finde ich auch eine gute Idee! Danke!

Ich würde den Bereich Küche / Essen, der nur 581 cm hat, nochmal durchdenken und die Wand Richtung Wohnbereich weiterschieben.

Im DG Eltern würde ich das Bett weiter planunten planen und damit einen höheren und weiter nach planunten verlegten Kniestock nachdenken. Denn ich denke, das könnte je nach Körpergrößer sehr ungemütlich beim Aufstehen werden. Genauso in den jeweiligen Bürobereichen. Grund einfach der Neigungswinkel vom Dach.

Ich bin ja auch immer auf Stauraum fixiert, aber irgendwie sehen mir die Einrichtungspläne und die teilweise doch recht groß dimensionierten Räume jetzt nach einer Überproportionierung von Schrankraum aus.
Warum ist Essen / Küche zu klein? Wir haben tatsächlich die Wand hinter den Kamin planen wollen, damit wir mit 30cm mehr auch eine breite "zweite Küchenreihe" integrieren können, aber noch mehr?

DG hatte ich die gleiche Idee, das Bett hat zu viel Schräge beim aufstehen.

Ja wir haben mit dem DG viel zu viel Fläche. Würde das Haus erstmal noch um 50cm kürzen und den Kniestock wie du vorschlägst mittiger unters Dach ziehen.
Fällt euch sonst noch etwas ein, dass ich noch übersehe?
 
K a t j a

K a t j a

Er meinte ist Pflicht wegen der Duschhöhe
Hä? Lasst Euch bitte nicht veräppeln.
Ja, die Dusche braucht natürlich den Platz in der Höhe, damit man sie überhaupt aufstellen kann. Aber Ihr könnt ja einfach mal die Höhe Eurer jetzigen Dusche messen, dann wisst Ihr, wie viel da nötig ist.

Die Dusche im EG finde ich auch übertrieben. Wer soll die benutzen? Weg damit!

Die zusätzlichen 80cm in der Tiefe werden von der monströsen Treppe aufgefressen. Wenn die Dusche im EG wegfällt und dieser Raum optimiert wird, bleibt da eine irre große Speisekammer übrig. Dieser Platz fehlt m.E. im WZ in der Tiefe. Ich bin da bei 4,70m und Ihr nur bei 4,30m obwohl ich 80cm kleiner bin! In der Breite bin ich bei 6m so das Kochen / Essen bei >= 28qm ist.
Das ist natürlich Geschmackssache. So eine Podesttreppe ist schön, das würde ich verstehen. Ich persönlich würde sie aber nicht einplanen, wenn darunter die Hauptwohnräume leiden. Dazu kommen die sinnlos großen Räume im OG und DG. Außerdem ist sie wirklich sehr groß mit 2,45m Breite und über 3m Tiefe. Ist das etwas, was Ihr unbedingt so wolltet?

Hier entsteht für mich der Eindruck, der Architekt will auf Teufel komm raus das ganze Projekt so teuer wie möglich machen, damit es in der Kasse klingelt. Eine zusätzliche Dusche im EG, aufgeblähtes Dachgeschoss, monströse Treppe, um die Sache zu vertuschen, Einbauschränke unter der Treppe sind auch nicht billig. Bin mal gespannt, was ihm als nächstes einfällt.

Ansonsten würde ich noch anmerken, dass das Bett unter der Dachschräge schon sehr weit hinten steht und vermutlich jede Menge Kopfschmerzen verursacht. Der Drempel mit 1m wäre mir hier zu niedrig. Die Schränke im Büro und im Schlafzimmer unter der Schräge kann man erst gar nicht erreichen, wenn man kein Zwerg ist. Schau doch mal, die 2m Linie ist weit davor. Soll man da hin kriechen?

Was ich auch nicht ganz verstehe, warum ist die Waschmaschine immer noch im EG, wenn die Wäsche im OG ist? Wenn das so passt und die da unten bleiben soll, fehlt trotzdem der Wäscheschacht, oder? Btw.: Die zurück gesetzten Türen bei den zwei Kinderzimmern würde ich übrigens nicht machen. Das führt dazu, dass der Wäscheraum kleiner ist. In den Kinderzimmer ist auch ohne den Versatz genug Stellfläche, was man an den zig Schränken sieht, die kein Kind braucht.
Dieser ganze "Durchgangsverengungs-Flur mit Schornsteinversteckmich-Wand im OG ist auch nicht so meins. Das wirkt eng, mikrig und dunkel. Ich bevorzuge immer offen, frei und hell. Auch sinnlose Ecken wie im DG (beim Schornstein) wirken immer unruhig und wie drangebastelt. Eher begradige ich die Wand und verkleide die Nische mit Einbauschränken oder passenden Regalen.

Die ganze Schornstein und Kaminfrage ist auch noch nicht ideal, wenn Du mich fragst. Wenn der Kamin dort hin soll, dann würde ich keine Doppeltür ins WZ machen. Ist der Kamin dort maßstabsgetreu? Habt Ihr da schon was ausgesucht?

Zum Thema Speisekammer ohne Fenster und mit Glastür - da könnte ich mich nicht für erwärmen. Erstens ist eine Speis nicht perfekt aufgeräumt, sondern eben ein Abstellort, wo man gerade nicht alles perfekt im Schrank verstauen muss. Das man diese Regale mit dem ganzen Gedöns dann auch noch ständig durch die Scheibe sehen soll, würde mich sehr stören. Da hilft auch kein Milchglas mehr. Außerdem finde ich es persönlich ideal im Winter einfach das Fenster zu öffnen, wenn die Weihnachtsgans abkühlen soll, damit man das Fett abnehmen kann. Auch wenn mal ein schlechter Geruch in der Speis ist, weil mal was schlecht geworden ist (ja, das kommt auch mal vor), schmeiß ich das raus und öffne das Fenster zum Lüften.
Noch eine Empfehlung, was wir hier übrigens falsch gemacht haben, weil wir es nicht besser wussten: Falls Ihr eine Fußbodenheizung inkl. -Kühlung einbauen lasst, lasst die Heizungsrohre auch in der Speis verlegen mit eigenem Schalter. Bei uns hat das der Planer eingespart, weil er dachte, das braucht es nicht. Jetzt ärgern wir uns ein wenig, da wir im Sommer die Speis nicht kühlen können. Vielleicht rüsten wir hier aber noch nach (an der Decke).

Zum Thema Fenster bin ich auch ganz bei Dir. Das ist ja nicht mehr weit bis Hundertwasser.
Das Haustürpodest mit der Seitenwand finde ich persönlich auch nicht so schick. Das wäre mir zu klotzig. Schön finde ich das Fensterband in der Küchenzeile. Noch besser gefällt mir, wenn es über eck geht, aber das ist Spielerei.
 
Zuletzt aktualisiert 23.11.2025
Im Forum Grundrissplanung / Grundstücksplanung gibt es 2535 Themen mit insgesamt 87992 Beiträgen


Ähnliche Themen zu Grundriss 200m² Einfamilienhaus, Hochparterre, Bestandsgrundstück, Doppelgarage
Nr.ErgebnisBeiträge
1Einfamilienhaus vom Architekt 150m² Verbesserungsvorschläge und Ideen gesucht 75
2Grundrissplanung: Badezimmer Dusche 47
3OG Stadtville optimieren. Fenster Bodentief - Seite 13104
4Grundrissfrage, Treppe, Fenster, Ausrichtung 12
5Umbau Kinderzimmer - Fenster in zwei Fenster aufteilen? 20
6Neubau Einfamilienhaus 150qm Wohnfläche, Saarland - Seite 11141
7Dusche direkt am Fenster - kompatibel oder inkompatibel? - Seite 422
8Speisekammer vs. größere Küche vs. Hauswirtschaftsraum - Seite 213
9Grundriss Stadtvilla / Anordnung Fenster, Feedback erwünscht - Seite 216
10Einfamilienhaus,Zwei Varianten Grundriss vom Architekt 39
11Grundrissfrage: Tausch gerader Treppe durch L-Treppe 31
12Idee Schlafzimmer - Bett / Schrank Anordnung 32
13Grundriss EFH165 qm erster Entwurf - Architekt unzufrieden - Seite 374
14Bodengleiche Dusche mit Fenster in der Nähe 13
15Badezimmer-Grundriss Planung - Wie die Fenster platzieren? 12
16Grundriss: Speisekammer oder größere Küche? Erfahrungen? - Seite 214
17 Küchenplanung mit tiefen Fenster 43
18Größe vom Schlafzimmer und Kinderzimmer - Seite 338
19Aufmusterung Elektro, Q2, Badfliesen, Drempel, bodentiefe Fenster 23
20Grundrissfrage, Garage, Treppe - Seite 533

Oben