
Mbk84
Danke für das schnelle Feedback !
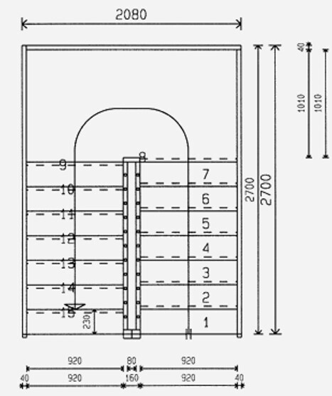
Ging jetzt wirklich nur um die Treppe, ob an der irgendein "Haken" ist. Der Rest explizit von diesem Grundriss wird grade überarbeitet, da sind noch einige Änderungen geplant. Ich stelle dann den überarbeiten Plan natürlich auch wieder ein. Da verschiebt sich im OG auch noch was.
Podest der Treppe wäre hier jetzt 85cm. Ist das zu schmal?
P.S. Der Tresen soll gar kein Tresen sein, das war noch ein alter Platzhalter. Küche generell würden wir auch etwas breiter gestalten, zu Lasten des m.E. aktuell recht breiten Flurs. Und das mit dem Abstellraum kommt auch noch anders
Ging jetzt wirklich nur um die Treppe, ob an der irgendein "Haken" ist. Der Rest explizit von diesem Grundriss wird grade überarbeitet, da sind noch einige Änderungen geplant. Ich stelle dann den überarbeiten Plan natürlich auch wieder ein. Da verschiebt sich im OG auch noch was.
Podest der Treppe wäre hier jetzt 85cm. Ist das zu schmal?
P.S. Der Tresen soll gar kein Tresen sein, das war noch ein alter Platzhalter. Küche generell würden wir auch etwas breiter gestalten, zu Lasten des m.E. aktuell recht breiten Flurs. Und das mit dem Abstellraum kommt auch noch anders