Erster Grundriss-Versuch für Kettenhaus auf kleinem Grundstück

4,30 Stern(e) 7 Votes
Zuletzt aktualisiert 07.01.2026
Sie befinden sich auf der Seite 3 der Diskussion zum Thema: Erster Grundriss-Versuch für Kettenhaus auf kleinem Grundstück
>> Zum 1. Beitrag <<

Y

ypg

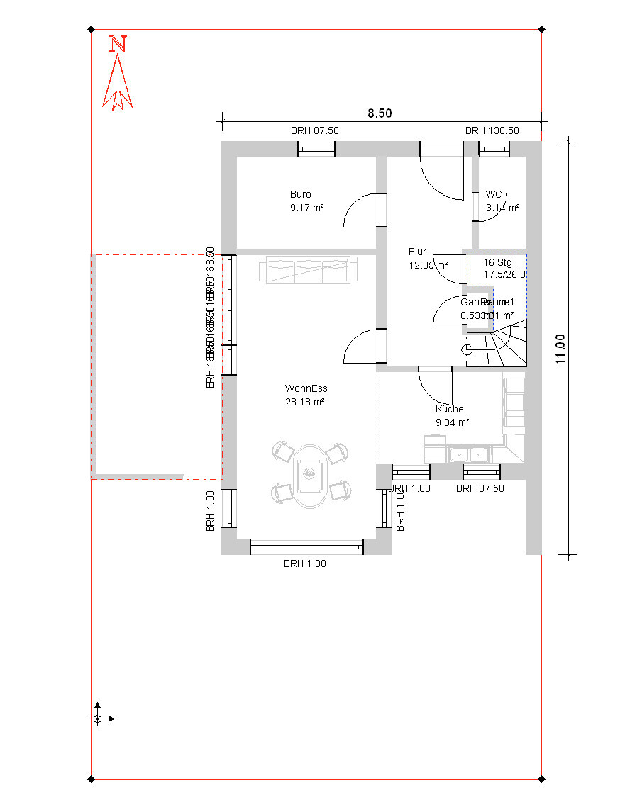
Ich hab mich mal am Grundriss probiert. Leider ist mir das Programm abgeschmiert.
Ich sehe die Treppe dort, wo Du die gezeichnet hast. Allerdings eventuell schmaler. Ich würde planoben links das Büro setzen, in die Mitte das WZ mit Oberlichtern Rtg Carport. Küche und Essen sehe ich im Süden, wobei ich unten teils 11 Meter nehmen würde, zur anderen Hälfte 9 Meter (planunten rechts die Küche mit eingerückter Terrasse. Essen dann in einer Art Wintergarten mit vielen Fenstern.
 
kbt09

kbt09

Ich kann den Wunsch nach Garage (Fahrräder etc.) und danach, dass diese etwas breitet als 3 m Außenmaß ist, verstehen. Ist dann einfach besser nutzbar.

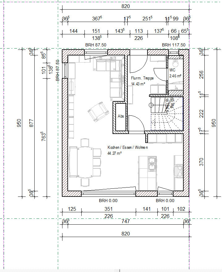
@ypg, Yvonne, schade, dass dir dein Programm abgeschmiert ist, hätte die Idee gerne mal gesehen. Wie du sehe ich die Küche am Garten .. daher hier in den Hausgrenzen von @Mbk84 das EG


Grundriss eines Hauses: Küche, Essen, Wohnen, Flur mit Treppe und WC.

Küche einfach in 3 Blöcken mit viel Stauraum.
Die Hochschrankzeile mit 45er Vorratsschrank, Backofen/Geschirrspüler in Sekündärhöhe (ca. 120 cm, daher Abstellfläche für Kaffeevollautomat etc.), dann Kühl/TK-Kombi.

Kochblock an der Wand planrechts mit Abluft nach planunten und eine schöne große Vorbereitungs-/Spüleninsel.

Essplatz mit 100x200 cm Tisch und Bank, das schafft Bewegungsraum vor der Schiebetür zur Terrasse.

Wohnzimmer dann privat ... im Durchgangsbereich die "Bücherhalle" .
__________________

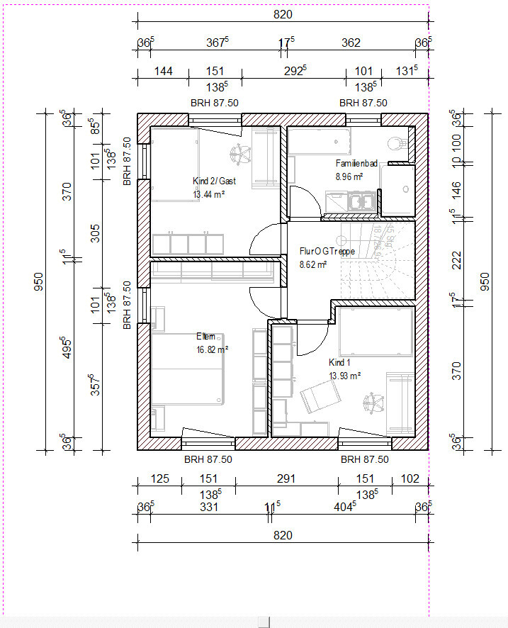
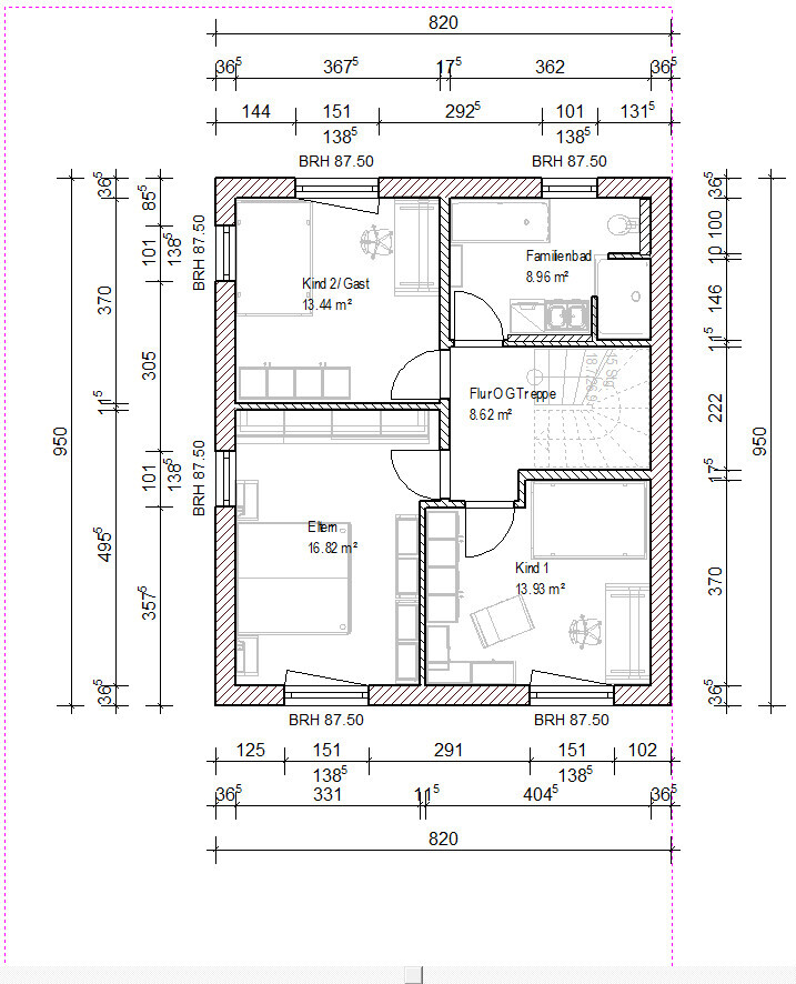
Und dazu das OG

Grundriss Obergeschoss: Elternzimmer, zwei Kinderzimmer, Flur OG, Familienbad.


Elternbett würde ich eher an die Außenwand stellen, dann haben beide Seiten schön Platz für Nachttischchen.
350 cm Schiebetürenschrank und ca. 350 cm Kommode sollten ausreichend Stauraum sein.

Bad .. WC über WC vom EG, Schamwand=Duschtrennwand. Planunten Waschbecken, z. B. Aufsatz, daneben freie Fläche, wo die Waschmaschine drunter stehen kann.
Planlinks dann Platz für einen nicht so tiefen (ca. 25 cm) Badezimmerschrank oder evtl. einen Handtuchheizkörper.

@Mbk84 .. war jetzt eigentlich geklärt, ob man das Dach der Garage noch als Terrasse nutzen kann?

Und, wären im OG grundsätzlich planrechts auch Fenster möglich oder eher nicht .. wg. Terrassenmöglichkeit auf Garage?
 
S

Slava_S

wären im OG grundsätzlich planrechts auch Fenster möglich oder eher nicht ..
Wenn damit die Wand zum Nachbarn gemeint ist würde ich nein sagen. Außer jemand kennt eine Möglichkeit die, die nachfolgende Nebenbestimmung aus der Baufreigabe (s.u.) anderweitig erfüllt.

@Mbk84 habt ihr über einen Carport nachgedacht? Mir persönlich wäre die Front zu verschlossen.

Deutscher Baurechtstext, Abschnitt 12: Außenwand feuerbeständig bis zur Dachhaut.
 
Zuletzt bearbeitet:
Y

ypg

@ypg, Yvonne, schade, dass dir dein Programm abgeschmiert ist, hätte die Idee gerne mal gesehen. Wie du sehe ich die Küche am Garten .. daher hier in den Hausgrenzen von @Mbk84 das EG
Er hats aber gespeichert... ich hau mal die Skizze raus... man weiss ja von mir, dass ich nur Ideen verbreite und keinen Tipp, wo man die Zeitschriften lagern kann


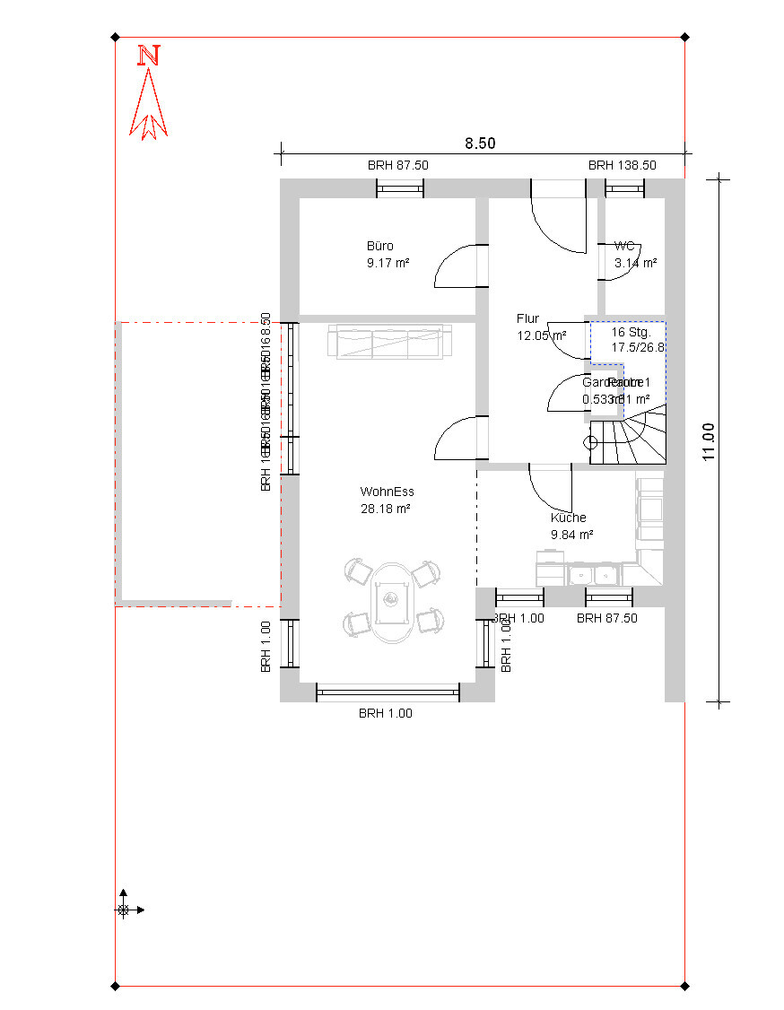
Grundriss eines Hauses: Wohnzimmer-Essbereich, Küche, Büro, Flur, WC; Maße vorhanden.

Grundriss eines Obergeschosses mit Schlafzimmer, Ankleide, Raum 2, Raum 4, Flur, Bad und Treppe.

Weißes zweistöckiges Haus mit dunklem Satteldach; Glas-Schiebetüren führen in den Essbereich.

Weiße zweistöckige Hausansicht mit dunklem Dach und Kiesdach-Anbau.
 
kbt09

kbt09

Tiefgarage? Keller ist ja eh angedacht. Aber Tiefgarage ... da dürfte es Probleme mit der Einfahrtslänge geben. Oder? Das war zumindest mein spontaner Gedanke. Und, es gibt ja wohl die Pflicht mit der Garage um eben diesen Kettenhaus-Effekt zu haben.

Die Verlängerung des Hauses entspannt natürlich die Raumsituation und lässt auf jeden Fall 2 Kinderzimmer und Büro/Gästezimmer zu. Ich hatte es so verstanden, dass nicht unbedingt ein zweites Kind geplant ist. Sollte das doch der Fall sein, kann man über Hausverlängerung auf jeden Fall nachdenken.

Und klären, ob es tatsächlich eine volle Garage sein muss oder auch offen sein darf. Zumindest offen in Gangbreite ist auch hilfreich für Gartenarbeiten etc.

Vorteil der nicht auf einer Linie endenden Gartenfront wäre auch, dass man quasi nicht auf einer Linie mit den Nachbarn sitzt, sondern im Garten auch mal eine Art Rückzugsnische hat. (Sonst kann man ja noch nicht mal flüsternd lästern ).
 
Zuletzt aktualisiert 07.01.2026
Im Forum Grundrissplanung / Grundstücksplanung gibt es 2565 Themen mit insgesamt 88757 Beiträgen


Ähnliche Themen zu Erster Grundriss-Versuch für Kettenhaus auf kleinem Grundstück
Nr.ErgebnisBeiträge
1Garage, Carport oder beides? 12
2Häuser ohne Keller: Stauraum Hobby-Keller? 49
3Standort Küche und Wohnzimmer 55
4Grundriss 165 m² mit Keller eure Meinung - Seite 552
5Grundriss für schmale Doppelhaushälfte - Keller + 2 Viel Glück+ DG ohne Kniestock - Seite 453
6Grundriss-Check Doppelhaushälfte - Optimierung allgemein + Stauraum - Seite 218
7Grundriss, Hausanordnung EFW 150m2, Keller + Einliegerwohnung - Feedback erwünscht - Seite 567
8Hang-Grundstück, Carport abfangen - Seite 222
9Keller oder Bodenplatte für Grundstückssituation sinnvoller? - Seite 255
10Terrasse an Hanglage auf Stelzen - Holz oder Stahl besser? 38
11Grundrissplanung Einfamilienhaus ca. 160qm 37
12Einfamilienhaus - Bayern 150m² inkl Keller, Terrasse - Kostenaufstellung 11
13Kosteneinschätzung: Fertighaus, Keller, Carport, Einzelgarage 10
14Bauen ohne Keller - Carport, Garage? - Seite 318
15Mehrgenerationenhaus mit Tiefgarage für 3 Familien - Seite 9234
16Tiefgarage Mehrfamilienhaus unter freistehenden Einfamilienhaus - Seite 213
17Grundriss Einfamilienhaus, ca. 200qm ohne Keller - Einschätzung - Seite 23172
18Esstisch in einer kleinen Küche 49
19Grobe Schnitzer im Grundriss? Küche zu klein? 39
20Baukosten Einfamilienhaus mit Keller und Doppelgarage - Seite 429

Oben