Erster Grundriss-Versuch für Kettenhaus auf kleinem Grundstück

4,30 Stern(e) 7 Votes
Zuletzt aktualisiert 19.11.2025
Sie befinden sich auf der Seite 10 der Diskussion zum Thema: Erster Grundriss-Versuch für Kettenhaus auf kleinem Grundstück
>> Zum 1. Beitrag <<

S

Slava_S

Dusche im EG mit gesamter Tiefe macht mehr Sinn
Die große Dusche stelle ich mir ganz gut vor, aber wie wollt ihr da reinklettern?
Die Position der Toilette ist grad augenwischerei. Nehm mal die Abstände der OG-Toilette und schaue wie viel Platz dort übrig bleibt.
Mein Sanitär-Mensch hat mir geraten nicht unter 25 cm (Astand Toilette zu Wand) zu gehen und wenn Platz ist auf 35 cm.
 
Y

ypg

Wie meinst du das genau? Eine (zusätzliche) Türe an der rechten Küchenseite zum Flur? Und dafür die Wohnzimmer Türe dann quasi aus dem Flur geradeaus ins Wohnzimmer?
Wahrscheinlich würde ich sogar die Küchentür gleich vorn bei der Eingangstür machen: Küchenzeile im Norden bleibt, und ggü der Terrassentür der Küche eine Tür. Dann einen Zweizeiler in der Küche. Restliche Breite für Garderobenschrank nutzen bzw mit der Küche vermitteln.
Dann kann auch in gerader Wand eine Glastür zum WZ führen.
Ich würde es für mich so planen, dass ein Familienmitglied auf dem Sofa (nickernd, krank oder lesend, also ruhesuchend, aber nicht unbedingt gleich tagsüber im Kämmerchen oben kauernd) nicht sofort von jemanden, der ins Haus kommt und die Küche besuchen will, die WZ-Aktiven stört.
Bei uns ist die Situation nicht selten, und trotz aller Offenheit fühlt sich bei uns derjenige auf dem Sofa geschützt, weil man nicht sofort über die Couchecke fällt.
Hinsichtlich späterer älterer Kinder, die sich um 22 Uhr noch ne Pizza machen wollen, ohne die Eltern beim Fernsehen zu stören, ein Selbstgänger.
 
Mbk84

Mbk84

Die große Dusche stelle ich mir ganz gut vor, aber wie wollt ihr da reinklettern?
Die Position der Toilette ist grad augenwischerei. Nehm mal die Abstände der OG-Toilette und schaue wie viel Platz dort übrig bleibt.
Mein Sanitär-Mensch hat mir geraten nicht unter 25 cm (Astand Toilette zu Wand) zu gehen und wenn Platz ist auf 35 cm.
Danke für den Hinweis, da hab ich doch grad tatsächlich mal bei uns zu Hause nachgemessen: 30cm, wobei 25cm auch gingen, aber sicher nicht weniger. Macht 25+40=65cm, also noch 65-70cm Rest-Breite zum durchgehen - finde das geht noch. Dusche ist ja nicht für den täglichen Gebrauch gedacht. Sonst müsste man das Gäste-WC noch etwas verbreitern, ginge zur Not auch noch.
 
Mbk84

Mbk84

Super, Danke für die Erklärung @ypg
Das klingt gut, muss ich morgen mal auf Papier bringen, bin gespannt wie sich das einrichten lässt
 
Y

ypg


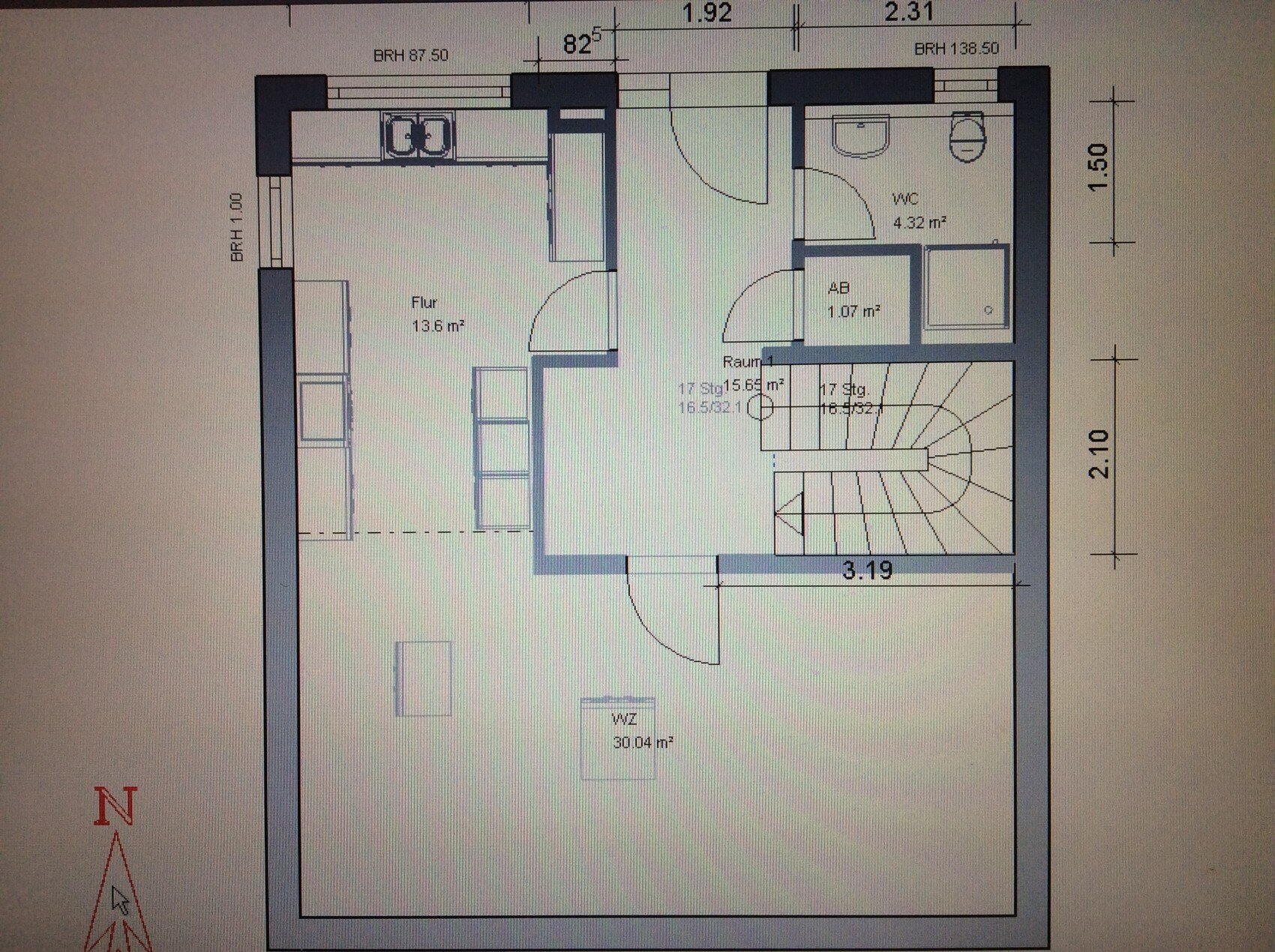
Grundriss eines Hauses: Küche links, Flur Mitte, Wohnzimmer rechts, WC und Abstellraum, Treppenhaus.


Da war ich noch mal fleißig.
Allerdings haben sich meine Zweifel hinsichtlich der Podesttreppe bewahrheitet: von optimaler Treppengrösse schon weit entfernt, musste ich die Dtfen dreimal korrigieren, um sie überhaupt in die Nische pressen zu können. Da reicht es auch nicht, das Podest einfach mal um 20 cm zu kürzen... sie wurde steiler, als unser Nottreppenhaus bei der Arbeit.
Genauso musste ich die Küche etwas schmaler gestalten, weil sich der Raum zwischen den Arbeitsbereichen als viel zu groß gestaltete.
So: ich sehe nicht, welches Bild als erstes erscheint. Ich habe im Kopf, dass die Küchentür genau ggü der Terrassentür ist. Dann allerdings habe ich noch mal die Kütür verschoben, um ein kleines Arbeits-L zu haben und im Flur eine Wand für die Spontangarderobe. Garderobenschrank ansonsten ist ggü der Treppe, hier 2-fach-gewendelt. Auch da gibt es schöne Produkte, muss ja keine gelbstichige Buche werden
Gäste-WC-Größe angepasst... leider sind die Türen in der einen Version nicht anpassbar.

Grundriss eines Hauses: Flur, Küche links, Wohnzimmer, WC, Abstellraum, Treppenhaus
 
kbt09

kbt09

@ypg .. Yvonne
Genauso musste ich die Küche etwas schmaler gestalten, weil sich der Raum zwischen den Arbeitsbereichen als viel zu groß gestaltete.
Meine Worte ... wenn es Richtung 2-Zeilen geht, sind 280 cm Raumbreite zu viel.



gefällt mir gut. Und, für die "Spontangarderobe" könnte man einfach überlegen, den Abstellraum übers Bad zu erschließen. Fände ich jetzt nicht so dramatisch.
Und, die Tür Flur/Küche könnte man noch als Schiebetür im Flur nach planunten laufend ausführen.
Evtl. Küchenfenster so schmal, dass rechts und links jeweils 1 Hochschrank passt, also jeweils knapp 70 cm Wand rechts und links .. rechts ist es ja schon.
Dann könnte man in der Küche tatsächlich oben von links .. Backofenhochschrank .. Sekundärabstellfläche .. und vorm Schacht tiefengekürzten Hochschrank für Standardvorräte in der Küche planen. In der Nische nach unten dann einen Standalone-Kühlschrank der dann in die Spülenzeile übergeht und planrechts zur Außenwand die Kochfeldzeile .. da könnte dann evtl. sogar Abluft gut funktionieren.
Das wäre mal mein spontaner Küchenplan, der nach planunten eben eher großzügig ohne Hochschränke ist.
 
Zuletzt aktualisiert 19.11.2025
Im Forum Grundrissplanung / Grundstücksplanung gibt es 2536 Themen mit insgesamt 87979 Beiträgen


Ähnliche Themen zu Erster Grundriss-Versuch für Kettenhaus auf kleinem Grundstück
Nr.ErgebnisBeiträge
1Grundriss-Planung eines Einfamilienhaus mit 145qm in Hanglage - Seite 322
2Lichtanschluss falsche Stelle Gäste-WC - Seite 529
3Lage Gäste-WC - Eingangsbereich? 28
4Gäste-WC Anordnung - Tipps? 19
5Planung Gäste-WC, brauche eure Tipps 17
6Planung Gäste-WC im Neubau - Wie groß muss es sein? (DIN?) - Seite 2107
7Unser Grundriss / Anregungen und Kritik erwünscht - Seite 324
8Einfamilienhaus, ca 140 m², 2 Kinderzimmer - Was haltet ihr vom Grundriss? - Seite 467
9WC-Fenster Gäste-WC neben der Eingangstür - inzwischen nogo? 44
10Gäste-WC: Decke abhängen oder Rohr verkleiden? - Seite 216
11Beispiel Kaltwasserhahn für Gäste-WC 12
12Gäste-WC (1,65qm) und Bad (4,88qm) Sanierung 21
13Fenster im Gäste-WC/Gästezimmer trotz Garage möglich? - Seite 333
14Rollladen im Gäste-WC ja oder nein? 35
15Entwürfe Gestaltung Fliesen Bad / Gäste-WC - Seite 319
16Kleines Haus auf großem Handtuchgrundstück - Seite 570
17Ablaufrinne Bodenebene Dusche mit Fußbodenheizung - Seite 544
188,02m Positionierung Waschbecken / Toilette - Seite 969
19Bodentiefe Fenster - wie Sofa stellen? - Seite 212
20Nachträglicher Einbau Wanne oder Dusche? 27

Oben