ᐅ Einfamilienhaus für 4 Personen - Meinungen
Erstellt am: 10.04.20 21:51
Chrisi190610.04.20 21:51
Hallo zusammen,
bei unseren Bauträger ist ein Kunde der ein Grundstück reserviert hatte abgesprungen. Da das andere Grundstück Süd / südwest Lage hat haben wir nicht lange gezögert und das Grundstück gewechselt. Das neue Grundstück ist kleiner, daher haben wir unseren Bungalow Traum aufgegeben. Das Grundstück ist Nr. 5.
Nochmal zur Erinnerung: Das Grundstück ist Bauträger gebunden.
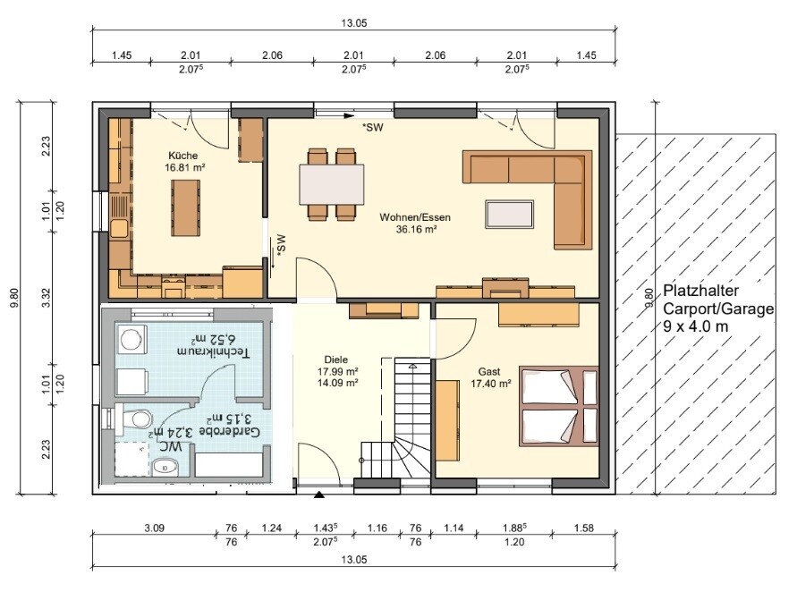
Ich habe mir die letzten Tage Gedanke um die Anordnung und Gestaltung der Räume und des Grundstück gemacht und möchte eigentlich erst mal wissen ob der Ansatz so okay ist. Mir geht es nicht um Details im Raum selbst, Fenster, Türen, Badezimmergestaltung. Ist auch nicht möglich da ich den Grundriss (auf Basis von Gussek Haus Grundrissen) selbst erstellt habe. Ich habe aber trotzdem versucht es so gut wie möglich zu gestalten. Aus diesem Grund möchte ich den Grundriss hier zur Diskussion stellen. Es reicht mir wenn ihr Feedback zur Raumaufteilung und Raumanordnung gebt, sowie Ideen / Anregungen / Tipps. Vielleicht seht ihr auch direkt Dinge, die "gar nicht gehen" bzw. nicht alltagstauglich sind.
Ich habe den Grundriss mit RoomSketcher erstellt, leider habe ich nur eine Kostenlose Variante so das viele Dinge nicht gehen. Ignoriert daher Raummaße im OG. Im Bereich des Arbeitszimmer ist eine Gaube.
Noch paar Sachen zum Haus.
Dachform 38°
Drempel 100cm
Außenmaße 12,85 x 9,60 m ( vergrößert, Originalmaße von Gussek Haus Häusern sind kleiner )
Raummaße kann ich leider nicht zeigen da RoomSketcher das nicht zulässt.
Anbei erneut der ausgefüllte Fragebogen.
Bebauungsplan/Einschränkungen
Größe des Grundstücks: 676m²
Hang NEIN
Grundflächenzahl 0,4 (zulässige Überschreitung 25 von 100)
Geschossflächenzahl 0,6
Baufenster, Baulinie und -grenze: Auf der Nord Seite / Süd Seite ca 20,5m breit, West und Ost Seite ca33m breit, 3m Baugrenze auf jeder Seite, Grundstück Rechteckig, Sieht man auch sehr schön auf den Bildern
Randbebauung: 3m
Anzahl Stellplatz: keine Vorgabe
Geschossigkeit: maximal 2 Vollgeschosse
Dachform: Satteldach, Walmdach
weitere Vorgaben: Garage muss 5m Abstand zur Grundstücksgrenze haben. Garage auf der Westseite da dort der Bordstein abgesenkt ist.
Anforderungen der Bauherren
Stilrichtung, Dachform, Gebäudetyp: egal, habe erst mal Haus mit Satteldach in Betracht gezogen, im Bereich des Arbeitszimmer ist eine Gaube
Keller, Geschosse: kein Keller da Grundwasserstand sehr hoch
Anzahl der Personen, Alter: 4 Personen im Alter von 36 Jahren (Frau), 37 Jahren (Mann), 3 Jahren (Kind), 1 Jahr (Kind)
Raumbedarf im EG, OG:
EG: Wohnen/Essen/Kochen, Hauswirtschaftsraum, Gäste-WC mit Dusche, Diele (Flur) mit Garderobe und Treppe ins DG, Gästezimmer / Spielzimmer
DG: Schlafzimmer, 2 Kinderzimmer, BAD, Abstellraum, Büro
Büro: Familiennutzung oder Homeoffice? Homeoffice mit Familiennutzung
Schlafgäste pro Jahr: 1-2x
offene oder geschlossene Architektur: geschlossene Architektur?
konservativ oder moderne Bauweise: ein mix aus beidem
offene Küche, Kochinsel: geschlossene Küche mit Kochinsel wäre schön ist aber kein muss, offene Küche geht auch
Anzahl Essplätze: 4, mit der Option auf 6
Kamin: nein
Musik/Stereowand: Soundanlage im Wohnzimmer.
Balkon, Dachterrasse: nein
Garage, Carport: Es muss Platz für 2 Autos vorhanden sein besser 3 bis 4. Aktuell könnte ich mir eine Garage (3x6) mit Carport (3,6) davor vorstellen, keine Ahnung ob das geht. Dann noch 2 Stellplätze vor dem Haus.
Nutzgarten, Treibhaus: nein
weitere Wünsche/Besonderheiten/Tagesablauf, gern auch Begründungen, warum dieses oder das nicht sein soll
Hausentwurf
Von wem stammt die Planung:
-Do-it-Yourself - Copy passt, Kombination aus den Gussek Haus Häusern Lindenallee, Kiefernallee Variante 1 und Buchenallee Variante 2
Was gefällt besonders? Warum?
-große geschlossene Küche mit Kochinsel mit direktem / kurzem Weg zur Terrasse
-Wohnzimmer nah an der Terrasse
-Gäste / Spielzimmer im EG
-Abstellraum im OG, mit Waschmaschine und Trockner
-Hauswirtschaftsraum mit Waschmaschine und Trockner ( ja 2 mal vorhanden )
-6 Zimmer
-Aufteilung der Räume im Dachgeschoss
Was gefällt nicht? Warum?
-Lage Arbeitszimmer / Büro im DG aus meiner Sicht nicht optimal aber ich könnte damit leben
Preisschätzung lt Architekt/Planer: bisher keine neue Preisschätzung erhalten
Persönliches Preislimit fürs Haus, inkl Ausstattung: 400.000
favorisierte Heiztechnik: Wärmepumpe
Warum ist der Entwurf so geworden, wie er jetzt ist? ZB
Copy Past von Gussek Haus Häusern Lindenallee, Kiefernallee Variante 1 und Buchenallee Variante 2
Was ist die wichtigste/grundlegende Frage zum Grundriss in 130 Zeichen zusammengefasst?
Raumaufteilung okay?







bei unseren Bauträger ist ein Kunde der ein Grundstück reserviert hatte abgesprungen. Da das andere Grundstück Süd / südwest Lage hat haben wir nicht lange gezögert und das Grundstück gewechselt. Das neue Grundstück ist kleiner, daher haben wir unseren Bungalow Traum aufgegeben. Das Grundstück ist Nr. 5.
Nochmal zur Erinnerung: Das Grundstück ist Bauträger gebunden.
Ich habe mir die letzten Tage Gedanke um die Anordnung und Gestaltung der Räume und des Grundstück gemacht und möchte eigentlich erst mal wissen ob der Ansatz so okay ist. Mir geht es nicht um Details im Raum selbst, Fenster, Türen, Badezimmergestaltung. Ist auch nicht möglich da ich den Grundriss (auf Basis von Gussek Haus Grundrissen) selbst erstellt habe. Ich habe aber trotzdem versucht es so gut wie möglich zu gestalten. Aus diesem Grund möchte ich den Grundriss hier zur Diskussion stellen. Es reicht mir wenn ihr Feedback zur Raumaufteilung und Raumanordnung gebt, sowie Ideen / Anregungen / Tipps. Vielleicht seht ihr auch direkt Dinge, die "gar nicht gehen" bzw. nicht alltagstauglich sind.
Ich habe den Grundriss mit RoomSketcher erstellt, leider habe ich nur eine Kostenlose Variante so das viele Dinge nicht gehen. Ignoriert daher Raummaße im OG. Im Bereich des Arbeitszimmer ist eine Gaube.
Noch paar Sachen zum Haus.
Dachform 38°
Drempel 100cm
Außenmaße 12,85 x 9,60 m ( vergrößert, Originalmaße von Gussek Haus Häusern sind kleiner )
Raummaße kann ich leider nicht zeigen da RoomSketcher das nicht zulässt.
Anbei erneut der ausgefüllte Fragebogen.
Bebauungsplan/Einschränkungen
Größe des Grundstücks: 676m²
Hang NEIN
Grundflächenzahl 0,4 (zulässige Überschreitung 25 von 100)
Geschossflächenzahl 0,6
Baufenster, Baulinie und -grenze: Auf der Nord Seite / Süd Seite ca 20,5m breit, West und Ost Seite ca33m breit, 3m Baugrenze auf jeder Seite, Grundstück Rechteckig, Sieht man auch sehr schön auf den Bildern
Randbebauung: 3m
Anzahl Stellplatz: keine Vorgabe
Geschossigkeit: maximal 2 Vollgeschosse
Dachform: Satteldach, Walmdach
weitere Vorgaben: Garage muss 5m Abstand zur Grundstücksgrenze haben. Garage auf der Westseite da dort der Bordstein abgesenkt ist.
Anforderungen der Bauherren
Stilrichtung, Dachform, Gebäudetyp: egal, habe erst mal Haus mit Satteldach in Betracht gezogen, im Bereich des Arbeitszimmer ist eine Gaube
Keller, Geschosse: kein Keller da Grundwasserstand sehr hoch
Anzahl der Personen, Alter: 4 Personen im Alter von 36 Jahren (Frau), 37 Jahren (Mann), 3 Jahren (Kind), 1 Jahr (Kind)
Raumbedarf im EG, OG:
EG: Wohnen/Essen/Kochen, Hauswirtschaftsraum, Gäste-WC mit Dusche, Diele (Flur) mit Garderobe und Treppe ins DG, Gästezimmer / Spielzimmer
DG: Schlafzimmer, 2 Kinderzimmer, BAD, Abstellraum, Büro
Büro: Familiennutzung oder Homeoffice? Homeoffice mit Familiennutzung
Schlafgäste pro Jahr: 1-2x
offene oder geschlossene Architektur: geschlossene Architektur?
konservativ oder moderne Bauweise: ein mix aus beidem
offene Küche, Kochinsel: geschlossene Küche mit Kochinsel wäre schön ist aber kein muss, offene Küche geht auch
Anzahl Essplätze: 4, mit der Option auf 6
Kamin: nein
Musik/Stereowand: Soundanlage im Wohnzimmer.
Balkon, Dachterrasse: nein
Garage, Carport: Es muss Platz für 2 Autos vorhanden sein besser 3 bis 4. Aktuell könnte ich mir eine Garage (3x6) mit Carport (3,6) davor vorstellen, keine Ahnung ob das geht. Dann noch 2 Stellplätze vor dem Haus.
Nutzgarten, Treibhaus: nein
weitere Wünsche/Besonderheiten/Tagesablauf, gern auch Begründungen, warum dieses oder das nicht sein soll
Hausentwurf
Von wem stammt die Planung:
-Do-it-Yourself - Copy passt, Kombination aus den Gussek Haus Häusern Lindenallee, Kiefernallee Variante 1 und Buchenallee Variante 2
Was gefällt besonders? Warum?
-große geschlossene Küche mit Kochinsel mit direktem / kurzem Weg zur Terrasse
-Wohnzimmer nah an der Terrasse
-Gäste / Spielzimmer im EG
-Abstellraum im OG, mit Waschmaschine und Trockner
-Hauswirtschaftsraum mit Waschmaschine und Trockner ( ja 2 mal vorhanden )
-6 Zimmer
-Aufteilung der Räume im Dachgeschoss
Was gefällt nicht? Warum?
-Lage Arbeitszimmer / Büro im DG aus meiner Sicht nicht optimal aber ich könnte damit leben
Preisschätzung lt Architekt/Planer: bisher keine neue Preisschätzung erhalten
Persönliches Preislimit fürs Haus, inkl Ausstattung: 400.000
favorisierte Heiztechnik: Wärmepumpe
Warum ist der Entwurf so geworden, wie er jetzt ist? ZB
Copy Past von Gussek Haus Häusern Lindenallee, Kiefernallee Variante 1 und Buchenallee Variante 2
Was ist die wichtigste/grundlegende Frage zum Grundriss in 130 Zeichen zusammengefasst?
Raumaufteilung okay?
ypg10.04.20 22:30
Warum denn immer der Bezug zu Gussek Haus? Das wird ja nicht der Bauträger sein, oder?
Curly10.04.20 22:33
warum 1m Kniestockhaus wenn auch zwei Vollgeschosse erlaubt wären?
LG
Sabine
LG
Sabine
ypg10.04.20 22:39
Curly schrieb:
warum 1m Kniestockhaus wenn auch zwei Vollgeschosse erlaubt wären?
LG
SabineJa, warum denn in Frage stellen? Kniestockhäuser haben doch sehr viel. Vielleicht mag bei einigen der Wohnwert bei 2-Geschossigkeit mehr Wert sein, aber das ist nicht so, noch Gesetz, noch Prio beim Hausbau.
Allerdings sind ein Meter tatsächlich etwas eingeschränkt. Auf 1,20 oder 1,40 würde ich gehen, damit auch Betten mit Kopfhaupt gut unters Dach passen.
Chrisi190610.04.20 22:50
ypg schrieb:
Warum denn immer der Bezug zu Gussek Haus? Das wird ja nicht der Bauträger sein, oder?Nein, ist nicht der Bauträger. Mir haben die Grundrisse von Gussek Haus gut gefallen deshalb.
Kniestock hatte ich auch von Gussek Haus so übernommen.
Chrisi190610.04.20 23:04
ypg schrieb:
Ja, warum denn in Frage stellen? Kniestockhäuser haben doch sehr viel. Vielleicht mag bei einigen der Wohnwert bei 2-Geschossigkeit mehr Wert sein, aber das ist nicht so, noch Gesetz, noch Prio beim Hausbau.
Allerdings sind ein Meter tatsächlich etwas eingeschränkt. Auf 1,20 oder 1,40 würde ich gehen, damit auch Betten mit Kopfhaupt gut unters Dach passen.Volltreffer. Unser Bett hat so ziemlich 1m Kopfhaupt. Danke für den Tipp.
Ähnliche Themen