ᐅ Erster Grundriss-Versuch für Kettenhaus auf kleinem Grundstück
Erstellt am: 27.12.18 10:25
Mbk8427.12.18 10:25
Guten Morgen zusammen,
nach der super Beratung zum Thema "Kettenhaus" im allgemeinen Forum haben wir mittlerweile das kleine Grundstück gekauft und nun stehen bald die ersten konkreteren Gespräche mit Generalunternehmern (und ggf. Architekten) an, von denen wir das Haus gerne "schlüsselfertig" errichten lassen wollen.
Da ich gerne vorbereitet in die Gespräche gehen würde und direkt die richtigen Fragen stellen möchte, würde ich mich sehr über Feedback, Anregungen oder Kritik zum ersten amateurhaften Grundriss-Entwurf freuen
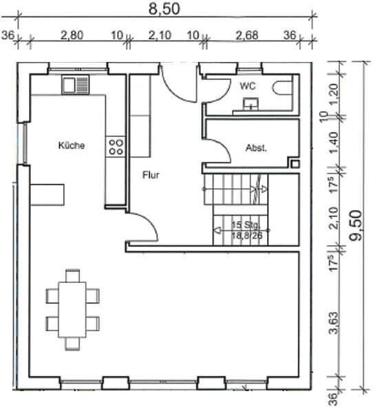
Der Entwurf und die Innenausstattung sollen natürlich nicht auf den cm genau sein, sondern erst einmal grundsätzlich aufzeigen, was in dem Baufenster geht. Da es ein Kettenhaus ist, sind an der Wand gen Osten keine Fenster erlaubt. Wir planen erst einmal mit Keller. Im Vergleich zu vielen anderen Beispielen hier, für die meisten wahrscheinlich ein ziemlich klassischer bzw. langweiliger Entwurf, aber ich fürchte viel anderes ist gar nicht möglich.
Tausend Dank vorab!
Bebauungsplan/Einschränkungen
Größe des Grundstücks - 240qm
Hang - nein
Grundflächenzahl 0,4
Baufenster, Baulinie und –grenze - 8,5 x 11m
Randbebauung – Kettenhaus, d.h. direkte Grenzbebauung links (noch leer) und rechts (bereits bebaut)
Dachform - Satteldach 35°-40°
Maximale Höhen/Begrenzungen - FH Max. 9,5m; TH Max. 6,0m
Anforderungen der Bauherren
Keller, Geschosse – Keller ja, 2 Vollgeschosse, Dachstudio als Ausbaureserve
Anzahl der Personen, Alter – 3 Personen (32, 34, 4)
Hausentwurf
Von wem stammt die Planung: Do-it-Yourself
Persönliches Preislimit fürs Haus: 300T€ + 50T€ Keller + 50T€ Baunebenkosten
Was ist die wichtigste/grundlegende Frage zum Grundriss in 130 Zeichen zusammengefasst?
Macht der Grundriss so Sinn, oder ließe sich durch eine intelligentere Aufteilung noch ein kleines separates Büro unterbringen? Sollten bestimmte Räume eher größer/kleiner sein?



nach der super Beratung zum Thema "Kettenhaus" im allgemeinen Forum haben wir mittlerweile das kleine Grundstück gekauft und nun stehen bald die ersten konkreteren Gespräche mit Generalunternehmern (und ggf. Architekten) an, von denen wir das Haus gerne "schlüsselfertig" errichten lassen wollen.
Da ich gerne vorbereitet in die Gespräche gehen würde und direkt die richtigen Fragen stellen möchte, würde ich mich sehr über Feedback, Anregungen oder Kritik zum ersten amateurhaften Grundriss-Entwurf freuen
Der Entwurf und die Innenausstattung sollen natürlich nicht auf den cm genau sein, sondern erst einmal grundsätzlich aufzeigen, was in dem Baufenster geht. Da es ein Kettenhaus ist, sind an der Wand gen Osten keine Fenster erlaubt. Wir planen erst einmal mit Keller. Im Vergleich zu vielen anderen Beispielen hier, für die meisten wahrscheinlich ein ziemlich klassischer bzw. langweiliger Entwurf, aber ich fürchte viel anderes ist gar nicht möglich.
Tausend Dank vorab!
Bebauungsplan/Einschränkungen
Größe des Grundstücks - 240qm
Hang - nein
Grundflächenzahl 0,4
Baufenster, Baulinie und –grenze - 8,5 x 11m
Randbebauung – Kettenhaus, d.h. direkte Grenzbebauung links (noch leer) und rechts (bereits bebaut)
Dachform - Satteldach 35°-40°
Maximale Höhen/Begrenzungen - FH Max. 9,5m; TH Max. 6,0m
Anforderungen der Bauherren
Keller, Geschosse – Keller ja, 2 Vollgeschosse, Dachstudio als Ausbaureserve
Anzahl der Personen, Alter – 3 Personen (32, 34, 4)
Hausentwurf
Von wem stammt die Planung: Do-it-Yourself
Persönliches Preislimit fürs Haus: 300T€ + 50T€ Keller + 50T€ Baunebenkosten
Was ist die wichtigste/grundlegende Frage zum Grundriss in 130 Zeichen zusammengefasst?
Macht der Grundriss so Sinn, oder ließe sich durch eine intelligentere Aufteilung noch ein kleines separates Büro unterbringen? Sollten bestimmte Räume eher größer/kleiner sein?
Mbk8427.12.18 10:28
P.S. Eingang ist oben (Norden) und nicht in der Küche, falls das so aussehen sollte
kaho67427.12.18 10:51
Glückwunsch zum Grundstück!
Ich find das erst mal so ganz ok und für eine Diskussionsgrundlage völlig ausreichend. Büro sehe ich eher im Keller oder im Dach (Geldfrage, ob man den Keller in Wohnraumhöhe baut usw.).
Was mich etwas stutzig macht, ist die Größe bei 300T Budget. Ist das nicht bissl wenig? Was kostet bei Euch der qm so in etwa? Da würde ich schon versuchen, mir auf der Gartenseite noch nen Meter dran zu gönnen, bei der Kohle.
Ich find das erst mal so ganz ok und für eine Diskussionsgrundlage völlig ausreichend. Büro sehe ich eher im Keller oder im Dach (Geldfrage, ob man den Keller in Wohnraumhöhe baut usw.).
Was mich etwas stutzig macht, ist die Größe bei 300T Budget. Ist das nicht bissl wenig? Was kostet bei Euch der qm so in etwa? Da würde ich schon versuchen, mir auf der Gartenseite noch nen Meter dran zu gönnen, bei der Kohle.
Mbk8427.12.18 11:13
kaho674 schrieb:
Was mich etwas stutzig macht, ist die Größe bei 300T Budget. Ist das nicht bissl wenig? Was kostet bei Euch der qm so in etwa? Da würde ich schon versuchen, mir auf der Gartenseite noch nen Meter dran zu gönnen, bei der Kohle.Danke schon mal!
Du meinst man könnte mit 300k eher größer bauen? Das wäre ja erfreulich Ich komme aktuell auf ca. 125qm. Bei 2.200€/qm wären das 275.000€, und etwas Puffer für Dachstudio und Keller würde ich mir gerne noch zurückhalten
kaho67427.12.18 11:29
Tja, deswegen die Frage, was der qm so kostet. Das ist regional sehr unterschiedlich. Mit 2200 eher etwas über dem Durchschnitt. Dann bleibt es wohl in etwa so. Wisst Ihr schon, mit wem Ihr baut?
Nebenbei: Wegen der Kettenbauweise würde ich die Fenster alle so groß wie möglich machen, da Ihr jeden Lichtfetzen gebrauchen könnt. Besonders im WZ.
Nebenbei: Wegen der Kettenbauweise würde ich die Fenster alle so groß wie möglich machen, da Ihr jeden Lichtfetzen gebrauchen könnt. Besonders im WZ.
ypg27.12.18 13:00
Kannst Du uns mal die Maße des Grundstücks spendieren.... mit dem Baufenster? ich komme leider an den alten Thread nicht mehr ran.
Ähnliche Themen