Einfamilienhaus Grundriss 150m², Grundstücks: 420m²

4,80 Stern(e) 6 Votes
Zuletzt aktualisiert 20.11.2025
Sie befinden sich auf der Seite 9 der Diskussion zum Thema: Einfamilienhaus Grundriss 150m², Grundstücks: 420m²
>> Zum 1. Beitrag <<

D

djon25

Bist sicher das das mit den Rollladen funktioniert im OG ? Rollladenkasten braucht ca. 30cm + Fette. dann kannst Vorlauf. höchstens ein Fenster vom Boden aus gerechnet mit 1,40 - 1,50 einplanen. Das bedeutet aber das Du, je nachdem wie groß du bist, nicht rausschauen kannst ohne dich zu bücken.
Wir hatten auch mal 2,15 Drempel angedacht und unser Architekt hat gesagt das wir Max. 1,70 m hohe Fenster von Boden aus nehmen können und das es dann mit Rollladen nicht klappt. Daher wundert mich das bei Dir ? Oder sind die Rollladen von außen geplant ?
sorry, Sturz liegt bei 2.20m. Nein Rollladenkasten ist auf keinen Fall von außen geplant.



Mit deiner Sofaposition schaust du aber nicht gerade in den Garten .

Und, man geht ja eher mal von der Küche in den Garten (Kräuter, Sommer, Grillen, Getränk holen usw.) als vom Wohnzimmer aus.
das ist unser Sofa so wie wir den jetzt haben (wobei wir einen neuen brauchen) jedenfalls weiß ich auch nicht so recht in welche ecke mit dem (das Wohnzimmer ist soweit vorhanden, bis auf den Kamin)
 
D

djon25

Hier mal ein vernünftiges Bild.
Die Außenmaße sollten passen... Wenn du den interessant findest kann ich auch mal weitere Maße aufschreiben, aber sollte zumindest soweit funktionieren und ich finde die Ausrichtung schöner, sowohl vom Wohnzimmer als auch von den Kinderzimmern.

Danke für den Entwurf. ich glaube man müsste die Eingangstür dann bei deinem Entwurf weiter runter setzten, sonst müsste ich die Garage auf die andere Seite stellen.
Ebenso ist im Flur kaum an Abstellfläche vorhanden
irgendwie sagt mir aber der Entwurf noch nicht so zu
 
kbt09

kbt09

@Kisska86, die Treppe dürfte mit 300 cm zu kurz sein aber sonst schon mal ein guter Ansatz, wobei vermutlich auch der Eingang zu weit nach planoben gerutscht ist. Da könnte dann die Garage außerhalb des Baufensters sein.
 
kbt09

kbt09

So, ich habe auch mal geschoben. Dabei das Haus sogar nur 8 m breit gemacht, damit hat man dann rechts und links noch etwas Spielraum. Dafür 13 m lang.

Ich erzähle mal gar nicht viel dazu .. nur zur Küche, meinem besonderem Steckenpferd.

Da sind planrechts ausreichend Hochschränke für Kühlschrank, Backofen, Vorräte. In der Mitte der Hochschränke nur ca. 120 cm hoch eine hochgesetzte Spülmaschine und ein Schrank. Obendrauf ist dann ideale Abstellfläche für Kaffeemaschine etc.
Dazu Spüleninsel mit Sitzbank an der linken Wand und 2 Stühlen nach planunten. Planoben dann eine Kochfeldzeile, außerdem direkten Gartenausgang, Verbindung zum Essbereich durch Glasschiebetüren.

Unter der Treppe habe ich noch einen Bereich für Getränkekisten etc. angedacht. Im Hauswirtschaftsraum dann Technik, Wäsche, und ein bißchen allgemeines Lager.

Im Treppenauge sowohl im EG als auch im OG einen Schrank. Hier könnte ich mir jeweils eine zentrale Putzstation mit Staubsauger, Wischer etc. vorstellen

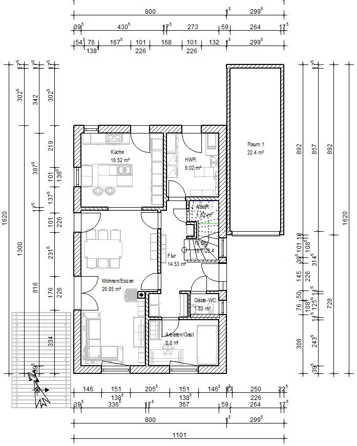
EG:

Grundriss eines Wohnhauses: Küche, Wohnen/Essen, Flur, HWR, Gäste-WC, Arbeits-/Gastzimmer.


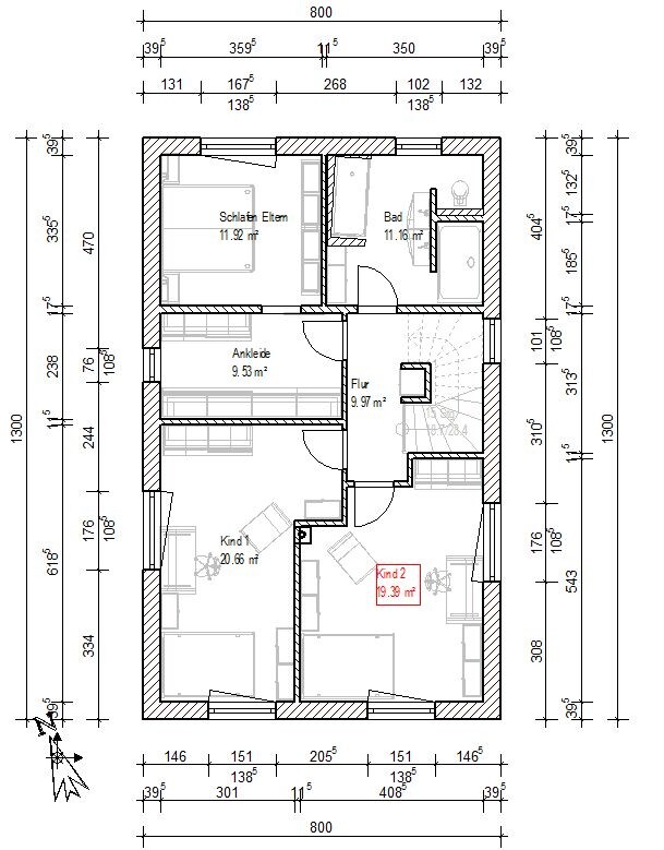
OG:

Grundriss eines Wohnhauses mit Elternschlafzimmer, Ankleide, Bad, Flur und zwei Kinderzimmer


Zweistöckiges graues Haus mit Dach, Fenstern, Anbau links, Pergola rechts, blauer Hintergrund.


Weißes, zweistöckiges Haus mit Garage, Carport und blauem Hintergrund.


Isometrischer Grundriss einer Mehrzimmer-Wohnung mit Küche, Bad, Flur, Schlaf- und Arbeitsbereichen.


Isometrischer Grundriss einer Wohnung mit Küche, Essbereich, Wohnzimmer, zwei Schlafzimmern und Bad.


Grundriss eines Hauses: Wohnzimmer, Essbereich mit Tisch, Küche, Spiraltreppe, Schlafzimmer, Balkon.
 
Zuletzt aktualisiert 20.11.2025
Im Forum Grundrissplanung / Grundstücksplanung gibt es 2535 Themen mit insgesamt 87977 Beiträgen


Ähnliche Themen zu Einfamilienhaus Grundriss 150m², Grundstücks: 420m²
Nr.ErgebnisBeiträge
1Entwurf Einfamilienhaus mit Garage/Carport - bitte um Bewertung 22
2 2 Vollgeschosse, Durchgang Garage, Hauswirtschaftsraum unter Treppe 25
3Grundriss-Entwurf Stadtvilla mit Doppelgarage - Seite 238
4Erster Entwurf Grundriss Einfamilienhaus (ca. 200qm) - Bitte um Feedback - Seite 646
5Grundriss, längliches Einfamilienhaus, integrierte Garage kein Keller 16
6Einfamilienhaus - Meinungen zu unserem Entwurf - Seite 19159
7Einfamilienhaus Entwurf - ca. 160-170qm / Innovatives Satteldach - Seite 671
83. Grundriss-Entwurf Neubau Einfamilienhaus 220qm 2 Vollgeschosse Dachterrasse - Seite 561
9Grundriss Einfamilienhaus 240 m² mit teilüberbauter Garage - Seite 296
10Grundriss Einfamilienhaus ca. 135 m³, Grundriss. Garage, 1,5 Geschossig, 4 Personen - Seite 211
11Entwurf EFH, 2 Vollgeschosse, Satteldach, kein Keller, Doppelgarage - Seite 331
12Grundriss-Entwurf: Einfamilienhaus; mit Keller; 800qm Grundstück - Seite 210
13Entwurf Grundriss Bungalow - Eure Meinungen bitte! 14
14Grundriss: 150qm Einfamilienhaus+Einliegerwohnung - Carport / Garage + Schuppen / Werkstatt - Seite 545
15Verbesserungvorschläge zu unserem Grundriss - Seite 226
16Technikraum in Garage einbauen? Ist dies möglich? - Seite 335
17Grundriss erster Entwurf - Meinungen erwünscht 21
18Entwurf Grundriss Bungalow Meinungen 22
19Einfamilienhaus-Grundriss Entwurf - Seite 223
20Planung Grundriss / Erster Entwurf für erstes Feedback 32

Oben