Einfamilienhaus Grundriss 150m², Grundstücks: 420m²

4,80 Stern(e) 6 Votes
Zuletzt aktualisiert 19.11.2025
Sie befinden sich auf der Seite 3 der Diskussion zum Thema: Einfamilienhaus Grundriss 150m², Grundstücks: 420m²
>> Zum 1. Beitrag <<

L

Legurit

Ich würde trotzdem das EG noch mal umgestalten und versuchen die Kritik und eure eigenen Schmerzpunkte zu adressieren (WC ohne Dusche, ordentliche Garderobe, weniger verwinkelter Hauswirtschaftsraum, Küche mit nutzbarem Sit...)zplatz
 
lastdrop

lastdrop

Sehe es wie die anderen, die Küche ist zu klein und zu unpraktisch mit den ganzen Türen. Außerdem würde ich mit einer "kleinen Küche [nicht] "klarkommen"" wollen, wenn ich ein Haus baue, sondern das schon passend zu machen.

Das gleiche gilt für die Dusche. Auch wenn LEDs nett sind, würde ich keine Dusche planen, die im Dunkeln steht.

Den Erker finde ich gut.
 
D

djon25

Ich würde trotzdem das EG noch mal umgestalten und versuchen die Kritik und eure eigenen Schmerzpunkte zu adressieren (WC ohne Dusche, ordentliche Garderobe, weniger verwinkelter Hauswirtschaftsraum, Küche mit nutzbarem Sit...)zplatz
Sehe ich auch so...
Wären wir zufrieden, so würde ich auch nicht um Ideen/ Meinungen fragen. Deshalb vielen Dank an euch!
Ich selber hatte einen ähnlichen Grundriss gezeichnet, jedoch ist bei mir die Küche größer / + keine Schiebetür

---------------------------

Ich bin eben irgendwie im post verrutscht und habe Deinen Anhang durch meinen ersetzt; darf natürlich nicht passieren. Entschuldige bitte !

Lade ihn bitte erneut hoch.

Danke + Grüße, Bauexperte
Bauexperte
 
Zuletzt bearbeitet von einem Moderator:
lastdrop

lastdrop

Eine Küche ohne Tür zum Ess-/Wohnzimmer wäre für mich ein No-go, wenn kleine Kinder da oder zu erwarten sind. Wenn man kleine Kinder hat verbringt man gewisse Zeit in der Küche, braucht Sichtkontakt und auch mal schnell Zugang zur Küche vom Sofa aus...

Ich kanns aber auch nicht verstehen, warum viele vier Sitzplätze 3m neben sechs Sitzplätzen brauchen, aber das ist ein anderes Thema.
 
B

Bauexperte

Hallo,

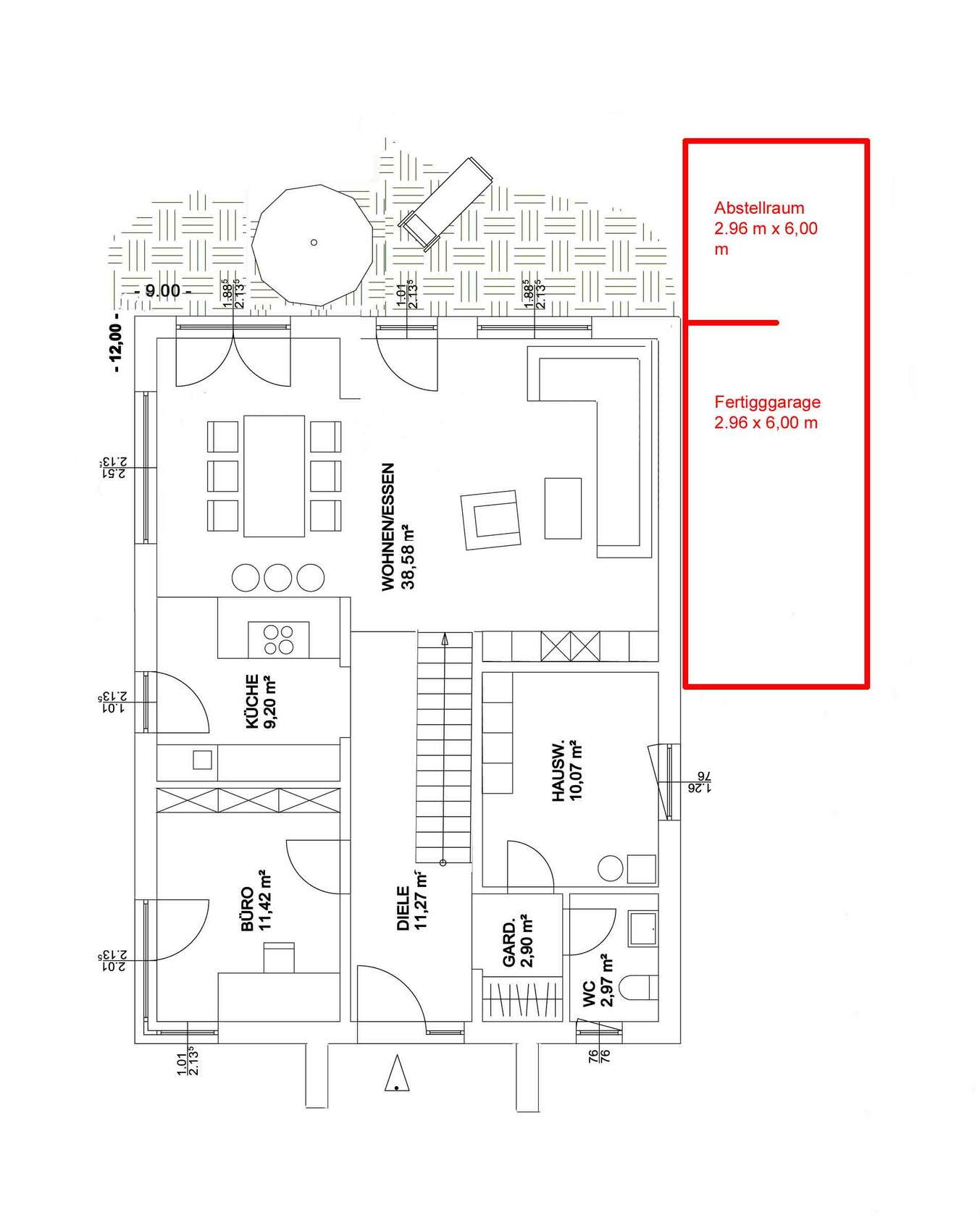
Leider darf die Garage nicht viel weiter nach hinten geschoben werden (hat uns der Architekt gesagt..)
Das hängt vmtl. mit den Aussagen des B-Planes zusammen. Häufig darf eine Garage das Baufenster nicht um mehr, als um 3.00 m überschreiten. So hat es Dein Planer imho auch gezeichnet; trotzdem habe ich schon bessere Entwürfe gesehen.

Ich habe gerade eine ähnliche Planung in Arbeit; allerdings 9.00 x 12.00 m; auch mit Nordausrichtung des Grundstückes. In der Anlage findest Du beispielhaft das EG mit vorgesetzter Eingangsüberdachung; diese ließe sich aber auch problemlos als Erker ausbilden und die dahinter liegenden Räume in selbigen einbeziehen. Gleichmäßig verteilt um 0.50 m in der Breite reduziert, sollte der Entwurf noch - ohne nennenswerte Einschränkung für die Räume - funktionieren; unter der Treppe ließe sich noch zusätzliche Abstellfläche für die Küche generieren. Im dazu gehörigen OG liegen die Kinderzimmer Richtung Westen; das Bad über dem Hauswirtschaftsraum, sogar ein Luftraum findet Platz. Westen deshalb, da die Kinder dann mehr Sonne abbekommen

Soll das Gebäude verblendet werden oder sollen die Ansichten eine Holzfassade erkennen lassen?

Grüße, Bauexperte

Grundriss eines Hauses mit Küche, Wohn-/Essbereich, Büro; roter Anbau mit Abstellraum und Garage.
 
D

djon25

Hallo,


Das hängt vmtl. mit den Aussagen des B-Planes zusammen. Häufig darf eine Garage das Baufenster nicht um mehr, als um 3.00 m überschreiten. So hat es Dein Planer imho auch gezeichnet; trotzdem habe ich schon bessere Entwürfe gesehen.

Ich habe gerade eine ähnliche Planung in Arbeit; allerdings 9.00 x 12.00 m; auch mit Nordausrichtung des Grundstückes. In der Anlage findest Du beispielhaft das EG mit vorgesetzter Eingangsüberdachung; diese ließe sich aber auch problemlos als Erker ausbilden und die dahinter liegenden Räume in selbigen einbeziehen. Gleichmäßig verteilt um 0.50 m in der Breite reduziert, sollte der Entwurf noch - ohne nennenswerte Einschränkung für die Räume - funktionieren; unter der Treppe ließe sich noch zusätzliche Abstellfläche für die Küche generieren. Im dazu gehörigen OG liegen die Kinderzimmer Richtung Westen; das Bad über dem Hauswirtschaftsraum, sogar ein Luftraum findet Platz. Westen deshalb, da die Kinder dann mehr Sonne abbekommen

Soll das Gebäude verblendet werden oder sollen die Ansichten eine Holzfassade erkennen lassen?

Grüße, Bauexperte
Vielen Dank für den Grundriss. Gefällt mir eigentlich ganz gut. Ist rechts neben der Treppe noch ein Schrank oder ist im Wohnzimmer?

Das Haus soll teilverklinkert werden.. bzw. steht es noch nicht 100% fest
 
Zuletzt aktualisiert 19.11.2025
Im Forum Grundrissplanung / Grundstücksplanung gibt es 2536 Themen mit insgesamt 87971 Beiträgen


Ähnliche Themen zu Einfamilienhaus Grundriss 150m², Grundstücks: 420m²
Nr.ErgebnisBeiträge
1Ideenfindung für Grundriss 120m2 Einfamilienhaus - Seite 212
2Gestaltung Grundriss. Was sind eure Meinungen / Vorschläge? 15
3Mal wieder Grundriss - Fertighaus kurz vor Bauantrag 22
4Grundriss 142 m² Eure Meinung ist gefragt? :) 18
5Grundriss 185qm Stadtvilla Tipps 22
6Grundriss für 150qm Einfamilienhaus mit Wohnzimmer nach Norden 21
7 2 Vollgeschosse, Durchgang Garage, Hauswirtschaftsraum unter Treppe 25
8Eure Meinung zum Grundriss für das EG - Seite 528
9Unser Grundriss von 120qm auf 469qm Grundstück - Seite 1273
10Eure Meinungen zu unserem Grundriss und Angebot - Seite 322
11Grundriss Einfamilienhaus. Bitte um Feedback bzw Ideen :-) - Seite 325
12Feedback zu Grundriss Einfamilienhaus erwünscht 18
13Anregung - Kritik Grundriss Einfamilienhaus 320qm 29
14Grundriss für ein 2-geschossiges Einfamilienhaus ohne Keller 17
15Grundriss Einfamilienhaus - Beurteilung 27
16Mit Erker in die Abstandsflächen - in diesem Fall zulässig? - Seite 330
17Grundriss - Eure Meinungen, Ideen und Vorschläge 31
18Grundriss Doppelhaushälfte (7x10) - Euer Know-How ist gefragt - Seite 534
19Grundriss-Entwurf Stadtvilla mit Doppelgarage - Seite 238
20Grundriss Erstskizze - Verbesserungswürdig? - Seite 542

Oben