Doppelhaushälfte mit ziemlich kleinen Kinderzimmern

4,60 Stern(e) 5 Votes
Zuletzt aktualisiert 19.11.2025
Sie befinden sich auf der Seite 3 der Diskussion zum Thema: Doppelhaushälfte mit ziemlich kleinen Kinderzimmern
>> Zum 1. Beitrag <<

M

Maria16

Wir hatten in der Wohnung so einen Mini-Abstellraum, ähnlich wie beim letzten Plan von der Küche aus und an einer Stelle erschlossen, wo der Mauerdurchbruch nicht weh tat. So fand ich es gut.

Wenn man für die 3 qm aber z. B. zusätzliche Wegefläche schaffen muss, würde ich (immer unter der Prämisse des beengten Platzes) darauf verzichten. Wenn sich die 3 qm stattdessen zum Flur hin öffnen und als Garderobe gestalten lassen, würde ich wohl auch eher auf die Speis verzichten. Wirklich Platz für Jacken und Schuhe habt ihr ja dort sonst nicht.
 
8

86bibo

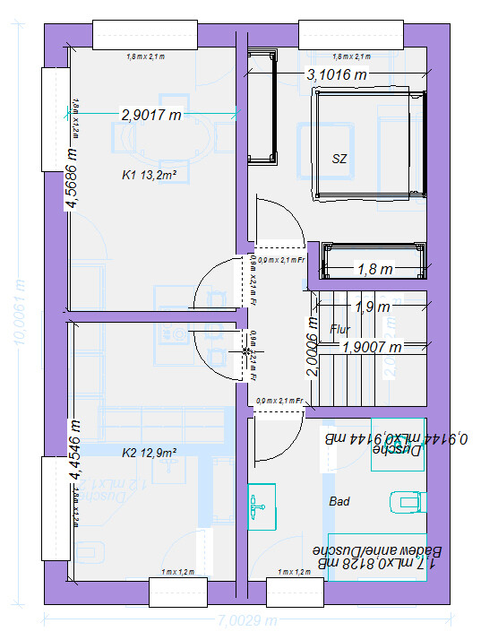
Der neue Plan gefällt mir im EG schon deutlich besser. Da liegen mMn Welten zwischen deinem ersten und diesem Plan. Im OG finde ich das Bad evtl. etwas zu groß (im Verhältnis). Evtl. kann man Kind 1 mit dem Bad tauschen und dann die Wände noch etwas optimieren, dass dort auch 12 m² rauskommen. Schmaler sollten die Kinderzimmer jedoch nicht werden, weil du sonst zwar evtl. mehr m² hast, diese aber nicht mehr gut möblieren kannst.
 
Musketier

Musketier

Meines Erachtens ist der auch besser, als der erste. An manchen Stellen klemmt es aber noch.

Mir sind die unterschiedlichen Türbreiten auf gefallen.
Sind das Raumspartüren im EG?

Die Speis dürfte durch Tür und Fenster nicht sinnvoll nutzbar sein.

Das Bad finde ich im Verhältnis auch zu groß.

Sicher, dass die Treppe auf der Größe ohne Mauer funktioniert?

Schau dir mal Doppelhaushälfte Grundrisse an. In der Regel sind die Treppen an der gemeinsamen Wand. Häufig auch als 2x 1/4 gewendelte Treppen.
Du hast ja Standardanforderungen. Vielleicht ist ja ein passender Grundriss für dich dabei.
 
Y

ypg

Wenn es hier so weitergeht, Fülle doch bitte mal den Fragebogen aus und stelle bitte alles mit Nordpfeil ein.
Und die Bilder bitte in Jpg-Qualität.
 
kaho674

kaho674

7x10m ist echt wenig. Ich finde 11m² bei dieser Hausgröße für Kinderzimmer angemessen. Bei so kleiner Grundfläche gibt es auch nur wenig Kompromisse zu machen. Man wählt immer die kleinste Treppe, die kleinste Tür, die kleinsten Möbel usw. Auch würde ich keinesfalls die Küche schließen. Das macht alles noch enger und kleiner.

Anbei die Standardtreppe mit 2m x 1,90m Mindestmaß. Für größere Kinderzimmers ist ein Kleiderschrank im Schlafzimmer nur 50 tief. Fenster im Eingangsbereich nicht optimal - schwierig zu lösen. Vielleicht hat jemand ne Idee.

Kern-Haus hat einen ähnlichen Entwurf -> Kern-Haus Doppel Twin.


Grundriss eines Wohnhauses mit offener Küche, Esstisch, Sofa, Bad mit Dusche, Flur, Abstellraum.

Grundriss einer Wohnung mit zwei Zimmern (K1, K2), Schlafzimmer (SZ), Bad, Flur, Küche.
 
Zuletzt aktualisiert 19.11.2025
Im Forum Grundrissplanung / Grundstücksplanung gibt es 2536 Themen mit insgesamt 87981 Beiträgen


Ähnliche Themen zu Doppelhaushälfte mit ziemlich kleinen Kinderzimmern
Nr.ErgebnisBeiträge
1Wasser dringt ins Haus - Kern-Haus Duotherm - Seite 749
2Umbau Kinderzimmer - Fenster in zwei Fenster aufteilen? 20
3Kern-Haus Erfahrungen (Ravensburg) - Seite 219
4Erfahrung mit Duotherm-Stein, verwendet von Kern-Haus - Seite 323
5auf welchen dieser Grundrisse können wir weiter aufbauen? 287
6Kern-Haus: Einschätzung zu einem Angebot für Einfamilienhaus im WW 13
7DuoTherm Mauerwerk von Kern-Haus - Erfahrungsberichte? 19
8Grundriss-Review Einfamilienhaus mit Keller auf leichter Hanglage 35
9Viebrockhaus vs Kern-Haus vs Weton bei Hochwasser und NRW.Bank 15
10Schalter für Rollläden am Fenster oder an der Tür? 38
11Grundrissfrage, Treppe, Fenster, Ausrichtung 12
12Grundriss Einfamilienhaus - Problemfall Küche 20
13Aufmusterung Elektro, Q2, Badfliesen, Drempel, bodentiefe Fenster 23
14Planungsbeginn neue Küche - Seite 222
15Grundriss Neubau Einfamilienhaus: Fenster/Türen/Innenwände Größe/Anordnung ok? - Seite 220
16Bungalow 135qm: Grundriss + Fenster - Seite 10104
17Heizung in Küche "notwendig"? - Seite 435
18OG Stadtville optimieren. Fenster Bodentief - Seite 13104
19Erstentwurf Nolte Küche - Meinungen und Verbesserungsvorschläge - Seite 430
20Offene Küche bereut oder doch das Non plus Ultra? - Seite 18104

Oben