
kaho674
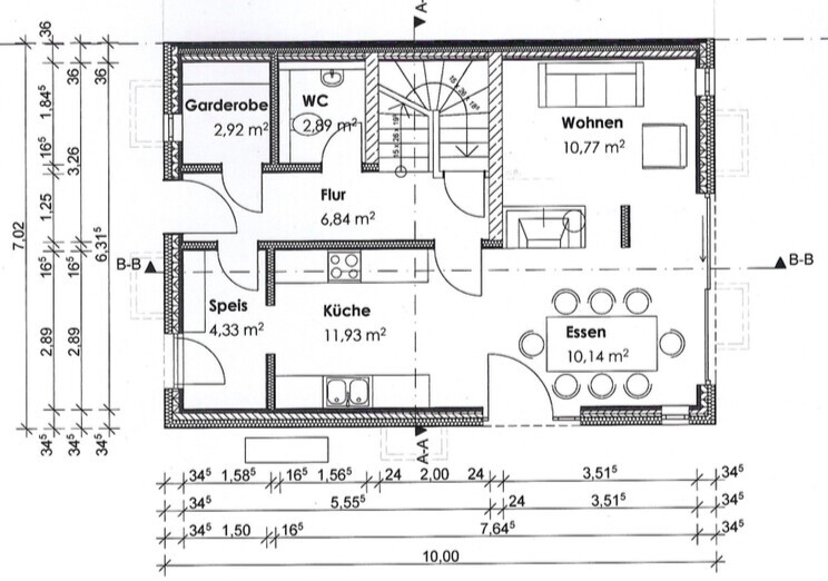
Die Wand und die Tür hatte ich jetzt auch nicht als Einsparpotenzial gesehen. Hier geht es ja wohl eher um m². Die Frage lautet überspitzt, Bau ich lieber 2x 10m² oder 1x 20 für beide, wenn einfach nicht mehr Platz da ist?.. würde ich nicht an einer Trennwand und einer zusätzlichen Tür "sparen".