C
ChristianZ625.05.19 10:22Hallo zusammen,
Wir sind dabei ein Haus für uns zu planen, wir haben bereits 2 Kinder (5 und 1,5), das dritte kommt im November.
Wir haben uns schon viele Gedanken zu Grundrissen gemacht, mittlerweile einen Entwurf mit dem wir sehr zufrieden sind. Aber da man irgendwann ja blind für seine eigenen Kreationen wird und wir auch noch keine Erfahrung im Hausbau haben... erhoffe ich mir hier noch tolle Anregungen.
Bebauungsplan/Einschränkungen
Größe des Grundstücks: 985qm
Hang: nein
Grundflächenzahl: 0,25
Geschossflächenzahl: Nicht festgesetzt (2 Vollgeschosse möglich)
Baufenster, Baulinie und -grenze:
Anzahl Stellplatz: 2 Carports
Geschosse: 2 Vollgeschosse
Dachform: Walm
Stilrichtung: Stadtvilla
Ausrichtung: Garten Süden
Maximale Höhen/Begrenzungen: Keine Einschränkungen
weitere Vorgaben: Carports, Nebenanlagen etc. dürfen nur im Baufenster sein.
Anforderungen der Bauherren
Stilrichtung, Dachform, Gebäudetyp: Siehe oben
Keller, Geschosse: Kein Keller, 2 Vollgeschosse
Anzahl der Personen, Alter: 5 Personen (31, 30, 5, 1, 0)
Raumbedarf im EG, OG: Siehe Grundriss
Büro: Familiennutzung oder Homeoffice?: Gästezimmer
Schlafgäste pro Jahr: 10
offene oder geschlossene Architektur: offen
konservativ oder moderne Bauweise: modern
offene Küche, Kochinsel: ja
Anzahl Essplätze: 8+
Kamin: ja
Musik/Stereowand: nein
Balkon, Dachterrasse: nein
Garage, Carport: 2 Carport
Hausentwurf
Von wem stammt die Planung: Do-it-Yourself
Was gefällt besonders? Warum?: Die offene Bauweise, Lufträume, Großer Wohnbereich
Was gefällt nicht? Warum?: nichts
Preisschätzung lt Architekt/Planer: 500.000€ Inkl Baunebenkosten und zzgl Außengestaltung
Persönliches Preislimit fürs Haus, inkl Ausstattung: 600.000€ Inkl Baunebenkosten und zzgl Außengestaltung
favorisierte Heiztechnik: Keine Wünsche
Wenn Ihr verzichten müsst, auf welche Details/Ausbauten
-könnt Ihr verzichten:
-könnt Ihr nicht verzichten:
Wir müssen stand jetzt auf nichts verzichten, daher erübrigt sich diese Frage
Warum ist der Entwurf so geworden, wie er jetzt ist? ZB
Auf Basis von eigenen Wünschen.
Was ist die wichtigste/grundlegende Frage zum Grundriss in 130 Zeichen zusammengefasst?
Was macht Sinn?
Was nicht?
Änderungsvorschläge?
Außenanlagen Tipps auch gern gesehen.
Vielen Dank schon mal für euer Feedback!




Wir sind dabei ein Haus für uns zu planen, wir haben bereits 2 Kinder (5 und 1,5), das dritte kommt im November.
Wir haben uns schon viele Gedanken zu Grundrissen gemacht, mittlerweile einen Entwurf mit dem wir sehr zufrieden sind. Aber da man irgendwann ja blind für seine eigenen Kreationen wird und wir auch noch keine Erfahrung im Hausbau haben... erhoffe ich mir hier noch tolle Anregungen.
Bebauungsplan/Einschränkungen
Größe des Grundstücks: 985qm
Hang: nein
Grundflächenzahl: 0,25
Geschossflächenzahl: Nicht festgesetzt (2 Vollgeschosse möglich)
Baufenster, Baulinie und -grenze:
- Sieht man auf den Bildern, ist „schief“ geschnitten, habe eine vereinfachte Rechteckige Version erstellt, die nötigen Fenster/Abstände werden eingehalten
- Breite Straße 17,5m
- Beginn Baufenster: 5m von Straße, Tiefe 20m, Breite Grundstück 18m
- Breite Grundstück Mitte Baufenster: 18,50m
- Breite Grundstück Rückseite: 21m
- Länge Grundstück: ca. 50m
Anzahl Stellplatz: 2 Carports
Geschosse: 2 Vollgeschosse
Dachform: Walm
Stilrichtung: Stadtvilla
Ausrichtung: Garten Süden
Maximale Höhen/Begrenzungen: Keine Einschränkungen
weitere Vorgaben: Carports, Nebenanlagen etc. dürfen nur im Baufenster sein.
Anforderungen der Bauherren
Stilrichtung, Dachform, Gebäudetyp: Siehe oben
Keller, Geschosse: Kein Keller, 2 Vollgeschosse
Anzahl der Personen, Alter: 5 Personen (31, 30, 5, 1, 0)
Raumbedarf im EG, OG: Siehe Grundriss
Büro: Familiennutzung oder Homeoffice?: Gästezimmer
Schlafgäste pro Jahr: 10
offene oder geschlossene Architektur: offen
konservativ oder moderne Bauweise: modern
offene Küche, Kochinsel: ja
Anzahl Essplätze: 8+
Kamin: ja
Musik/Stereowand: nein
Balkon, Dachterrasse: nein
Garage, Carport: 2 Carport
Hausentwurf
Von wem stammt die Planung: Do-it-Yourself
Was gefällt besonders? Warum?: Die offene Bauweise, Lufträume, Großer Wohnbereich
Was gefällt nicht? Warum?: nichts
Preisschätzung lt Architekt/Planer: 500.000€ Inkl Baunebenkosten und zzgl Außengestaltung
Persönliches Preislimit fürs Haus, inkl Ausstattung: 600.000€ Inkl Baunebenkosten und zzgl Außengestaltung
favorisierte Heiztechnik: Keine Wünsche
Wenn Ihr verzichten müsst, auf welche Details/Ausbauten
-könnt Ihr verzichten:
-könnt Ihr nicht verzichten:
Wir müssen stand jetzt auf nichts verzichten, daher erübrigt sich diese Frage
Warum ist der Entwurf so geworden, wie er jetzt ist? ZB
Auf Basis von eigenen Wünschen.
Was ist die wichtigste/grundlegende Frage zum Grundriss in 130 Zeichen zusammengefasst?
Was macht Sinn?
Was nicht?
Änderungsvorschläge?
Außenanlagen Tipps auch gern gesehen.
Vielen Dank schon mal für euer Feedback!
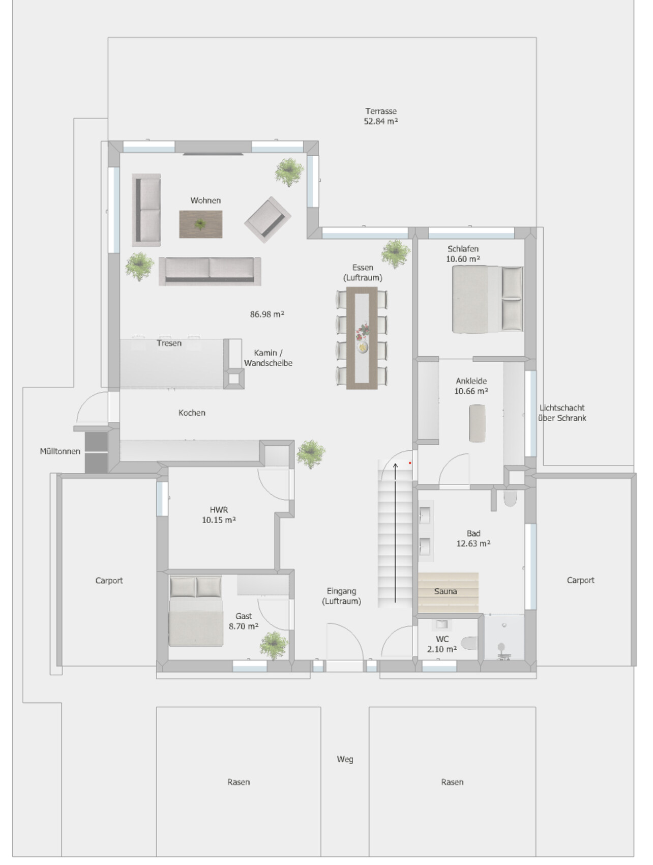
Bemaße bitte den Grundriss und zeichne Möbel im Maßstab ein.
Zum Grundriss entweder ihr habt Puppenmöbel eingezeichnet und der Grundriss funktioniert nicht oder euer Budget reicht nicht, da ihr einen Palast baut
Der Grundriss ist für 3 Kinder mit 15, 13, 10 gut, mit Kleinkind und Baby läuft ihr euch die Hacken ab.
Würde die Galerie rauswerfen. Jetzt müsst ihr Abends leise sein und später eure Kinder.
Zum Grundriss entweder ihr habt Puppenmöbel eingezeichnet und der Grundriss funktioniert nicht oder euer Budget reicht nicht, da ihr einen Palast baut
Der Grundriss ist für 3 Kinder mit 15, 13, 10 gut, mit Kleinkind und Baby läuft ihr euch die Hacken ab.
Würde die Galerie rauswerfen. Jetzt müsst ihr Abends leise sein und später eure Kinder.
C
ChristianZ625.05.19 11:04haydee schrieb:
Bemaße bitte den Grundriss und zeichne Möbel im Maßstab ein.
Zum Grundriss entweder ihr habt Puppenmöbel eingezeichnet und der Grundriss funktioniert nicht oder euer Budget reicht nicht, da ihr einen Palast baut
Der Grundriss ist für 3 Kinder mit 15, 13, 10 gut, mit Kleinkind und Baby läuft ihr euch die Hacken ab.
Würde die Galerie rauswerfen. Jetzt müsst ihr Abends leise sein und später eure Kinder.Danke für Dein Feedback
Hier ein paar Maßketten, die Möbel sind im Maßstab eingezeichnet.
So lange das Baby Nachts „bespaßt“ werden will schläft es unten. Die anderen beiden sind dann 6,5 und 2,5 wenn das Haus fertig ist - die schlafen durch.
Zur Galerie: Wir hatten vor die Lärm-Nachteile etwas zu reduzieren, indem wir im OG mit Schallschutztüren arbeiten.
Ansonsten ist das ein generelles PRO/Contra Galerie.
Sicher? Der Tisch sieht sehr schmal aus
Bett ebenfalls. Ihr habt je nach Bettgestell ca. 60 cm von der Kante bis zur Wand. Nix mit Beistellbett und Platz.
Garderobe fehlt.
Wo z.b Spielsachen für die Kinder im EG unterbringen?
Hoffentlich wissen eure Kinder das sie mit 2,5 durchschlafen müssen. Machen nicht alle und es gibt Phasen auch später das es nicht funktioniert.
Bei drei die Ab und An schlechte Nächte haben ist man viel unterwegs
Das Budget reicht nicht
Bett ebenfalls. Ihr habt je nach Bettgestell ca. 60 cm von der Kante bis zur Wand. Nix mit Beistellbett und Platz.
Garderobe fehlt.
Wo z.b Spielsachen für die Kinder im EG unterbringen?
Hoffentlich wissen eure Kinder das sie mit 2,5 durchschlafen müssen. Machen nicht alle und es gibt Phasen auch später das es nicht funktioniert.
Bei drei die Ab und An schlechte Nächte haben ist man viel unterwegs
Das Budget reicht nicht
C
ChristianZ625.05.19 11:33haydee schrieb:
Sicher? Der Tisch sieht sehr schmal ausDu hattest recht, der hatte nur 85cm, habe es angepassst in meiner Planung (aber die 15cm tun ja nicht weh)
haydee schrieb:
Bett ebenfalls. Ihr habt je nach Bettgestell ca. 60 cm von der Kante bis zur Wand. Nix mit Beistellbett und Platz.Die Wand wo das Bett den steht ist 3,40m breit. Bei einem 1,80m Bett bleiben also pro Seite 80cm übrig. Reicht! Wir haben jetzt weniger.
haydee schrieb:
Garderobe fehlt.Nein, schau mal die Einbuchtung am Hauswirtschaftsraum.
haydee schrieb:
Wo z.b Spielsachen für die Kinder im EG unterbringen?Hat man heutzutage im EG einen Extra Abstellraum für Spielzeug??
Nein mal im Ernst, entweder wird etwas Platz im Hauswirtschaftsraum dafür geschaffen, oder der Schrank im Gästezimmer... oder es steht halt im Wohnzimmer bisschen was rum, stört doch niemanden
Oder, so wie es sein soll, zumindest wenn älter, alles schön nach oben
haydee schrieb:
Hoffentlich wissen eure Kinder das sie mit 2,5 durchschlafen müssen. Verzeih mir wenn es nicht so ist... aber hier frisch ins Forum zu kommen und das Gefühl zu haben gleich mit herablassenden Aussagen konfrontiert zu werden... Nicht schön.
haydee schrieb:
Machen nicht alle und es gibt Phasen auch später das es nicht funktioniert.
Bei drei die Ab und An schlechte Nächte haben ist man viel unterwegsNatürlich ist uns bewusst dass die Kinder nicht immer durchschlafen, ob 2 oder 5 ist da egal. Dann müssen wir halt ran und die paar Meter mehr laufen. Wir sind ja noch jung und haben es uns ausgesucht Eltern zu sein...
In vielen Fällen ist es doch der Gang in die Küche zum Milch machen... Wenn wir dann oben sind müssten wir erst runter... und wieder hoch... Oder nen Wasserkocher/Mikrowelle im Schlafzimmer??? Nein danke!
haydee schrieb:
Das Budget reicht nichtWie kommst du darauf? Ich habe diesen Grundriss (mit nicht signifikanten Abweichungen) von 6 verschiedenen Firmen Schlüsselfertig kalkulieren lassen und alle bewegen sich in diesem Rahmen.
Ähnliche Themen