ᐅ 8x12m Grundriss Ideensuche
Erstellt am: 30.05.16 11:07
P
Painkiller30.05.16 11:07Hallo zusammen,
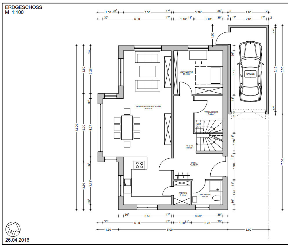
wir haben das Glück ein Grundstück in einem Neubaugebiet zu bekommen. Allerdings ist das Baufenster wohl eher für eine Doppelhausbebauung ausgelegt als für ein freistehendes Einfamilienhaus. Da unsere Nachbarn und wir wohl lieber das freistehende Einfamilienhaus wollen, suchen wir Lösungen/Verbesserungen für den Grundriss des Architekten. Da wir in der Familie ein Bauunternehmen haben und dadurch einen "Preisnachlass" bekommen sind wir etwas an den Architekten gebunden auch wenn dieser eben nicht überall das Optimum raus holt.
Daher an euch die Bitte mal über den Grundriss zu schauen, ich habe noch einen weiteren Entwurf von mir mit Angehängt. Für Verbesserungen, Meinungen bin ich gerne zu haben
Aber erst mal die geforderte Liste:
Bebauungsplan/Einschränkungen: Bebauungsplan im Anhang
Größe des Grundstücks: 446m²
Hang: nicht vorhanden
Grundflächenzahl: 0,4
Geschossflächenzahl: 0,8
Baufenster 11x13,5m durch Grenzabstand aber Max. 8,5x13,5m
Baulinie und -grenze:
Randbebauung:
Anzahl Stellplatz: 1,5
Geschossigkeit: 2
Dachform: alle Dachformen
Stilrichtung: modern
Ausrichtung: Nordwest
Maximale Höhen/Begrenzungen: Traufhöhe 6m
Anforderungen der Bauherren
Stilrichtung, Dachform, Gebäudetyp: modernes Einfamilienhaus mit Walmdach
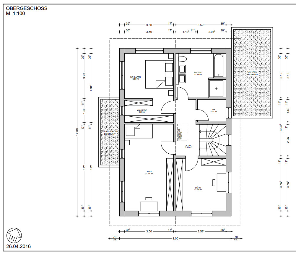
Keller, Geschosse: kein Keller dafür zwei Vollgeschosse plus Speicher
Anzahl der Personen, Alter: drei Personen plus Hund (32/30/1/1)
Raumbedarf im EG, OG: EG -> wünschenswert wäre das Gästezimmer sowie die Speisekammer
Büro: Familiennutzung
Schlafgäste pro Jahr: ~40 Übernachtungen von Familienmitgliedern
offene oder geschlossene Architektur: offener Wohn/Ess/Küchen Bereich
konservativ oder moderne Bauweise: Ein bisschen von beidem
offene Küche, Kochinsel: Koch(halb)Insel
Anzahl Essplätze: 5
Kamin: keiner
Musik/Stereowand: "normale" TV Wand
Balkon, Dachterrasse: keiner
Garage, Carport: Garage wie im Plan
Nutzgarten, Treibhaus: keine
weitere Wünsche/Besonderheiten/Tagesablauf:
Hausentwurf
Von wem stammt die Planung:
-Architekt eines Bauunternehmens
-Anhang ohne genaue Maße Do-it-Yourself von Euch mit Floorplanner
Was gefällt besonders?
Ausrichtung der Wohnräume Richtung Süd/Südwest, Platz unter der Treppe genutzt
Was gefällt nicht?
Eingang seitlich. Dadurch das der Zugang seitlich ist und die Garage nach hinten versetzt ist wird das kein schönes Einparken und man kann nicht mal nen Fußabtreter vor die Tür legen...
nur 3,5m Breite des Wohnzimmers. Hier wären 4m wünschenswert. Allerdings gefällt der Flur Treppe nicht unbedingt beim eigenen Entwurf weil die Treppe so verbaut und der Flur recht lang.
Preisschätzung lt Architekt/Planer: ~330000€ Schlüsselfertig
Persönliches Preislimit fürs Haus, inkl Ausstattung: 330000
favorisierte Heiztechnik: Luft-Wasser-Wärmepumpe mit Kontrollierte-Wohnraumlüftung
Wenn Ihr verzichten müsst, auf welche Details/Ausbauten
-könnt Ihr verzichten: evtl Garage um damit 50cm näher an die Grundstücksgrenze zu kommen.
-könnt Ihr nicht verzichten: das Gästezimmer im EG wäre wünschenswert




wir haben das Glück ein Grundstück in einem Neubaugebiet zu bekommen. Allerdings ist das Baufenster wohl eher für eine Doppelhausbebauung ausgelegt als für ein freistehendes Einfamilienhaus. Da unsere Nachbarn und wir wohl lieber das freistehende Einfamilienhaus wollen, suchen wir Lösungen/Verbesserungen für den Grundriss des Architekten. Da wir in der Familie ein Bauunternehmen haben und dadurch einen "Preisnachlass" bekommen sind wir etwas an den Architekten gebunden auch wenn dieser eben nicht überall das Optimum raus holt.
Daher an euch die Bitte mal über den Grundriss zu schauen, ich habe noch einen weiteren Entwurf von mir mit Angehängt. Für Verbesserungen, Meinungen bin ich gerne zu haben
Aber erst mal die geforderte Liste:
Bebauungsplan/Einschränkungen: Bebauungsplan im Anhang
Größe des Grundstücks: 446m²
Hang: nicht vorhanden
Grundflächenzahl: 0,4
Geschossflächenzahl: 0,8
Baufenster 11x13,5m durch Grenzabstand aber Max. 8,5x13,5m
Baulinie und -grenze:
Randbebauung:
Anzahl Stellplatz: 1,5
Geschossigkeit: 2
Dachform: alle Dachformen
Stilrichtung: modern
Ausrichtung: Nordwest
Maximale Höhen/Begrenzungen: Traufhöhe 6m
Anforderungen der Bauherren
Stilrichtung, Dachform, Gebäudetyp: modernes Einfamilienhaus mit Walmdach
Keller, Geschosse: kein Keller dafür zwei Vollgeschosse plus Speicher
Anzahl der Personen, Alter: drei Personen plus Hund (32/30/1/1)
Raumbedarf im EG, OG: EG -> wünschenswert wäre das Gästezimmer sowie die Speisekammer
Büro: Familiennutzung
Schlafgäste pro Jahr: ~40 Übernachtungen von Familienmitgliedern
offene oder geschlossene Architektur: offener Wohn/Ess/Küchen Bereich
konservativ oder moderne Bauweise: Ein bisschen von beidem
offene Küche, Kochinsel: Koch(halb)Insel
Anzahl Essplätze: 5
Kamin: keiner
Musik/Stereowand: "normale" TV Wand
Balkon, Dachterrasse: keiner
Garage, Carport: Garage wie im Plan
Nutzgarten, Treibhaus: keine
weitere Wünsche/Besonderheiten/Tagesablauf:
Hausentwurf
Von wem stammt die Planung:
-Architekt eines Bauunternehmens
-Anhang ohne genaue Maße Do-it-Yourself von Euch mit Floorplanner
Was gefällt besonders?
Ausrichtung der Wohnräume Richtung Süd/Südwest, Platz unter der Treppe genutzt
Was gefällt nicht?
Eingang seitlich. Dadurch das der Zugang seitlich ist und die Garage nach hinten versetzt ist wird das kein schönes Einparken und man kann nicht mal nen Fußabtreter vor die Tür legen...
nur 3,5m Breite des Wohnzimmers. Hier wären 4m wünschenswert. Allerdings gefällt der Flur Treppe nicht unbedingt beim eigenen Entwurf weil die Treppe so verbaut und der Flur recht lang.
Preisschätzung lt Architekt/Planer: ~330000€ Schlüsselfertig
Persönliches Preislimit fürs Haus, inkl Ausstattung: 330000
favorisierte Heiztechnik: Luft-Wasser-Wärmepumpe mit Kontrollierte-Wohnraumlüftung
Wenn Ihr verzichten müsst, auf welche Details/Ausbauten
-könnt Ihr verzichten: evtl Garage um damit 50cm näher an die Grundstücksgrenze zu kommen.
-könnt Ihr nicht verzichten: das Gästezimmer im EG wäre wünschenswert
S
schlumpi12330.05.16 19:41also vorab, dein eigener Entwurf gefällt mir nicht. Ich persönlich bin kein freund von "Fresswarzen"-sprich Erkern, vernünftig nutzen kann man sie nicht und sie kosten Geld.. An Deiner stelle würde ich den weglassen und das Haus um einen halben Meter oder auch etwas mehr verbreitern, der Mehrpreis dürfte sich in grenzen halten. Die Garage wäre mir zu eng.Muss es eine Garage sein oder würde es auch ein Carport tun ? Vielleicht etwas länger so das der Hauseingang überdacht ist ?
P
Painkiller31.05.16 07:02Wir nutzen den Erker um etwas über das Baufenster zu gehen außerdem lockert er den 3,5m Schlauch von Wohn/EssBereich etwas auf.
Die Garage wäre schon wünschenswert. Soll letztendlich eine Fertiggarage werden mit einer Innenbreite von 2,86m, sicher nicht gerade großzügig aber wenigstens ein sicherer Platz für Motorrad und eine kleine Werkbank.
Wenn es für den Grundriss sehr hilfreich wäre könnte man natürlich über die Garage reden, aber das Baufenster lässt eben nicht mehr als 8,5m in der Breite zu. Daher ist es eben fraglich ob der Verzicht überhaupt etwas bringt.
Die Garage wäre schon wünschenswert. Soll letztendlich eine Fertiggarage werden mit einer Innenbreite von 2,86m, sicher nicht gerade großzügig aber wenigstens ein sicherer Platz für Motorrad und eine kleine Werkbank.
Wenn es für den Grundriss sehr hilfreich wäre könnte man natürlich über die Garage reden, aber das Baufenster lässt eben nicht mehr als 8,5m in der Breite zu. Daher ist es eben fraglich ob der Verzicht überhaupt etwas bringt.
Painkiller schrieb:
Wir nutzen den Erker um etwas über das Baufenster zu gehen außerdem lockert er den 3,5m Schlauch von Wohn/EssBereich etwas auf.Ist sowas erlaubt?
P
Painkiller31.05.16 07:09Laut Landesbauordnung (§5 Abs. 6) ja, wenn nicht größer als 1,5x5m...
Ähnliche Themen