Guten Tag liebe Foristen!
Ich habe kürzlich das Hausbau-Forum entdeckt und bin begeistert ob des konstruktiven Feedbacks, mit dem die Grundrissentwürfen von den Forumsteilnehmern diskutiert werden.
Ich habe vor einigen Monaten ein Grundstück für ein freistehendes Einfamilienhaus in einer gewachsenen Wohnlage im Speckgürtel einer deutschen Großstadt erworben. Es ist nunmehr geplant, auf diesem Grundstück ein hochwertiges Einfamilienhaus zu errichten. Die Planung soll mit Architekt erfolgen, der Bau ist mit Einzelgewerkvergabe beabsichtigt. Es soll außerdem ein Bauleiter engagiert werden.
Im Laufe der letzten Wochen habe ich in iterativen Schritten mittlerweile drei Entwürfe mit dem Architekten diskutiert. Der jetzt vorliegende dritte Entwurf gefällt mir grundsätzlich bereits recht gut. Zugleich bin ich kein Profi und baue das erste Mal in meinem Leben. Sicher gibt es Aspekte, die ich im Grundriss übersehe oder noch nicht als Problem identifiziert habe. Für jegliches Feedback der Forumsmitglieder bin ich extrem dankbar!

Bebauungsplan/Einschränkungen
Größe des Grundstücks 780 QM
Hang NEIN
Grundflächenzahl 0,4
Geschossflächenzahl 0,4
Baufenster, Baulinie und -grenze BAUFENSTER: 14 METER BREIT, 15 METER TIEF; BAULINIE 5 METER TIEF IM GRUNDSTÜCK, BAUGRENZE 20 METER TIEF IM GRUNDSTÜCK
Randbebauung LINKS UND RECHTS STEHEN ZWEI FREISTEHENDE EINFAMILIENHÄUSER
Anzahl Stellplatz LINKS UND RECHTS DIREKT AN DER GRENZE IST JEWEILS EINE GARAGE VON 3 METERN BREITE GEPLANT
Geschossigkeit 1 VOLLGESCHOSS; IM OBERGESCHOSS DÜRFEN 75% DER FLÄCHE DES ERDGESCHOSS NICHT ÜBERSCHRITTEN WERDEN
Dachform KEINE VORGABEN
Stilrichtung (NEO)KLASSISCH
Ausrichtung DAS GRUNDSTÜCK IST OST/WEST ORIENTIERT (Straßenseite RICHTUNG WESTEN, GARTENSEITE RICHTUNG OSTEN)
Maximale Höhen/Begrenzungen FIRSTHÖHE 8,60 METER
weitere Vorgaben
Anforderungen der Bauherren
Stilrichtung, Dachform, Gebäudetyp STILRICHTUNG NEOKLASSISCH, GEBÄUDETYP FREISTEHENDES EINFAMILIENHAUS
Keller, Geschosse VOLL AUSGEBAUTER KELLER, ERDGESCHOSS, OBERGESCHOSS
Anzahl der Personen, Alter GEPLANT FÜR FAMILIE MIT 3 KINDERN (DERZEIT NOCH KINDERLOS, ALLERDINGS SOLL DAS HAUS PERSPEKTIVISCH FÜR FAMILIENGRÜNDUNG BEREITS GEPLANT UND GEBAUT WERDEN)
Raumbedarf im EG, OG 3 KINDERZIMMER, HOMEOFFICE, GROSSZÜGIGER WOHNBEREICH, GROSSZÜGIGER ANKLEIDERAUM
Büro: Familiennutzung oder Homeoffice? HOMEOFFICE
Schlafgäste pro Jahr NICHT HÄUFIG
offene oder geschlossene Architektur EHER OFFEN
konservativ oder moderne Bauweise EHER KONSERVATIV/KLASSISCH
offene Küche, Kochinsel KOCHINSEL
Anzahl Essplätze 8-10
Kamin JA
Musik/Stereowand JA
Balkon, Dachterrasse NEIN
Garage, Carport JA, 2 STÜCK
Nutzgarten, Treibhaus NEIN
weitere Wünsche/Besonderheiten/Tagesablauf, gern auch Begründungen, warum dieses oder das nicht sein soll
Hausentwurf
Von wem stammt die Planung: ARCHITEKT
-Planer eines Bauunternehmens
-Architekt
-Do-it-Yourself
Was gefällt besonders? Warum? INSGESAMT GEFÄLLT DER GRUNDRISS SCHON GANZ GUT
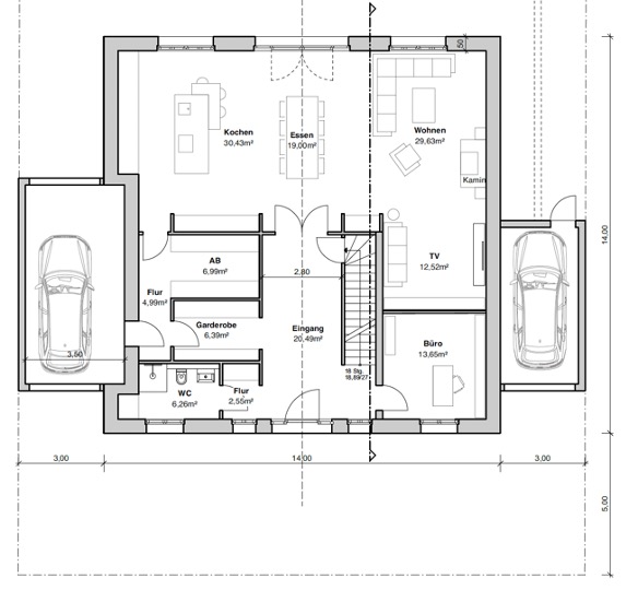
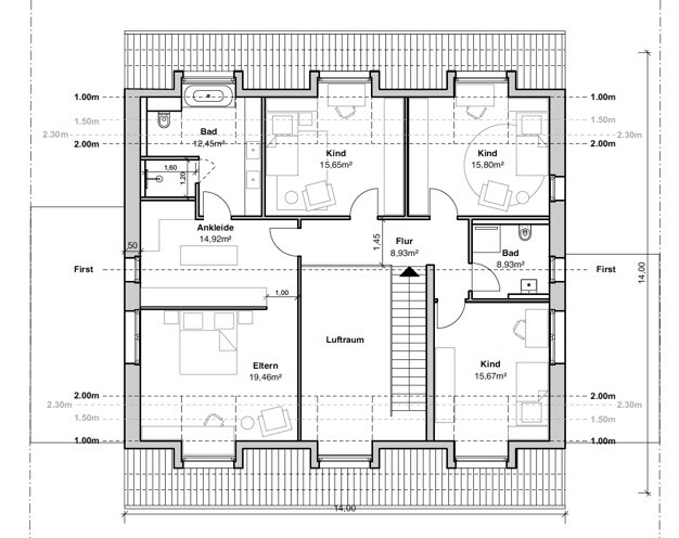
Was gefällt nicht? Warum? OFFENE FRAGE: ELTERNSCHLAFZIMMER LIEGT AKTUELL ZUR Straßenseite (ALLERDINGS HANDELT ES SICH UM EINE WENIG BEFAHRENE STRASSE IN EINEM WOHNGEBIET)
Preisschätzung lt Architekt/Planer: Baukosten VON CIRCA 3.400 EUR PRO QUADRATMETER WOHNFLÄCHE ZUZÜGLICH 20% NEBENKOSTEN (ARCHITEKT, STATIKER, VERMESSER, BAULEITER, ETC.) ZUZÜGLICH ERWERB GRUNDSTÜCK ZUZÜGLICH MÖBILIAR
Persönliches Preislimit fürs Haus, inkl Ausstattung:
favorisierte Heiztechnik: RECHERCHE LÄUFT NOCH
Wenn Ihr verzichten müsst, auf welche Details/Ausbauten
-könnt Ihr verzichten:
-könnt Ihr nicht verzichten:
Warum ist der Entwurf so geworden, wie er jetzt ist? ZB
Standardentwurf vom Planer?
Entsprechende/Welche Wünsche wurden vom Architekten umgesetzt? ES HANDELT SICH UM DEN DRITTEN ENTWURF DES ARCHITEKTEN. BEISPIELSWEISE WAR VORHER ZWISCHENZEITLICH EIN WINTERGARTEN GEPLANT, DIE KÜCHE WURDE VERGRÖSSERT, DAS RAUMPROGRAMM IM OBERGESCHOSS GEÄNDERT UND ANDERE FINETUNING-ANPASSUNG VORGENOMMEN
Ein Gemisch aus vielen Beispielen aus div. Magazinen...
Was macht ihn in Euren Augen besonders gut oder schlecht?
Was ist die wichtigste/grundlegende Frage zum Grundriss in 130 Zeichen zusammengefasst?
BIN MIT DEM VORLIEGENDEN GRUNDRISS DES ARCHITEKTEN (DIESER IST DER DRITTE ENTWURF, NACHDEM ICH ZUVOR ZAHLREICHES FINETUNING VORGENOMMEN HABE) GRUNDSÄTZLICH BEREITS ZUFRIEDEN, JEDOCH BEGEISTERT VON DER KOMPETENZ IN DIESEM FORUM UND DAHER FÜR JEGLICHES KRITISCHES FEEDBACK ODER BEOBACHTUNGEN SEHR DANKBAR

Ich habe kürzlich das Hausbau-Forum entdeckt und bin begeistert ob des konstruktiven Feedbacks, mit dem die Grundrissentwürfen von den Forumsteilnehmern diskutiert werden.
Ich habe vor einigen Monaten ein Grundstück für ein freistehendes Einfamilienhaus in einer gewachsenen Wohnlage im Speckgürtel einer deutschen Großstadt erworben. Es ist nunmehr geplant, auf diesem Grundstück ein hochwertiges Einfamilienhaus zu errichten. Die Planung soll mit Architekt erfolgen, der Bau ist mit Einzelgewerkvergabe beabsichtigt. Es soll außerdem ein Bauleiter engagiert werden.
Im Laufe der letzten Wochen habe ich in iterativen Schritten mittlerweile drei Entwürfe mit dem Architekten diskutiert. Der jetzt vorliegende dritte Entwurf gefällt mir grundsätzlich bereits recht gut. Zugleich bin ich kein Profi und baue das erste Mal in meinem Leben. Sicher gibt es Aspekte, die ich im Grundriss übersehe oder noch nicht als Problem identifiziert habe. Für jegliches Feedback der Forumsmitglieder bin ich extrem dankbar!
Bebauungsplan/Einschränkungen
Größe des Grundstücks 780 QM
Hang NEIN
Grundflächenzahl 0,4
Geschossflächenzahl 0,4
Baufenster, Baulinie und -grenze BAUFENSTER: 14 METER BREIT, 15 METER TIEF; BAULINIE 5 METER TIEF IM GRUNDSTÜCK, BAUGRENZE 20 METER TIEF IM GRUNDSTÜCK
Randbebauung LINKS UND RECHTS STEHEN ZWEI FREISTEHENDE EINFAMILIENHÄUSER
Anzahl Stellplatz LINKS UND RECHTS DIREKT AN DER GRENZE IST JEWEILS EINE GARAGE VON 3 METERN BREITE GEPLANT
Geschossigkeit 1 VOLLGESCHOSS; IM OBERGESCHOSS DÜRFEN 75% DER FLÄCHE DES ERDGESCHOSS NICHT ÜBERSCHRITTEN WERDEN
Dachform KEINE VORGABEN
Stilrichtung (NEO)KLASSISCH
Ausrichtung DAS GRUNDSTÜCK IST OST/WEST ORIENTIERT (Straßenseite RICHTUNG WESTEN, GARTENSEITE RICHTUNG OSTEN)
Maximale Höhen/Begrenzungen FIRSTHÖHE 8,60 METER
weitere Vorgaben
Anforderungen der Bauherren
Stilrichtung, Dachform, Gebäudetyp STILRICHTUNG NEOKLASSISCH, GEBÄUDETYP FREISTEHENDES EINFAMILIENHAUS
Keller, Geschosse VOLL AUSGEBAUTER KELLER, ERDGESCHOSS, OBERGESCHOSS
Anzahl der Personen, Alter GEPLANT FÜR FAMILIE MIT 3 KINDERN (DERZEIT NOCH KINDERLOS, ALLERDINGS SOLL DAS HAUS PERSPEKTIVISCH FÜR FAMILIENGRÜNDUNG BEREITS GEPLANT UND GEBAUT WERDEN)
Raumbedarf im EG, OG 3 KINDERZIMMER, HOMEOFFICE, GROSSZÜGIGER WOHNBEREICH, GROSSZÜGIGER ANKLEIDERAUM
Büro: Familiennutzung oder Homeoffice? HOMEOFFICE
Schlafgäste pro Jahr NICHT HÄUFIG
offene oder geschlossene Architektur EHER OFFEN
konservativ oder moderne Bauweise EHER KONSERVATIV/KLASSISCH
offene Küche, Kochinsel KOCHINSEL
Anzahl Essplätze 8-10
Kamin JA
Musik/Stereowand JA
Balkon, Dachterrasse NEIN
Garage, Carport JA, 2 STÜCK
Nutzgarten, Treibhaus NEIN
weitere Wünsche/Besonderheiten/Tagesablauf, gern auch Begründungen, warum dieses oder das nicht sein soll
Hausentwurf
Von wem stammt die Planung: ARCHITEKT
-Planer eines Bauunternehmens
-Architekt
-Do-it-Yourself
Was gefällt besonders? Warum? INSGESAMT GEFÄLLT DER GRUNDRISS SCHON GANZ GUT
Was gefällt nicht? Warum? OFFENE FRAGE: ELTERNSCHLAFZIMMER LIEGT AKTUELL ZUR Straßenseite (ALLERDINGS HANDELT ES SICH UM EINE WENIG BEFAHRENE STRASSE IN EINEM WOHNGEBIET)
Preisschätzung lt Architekt/Planer: Baukosten VON CIRCA 3.400 EUR PRO QUADRATMETER WOHNFLÄCHE ZUZÜGLICH 20% NEBENKOSTEN (ARCHITEKT, STATIKER, VERMESSER, BAULEITER, ETC.) ZUZÜGLICH ERWERB GRUNDSTÜCK ZUZÜGLICH MÖBILIAR
Persönliches Preislimit fürs Haus, inkl Ausstattung:
favorisierte Heiztechnik: RECHERCHE LÄUFT NOCH
Wenn Ihr verzichten müsst, auf welche Details/Ausbauten
-könnt Ihr verzichten:
-könnt Ihr nicht verzichten:
Warum ist der Entwurf so geworden, wie er jetzt ist? ZB
Standardentwurf vom Planer?
Entsprechende/Welche Wünsche wurden vom Architekten umgesetzt? ES HANDELT SICH UM DEN DRITTEN ENTWURF DES ARCHITEKTEN. BEISPIELSWEISE WAR VORHER ZWISCHENZEITLICH EIN WINTERGARTEN GEPLANT, DIE KÜCHE WURDE VERGRÖSSERT, DAS RAUMPROGRAMM IM OBERGESCHOSS GEÄNDERT UND ANDERE FINETUNING-ANPASSUNG VORGENOMMEN
Ein Gemisch aus vielen Beispielen aus div. Magazinen...
Was macht ihn in Euren Augen besonders gut oder schlecht?
Was ist die wichtigste/grundlegende Frage zum Grundriss in 130 Zeichen zusammengefasst?
BIN MIT DEM VORLIEGENDEN GRUNDRISS DES ARCHITEKTEN (DIESER IST DER DRITTE ENTWURF, NACHDEM ICH ZUVOR ZAHLREICHES FINETUNING VORGENOMMEN HABE) GRUNDSÄTZLICH BEREITS ZUFRIEDEN, JEDOCH BEGEISTERT VON DER KOMPETENZ IN DIESEM FORUM UND DAHER FÜR JEGLICHES KRITISCHES FEEDBACK ODER BEOBACHTUNGEN SEHR DANKBAR
H
Hausbautraum2017.11.21 16:38Für mich als Laie erstmal ein Traumhaus :-)
Das einzige was ich nicht gut finde, sind die 2 engen Garageneinfahrten.
Aussteigen sieht für mich in der linken Garage ungemütlich aus.
Bestimmt geht das irgendwie, aber passt für mich nicht zur Preisklasse des Hauses.
Das einzige was ich nicht gut finde, sind die 2 engen Garageneinfahrten.
Aussteigen sieht für mich in der linken Garage ungemütlich aus.
Bestimmt geht das irgendwie, aber passt für mich nicht zur Preisklasse des Hauses.
Puuh, das ist schon ziemlich groß, dass man überlegen könnte, ob es eher kühl sein soll oder die Sache mit der Gemütlichkeit nicht bedacht wurde.
Es gibt einige Sachen, die man eleganter lösen könnte (zb die Flur/Abstell/Garderoben-Situation) inkl. Küchenschränke.
Die Garderoben/Entree/Treppenlage-Situation verspricht bei drei Kindern, dass die große Diele immer recht sandig und mit vertretenen Straßenschmutz ist, wo man dann, wenn man das Haus auch im OG bewohnt, also die Treppe häufig am Tag auf Socken benutzt, durch Sand läuft.
Allerdings, bevor ich einen Ansatz zur Garderobe aufzeige:
Ist Euch bewusst, dass ihr kein Fenster Richtung Süden habt? Kein Fenster im großen Aufenthaltsraum, das die Sonne einfängt?
Bei einer Raumtiefe von ca. 6 Metern bzw dieser Hausgröße ist in der Mitte des Hauses duster - auch tagsüber, auch am Wochenende, wahrscheinlich auch nur „naturhell“ im Sommer.
(Am 01.11.21 ging in Hamburg die Sonne im SO auf und im SW geht sie zur Zeit unter. ) …
Bitte stell mal den Lage/Grundstücksplan ein.
Es gibt einige Sachen, die man eleganter lösen könnte (zb die Flur/Abstell/Garderoben-Situation) inkl. Küchenschränke.
Die Garderoben/Entree/Treppenlage-Situation verspricht bei drei Kindern, dass die große Diele immer recht sandig und mit vertretenen Straßenschmutz ist, wo man dann, wenn man das Haus auch im OG bewohnt, also die Treppe häufig am Tag auf Socken benutzt, durch Sand läuft.
Allerdings, bevor ich einen Ansatz zur Garderobe aufzeige:
Ist Euch bewusst, dass ihr kein Fenster Richtung Süden habt? Kein Fenster im großen Aufenthaltsraum, das die Sonne einfängt?
Bei einer Raumtiefe von ca. 6 Metern bzw dieser Hausgröße ist in der Mitte des Hauses duster - auch tagsüber, auch am Wochenende, wahrscheinlich auch nur „naturhell“ im Sommer.
(Am 01.11.21 ging in Hamburg die Sonne im SO auf und im SW geht sie zur Zeit unter. ) …
Bitte stell mal den Lage/Grundstücksplan ein.
Die 3.400 könnten etwas knapp werden. Zu dem Haus gehört ja ehr sehr gehobene Ausstattung. Gestern hatte doch jemand aktuelle Preise genannt für etwas besseren Standard.
Ich schließe mich YPG an.
Das ist groß fast schon zu groß. Die Garagen mußten irgendwie rangepresst werden, damit sie überhaupt auf das Grundstück passen. Die Garagen sind unpraktisch vor allem die rechte ist recht schmal.
Im EG kein Südlicht, sehr viel Verkehrsfläche
Ich würde Wohnen / TV abtrennbar gestalten. Bei 5 Leuten ist immer viel Trubel und Krach. Einen Raum mit Türe schadet nicht.
OG Mich stört die Größe der Kinderzimmer. Im Verhältnis zum Haus zu klein. Kinderzimmer ungefähr so groß wie Ankleide, und kleiner als Flur
Überlegt das OG zu spiegeln. Die Kinder brauchen Licht und ihr zum Schlafen ehr Kühle
Ich schließe mich YPG an.
Das ist groß fast schon zu groß. Die Garagen mußten irgendwie rangepresst werden, damit sie überhaupt auf das Grundstück passen. Die Garagen sind unpraktisch vor allem die rechte ist recht schmal.
Im EG kein Südlicht, sehr viel Verkehrsfläche
Ich würde Wohnen / TV abtrennbar gestalten. Bei 5 Leuten ist immer viel Trubel und Krach. Einen Raum mit Türe schadet nicht.
OG Mich stört die Größe der Kinderzimmer. Im Verhältnis zum Haus zu klein. Kinderzimmer ungefähr so groß wie Ankleide, und kleiner als Flur
Überlegt das OG zu spiegeln. Die Kinder brauchen Licht und ihr zum Schlafen ehr Kühle
Garagen sind viel zu klein bzw. eng.
Wenn es wirklich hochwertig sein soll werden die 3,800€ /qm nicht ausreichen. Gerade in der heutigen Zeit in der 0815 schon bei min 2.500€ liegt.
Die meisten Bauten die ich kenne und in guten Lagen sind kosten schon 5-stellig pro m2.
Für Raumaufteilung usw. gibt es hier im Forum Andere die sich kompetenter äußern können.
Wenn es um Netzwerk, Steuerung, Bewässerung… usw. geht kann ich helfen
Wenn es wirklich hochwertig sein soll werden die 3,800€ /qm nicht ausreichen. Gerade in der heutigen Zeit in der 0815 schon bei min 2.500€ liegt.
Die meisten Bauten die ich kenne und in guten Lagen sind kosten schon 5-stellig pro m2.
Für Raumaufteilung usw. gibt es hier im Forum Andere die sich kompetenter äußern können.
Wenn es um Netzwerk, Steuerung, Bewässerung… usw. geht kann ich helfen
_MPCAP_ schrieb:
Ein Gemisch aus vielen Beispielen aus div. Magazinen...
Was macht ihn in Euren Augen besonders gut oder schlecht?Sortiere diese beiden Zeilen anders herum, dann siehst Du die Antwort.Das ist furchterregend. Ein Labyrinth, welches auch statisch nicht paßt. Groß, symmetrisch, sonst nichts. An einen Architekten glaube ich hier nicht, noch nicht einmal an einen Bauzeichner. Das "linke" Auto ist rechtsgelenkt, hoffe ich.
https://www.instagram.com/11antgmxde/
https://www.linkedin.com/company/bauen-jetzt/
Ähnliche Themen