ᐅ Grundriss - Planung Einfamilienhaus 2 Vollgeschosse - Stadtvilla
Erstellt am: 12.11.20 06:19
E
exto1791Bebauungsplan/Einschränkungen
Größe des Grundstücks: 550m²
Hang: von Straße bis Ende Grundstück ca. 1 Meter Steigung
Grundflächenzahl: Garage auf Grenze, Abstand Terrasse 2,5m zum Nachbar - ansonsten frei siehe Grundstück anbei
Geschossflächenzahl: 2 Vollgeschosse
Baufenster, Baulinie und -grenze: sehr frei, siehe Grundstück anbei
Anzahl Stellplatz: 1 Großraumgarage
Geschossigkeit: 2 Vollgeschosse
Dachform: Walmdach
Stilrichtung : Stadtvilla - modern
Anforderungen der Bauherren
Stilrichtung, Dachform, Gebäudetyp: Stadtvilla mit Walmdach
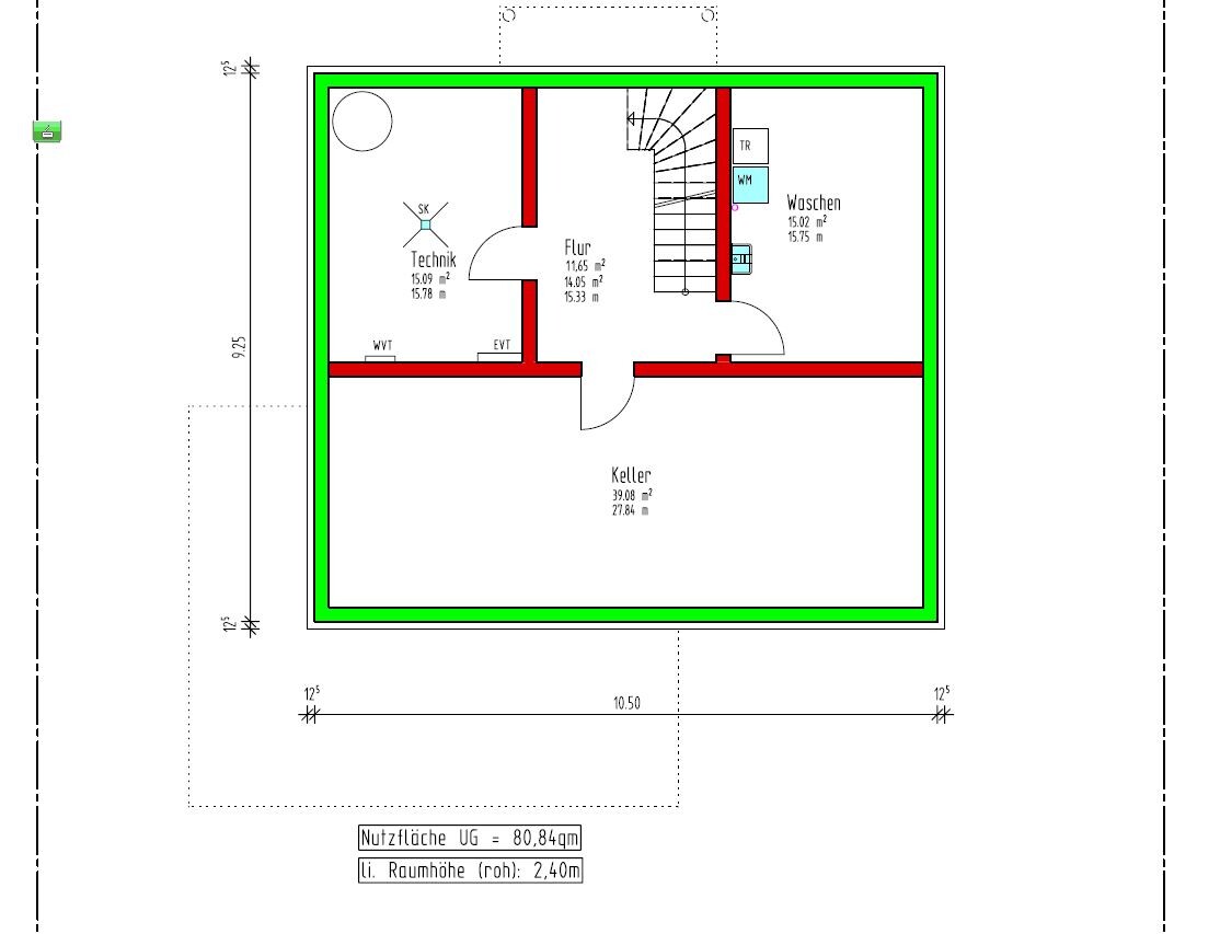
Keller, Geschosse: mit Keller und 2 Vollgeschossen
Anzahl der Personen: 2 Personen Mitte 20/Ende 20 - geplant 2 Kinder
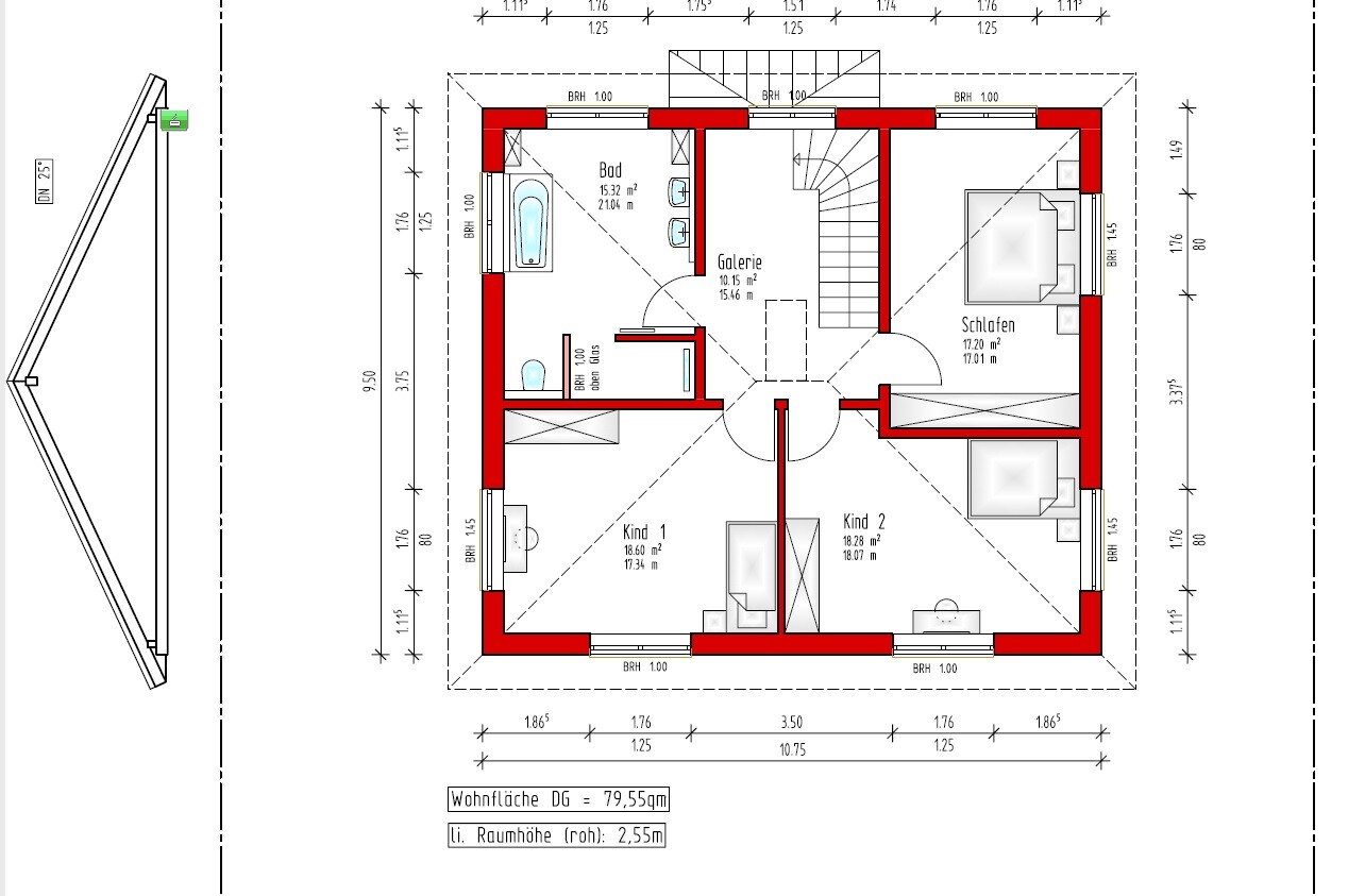
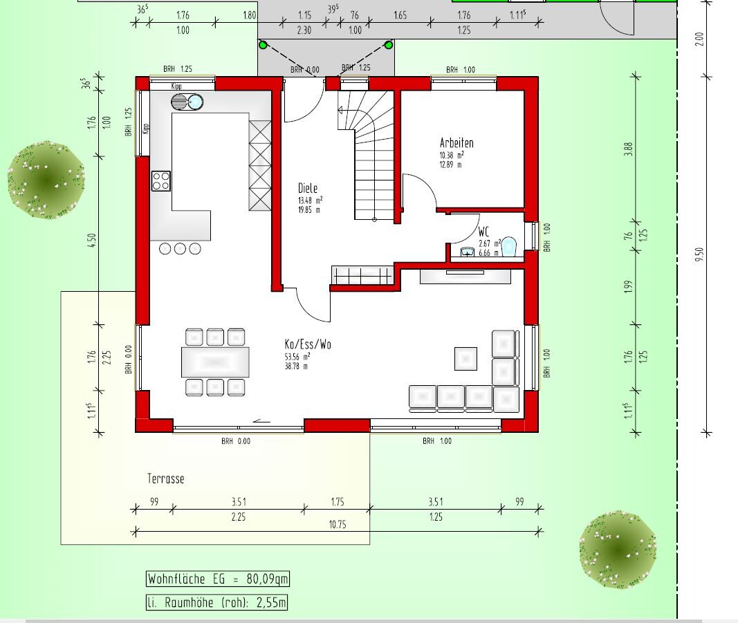
Raumbedarf im EG, OG: siehe Grundrisse
Büro: Familiennutzung oder Homeoffice? Büro/Homeoffice
Schlafgäste pro Jahr: -
offene oder geschlossene Architektur: -
konservativ oder moderne Bauweise: 70% konservativ - 30% modern
offene Küche, Kochinsel: offene Küche ohne Kochinsel
Anzahl Essplätze: 8
Kamin: entfällt
Musik/Stereowand: entfällt
Balkon, Dachterrasse: entfällt
Garage, Carport: Doppelgarage
Nutzgarten, Treibhaus: Ziergarten
weitere Wünsche/Besonderheiten/Tagesablauf, gern auch Begründungen, warum dieses oder das nicht sein soll
Hausentwurf
Von wem stammt die Planung:
-Planer eines Bauunternehmens: GU
-Architekt: -
-Do-it-Yourself: Grundriss mit persönlichen Präferenzen teils selbst entworfen
Was gefällt besonders? Haben aktuell nichts mehr auszusetzen
Was gefällt nicht? Vordach nicht bündig zum Fenster in Diele OG - Machbarkeit leider nicht anders möglich
Preisschätzung lt Architekt/Planer: Festpreis 450.000 ohne Grundstück und ohne Baunebenkosten
Persönliches Preislimit fürs Haus, inkl Ausstattung: 450.000 ohne Grundstück und ohne Baunebenkosten
favorisierte Heiztechnik: Luft-Wasser-Wärmepumpe + Kontrollierte-Wohnraumlüftung
Wenn Ihr verzichten müsst, auf welche Details/Ausbauten
-könnt Ihr verzichten: Budget erreicht, müssen nicht mehr verzichten und nichts mehr aufmustern
-könnt Ihr nicht verzichten: s.o.
Warum ist der Entwurf so geworden, wie er jetzt ist? ZB
Standardentwurf vom Planer? Entwürfe von gefühlt 100 Grundrissen miteinander verglichen und sich selbst daraus in Abstimmung mit unserem aktuellen GU den Traumgrundriss gebastelt
Entsprechende/Welche Wünsche wurden vom Architekten umgesetzt? alles
Ein Gemisch aus vielen Beispielen aus div. Magazinen...: auch 🙂
Was macht ihn in Euren Augen besonders gut oder schlecht? sehr praktisch bzw. konservativ umgesetzt, kinderfreundlich, genug Stellfläche/Lagerfläche im Haus, trotzdem modern
Was ist die wichtigste/grundlegende Frage zum Grundriss in 130 Zeichen zusammengefasst?
Da ich hier auch sehr aktiv bin im Forum und gerne anderen behilflich bin in Themen wie Grundrissplanung, Finanzierung etc. würde ich gerne nun unser Vorhaben hier einstellen und eure Meinung hierzu hören. Ich hoffe, dass es euch auch gefällt. Vielleicht findet sich ja doch noch ein gravierender Fehler oder etwas, was man auf die schnelle "verbessern" könnte, sollte es uns zusprechen.
Wir haben sehr viel Zeit investiert in unsere Planung. Seit März/April 2020 sind wir aktiv am planen - vom Fertighausanbieter und anfänglichen 120m² bis zum jetzigen regionalen Massivbauer bei 160m². Es steckt sehr viel Mühe in unserer Planung und wir hoffen, dass sich dies ausgezahlt hat und während des Baus/Abschluss des Baus auch auszahlen wird.
Wir werden in den nächsten 2-3 Wochen den Vertrag unterzeichnen und werden nun das Angebot, sowie auch den Grundriss und unsere geänderte Bau und Leistungsbeschreibung freigeben und alles zur Vertragsunterschrift vorbereiten lassen.
Wir bauen Massiv mit einem regionalen Generalunternehmen. Baubeginn Mai 2021.










Größe des Grundstücks: 550m²
Hang: von Straße bis Ende Grundstück ca. 1 Meter Steigung
Grundflächenzahl: Garage auf Grenze, Abstand Terrasse 2,5m zum Nachbar - ansonsten frei siehe Grundstück anbei
Geschossflächenzahl: 2 Vollgeschosse
Baufenster, Baulinie und -grenze: sehr frei, siehe Grundstück anbei
Anzahl Stellplatz: 1 Großraumgarage
Geschossigkeit: 2 Vollgeschosse
Dachform: Walmdach
Stilrichtung : Stadtvilla - modern
Anforderungen der Bauherren
Stilrichtung, Dachform, Gebäudetyp: Stadtvilla mit Walmdach
Keller, Geschosse: mit Keller und 2 Vollgeschossen
Anzahl der Personen: 2 Personen Mitte 20/Ende 20 - geplant 2 Kinder
Raumbedarf im EG, OG: siehe Grundrisse
Büro: Familiennutzung oder Homeoffice? Büro/Homeoffice
Schlafgäste pro Jahr: -
offene oder geschlossene Architektur: -
konservativ oder moderne Bauweise: 70% konservativ - 30% modern
offene Küche, Kochinsel: offene Küche ohne Kochinsel
Anzahl Essplätze: 8
Kamin: entfällt
Musik/Stereowand: entfällt
Balkon, Dachterrasse: entfällt
Garage, Carport: Doppelgarage
Nutzgarten, Treibhaus: Ziergarten
weitere Wünsche/Besonderheiten/Tagesablauf, gern auch Begründungen, warum dieses oder das nicht sein soll
Hausentwurf
Von wem stammt die Planung:
-Planer eines Bauunternehmens: GU
-Architekt: -
-Do-it-Yourself: Grundriss mit persönlichen Präferenzen teils selbst entworfen
Was gefällt besonders? Haben aktuell nichts mehr auszusetzen
Was gefällt nicht? Vordach nicht bündig zum Fenster in Diele OG - Machbarkeit leider nicht anders möglich
Preisschätzung lt Architekt/Planer: Festpreis 450.000 ohne Grundstück und ohne Baunebenkosten
Persönliches Preislimit fürs Haus, inkl Ausstattung: 450.000 ohne Grundstück und ohne Baunebenkosten
favorisierte Heiztechnik: Luft-Wasser-Wärmepumpe + Kontrollierte-Wohnraumlüftung
Wenn Ihr verzichten müsst, auf welche Details/Ausbauten
-könnt Ihr verzichten: Budget erreicht, müssen nicht mehr verzichten und nichts mehr aufmustern
-könnt Ihr nicht verzichten: s.o.
Warum ist der Entwurf so geworden, wie er jetzt ist? ZB
Standardentwurf vom Planer? Entwürfe von gefühlt 100 Grundrissen miteinander verglichen und sich selbst daraus in Abstimmung mit unserem aktuellen GU den Traumgrundriss gebastelt
Entsprechende/Welche Wünsche wurden vom Architekten umgesetzt? alles
Ein Gemisch aus vielen Beispielen aus div. Magazinen...: auch 🙂
Was macht ihn in Euren Augen besonders gut oder schlecht? sehr praktisch bzw. konservativ umgesetzt, kinderfreundlich, genug Stellfläche/Lagerfläche im Haus, trotzdem modern
Was ist die wichtigste/grundlegende Frage zum Grundriss in 130 Zeichen zusammengefasst?
Da ich hier auch sehr aktiv bin im Forum und gerne anderen behilflich bin in Themen wie Grundrissplanung, Finanzierung etc. würde ich gerne nun unser Vorhaben hier einstellen und eure Meinung hierzu hören. Ich hoffe, dass es euch auch gefällt. Vielleicht findet sich ja doch noch ein gravierender Fehler oder etwas, was man auf die schnelle "verbessern" könnte, sollte es uns zusprechen.
Wir haben sehr viel Zeit investiert in unsere Planung. Seit März/April 2020 sind wir aktiv am planen - vom Fertighausanbieter und anfänglichen 120m² bis zum jetzigen regionalen Massivbauer bei 160m². Es steckt sehr viel Mühe in unserer Planung und wir hoffen, dass sich dies ausgezahlt hat und während des Baus/Abschluss des Baus auch auszahlen wird.
Wir werden in den nächsten 2-3 Wochen den Vertrag unterzeichnen und werden nun das Angebot, sowie auch den Grundriss und unsere geänderte Bau und Leistungsbeschreibung freigeben und alles zur Vertragsunterschrift vorbereiten lassen.
Wir bauen Massiv mit einem regionalen Generalunternehmen. Baubeginn Mai 2021.
Guten Morgen!
Bzgl der Küchenplanung würde ich dich nochmal ins entsprechende Forum schicken wollen 🙂 Die gefällt mir noch nicht so. Zudem würde ich ungern mit den Einkäufen erst um den Block gehen wollen. Vielleicht kann man da noch eine sinnvolle Abkürzung integrieren und den Garderobenschrank auch nicht ans Ende der Diele setzen?
OG finde ich gut
Bzgl der Küchenplanung würde ich dich nochmal ins entsprechende Forum schicken wollen 🙂 Die gefällt mir noch nicht so. Zudem würde ich ungern mit den Einkäufen erst um den Block gehen wollen. Vielleicht kann man da noch eine sinnvolle Abkürzung integrieren und den Garderobenschrank auch nicht ans Ende der Diele setzen?
OG finde ich gut
Ysop*** schrieb:
Guten Morgen!
Bzgl der Küchenplanung würde ich dich nochmal ins entsprechende Forum schicken wollen 🙂 Die gefällt mir noch nicht so. Zudem würde ich ungern mit den Einkäufen erst um den Block gehen wollen. Vielleicht kann man da noch eine sinnvolle Abkürzung integrieren und den Garderobenschrank auch nicht ans Ende der Diele setzen?
OG finde ich gutYes, danke für den Hinweis.
Die Küche ist tatsächlich noch nicht mal annähernd so wie wir es wollen. Die Küchenplanung wird die nächsten Wochen/Monate folgen. Wir müssen uns hier mal mit einem Küchenstudio zusammen setzen und schauen, was wir hier hin bekommen 🙂
Garderobe: Die Diele ist leider nicht breit genug um einen Garderobenschrank sinnvoll am Anfang der Diele einzubringen. Wir haben am Geländer der Treppe Platz für einen großen Schuhschrank mit Sitzbank. Hier hatten wir überlegt eine Nische mit Betonwänden einzurichten anstatt dem Geländer. Allerdings wirkte dadurch die Diele dann sehr dunkel und "gepresst", wodurch wir uns für eine Nische am Ende der Diele entschieden haben. Da haben wir nun Platz für all unsere Mäntel, Mützen etc. - Bei einer sehr breiten Diele wäre dies auf jeden Fall sinnvoll gewesen! Ansonsten könnte man nur eine Nische im Bereich der Küche planen, allerdings wird dann die Küche unförmig, was uns nicht gefällt.
Eventuell planen wir aber noch eine Türe von der Diele in die Küche, um so direkten Zugang zu haben. Dies ist aber dann Sache der Küchenplanung die noch folgt 🙂
Danke für den Input!
exto1791 schrieb:
Eventuell planen wir aber noch eine Türe von der Diele in die Küche, um so direkten Zugang zu haben. Dies ist aber dann Sache der Küchenplanung die noch folgt 🙂Das würde ich auf jeden Fall machen. Wenn du die Einkäufe / Getränkekisten rein trägst, willst du nicht "abstellen - Schuhe aus - weiterlaufen - Schuhe wieder an - nächsten holen" , aber vermutlich auch nicht mit nassen Strassenschuhen über das schöne Parkett im Wohnzimmer laufen ...
Das Eckfenster aus der Küche würde sich doch eigentlich auch im Bad oben anbieten, würde die Fassade etwas harmonischer machen. Die Badewanne könnte dann ja auch leicht schräg gestellt werden, was den Raum auch etwas auflockern kann, Platz ist ja vorhanden.
RomeoZwo schrieb:
Das würde ich auf jeden Fall machen. Wenn du die Einkäufe / Getränkekisten rein trägst, willst du nicht "abstellen - Schuhe aus - weiterlaufen - Schuhe wieder an - nächsten holen" , aber vermutlich auch nicht mit nassen Strassenschuhen über das schöne Parkett im Wohnzimmer laufen ...
Das Eckfenster aus der Küche würde sich doch eigentlich auch im Bad oben anbieten, würde die Fassade etwas harmonischer machen. Die Badewanne könnte dann ja auch leicht schräg gestellt werden, was den Raum auch etwas auflockern kann, Platz ist ja vorhanden.Hast du völlig recht! Ist auf jeden Fall eine Überlegung wert. Vorteil den wir noch haben: Wir haben die Diele und den kompletten Wohn-Ess-Küchenbereich gefliest. Nichtsdestotrotz ist es deutlich geschickter noch mit einer Tür zu planen!
Bezüglich der Eckfenster. Dies war in der Küche ein Lösung in letzter Sekunde 😀 Ursprünglich war der Herd im "Inselbereich" geplant. Durch die Verschiebung in den Westen des Kochfeldes mussten wir unser damaliges Panoramafenster ändern (Herd nicht unter Fenster) und uns für diese Ecklösung entscheiden, die uns optisch super gefällt! Im Bad hättem wir allerdings Bedenken, dass es gerade im Bereich der Dusche etwas zu dunkel sein könnte. Außerdem sind diese Fenster lediglich mit Kippfunktion möglich. So müssten wir uns für ein 2-teiliges Fenster entscheiden, was dann wieder nicht zu den Fenstern unten passt. Wir haben es gerne hell im Bad und hoffen durch die "normalen" Fenstern mehr Lichteinfall zu bekommen. Das ist der Grund für unsere Entscheidung.
Ähnliche Themen