ᐅ Grundriss-Optimierung Einfamilienhaus 2 Vollgeschosse ca. 180 qm
Erstellt am: 29.10.21 11:47
H
hansipansiH
hansipansi29.10.21 11:47Hallo liebe Community,
wir sind in den Endzügen unserer Grundrissplanung und würden gerne eure Meinungen zu unserer Planung hören und was man optimieren kann. Wenn man einen Plan zum hundertsten Mal anschaut, sieht man irgendwann den Wald vor lauter Bäumen nicht mehr...
Hier zunächst der Fragebogen:
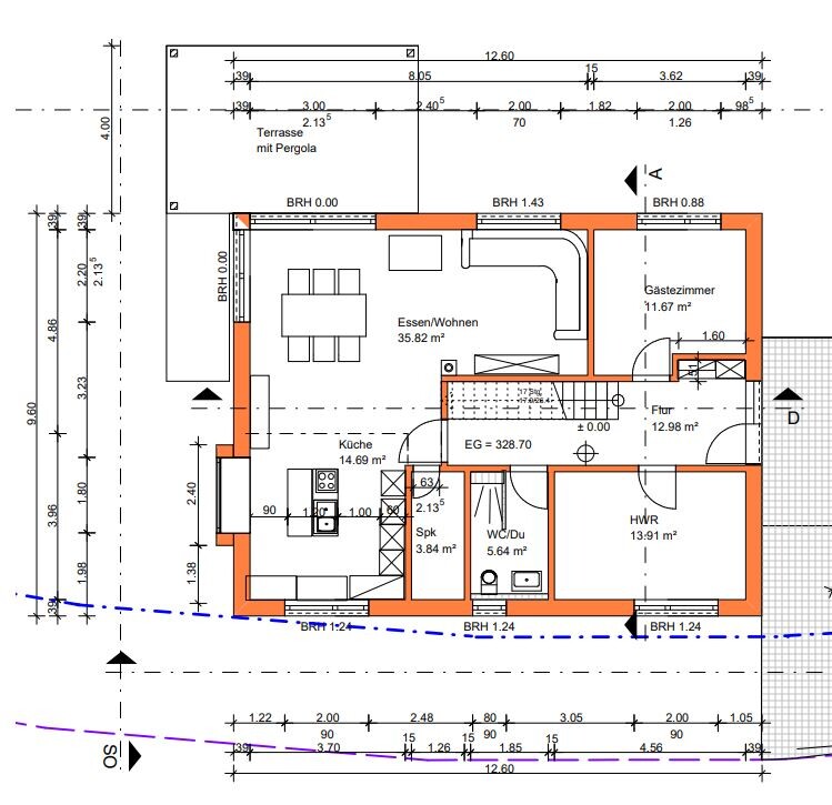
Bebauungsplan/Einschränkungen
Größe des Grundstücks: 776 qm
Hang: nein
Grundflächenzahl: 0,3
Geschossflächenzahl: 0,6
Baufenster, Baulinie und –grenze: siehe blaue Linie
Randbebauung: nein
Anzahl Stellplatz: 2
Geschossigkeit: max. 2 Vollgeschosse
Dachform: keine Vorgaben
Stilrichtung: keine Vorgaben
Ausrichtung: keine Vorgaben
Maximale Höhen/Begrenzungen: 6,50 m Traufhöhe; 10,50 m Gebäudeoberkante
weitere Vorgabe: keine
Anforderungen der Bauherren
Stilrichtung, Dachform, Gebäudetyp: Satteldach 22 Grad
Keller, Geschosse: 2 Vollgeschosse, kein Keller
Anzahl der Personen, Alter: aktuell 2, beide um die 30 (geplant 4)
Raumbedarf im EG, OG: wie im Grundriss
Büro: Familiennutzung oder Homeoffice: Beides
Schlafgäste pro Jahr: nicht relevant
offene oder geschlossene Architektur: offen
konservativ oder moderne Bauweise: modern
offene Küche, Kochinsel: ja
Anzahl Essplätze: mind. 6
Kamin: ja, aktuell geplant
Musik/Stereowand: nein
Balkon, Dachterrasse: nein, nur Gartenterrasse
Garage, Carport: Doppelgarage
Nutzgarten, Treibhaus: nein
weitere Wünsche/Besonderheiten/Tagesablauf, gern auch Begründungen, warum dieses oder das nicht sein soll
Hausentwurf
Von wem stammt die Planung: individuelle Architektenplanung nach unserer Zeichnung
favorisierte Heiztechnik: Luftwärmepumpe mit Fußbodenheizung und Photovoltaikanlage (Kfw 40+)
Was gefällt besonders? Was gefällt nicht? Warum?
Grundsätzlich sind wir mit dem Grundriss schon zufrieden. Was mich momentan noch nicht so glücklich macht, ist die Außenansicht. Habe Bedenken, dass es zu sehr nach Baracke aussieht.
Wenn Ihr verzichten müsst, auf welche Details/Ausbauten
-könnt Ihr verzichten: evtl. auf den Kamin (macht wahrscheinlich wenig Sinn bei KFW 40+?)
-könnt Ihr nicht verzichten: großer Flurbereich oben (da wunderschöne Aussicht), offener Wohn/Essbereich, Ankleide
Warum ist der Entwurf so geworden, wie er jetzt ist?
Wir hatten mehrere Wünsche, die in den Entwurf eingeflossen sind:
Vielen Dank schon mal im Voraus!




wir sind in den Endzügen unserer Grundrissplanung und würden gerne eure Meinungen zu unserer Planung hören und was man optimieren kann. Wenn man einen Plan zum hundertsten Mal anschaut, sieht man irgendwann den Wald vor lauter Bäumen nicht mehr...
Hier zunächst der Fragebogen:
Bebauungsplan/Einschränkungen
Größe des Grundstücks: 776 qm
Hang: nein
Grundflächenzahl: 0,3
Geschossflächenzahl: 0,6
Baufenster, Baulinie und –grenze: siehe blaue Linie
Randbebauung: nein
Anzahl Stellplatz: 2
Geschossigkeit: max. 2 Vollgeschosse
Dachform: keine Vorgaben
Stilrichtung: keine Vorgaben
Ausrichtung: keine Vorgaben
Maximale Höhen/Begrenzungen: 6,50 m Traufhöhe; 10,50 m Gebäudeoberkante
weitere Vorgabe: keine
Anforderungen der Bauherren
Stilrichtung, Dachform, Gebäudetyp: Satteldach 22 Grad
Keller, Geschosse: 2 Vollgeschosse, kein Keller
Anzahl der Personen, Alter: aktuell 2, beide um die 30 (geplant 4)
Raumbedarf im EG, OG: wie im Grundriss
Büro: Familiennutzung oder Homeoffice: Beides
Schlafgäste pro Jahr: nicht relevant
offene oder geschlossene Architektur: offen
konservativ oder moderne Bauweise: modern
offene Küche, Kochinsel: ja
Anzahl Essplätze: mind. 6
Kamin: ja, aktuell geplant
Musik/Stereowand: nein
Balkon, Dachterrasse: nein, nur Gartenterrasse
Garage, Carport: Doppelgarage
Nutzgarten, Treibhaus: nein
weitere Wünsche/Besonderheiten/Tagesablauf, gern auch Begründungen, warum dieses oder das nicht sein soll
Hausentwurf
Von wem stammt die Planung: individuelle Architektenplanung nach unserer Zeichnung
favorisierte Heiztechnik: Luftwärmepumpe mit Fußbodenheizung und Photovoltaikanlage (Kfw 40+)
Was gefällt besonders? Was gefällt nicht? Warum?
Grundsätzlich sind wir mit dem Grundriss schon zufrieden. Was mich momentan noch nicht so glücklich macht, ist die Außenansicht. Habe Bedenken, dass es zu sehr nach Baracke aussieht.
Wenn Ihr verzichten müsst, auf welche Details/Ausbauten
-könnt Ihr verzichten: evtl. auf den Kamin (macht wahrscheinlich wenig Sinn bei KFW 40+?)
-könnt Ihr nicht verzichten: großer Flurbereich oben (da wunderschöne Aussicht), offener Wohn/Essbereich, Ankleide
Warum ist der Entwurf so geworden, wie er jetzt ist?
Wir hatten mehrere Wünsche, die in den Entwurf eingeflossen sind:
- Großes Flurfenster oben
- Sitzfenster in der Küche (wir möchten keine Theke mit Barhockern)
- Versteckte Durchgangstür von Küche zu Speisekammer (ist hier auf dem aktuellen Entwurf nicht eingezeichnet, aber möglich und bereits mit Küchenplaner besprochen)
- Garten soll so groß wie möglich sein
- Ist das Wohnzimmer groß genug? (also nur der TV-Bereich)
- Wird der Flur im EG zu dunkel?
- Reichen 51 cm Tiefe für eine Garderobe?
- Sonstige allgemeine Optimierungsvorschläge? Was findet ihr schlecht/würdet anders machen?
Vielen Dank schon mal im Voraus!
H
hanghaus200029.10.21 12:13Ich sehe keine Außenansichten. Ob es das Sitzfenster in der Küche wirklich bringt?
Die Fragen zum Budget bewusst ausgelassen? Effektiv ist der Entwurf nicht.
Die Fragen zum Budget bewusst ausgelassen? Effektiv ist der Entwurf nicht.
hanghaus2000 schrieb:
Ob es das Sitzfenster in der Küche wirklich bringt?ist momentan Mode, hast du keins?H
hansipansi29.10.21 12:49M
Myrna_Loy29.10.21 13:02evelinoz schrieb:
ist momentan Mode, hast du keins?Mein Bruder hat eines im Wohnzimmer. Südseite. Nur der Hund liegt gerne da ohne Verschattung. Aber wenn die Sonne nicht mehr direkt reinknallt ist es superschön und alle Besucher landen dort. Er hat aber auch eine schöne Aussicht mit Blick auf Wiesen und Berge. Ich würde definitiv auch eines einplanen, wenn es bei uns ginge.H
hanghaus200029.10.21 13:13180m2 sind teuer fuer 4 Leute. Grob 550 k
Hast Du im SO keinen Nachbar?
Hast Du im SO keinen Nachbar?
Ähnliche Themen