ᐅ Grundriss Einfamilienhaus mit Keller und Garage
Erstellt am: 01.02.23 09:51
W
Waldbewohner01.02.23 09:51Hallo zusammen,
hier ein weiterer Grundriss zur konstruktiven Diskussion.
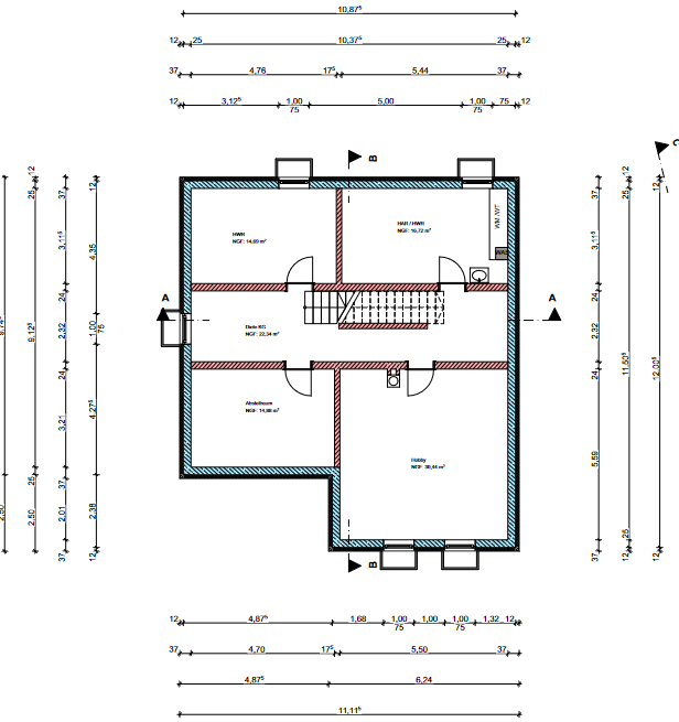
Bebauungsplan/Einschränkungen
Größe des Grundstücks: ca. 860m²
Hang: nein, ebenerdig
Baufenster, Baulinie und -grenze: siehe Skizze
Randbebauung: Garage
Anzahl Stellplatz: Doppelgarage
Geschossigkeit: 2 + Keller
Dachform: Sattel, First in Ost-West-Richtung
Stilrichtung: Haus
Ausrichtung: in den angehängten Skizzen ist Norden oben, d.h. das Haus wird "gerade" stehen
Maximale Höhen/Begrenzungen: N/A
weitere Vorgaben: alle Vorgaben wurden seitens Planer berücksichtigt
Anforderungen der Bauherren
Stilrichtung, Dachform, Gebäudetyp: siehe Skizze
Keller, Geschosse: 2 + Keller
Anzahl der Personen, Alter: 2 Erwachsene, 1 Kleinkind, Vorhalt für bis zu 1 weiteres Kind
Raumbedarf im EG, OG: siehe Skizze
Büro: Familiennutzung oder Homeoffice? beides, dank KVM-Switch aber problemlos möglich
Schlafgäste pro Jahr: 5-10 Übernachtungen
offene oder geschlossene Architektur: eher offen
konservativ oder moderne Bauweise: eher modern
offene Küche, Kochinsel: Kochinsel kein Muss, aber vermutlich sinnvoll
Anzahl Essplätze: 4 im Dauerbetrieb, 8 bei Besuch (ausklappbarer Tisch?), per Biergarnitur erweiterbar bei viel Besuch
Kamin: ja
Musik/Stereowand: nein
Balkon, Dachterrasse: Balkon siehe Skizze
Garage, Carport: Doppelgarage mit Werkraum
Nutzgarten, Treibhaus: Hochbeete werden bevorzugt
weitere Wünsche/Besonderheiten/Tagesablauf, gern auch Begründungen, warum dieses oder das nicht sein soll:
Siehe Text weiter unten
Hausentwurf
Von wem stammt die Planung: Planer eines Bauunternehmens nach mehreren Iterationen
Was gefällt besonders? Warum?: der Plan ist unserer Meinung nach offen und modern, aber dennoch "heimelig" und "gemütlich"
Was gefällt nicht? Warum?: in dieser Iteration stört uns nichts mehr
Preisschätzung lt Architekt/Planer: N/A
Persönliches Preislimit fürs Haus, inkl Ausstattung: N/A
favorisierte Heiztechnik: vermutlich Luft-Wasser-Wärmepumpe
Wenn Ihr verzichten müsst, auf welche Details/Ausbauten
-könnt Ihr verzichten:
-könnt Ihr nicht verzichten:
Warum ist der Entwurf so geworden, wie er jetzt ist? ZB
Standardentwurf vom Planer?: nein
Entsprechende/Welche Wünsche wurden vom Architekten umgesetzt? Alle
Was ist die wichtigste/grundlegende Frage zum Grundriss in 130 Zeichen zusammengefasst?
Nach vielen Iterationen mit mehreren Planern haben wir nun einen Entwurf an dem wir nicht nur nichts mehr auszusetzen haben, sondern eh uns richtig gut gefällt und auf den wir uns freuen.
Sieht das die Forenschaft auch so?
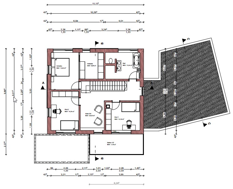
Größter Punkt für Diskussionen sind sicherlich die "Diele" im OG-Flur und der Balkon generell.
Das waren aber zwei Punkte die uns sehr gefallen und deswegen mehr oder weniger gesetzt waren. Sozusagen unser Wunsch-Gimmick.
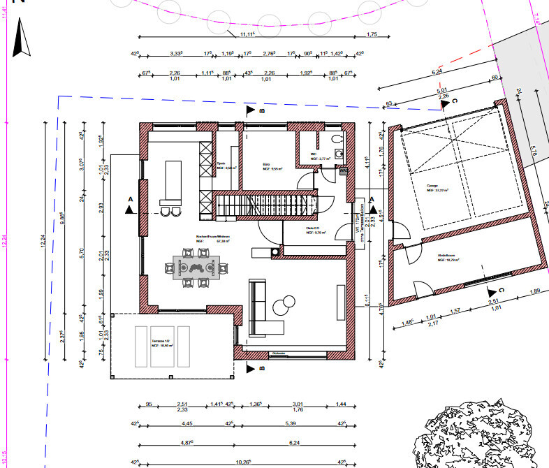
Man muss dazu sagen dass im Süden der Garten sein wird, hinter dem Garten gibt es nur einen wenig benutzten Fussweg und dahinter wiederum (mit etwas Gefälle) einen kleinen Flußlauf und Wiese. Die Aussicht wäre also recht schön.
Ansonsten liegt das Grundstück in einer Kurve (Straße im Norden), im Westen kommt das Nachbargrundstück mit grenzgebauter Garage und im Westen ebenfalls ein wenig benutzter Fussweg.
Das "Leben" wird sich also südlich und südwestlich des Hauses abspielen.



hier ein weiterer Grundriss zur konstruktiven Diskussion.
Bebauungsplan/Einschränkungen
Größe des Grundstücks: ca. 860m²
Hang: nein, ebenerdig
Baufenster, Baulinie und -grenze: siehe Skizze
Randbebauung: Garage
Anzahl Stellplatz: Doppelgarage
Geschossigkeit: 2 + Keller
Dachform: Sattel, First in Ost-West-Richtung
Stilrichtung: Haus
Ausrichtung: in den angehängten Skizzen ist Norden oben, d.h. das Haus wird "gerade" stehen
Maximale Höhen/Begrenzungen: N/A
weitere Vorgaben: alle Vorgaben wurden seitens Planer berücksichtigt
Anforderungen der Bauherren
Stilrichtung, Dachform, Gebäudetyp: siehe Skizze
Keller, Geschosse: 2 + Keller
Anzahl der Personen, Alter: 2 Erwachsene, 1 Kleinkind, Vorhalt für bis zu 1 weiteres Kind
Raumbedarf im EG, OG: siehe Skizze
Büro: Familiennutzung oder Homeoffice? beides, dank KVM-Switch aber problemlos möglich
Schlafgäste pro Jahr: 5-10 Übernachtungen
offene oder geschlossene Architektur: eher offen
konservativ oder moderne Bauweise: eher modern
offene Küche, Kochinsel: Kochinsel kein Muss, aber vermutlich sinnvoll
Anzahl Essplätze: 4 im Dauerbetrieb, 8 bei Besuch (ausklappbarer Tisch?), per Biergarnitur erweiterbar bei viel Besuch
Kamin: ja
Musik/Stereowand: nein
Balkon, Dachterrasse: Balkon siehe Skizze
Garage, Carport: Doppelgarage mit Werkraum
Nutzgarten, Treibhaus: Hochbeete werden bevorzugt
weitere Wünsche/Besonderheiten/Tagesablauf, gern auch Begründungen, warum dieses oder das nicht sein soll:
Siehe Text weiter unten
Hausentwurf
Von wem stammt die Planung: Planer eines Bauunternehmens nach mehreren Iterationen
Was gefällt besonders? Warum?: der Plan ist unserer Meinung nach offen und modern, aber dennoch "heimelig" und "gemütlich"
Was gefällt nicht? Warum?: in dieser Iteration stört uns nichts mehr
Preisschätzung lt Architekt/Planer: N/A
Persönliches Preislimit fürs Haus, inkl Ausstattung: N/A
favorisierte Heiztechnik: vermutlich Luft-Wasser-Wärmepumpe
Wenn Ihr verzichten müsst, auf welche Details/Ausbauten
-könnt Ihr verzichten:
-könnt Ihr nicht verzichten:
Warum ist der Entwurf so geworden, wie er jetzt ist? ZB
Standardentwurf vom Planer?: nein
Entsprechende/Welche Wünsche wurden vom Architekten umgesetzt? Alle
Was ist die wichtigste/grundlegende Frage zum Grundriss in 130 Zeichen zusammengefasst?
Nach vielen Iterationen mit mehreren Planern haben wir nun einen Entwurf an dem wir nicht nur nichts mehr auszusetzen haben, sondern eh uns richtig gut gefällt und auf den wir uns freuen.
Sieht das die Forenschaft auch so?
Größter Punkt für Diskussionen sind sicherlich die "Diele" im OG-Flur und der Balkon generell.
Das waren aber zwei Punkte die uns sehr gefallen und deswegen mehr oder weniger gesetzt waren. Sozusagen unser Wunsch-Gimmick.
Man muss dazu sagen dass im Süden der Garten sein wird, hinter dem Garten gibt es nur einen wenig benutzten Fussweg und dahinter wiederum (mit etwas Gefälle) einen kleinen Flußlauf und Wiese. Die Aussicht wäre also recht schön.
Ansonsten liegt das Grundstück in einer Kurve (Straße im Norden), im Westen kommt das Nachbargrundstück mit grenzgebauter Garage und im Westen ebenfalls ein wenig benutzter Fussweg.
Das "Leben" wird sich also südlich und südwestlich des Hauses abspielen.
Eure Wände sind sämtlich einen halben Kopf stärker als üblich. Viele GU machen dies gern, weil es auf ihre Kundschaft wertiger wirkt. Die Treppen sind zwar sehr verworren gezeichnet; ich glaube aber dennoch interpretieren zu können, daß das Schlafzimmer mit Ankleide zwei Stufen höher liegt als der Rest des OG. Diese Treppe weist auf einen sehr gut erreichbaren Dachboden hin, zusammen mit dem Kellerersatzraum an der Garage wirkt der Keller dann also ein bißchen sehr üppig in der Summe. Einen Hinweis auf ein Votum des Geländes "pro Keller" las ich allerdings nicht. Überhaupt darf gerne ein größerer Zusammenhang der Lage gezeigt werden.
https://www.instagram.com/11antgmxde/
https://www.linkedin.com/company/bauen-jetzt/
https://www.instagram.com/11antgmxde/
https://www.linkedin.com/company/bauen-jetzt/
W
Waldbewohner01.02.23 17:001. Das mit der Wandstärke ist interessant, war mir nicht bewusst. Die Außenwände sind 42,5cm, tragende Wände 24 und 17,5cm, der Rest 11,5cm.
Ist das wirklich jeweils eine Nummer zu viel?
2. Das Schlafzimmer liegt nicht höher. Was du vermutlich als Stufe interpretierst ist der Treppeneinstieg im EG der hier durchgepaust eingezeichnet ist.
Im Prinzip sind die Treppen recht simpel: von der Haustüre gehts gerade in den Keller.
Vom Allraum gehts in den OG, wobei der Einstieg hier um 90° angewinkelt ist.
3. Ja, Stellfläche ist mit dem Keller und der Garage recht viel gegeben. Das ist auch ein wenig Luxus. Aber gut, sonderlich sparen kann man nicht. Das Haus nur halb zu unterkellern ergibt ja auch keinen Sinn.
4. Das Grundstück votiert eigentlich nicht pro Keller, das sind eher die Bauherren. Das Grundstück ist flach wie ein Brett.
Siehst du im Grundriss grobe Schnitzer?
Würdest du wegen den Mauerstärken nochmal was abändern?
Ist das wirklich jeweils eine Nummer zu viel?
2. Das Schlafzimmer liegt nicht höher. Was du vermutlich als Stufe interpretierst ist der Treppeneinstieg im EG der hier durchgepaust eingezeichnet ist.
Im Prinzip sind die Treppen recht simpel: von der Haustüre gehts gerade in den Keller.
Vom Allraum gehts in den OG, wobei der Einstieg hier um 90° angewinkelt ist.
3. Ja, Stellfläche ist mit dem Keller und der Garage recht viel gegeben. Das ist auch ein wenig Luxus. Aber gut, sonderlich sparen kann man nicht. Das Haus nur halb zu unterkellern ergibt ja auch keinen Sinn.
4. Das Grundstück votiert eigentlich nicht pro Keller, das sind eher die Bauherren. Das Grundstück ist flach wie ein Brett.
Siehst du im Grundriss grobe Schnitzer?
Würdest du wegen den Mauerstärken nochmal was abändern?
H
hanghaus202301.02.23 17:12Waldbewohner schrieb:
Persönliches Preislimit fürs Haus, inkl Ausstattung: N/ABevor ich irgend etwas dazu sage, bitte erst die Frage beantworten.W
Waldbewohner01.02.23 17:16hanghaus2023 schrieb:
Bevor ich irgend etwas dazu sage, bitte erst die Frage beantworten.Wenn dir das hilft den Grundriss bewerten zu können, bitteschön. 700.000€.
H
hanghaus202301.02.23 17:35Waldbewohner schrieb:
Wenn dir das hilft den Grundriss bewerten zu können, bitteschön. 700.000€.Es geht nicht darum ob ich es kann. Eher darum ob es sich lohnt hier weiter sich damit zu befassen. Wenn Du jetzt noch sagst, ob Du in München oder eher einer günstigen Region bauen willst dann ist es für mich perfekt. Ist das Budget incl. Nebenkosten Garage usw.? Grundstück auch dabei?
Ähnliche Themen