ᐅ Grundriss Fensterplanung für 2 Vollgeschosse Flachdach 135qm
Erstellt am: 24.09.22 18:48
Hallo liebe Bau-Community!
Wir sind einige Monate weiter mit der Planung, die Finanzierung steht und auch die Erschließung unseres Bebauungsplan-Gebietes ist vor dem Abschluss. So hoffen wir Ende des Jahres auf unseren Spatenstich. Wir sind gerade in der Feinplanung mit unserem GU und besonders interessiert uns eure Meinung und eure Erfahrungswerte zu unserer Fensterplanung. Wir sind mit den Außenansichten noch nicht so happy. Die Fenster sind noch nicht bestellt und können noch verändert werden.
Hier findet ihr unsere bisherige Diskussion
https://www.hausbau-forum.de/threads/Grundriss-2-vollgeschosse-kfw-55-136-qm-flachdach.42060/
Hier nochmal die Eckdaten:
Bebauungsplan/Einschränkungen
Größe des Grundstücks: 530 qm
Hang: nein
Grundflächenzahl: 0,3
Geschossflächenzahl: 0,6
Baufenster, Baulinie und -grenze
Randbebauung: nein
Anzahl Stellplatz: 1
Geschossigkeit: 2
Dachform: flachdach extensiv begrünt
Stilrichtung: Bauhaus
Ausrichtung: Straße im Süden
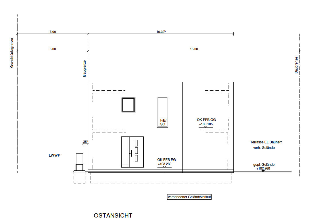
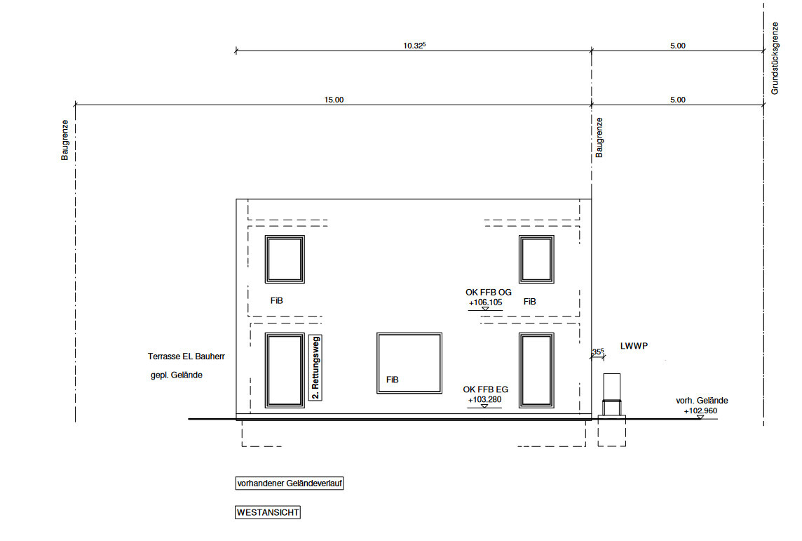
Maximale Höhen/Begrenzungen: 7,50 maximale Höhe Attika Flachdach; Ein Überschreiten von Baugrenzen durch untergeordnete Gebäudeteile ist bis zu einer Breite von maximal 5,0 m und einer Tiefe von maximal 1,5 m für Windfänge, Treppenhäuser, Eingangsüberdachungen, Luftwärmepumpen sowie Balkone ausnahmsweise zulässig
weitere Vorgaben:
- Sockelhöhe von maximal 0,50 m zulässig
- Garagen und Carports sind nur innerhalb des Baufensters oder des Fensters für Garagen und Stellplätze zulässig
- Zufahrt von der Straße aus darf max. 4 m breit sein
- extensiv Dachbegrünung
- Kamin ist nicht erlaubt
Anforderungen der Bauherren
Stilrichtung, Dachform, Gebäudetyp: Bauhaus, Flachdach, Massivbauweise, Vollgeschosse, halbgewendelte Holztreppe
Keller nein, Geschosse 2
Anzahl der Personen, Alter: 3 Personen; 30 Jahre, 30 Jahre, 12 Monate
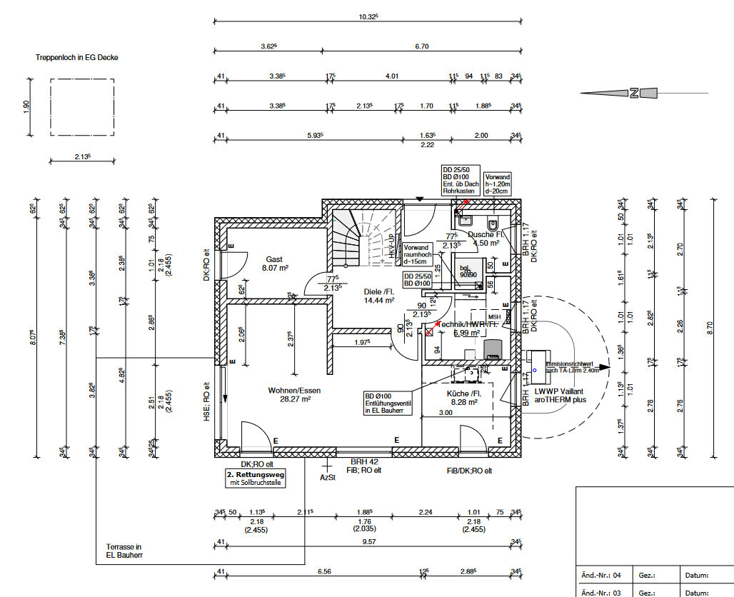
Raumbedarf im EG: offener Wohn-Essbereich, Arbeitszimmer, Hauswirtschaftsraum, Speise, Dusch-WC
OG: Elternschlafzimmer + Ankleide, 2 Kinderzimmer, Bad mit Wanne und Dusche und 2 waschbecken
Büro: Familiennutzung oder Homeoffice?: Homeoffice/Gästezimmer
Schlafgäste pro Jahr: 10-20
offene oder geschlossene Architektur: offen
konservativ oder moderne Bauweise: modern
offene Küche, Kochinsel: ja, ggfs Insel oder U-Form
Anzahl Essplätze: 6
Kamin: nein
Musik/Stereowand: nein
Balkon, Dachterrasse: nein
Garage, Carport: vermutlich Carport
Nutzgarten, Treibhaus: vielleicht
weitere Wünsche/Besonderheiten/Tagesablauf, gern auch Begründungen, warum dieses oder das nicht sein soll
Hausentwurf
Von wem stammt die Planung:
-Planer eines Bauunternehmens
-in Anlehnung an einen Grundriss eines Satteldachhauses mit hohem Kniestock einer süddeutschen Öko-Holzfertigbaufirma
Was gefällt besonders? Warum? Flächen effizient geplant (hoffentlich 😉 ) Sitzfenster und gemütlicher zonierter Wohn-Essbereich zum Garten hinterm Haus, Walk-In-Dusche, Waschmaschine im OG untergebracht; EG offen, OG diskret
Was gefällt nicht? Warum?: Außenansicht Westen und Süden noch gewöhnungsbedürftig
Preisschätzung lt Architekt/Planer: 320.000 €
Persönliches Preislimit fürs Haus, inkl Ausstattung: -
favorisierte Heiztechnik: Luft-Wasser-Wärme-Pumpe
Wenn Ihr verzichten müsst, auf welche Details/Ausbauten
-könnt Ihr verzichten: kfw 55, T-Lösung im Bad, Kücheninsel, bei guten Argumenten: die gerade Treppe evtl drehen wir sie um 180 Grad und begehen von der Diele aus
-könnt Ihr nicht verzichten: unserer Meinung nach spiegelt der Entwurf schon keine übertriebenen Ansprüche wieder
Warum ist der Entwurf so geworden, wie er jetzt ist? ZB
Was macht ihn in Euren Augen besonders gut oder schlecht? Garten ist uns wichtig. Die rechteckige Grundfläche ist unserer Meinung nach besser als eine quadratische Grundfläche geeignet, um das Optimum für das Grundstück herauszuholen (Sonne auf der Westterrasse). Wir sind zu Dritt und ich arbeite vorrangig im Homeoffice. Meine Frau gelegentlich. Daher waren uns 4+1 kleines Zimmer wichtig.






Was ist die wichtigste/grundlegende Frage zum Grundriss in 130 Zeichen zusammengefasst?
EG ist schön offen und gemütlich und holt unseren Garten und Terrasse ins Haus, demgegenüber bietet unser OG genug Privatsphäre sowohl für uns Innen als auch geschützt vor Blicken von Außen. Wir haben lange nach dem optimalen Grundstück für uns gesucht und wollen das Grundstück als den Garten optimal nutzen als Rückzugsort mit später mal Schwimmteich/Pool und ein wenig Nutzgarten.
Wir sind einige Monate weiter mit der Planung, die Finanzierung steht und auch die Erschließung unseres Bebauungsplan-Gebietes ist vor dem Abschluss. So hoffen wir Ende des Jahres auf unseren Spatenstich. Wir sind gerade in der Feinplanung mit unserem GU und besonders interessiert uns eure Meinung und eure Erfahrungswerte zu unserer Fensterplanung. Wir sind mit den Außenansichten noch nicht so happy. Die Fenster sind noch nicht bestellt und können noch verändert werden.
Hier findet ihr unsere bisherige Diskussion
https://www.hausbau-forum.de/threads/Grundriss-2-vollgeschosse-kfw-55-136-qm-flachdach.42060/
Hier nochmal die Eckdaten:
Bebauungsplan/Einschränkungen
Größe des Grundstücks: 530 qm
Hang: nein
Grundflächenzahl: 0,3
Geschossflächenzahl: 0,6
Baufenster, Baulinie und -grenze
Randbebauung: nein
Anzahl Stellplatz: 1
Geschossigkeit: 2
Dachform: flachdach extensiv begrünt
Stilrichtung: Bauhaus
Ausrichtung: Straße im Süden
Maximale Höhen/Begrenzungen: 7,50 maximale Höhe Attika Flachdach; Ein Überschreiten von Baugrenzen durch untergeordnete Gebäudeteile ist bis zu einer Breite von maximal 5,0 m und einer Tiefe von maximal 1,5 m für Windfänge, Treppenhäuser, Eingangsüberdachungen, Luftwärmepumpen sowie Balkone ausnahmsweise zulässig
weitere Vorgaben:
- Sockelhöhe von maximal 0,50 m zulässig
- Garagen und Carports sind nur innerhalb des Baufensters oder des Fensters für Garagen und Stellplätze zulässig
- Zufahrt von der Straße aus darf max. 4 m breit sein
- extensiv Dachbegrünung
- Kamin ist nicht erlaubt
Anforderungen der Bauherren
Stilrichtung, Dachform, Gebäudetyp: Bauhaus, Flachdach, Massivbauweise, Vollgeschosse, halbgewendelte Holztreppe
Keller nein, Geschosse 2
Anzahl der Personen, Alter: 3 Personen; 30 Jahre, 30 Jahre, 12 Monate
Raumbedarf im EG: offener Wohn-Essbereich, Arbeitszimmer, Hauswirtschaftsraum, Speise, Dusch-WC
OG: Elternschlafzimmer + Ankleide, 2 Kinderzimmer, Bad mit Wanne und Dusche und 2 waschbecken
Büro: Familiennutzung oder Homeoffice?: Homeoffice/Gästezimmer
Schlafgäste pro Jahr: 10-20
offene oder geschlossene Architektur: offen
konservativ oder moderne Bauweise: modern
offene Küche, Kochinsel: ja, ggfs Insel oder U-Form
Anzahl Essplätze: 6
Kamin: nein
Musik/Stereowand: nein
Balkon, Dachterrasse: nein
Garage, Carport: vermutlich Carport
Nutzgarten, Treibhaus: vielleicht
weitere Wünsche/Besonderheiten/Tagesablauf, gern auch Begründungen, warum dieses oder das nicht sein soll
Hausentwurf
Von wem stammt die Planung:
-Planer eines Bauunternehmens
-in Anlehnung an einen Grundriss eines Satteldachhauses mit hohem Kniestock einer süddeutschen Öko-Holzfertigbaufirma
Was gefällt besonders? Warum? Flächen effizient geplant (hoffentlich 😉 ) Sitzfenster und gemütlicher zonierter Wohn-Essbereich zum Garten hinterm Haus, Walk-In-Dusche, Waschmaschine im OG untergebracht; EG offen, OG diskret
Was gefällt nicht? Warum?: Außenansicht Westen und Süden noch gewöhnungsbedürftig
Preisschätzung lt Architekt/Planer: 320.000 €
Persönliches Preislimit fürs Haus, inkl Ausstattung: -
favorisierte Heiztechnik: Luft-Wasser-Wärme-Pumpe
Wenn Ihr verzichten müsst, auf welche Details/Ausbauten
-könnt Ihr verzichten: kfw 55, T-Lösung im Bad, Kücheninsel, bei guten Argumenten: die gerade Treppe evtl drehen wir sie um 180 Grad und begehen von der Diele aus
-könnt Ihr nicht verzichten: unserer Meinung nach spiegelt der Entwurf schon keine übertriebenen Ansprüche wieder
Warum ist der Entwurf so geworden, wie er jetzt ist? ZB
Was macht ihn in Euren Augen besonders gut oder schlecht? Garten ist uns wichtig. Die rechteckige Grundfläche ist unserer Meinung nach besser als eine quadratische Grundfläche geeignet, um das Optimum für das Grundstück herauszuholen (Sonne auf der Westterrasse). Wir sind zu Dritt und ich arbeite vorrangig im Homeoffice. Meine Frau gelegentlich. Daher waren uns 4+1 kleines Zimmer wichtig.
Was ist die wichtigste/grundlegende Frage zum Grundriss in 130 Zeichen zusammengefasst?
EG ist schön offen und gemütlich und holt unseren Garten und Terrasse ins Haus, demgegenüber bietet unser OG genug Privatsphäre sowohl für uns Innen als auch geschützt vor Blicken von Außen. Wir haben lange nach dem optimalen Grundstück für uns gesucht und wollen das Grundstück als den Garten optimal nutzen als Rückzugsort mit später mal Schwimmteich/Pool und ein wenig Nutzgarten.
Es fehlt der Lageplan, möglichst mit eingezeichnetem Haus.
Und, mal ein paar Möbel einzeichnen, insbesondere Küche. Der Bereich ist nämlich nicht so riesig und da muss man schon genau planen. Eine Insel sehe ich da erstmal nicht. Ein U schränkt insbesondere das Kochen mit mehr 1 Person sehr ein.
Und, mal ein paar Möbel einzeichnen, insbesondere Küche. Der Bereich ist nämlich nicht so riesig und da muss man schon genau planen. Eine Insel sehe ich da erstmal nicht. Ein U schränkt insbesondere das Kochen mit mehr 1 Person sehr ein.
M
Myrna_Loy24.09.22 19:25gelöscht. ich sag da besser doch nichts zu.
Mansion schrieb:
in Anlehnung an einen Grundriss eines Satteldachhauses mit hohem Kniestock einer süddeutschen Öko-HolzfertigbaufirmaWeshalb wählt man ausgerechnet einen Spenderentwurf mit einer anderen Blutgruppe ?SoL schrieb:
Weshalb so massive Änderungen zu dem bisherigen Grundriss?
Das ist ja praktisch eine Neuplanung?Immerhin eine respektable Entschlimmerung - beim "Stil" der Fassaden im Stanzteile-Look ist es leider geblieben :-(Das Fassaden-Layout erinnert mich irgendwie an Klötzchengrafiken im Btx, irgendwie "linksbündig" in einem Textverarbeitungsprogramm skizziert ;-) (aber wenigstens nicht sümmehtrisch).
https://www.instagram.com/11antgmxde/
https://www.linkedin.com/company/bauen-jetzt/
M
Myrna_Loy24.09.22 19:4711ant schrieb:
Weshalb wählt man ausgerechnet einen Spenderentwurf mit einer anderen Blutgruppe ?
Immerhin eine respektable Entschlimmerung - beim "Stil" der Fassaden im Stanzteile-Look ist es leider geblieben :-(
Das Fassaden-Layout erinnert mich irgendwie an Klötzchengrafiken im Btx, irgendwie "linksbündig" in einem Textverarbeitungsprogramm skizziert ;-) (aber wenigstens nicht sümmehtrisch).Mich erinnerts an Schuhkartonhäuser, wie sie meine Kinder manchmal basteln. Ich weiß daher, dass die beiden wohl keine Architekten werden. 😀Ich würde neben dem Dach auch die Fassade begrünen.
Ähnliche Themen