Neubau Einfamilienhaus 170qm für 4 Personen in NI

4,60 Stern(e) 8 Votes
Zuletzt aktualisiert 18.11.2025
Sie befinden sich auf der Seite 4 der Diskussion zum Thema: Neubau Einfamilienhaus 170qm für 4 Personen in NI
>> Zum 1. Beitrag <<

Y

ypg

Klasse!
Ein Unterschied wie Tag und Nacht.
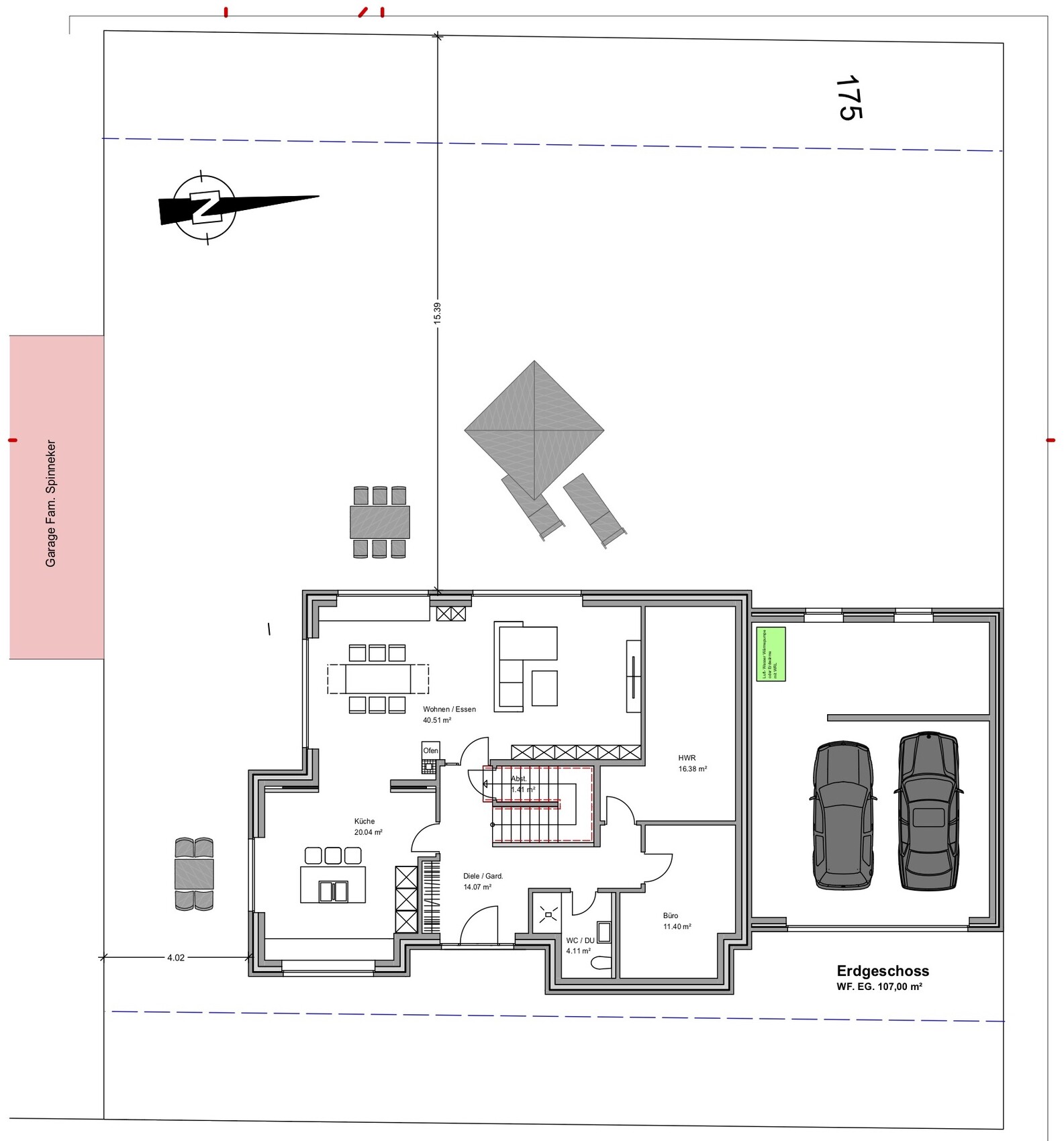
Ich bin am Überlegen, was da nicht rund ist. Über die vielen Winkelwände will ich gar nicht mal meckern, aber irgendwas stört.
Was wäre denn, wenn man die Treppe unten am Anfang drehen lässt und sie gerade oben rauskommt? Dann wäre eine größere Ankleide drin und dadurch mehr Stellfläche.
Bad gefällt mir nicht. Wenn T sein muss, würde ich auf L gehen und Toi eh gg Dusche tauschen.
Die kurze Wand zw Treppenaufgang und Ankleide würde ich mit einem Fenster versehen. Ist dann Belichtung und Eyecatcher in einem
Tür zw Hauswirtschaftsraum und Garage weglassen. Die tut nicht Not, kollidiert eh mit der Wäsche am Schacht... die Haustür ist doch auch schnell erreichbar. Raum gewinnt Stellfläche.
 
kaho674

kaho674

Mh ...

- kein Licht im Flur oben - schade.
- Badaufteilung ist Katastrophe - besser auf 2. Tür verzichten
- Engstelle an der Kücheninsel
- Außenschornstein an der Traufseite - wie sieht das in der Ansicht aus?
- Tür Hauswirtschaftsraum - Garage dient wozu? Den Automief an die frische Wäsche zu lassen?

Aber mein Hauptproblem:
- Die Garage ist praktisch mitten im Garten platziert. Netto hin oder her, ich Bau mir doch keinen Bunker in meinen Garten. Das ist wie Teufel mit dem Beelzebub austreiben. Jetzt sitzt Ihr an der Garagenwand gequetscht oder am Nachbarzaun. Find ich voll häßlich.

Wäre es meins, würde ich schauen, ob man auf die Grenze zum Netto eine Mauer (am besten Naturstein) als Schall- und Sichtschutzwand errichten kann. Planung Garage / Haus dann Garten- und Terrassen-optimiert.
 
T

tumaa

- Ein Erker hat optisch was .....jedoch macht er hier in meinen Augen den Grundriss kaputt, kann dieser nicht weggelassen werden ?
- euer Hauptbad ist ca. 11,5qm2 , warum 2 Türen, wenn Ankleide eh getrennt ist, eigentlich ist es zumutbar, sich auch im Bad anzuziehen
 
P

palmenhaus

Hallo liebe Alle,

wir waren etwas durch Corona stark eingebunden, Gott sei dank aber nicht infiziert.
Es ging ja doch einiges drunter und drüber, aber jetzt kann das Thema Grundriss endlich wieder vorwärts getrieben werden.

Zunächst einmal Danke für die Anregungen. Mein kurzes Feedback dazu
- kein Licht im Flur oben - schade. in der tat, aber würden wir darauf verzichten. ggf. raumspartreppe zum Dachboden mit Velux-Fenster als Idee
- Badaufteilung ist Katastrophe - besser auf 2. Tür verzichten. Sehen wir mittlerweile auch so. Tür kommt weg.
- Bad gefällt mir nicht. - ja uns auch noch nicht optimal. Guter Gedanke mit dem L und dem Tausch von Toi und Dusche
- Engstelle an der Kücheninsel. Ja, wir waren im Küchenstudio, das hat uns das auch so gesagt. Wir werden hier noch mal überlegen müssen, ggf. an den Engstellen für die Schiebetüren optimieren
- Außenschornstein an der Traufseite - wie sieht das in der Ansicht aus? Bescheiden, daher Wandert der Schornstein auf die andere Seite des Raumes
- Tür Hauswirtschaftsraum - Garage dient wozu? Den Automief an die frische Wäsche zu lassen? Wir wollen gerne trockenen Fußes von der Garage in das Haus kommen. Daher ist das ein wichtiger Zugang. Ob die Tür dort optimal ist, kann sicherlich diskutiert werden.

- Ein Erker hat optisch was ..... Das war zu Anfang ein wichtiger Wunsch von uns. Mittlerweile könnten wir auch ohne, also kein MUSS.
- Speis seh ich immer noch nicht. War das nicht ein Wunsch? war ein wünsch, ja. Aber kein Muss. Ich denke die Küche müsste auch Platz für Vorräte haben bzw. Platz unter der Treppe ...


Ein wichtiger Gedanke von Katja treibt uns auch immer wieder herum:
Aber mein Hauptproblem:
- Die Garage ist praktisch mitten im Garten platziert.

Das ist in der Tat seit Anfang an ein Thema, die grundsätzliche Hausausrichtung auf dem Grundstück nebst Garage. Wir haben immer Netto als no-go Thema angezeigt, aber nach den ersten konkreten Grundrissen ist auch der Schnitt des Grundstückes (rechteckig 25m breite x 30m Länge) sowie die Lage inkl. Garage ein Thema.

Hier würde ich mal gerne eure Meinung wissen.

Variante1: Dach mit Nord-Süd Ausrichtung. Diesen Grundriss kennt ihr, und er war lange unser Favorit. Eine andere Lage haben wir nie in Erwägung gezogen. Erker in den Süden. In der Anlage seht ihr auch die Garage des Nachbarn sowie Abstände. Irgendwie geht auch der Hauptgarten Richtung Westen unter. Ggf. doch mehr oder andere Fenster hinter dem Sofa noch? Die Garage würden wir in der Tat dann verkleinern, damit es nicht wie ein Bunker wirkt, und der Blick offener ist. Netto würden wir dann optisch mit einer Wand/Mauer/Gewächs aus dem Sichtfeld nehmen, guter Hinweis Katja-DANKE!.
Ein Freund meinte dann: Warum dreht ihr nicht einfach das Haus um 90Grad, dann habt ihr den Hauptgarten vom Eis-/Wohnzimmer immer schön im Blick.

Gesagt, getan. Und jetzt wissen wir eigentlich nicht mehr so recht, was wir nehmen sollen ...

Variante2: Dach mit Ost-West Ausrichtung. Wir haben das Haus gedreht. Die Küche soll auf jeden Fall an der Straße sein, sodass wir hier die Anordnung der Räume etwas geändert haben. Grob würden wir die Räume so wie gezeichnet anordnen, da müsste natürlich noch Feinschliff rein. Der Grundriss ist eher ein grober Entwurf, bitte nicht daran reiben. Der Architekt wollte uns zeigen, wie das Haus dann auf dem Grundstück liegt. Erker würden wir hier aufgeben, da es nicht wirklich passt. Auch die Front mit den beiden Ausbauten ist noch besser zu gestalten.
Aber wichtiges Entscheidungsmerkmal: Hier sind die Abstände zum Nachbarn im Süden noch enger, nur 4m bis zur Einfahrt bzw. Garage. Ich habe angst hier bei tief stehender Sonne sogar Schatten zu bekommen ... Der Blick in den Westen ist natürlich freier und offener. ... Lohnt sich das, oder ist der Preis hierfür zu teuer?

Jetzt die Frage:
Was gefällt euch besser und warum?

Bitte fleißig und ehrlich schreiben .

Danke euch vorab
Grüße

Grundriss eines Hauses mit Garage, Wohn- und Küchenbereich, Treppenhaus, Garten und Maßangaben.


Grundriss Erdgeschoss: Wohnen, Küche, Esszimmer, Büro, WC, Diele, HWR, Garage (2 Autos), Garten.
 
kaho674

kaho674

Ja, Richtung Variante 2 würde ich auch gehen. Hauswirtschaftsraum und Büro sollten evtl. noch die Lage tauschen, aber zum Feinschliff brauchts eh alle Geschosse. Der Grund ist natürlich der schönere Garten.

Wieso soll die Küche eigentlich an die Straße?
Wenn Ihr die Mauer zum Netto plant, vergesst nicht, sie mit ins Budget einzurechnen.
 
Zuletzt bearbeitet:
Zuletzt aktualisiert 18.11.2025
Im Forum Grundrissplanung / Grundstücksplanung gibt es 2536 Themen mit insgesamt 87968 Beiträgen


Ähnliche Themen zu Neubau Einfamilienhaus 170qm für 4 Personen in NI
Nr.ErgebnisBeiträge
1 2 Vollgeschosse, Durchgang Garage, Hauswirtschaftsraum unter Treppe 25
2Grundriss. Meinungen, Ideen und konstruktive Kritiken. - Seite 424
3Grundriss Stadtvilla 155qm - eure Meinung ist gefragt - Seite 247
4Anregungen zum Grundriss Einfamilienhaus ca. 175 qm, Satteldachhaus 167
5Grundriss 140 m2 Einfamilienhaus mit Garage - Hausausrichtung ok? - Seite 218
6Zugang von der Garage in den Hauswirtschaftsraum - Seite 349
7Hauswirtschaftsraum Raum ohne Fenster - Lüftungsanlage ausreichend? 26
8Grundrissfrage, Treppe, Fenster, Ausrichtung 12
9Meinungen f. Grundriss Einfamilienhaus ca. 160qm - Seite 429
10Mit Erker in die Abstandsflächen - in diesem Fall zulässig? - Seite 330
11Grundriss unseres Bungalows - Seite 282
12Grundriss - Eure Meinungen, Ideen und Vorschläge 31
13Grundriss-Entwurf Stadtvilla mit Doppelgarage - Seite 238
14Grundriss/Grundrissideen Einfamilienhaus 180m², 3 Kinderzimmer - Seite 446
15Grundriss Stadtvilla 160 qm, ohne Keller - Eure Meinungen dazu? 167
16Grundriss Stadtvilla 150 m2- Eure Meinung ist gefragt :-) 45
17Durchsicht Grundriss-Planung Einfamilienhaus mit Vollgeschossen 15
18Grundriss Einfamilienhaus ~165m² plus Keller - Seite 7165
19Wie findet ihr diesen Grundriss? - Seite 211
20Eure Meinung zum Grundriss für das EG 28

Oben