Grundrissoptimierung Stadtvilla ca. 180qm mit Keller in Berlin

5,00 Stern(e) 3 Votes
Zuletzt aktualisiert 21.11.2025
Sie befinden sich auf der Seite 2 der Diskussion zum Thema: Grundrissoptimierung Stadtvilla ca. 180qm mit Keller in Berlin
>> Zum 1. Beitrag <<

J

julimos

Die Treppenmaße sind in der Skizze 3,55 x 1,25m. Wenn die noch 30-40cm länger würde macht das aber den Grundriss zum Glück nicht kaputt.
@ypg Danke für den Hinweis mit dem Lageplan, vielleicht kannst du es jetzt besser beurteilen.


Grundriss eines Baugrundstücks: schraffierte Fläche mit Fluchtlinie, Parkplatz links, Nordpfeil.
 
Y

ypg

Danke. Ich denke, (jetzt sehe ich auch die Außenmaße), dass dieser typische Standardgrundriss nicht auf diese 10 x 12 gezerrt werden sollte, weil eben die Räume langgezogen werden.
Fangen wir mal im Detail Treppe an: wenn Du genau hinschaust, hast Du die Küchentür mit der Kellertreppe zugebaut
Wenn Du mal in den angepinnten Beiträgen schaust: da sind Treppenmasze eingestellt. 3,55 sind zu kurz. Die Küchentür ist so nicht gut positioniert, dass man beim Eintreten gg möbel läuft. Das sind allgemeine Planungsfehler, die man vermeiden kann, wenn man etwas Ahnung hat, Architekt ist oder anderweitig mit Planung zu tun hat.
Das gilt auch für zu große Flure. Ich sag immer: wenn im Schlafzimmer noch nicht einmal der 3 Meter Familienschrank Platz hat, dann stimmt der Entwurf nicht. Letztendlich ist hier nicht viel geplant.
kurze Wege Küche<->Keller und Wohnzimmer<->OG
Ich sehe keine kurzen Wege, sind sind sehr lang wegen der langen Hausform.
Wegen Sackgasse muss die Auffahrt links neben das Haus
Ich würde mir die Südseite für einen Sitzplatz freihalten. Auch die Wohnräume mehr zur SW und die Küche zur Terrasse nach hinten (planoben), wo sie hingehört.
Stellplatz bzw Doppelcarport geht sicher nicht nach planrechts? hm... noch mal nachfragen!!!
Wenn das tatsächlich nicht geht, aber nicht nur dann, sehe ich ein anderes Haus, etwas schmaler und länger und nicht symmetrisch und auch keinen mittigen Eingang.
Aber egal, was ich sehe: es ist Euer Haus, deshalb lasst das schwierige Grundstück mal vom Fachmann planen. Für dieses GrundrissSkelett eignet sich das Grundstück schlecht.

Und dann würde ich den Gedanken mal aufgreifen, und die vielen Gäste ein Séparée gönnen, zb könnte man im Keller einen Bereich mit Bad zurechtmachen, das würde die Hausgröße etwas entspannen.
Achte auf die Grundflächenzahl! Terrasse gehört zum Haus.
 
J

julimos

Hey,
vielen Dank schonmal für deine Anmerkungen. Ich glaube die beziehen sich auf den ersten Entwurf von Vorgestern, ich hatte gestern nochmal einen neuen gemacht weiter unten auf Seite 1, ich hänge den hier noch mal an.

Thema Auffahrt: andere Hausseite geht absolut nicht, dafür müsste die Auffahrt einmal durch den kompletten Vorgarten gehen, weil am Ende der Sackgasse (also "vor" unserem Grundstück auf der rechten Seite) ein Weg bzw. Park ist. Außerdem darf hinter der Fluchtlinie absolut nichts gebaut werden.

Terrasse auf der Südseite fänden wir auch schön, leider ist dort die Garage der Nachbarn in Grenzbebauung bis ca. 2/3 unseres geplanten Hauses. Dahinter steht direkt das relativ hohe Haus der Nachbarn, d.h. wenn auf der Südseite des Hauses Sonne ist, ist auch hinter dem Haus auf der Terrasse Sonne, und wir planen noch einen Sitzplatz weiter hinten im Garten der früher Sonne bekommt. Die Terrasse hinter dem Haus ziehen wir evtl. auch etwas um die plan-linke Hausecke herum.

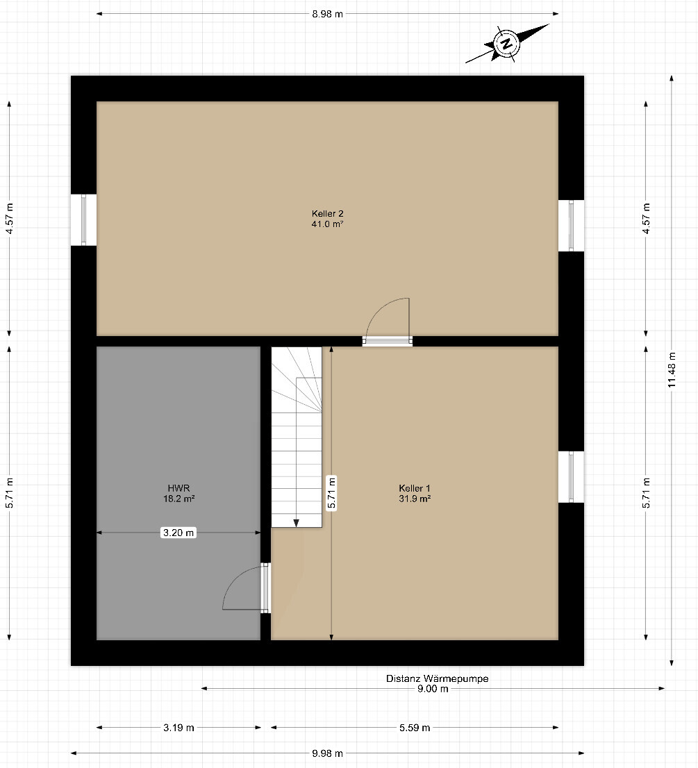
Gästezimmer/-bereich im Keller haben wir auch schon mal überlegt, das würde aber nur das Gästezimmer im EG einsparen, und da ist eigentlich reichlich Platz (Büro im OG zum Garten ist Pflicht - und als Abstand zwischen Schlafzimmer und Kinderzimmer willkommen ).

Terrasse zählt glücklicherweise nicht zur Grundflächenzahl, sonst wäre die Größe tatsächlich problematisch (Bereich ist in den 60er Jahren "abschließend geplant", damit gilt die alte Baunutzungsverordnung - sagt auch das Bauamt)

Danke fürs anschauen

2D-Grundriss eines Hauses mit Wohnzimmer, Küche, Flur, Bad und Gästezimmer sowie Maßen


Grundriss eines Hauses mit Flur, Treppe, Schlafzimmer, Büro, zwei Kinderzimmer, Bad und WC.


Grundriss Kellergeschoss mit zwei Räumen: Keller 2 41 m², Keller 1 31,9 m², HWR 18,2 m².
 
Y

ypg

Ich glaube die beziehen sich auf den ersten Entwurf von Vorgestern,
Stimmt, die hatte ich auf dem Handy noch auf.
Der jetzige ist weitaus stimmiger, wenn auch das OG immer noch ne kleine Katastrophe.
Thema Auffahrt: andere Hausseite geht absolut nicht, dafür müsste die Auffahrt einmal durch den kompletten Vorgarten gehen, weil am Ende der Sackgasse (also "vor" unserem Grundstück auf der rechten Seite) ein Weg bzw. Park ist.
Ich glaube, wir reden aneinander vorbei: Du kannst doch den „Vorgarten“ als Beete links und rechts von einem Vorhof planen. Das gibt es doch oft, auch wir haben das, dass man auf seinem Vorhof das Lenkrad nach rechts betätigt und dann auch rechts seinen Stellplatz hat. Du brauchst doch eh mehr Stellfläche bei 2 Kindern plus Besucher. Ich würde das an deiner Stelle nicht ausschließen.
Außerdem darf hinter der Fluchtlinie absolut nichts gebaut werden.
Fluchtlinie?
Meinst Du den Grenzabstand?
Büro im OG zum Garten ist Pflicht
Warum?

Ich denke, Deine Treppenposition ist falsch.
Versuch mal, sie a) zu drehen, sodass ihr oben mittig rauskommt: dann die Räume neu anordnen
b) setze das Kind 1 dort, wo jetzt das Bad ist. Rest wieder neu anordnen und den Flur dadurch extrem verkleinern.
Die Kleinigkeiten wie Gästebad-Dusche wegen falscher Kloposition nicht begehbar erwähne ich jetzt mal nicht, da kann man später ran. Und auch die Küche..., sowas erinnert mich an Frühere Landhausküchen...
 
J

julimos

Ich glaube, wir reden aneinander vorbei: Du kannst doch den „Vorgarten“ als Beete links und rechts von einem Vorhof planen. Das gibt es doch oft, auch wir haben das, dass man auf seinem Vorhof das Lenkrad nach rechts betätigt und dann auch rechts seinen Stellplatz hat. Du brauchst doch eh mehr Stellfläche bei 2 Kindern plus Besucher. Ich würde das an deiner Stelle nicht ausschließen.
Guter Punkt, da hast du natürlich recht. Ich werde es mir mal anschauen. Zum Glück "brauchen" wir nicht unbedingt für alle Besucher Stellplätze, in der Straße ist eigentlich immer genug frei. Aber das kann sich natürlich ändern.

Fluchtlinie?
Meinst Du den Grenzabstand?
Das ist tatsächlich eine "Förmlich festgestellte Fluchtlinie", gibt es glaube ich nur in (West?-)Berlin und kommt durch irgendwelches preussisches Baurecht das Übergeleitet wurde. Ohne die Fluchtlinie könnten wir schön breit bauen...dadurch fehlen leider 2 Meter.

Warum?
Ich denke, Deine Treppenposition ist falsch.
Versuch mal, sie a) zu drehen, sodass ihr oben mittig rauskommt: dann die Räume neu anordnen
b) setze das Kind 1 dort, wo jetzt das Bad ist. Rest wieder neu anordnen und den Flur dadurch extrem verkleinern.
Die Kleinigkeiten wie Gästebad-Dusche wegen falscher Kloposition nicht begehbar erwähne ich jetzt mal nicht, da kann man später ran. Und auch die Küche..., sowas erinnert mich an Frühere Landhausküchen...
Hast recht, die Möbel in den Badezimmern sind erstmal nur drin um sich Größe besser vorstellen zu können.
Ich werde deinen Hinweis mal aufgreifen und probiere das heute Abend zu zeichnen, dann könnte auch die Küche weniger breit sein wenn die Treppe etwas verschoben wird. Danke!!
 
Zuletzt aktualisiert 21.11.2025
Im Forum Grundrissplanung / Grundstücksplanung gibt es 2535 Themen mit insgesamt 87980 Beiträgen


Ähnliche Themen zu Grundrissoptimierung Stadtvilla ca. 180qm mit Keller in Berlin
Nr.ErgebnisBeiträge
1Entwurf Einfamilienhaus mit ca. 168m² Feedback - Seite 537
2180qm Nicht-Anstatt-Haus, beste Anpassung ans Grundstück? 79
3Erster Grundriss-Entwurf ~200qm Einfamilienhaus - Seite 320
4Grundrissoptimierung Einfamilienhaus mit Keller auf kleinem Grundstück 178
5Grundriss-Entwurf: Einfamilienhaus mit Keller; 560qm Grundstück - Seite 365
6Entwurf Grundriss Bungalow Meinungen - Seite 422
7Meinungen zu unserem Grundriss Entwurf erwünscht - Seite 670
8Einfamilienhaus mit 190qm - Was hält ihr von dem Entwurf? Feedback? 51
9Grundrissplanung mit enger werdendem Grundstück - Seite 223
10Schmales Grundstück und Einfriedung - Hilfestellung - Seite 213
11Erst-Entwurf vom Architekten - Optimierung 28
12Rechteckiges Einfamilienhaus auf schmalen Grundstück 24
13Neubau Einfamilienhaus ca.220qm, 2. Entwurf Stadtvilla - Seite 859
14Darf man Sichtschutz auf eigenem Grundstück beliebig positionieren? - Seite 243
15Grundstück in Hanglage: erste Grundrissidee & bitte um Feedback 63
16Wie würdet ihr das Haus auf dem Grundstück ausrichten? 17
17Grundriss-Entwurf für Haus am Hang in zweiter Reihe - Seite 320
18Grundstück Einfamilienhaus C630 Heinz von Heiden am Standort Sachsen - Seite 364
19Grundstück Nord-West-Ausrichtung - Tipps - Seite 224
20Schwieriger Grundriss Grundstück und Denkmal - §34 - Seite 12130

Oben