
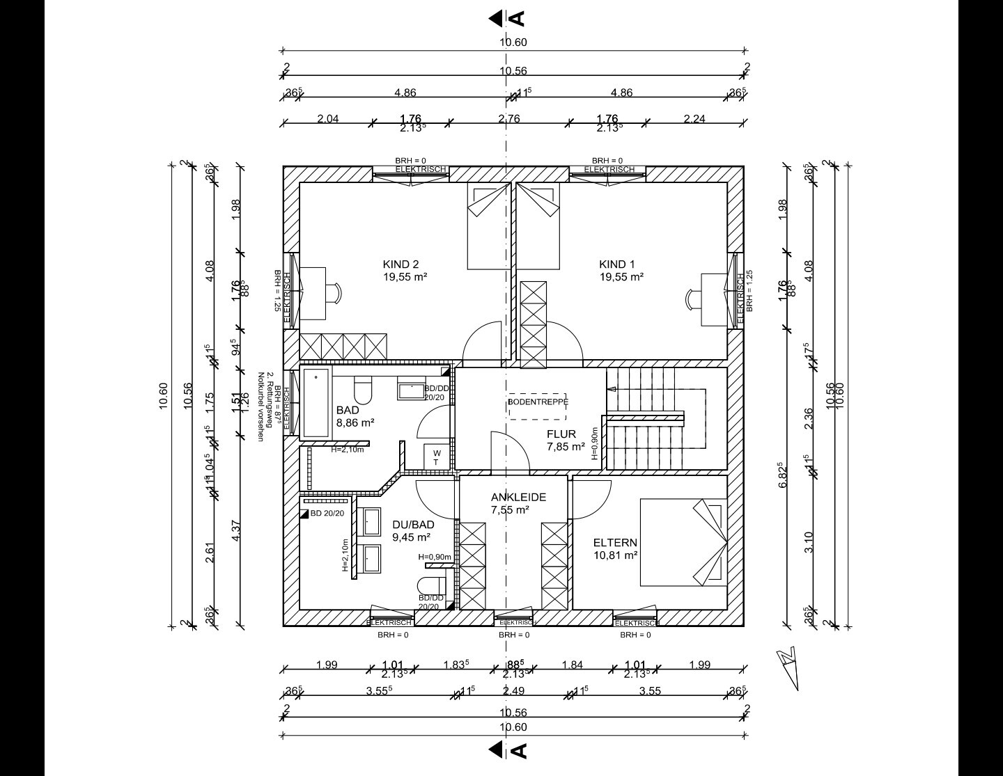
11ant
Du meinst also das Trennwandlabyrinth zwischen Eltern- und Kinderbad ? - dazu hatte ich doch bestimmt bereits angeregt, Gipsdielen zu verwenden. Aber meine weitestgehende Anregung war ja, zu einem funktionierenden Ausgangsentwurf zurückzufinden, nachdem Dir der Preis der Trockenbau-Pestbeulen für Dein Grundrißgepfriemele ja nun doch ausreichend zu hoch war, daß Du nach einer Therapie zur Heilung fragtest. Bei dem Relaunch kannst Du dann gleich meine Anregung aufnehmen, die Badseparation gleich ganz zu unterlassen (auch wenn das um die Trennwandverlaufs-Planungsvorschläge fast schade wäre).