Grundriss: Neubau auf Bungalow-Bestandskeller, 1,5-Geschossige

4,90 Stern(e) 8 Votes
Zuletzt aktualisiert 09.10.2025
Sie befinden sich auf der Seite 5 der Diskussion zum Thema: Grundriss: Neubau auf Bungalow-Bestandskeller, 1,5-Geschossige
>> Zum 1. Beitrag <<

11ant

11ant

Ich habe auch mit einem freundlichen Vertreter von Streif Haus Haus gesprochen. In der Vergangenheit wurden Sanierungen/Erweiterungen in Zusammenarbeit mit Renopan durchgeführt, mittlerweile gibt es wohl eine neue (tlw. in-house) Firmierung, deren Namen er nicht kannte. Unsere Pläne aus den 80ern liegen bei Streif Haus Haus nicht mehr vor, aber solche Anfragen wie meine gibt es oft und sie kennen sich damit aus. Sie haben jetzt die Unterlagen und werden sich zeitnah bei uns melden. Deinem Vorschlag eines Splits (Rohbau: Streif Haus Haus, Ausbau: Regional) stand er grundsätzlich offen gegenüber.
Das freut mich, so klingt das gut. Bezüglich der Pläne verstehe ich die Haushersteller nicht: ruheständige Konstrukteure sind meist überglücklich, wenn jemand sie noch´mal fragt, wie das Zeug damals konstruiert war. Die Axt im Haus erspart den Zimmermann, und der Konstrukteur a.D. das Balkensuchgerät ;-)
Ich wollte dich dahingehend auch schon PNen, habe aber wohl noch zu wenige Beiträge verfasst um das zu dürfen. Ab wann wird denn das freigeschalten?
Das ist das bestgehütetste Geheimnis ever, vermutet wird: ab 200 Beiträgen. Ich habe aber bei gmx de denselben Namen wie im Forum.
 
RomeoZwo

RomeoZwo

Es ging nicht um den Sozialstatus, sondern weil der TE zwei sehr gegensätzliche Haushersteller in der Auswahl hat. Ungefähr wie Dacia und Porsche.
Es geht um neuen Dacia vs. 15 Jahre altem Porsche (30 jährig wäre der ja schon wieder ein Sammlerstück). Das ist schon ne Typfrage, der eine will die "Perfektion" der andere das "moderne Navi".

Wenn ich mir das Grundstück so ansehe, und Neubau die Entscheidung ist, würde ich aber durchaus überlegen den Keller aus der Betrachtung zu streichen. Die Ostseite scheint Aussicht, zumindest ins Grüne und unverbaubar zu sein. Da macht es schon Sinn, wie bei den Neubauten im Norden auch dorthin die Wohnseite, also Terrasse und Garten zu planen.
 
M

Mal Bauen

Gibt es in der Nachbarschaft schon 2 Geschosser?

Zeig uns doch mal paar Bilder von dem Haus.
Anbei Bilder des Bestandsgebäudes.
In der direkten Nachbarschaft gibt es eine bunte Mischung verschiedener Haustypen (2-geschossig mit Walmdach, 2-geschossig mit Flachdach, 1,5-geschossig mit Satteldach und Gauben).

Wenn ich mir das Grundstück so ansehe, und Neubau die Entscheidung ist, würde ich aber durchaus überlegen den Keller aus der Betrachtung zu streichen. Die Ostseite scheint Aussicht, zumindest ins Grüne und unverbaubar zu sein. Da macht es schon Sinn, wie bei den Neubauten im Norden auch dorthin die Wohnseite, also Terrasse und Garten zu planen.
Genau, die Ostseite ist unverbaut und bietet eine schöne Aussicht. Daher würden wir dorthin auch das Wohnzimmer orientieren. Zumindest den Keller wollen wir aber auch im Falle eines Neubaus erhalten.


Zum aktuellen Stand Neubau vs. Sanierung:
  • Feedback der örtlichen Zimmerei nach Begehung: Die Statik der Außenwände und der Geschossdecke zwischen EG und DG wird wohl kritisch für eine Aufstockung. Die verbauten 12cm Holzständer (außen), bzw. 9cm (innen) sind wahrscheinlich zu knapp bemessen für die erwarteten zusätzlichen Lasten. Die Deckenbalken sind mit 6cm Breite wohl auch zu schmal. Das Fertighaus wurde statisch gerade so ausgelegt, dass es als Bungalow funktioniert.
  • Ein Bautechniker hat das in einer weiteren Begehung bestätigt.
  • Von Streif Haus Haus warte ich immer noch auf die Rückmeldung, ob die etwas zaubern können.
Anbei Auszüge aus der Original Statikberechnung von Streif Haus Haus, bei welchem der Wandaufbau gut dargestellt ist. In dem Bild aus dem Dachgeschoss kann man die Holzständergrößen erahnen. Die Sparren links entsprechen in ihrer Breite im wesentlichen den DG Deckenbalken. Rechts im Bild sieht man die 12cm Außenwandbalken.

War das Haus so günstig?
Das war es in der Tat: Schenkung/vorgezogenes Erbe innerhalb der Familie.
Wir scheinen wohl die "falsche" Familie für das Objekt zu sein, da unser Platzbedarf schlicht größer ist und wir daher aufstocken wollen. Ein 2-Parteien-Haushalt könnte wohl problemloser (und minimalinvasiver) die bestehende Grundfläche sanieren und nutzen.

Die Tendenz geht daher wieder stärker Richtung (Teil-)Abriss bis auf OK Keller und Neuerrichtung als 1,5-Geschosser. Ein örtlicher Energieberater hat mir allerdings geraten, das ganze zumindest im Bauantrag als Sanierung zu deklarieren, was seiner Meinung nach grundsätzlich möglich sein sollte.

Außenansicht eines kleinen Einfamilienhauses mit Garten und Bäumen


Außenansicht eines kleinen Einfamilienhauses mit grünem Garten und Bäumen.


Einfamilienhaus mit grauer Putzfassade, braunem Dach und Gartenpflanzen im Vordergrund.


Einfamilienhaus mit Satteldach, Holzveranda, Satellitenschüssel und Garten.


Abschnitt 1: Dachstuhl, Decken- und Wandenelemente; Außenwände 12 cm, Innenwände 9 cm.


Technische Zeichnung eines Thermo-Sandwich-Wandaufbaus mit Holzrahmen und Putzträgerplatten


Technische Skizze einer Innenwand mit Holzständerwerk, Gipskarton- und Mineralfaserplatten, Maße.


Dachboden: Holzbalken, Ständerwerk und Betonboden, geringe Beleuchtung.
 
Zuletzt bearbeitet von einem Moderator:
M

Myrna_Loy

Anbei Bilder des Bestandsgebäudes.
In der direkten Nachbarschaft gibt es eine bunte Mischung verschiedener Haustypen (2-geschossig mit Walmdach, 2-geschossig mit Flachdach, 1,5-geschossig mit Satteldach und Gauben).



Genau, die Ostseite ist unverbaut und bietet eine schöne Aussicht. Daher würden wir dorthin auch das Wohnzimmer orientieren. Zumindest den Keller wollen wir aber auch im Falle eines Neubaus erhalten.


Zum aktuellen Stand Neubau vs. Sanierung:
  • Feedback der örtlichen Zimmerei nach Begehung: Die Statik der Außenwände und der Geschossdecke zwischen EG und DG wird wohl kritisch für eine Aufstockung. Die verbauten 12cm Holzständer (außen), bzw. 9cm (innen) sind wahrscheinlich zu knapp bemessen für die erwarteten zusätzlichen Lasten. Die Deckenbalken sind mit 6cm Breite wohl auch zu schmal. Das Fertighaus wurde statisch gerade so ausgelegt, dass es als Bungalow funktioniert.
  • Ein Bautechniker hat das in einer weiteren Begehung bestätigt.
  • Von Streif Haus warte ich immer noch auf die Rückmeldung, ob die etwas zaubern können.
Anbei Auszüge aus der Original Statikberechnung von Streif Haus, bei welchem der Wandaufbau gut dargestellt ist. In dem Bild aus dem Dachgeschoss kann man die Holzständergrößen erahnen. Die Sparren links entsprechen in ihrer Breite im wesentlichen den DG Deckenbalken. Rechts im Bild sieht man die 12cm Außenwandbalken.


Das war es in der Tat: Schenkung/vorgezogenes Erbe innerhalb der Familie.
Wir scheinen wohl die "falsche" Familie für das Objekt zu sein, da unser Platzbedarf schlicht größer ist und wir daher aufstocken wollen. Ein 2-Parteien-Haushalt könnte wohl problemloser (und minimalinvasiver) die bestehende Grundfläche sanieren und nutzen.

Die Tendenz geht daher wieder stärker Richtung (Teil-)Abriss bis auf OK Keller und Neuerrichtung als 1,5-Geschosser. Ein örtlicher Energieberater hat mir allerdings geraten, das ganze zumindest im Bauantrag als Sanierung zu deklarieren, was seiner Meinung nach grundsätzlich möglich sein sollte.
Dann hoffen wir, dass der Energieberater ansonsten in seinem Thema fit ist, denn ein Abriss bis auf den Keller winkt kein Bauamt als Sanierung durch.
 
11ant

11ant

Die Tendenz geht daher wieder stärker Richtung (Teil-)Abriss bis auf OK Keller und Neuerrichtung als 1,5-Geschosser.
Bei mir nach der detaillierteren Aufklärung nun auch. Allerdings würde ich die Kellerdecke stehen lassen und darüber nur bzgl. der Wände einen "Abriss" machen, d.h. das ganze Haus demontieren, bzgl. des Dachstuhles als Rückbau mit Blick auf Materialerhaltung. Da wird mir gerade eine Wissenslücke bewußt: mein Rolodex beinhaltet noch keine Unternehmen, die "Fertig"häuser rückbauen. Wer da welche kennt, bitte melden !

Ich sagte glaube ich bereits, daß ich mich freuen würde, dieses Projekt beratend zu begleiten, das ist nicht ganz trivial. Auf den Keller würde ich deutlich konturfolgender aufbauen als in der im Eingangsbeitrag skizzierten Form. Und wahrscheinlich einen "Anderthalbgeschosser", evtl. sogar in Mischbauweise.

Ein örtlicher Energieberater hat mir allerdings geraten, das ganze zumindest im Bauantrag als Sanierung zu deklarieren, was seiner Meinung nach grundsätzlich möglich sein sollte.
Dann hoffen wir, dass der Energieberater ansonsten in seinem Thema fit ist, denn ein Abriss bis auf den Keller winkt kein Bauamt als Sanierung durch.
 
M

Mal Bauen

Es gibt hier wieder Neues zu berichten:
Wie bereits geschrieben, werden wir auf den Bestandskeller einen 1,5-geschossigen Neubau setzen.
Nachdem wir initial mit einem Fertighausunternehmen geplant hatten (Beitrag #1), sind wir mittlerweile bei einem freien Architekten, der uns nun nach einem Gespräch und einem Vor-Ort-Besuch den ersten Grundriss-Entwurf zur Verfügung gestellt hat.
Tendenziell geht der Entwurf für uns in die richtige Richtung, der Teufel steckt aber noch sehr im Detail.
Um die Bewertung zu erleichtern, fülle ich den Steckbrief noch einmal neu aus (Änderungen zum Steckbrief aus Beitrag #1 in blau).
Ich habe auch wieder konkrete Fragen (lila hervorgehoben), freue mich aber grundsätzlich über jedwedes Feedback!
Danke schon einmal.


Bebauungsplan/Einschränkungen

Größe des Grundstücks:
615m²
Hang: Nord/Süd: <0,5m auf 18m, West-Ost: ca. 2m auf 33m (siehe Höhenverlauf in Beitrag #1)
Grundflächenzahl: Kein Bebauungsplan (§34 Baugesetzbuch). In der unmittelbaren Nachbarschaft gibt es tlw. sehr großzügig bebaute Grundstücke. Wir möchten die Grundfläche des Bestandsgebäudes nicht verändern, aber eine Doppelgarage (bisher nicht vorhanden) dazunehmen.
Geschossflächenzahl: Kein Bebauungsplan (§34 Baugesetzbuch)
Baufenster, Baulinie und -grenze: Kein Bebauungsplan (§34 Baugesetzbuch). Grundstücksgrenzen und Bestandsimmobilie siehe Luftaufnahme in Beitrag #1
Randbebauung: Die Garage des südlichen Nachbarn grenzt direkt an (9m). Daran würden wir dann gerne unsere Garage setzen
Anzahl Stellplatz: keine, Doppelgarage geplant
Geschossigkeit: 1,5-geschossig
Dachform: Satteldach
Stilrichtung: Modernes Einfamilienhaus
Ausrichtung: siehe Luftaufnahme in Beitrag #1, Eingang: Norden
Maximale Höhen/Begrenzungen: Kein Bebauungsplan
Der Vermesser hat die Bestandsimmobilie sowie die direkten Nachbarn kürzlich vermessen:
- Bestandsimmobilie (Bungalow mit Satteldach): Traufhöhe: 4,1m, Firsthöhe: 6,6m
- Südlicher Nachbar (2 Vollgeschosse + Walmdach): Traufhöhe: 7,8m, Firsthöhe: 11,9m
- Nördlicher Nachbar (2 Vollgeschosse + Pultdach): Traufhöhe: 5,4m, Firsthöhe: 6,8m
Geplantes Haus (Keller ragt ca. 70cm aus Boden): Traufhöhe: ~7m, Firsthöhe: 9,20m. (Alle Grenzabstände werden eingehalten)

Ich bin mir unsicher wie gut sich unser Haus hier in die Straße einfügt (nach §34 Baugesetzbuch). Kann man davon ausgehen, dass das Bauamt hier keine Einwände haben wird, da der südliche Nachbar ja noch höher baut? Der Architekt ist da bisher zumindest entspannt.
Direkte Nachbarschaft: Nördlicher Nachbar: 2-geschossig mit Flachdach. Südlich: 2-geschossig mit Walmdach, Westlich: 2,5-geschossig mit Satteldach

Anforderungen der Bauherren
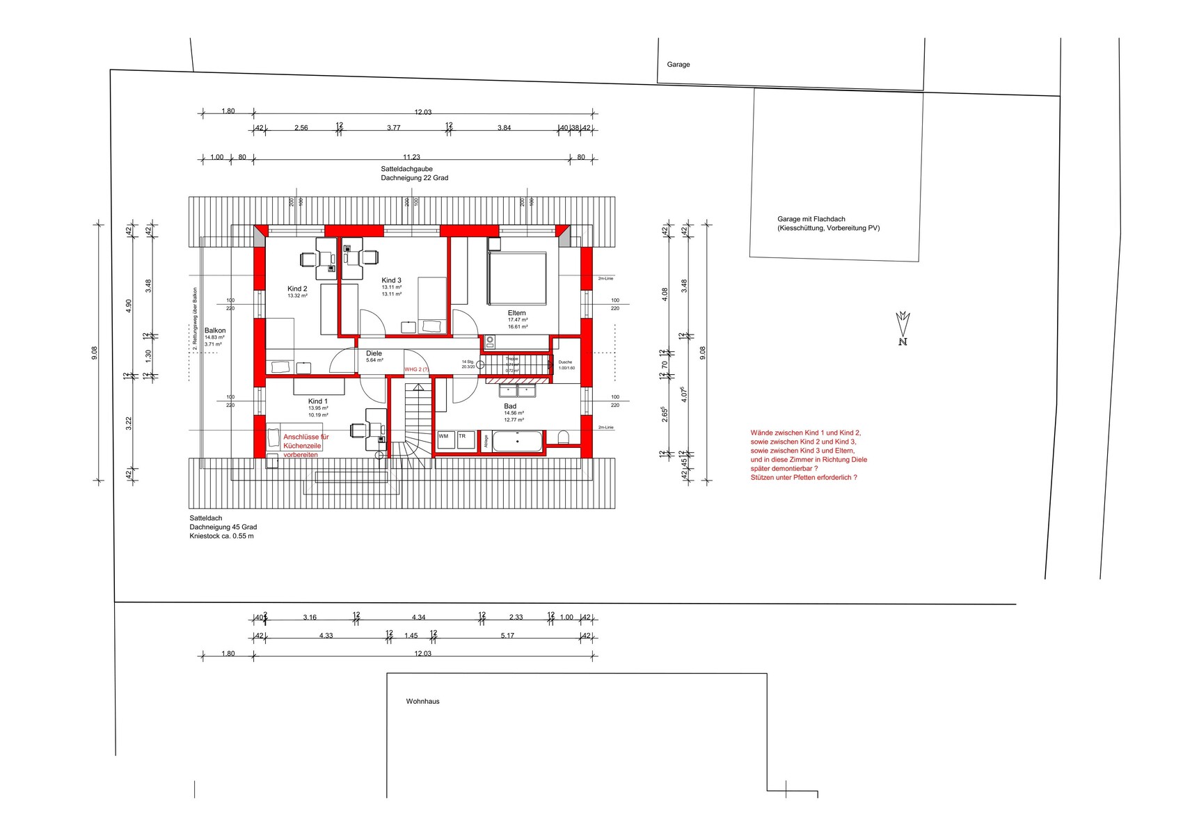
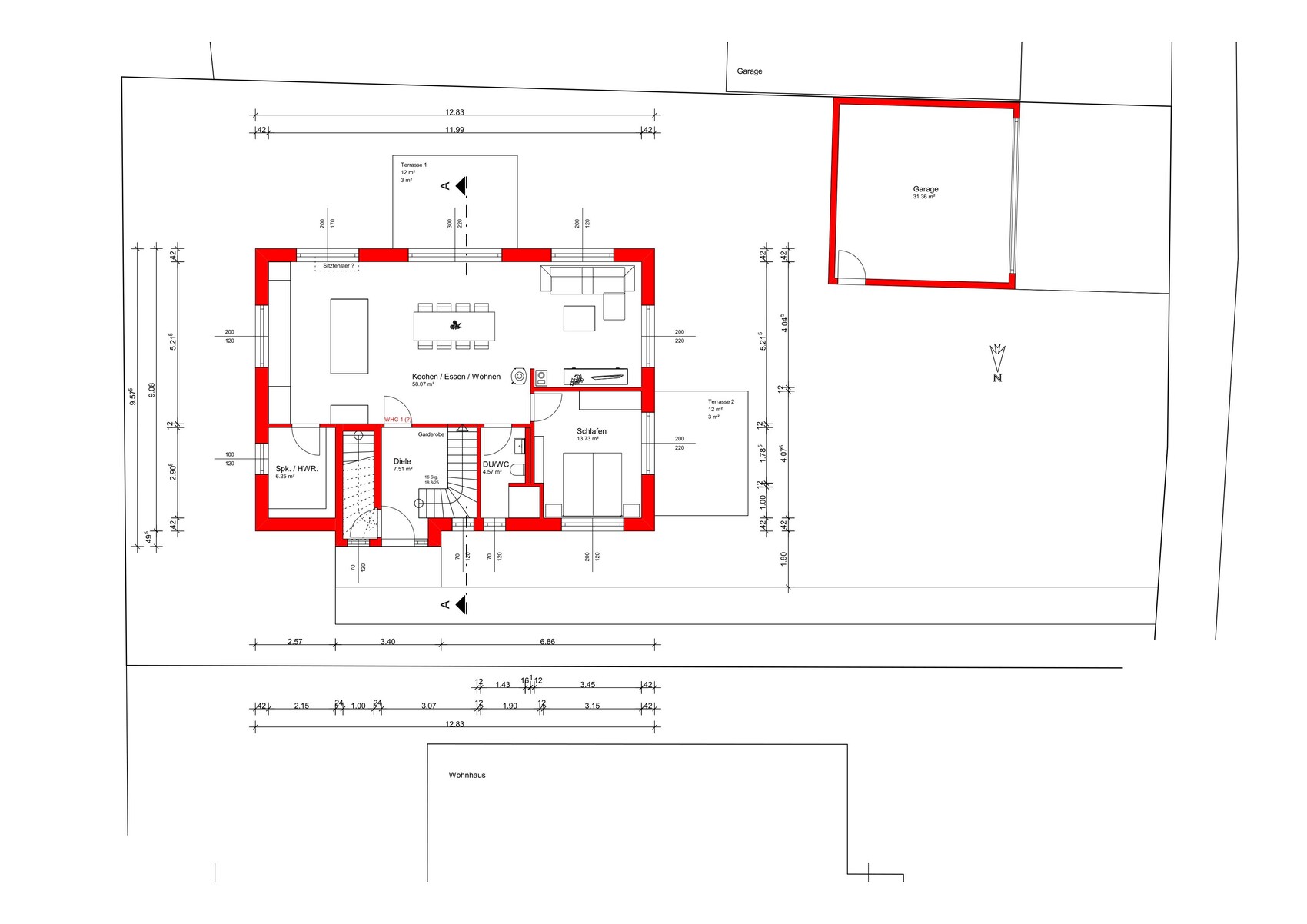
Stilrichtung, Dachform, Gebäudetyp: Wir möchten aus dem bestehenden Bungalow ein klassisches 1,5-geschossiges Einfamilienhaus mit Satteldach und einer Schleppgaube nach Süden machen.
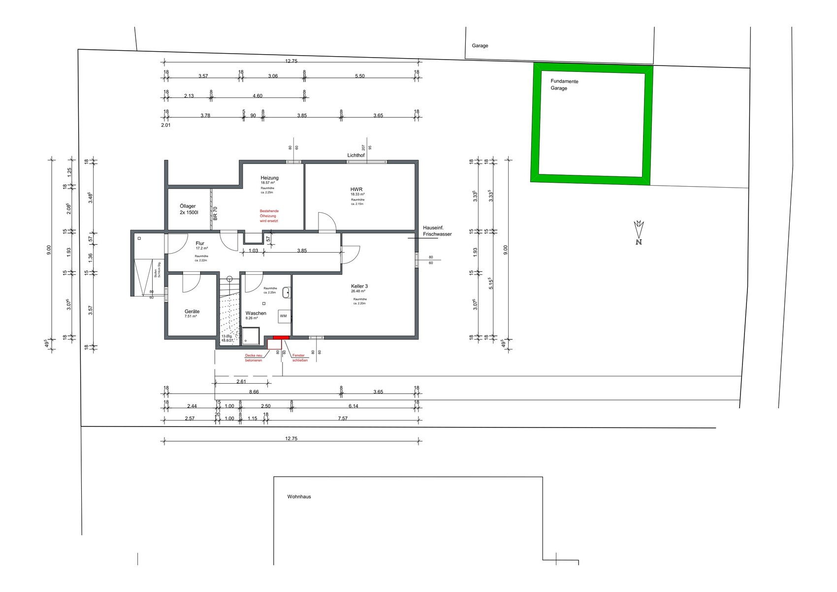
Keller, Geschosse: Nutzkeller (Bestand, Betonkeller), Erdgeschoss (Wohnen), Dachgeschoss (Schlafen), Dachspitz
Anzahl der Personen, Alter: Wir sind eine 4-köpfige Familie (Alter: 32, 30, 2, 0), ein weiteres Kind geplant
Raumbedarf im EG, OG:
Erdgeschoss: Wohnzimmer, Küche (mit Speis/Hauswirtschaftsraum), Raum für Homeoffice oder Gästezimmer, Gäste-WC mit Dusche, Garderobe
Dachgeschoss: Elternschlafzimmer, 3x Kinderschlafzimmer, Bad
Büro: Familiennutzung oder Homeoffice: Homeoffice (zu 100% für mich)
Schlafgäste pro Jahr: Wenige, <5 Personen/Nächte
Offene oder geschlossene Architektur: Tendenziell eher geschlossen. Möglichkeit zur Trennung von Essbereich und Wohnzimmer wäre wünschenswert (z.B. durch Schiebe- oder Faltwand).
Konservativ oder moderne Bauweise: Modern
Offene Küche, Kochinsel: Kochinsel kein Muss. Teilweise offene Küche: Möglichkeit zur Trennung vom Wohnzimmer wäre gut. Aktuell mit Kochinsel geplant.
Anzahl Essplätze: 5-8
Kamin: Nur falls Budget ausreichend, kein Muss. Derzeit mitgeplant.
Musik/Stereowand: Nein
Balkon, Dachterrasse: Balkon in DG Richtung Süden gewünscht, falls später eine eigene Wohneinheit daraus wird.
Garage, Carport: Doppelgarage
Nutzgarten, Treibhaus: Nein
weitere Wünsche/Besonderheiten/Tagesablauf, gern auch Begründungen, warum dieses oder das nicht sein soll: Technikraum soll im Bestandskeller untergebracht werden (z.B. im bisherigen Raum für die Ölheizung). Wichtig ist uns ein sinnvolles Wegekonzept: Haustür/DG-Treppe/Keller-Treppe. Im Idealfall kurze Wege zwischen Garage und Wohnung, sowie gute Erreichbarkeit der Räume innerhalb der Wohnung.

Die Herausforderung/Besonderheit in unserer Grundrissplanung ist der gesetzte Bestandskeller. Die Außenkonturen sind fix. Die Position der Kellertreppe ist fix (es soll nicht noch einmal an anderer Stelle ein alternatives Treppenloch freigemeiselt werden).
Nach Rücksprache mit dem Energieberater wird der Keller aus der thermischen Hülle des Neubaus genommen. Dementsprechend muss der Kellerabgang im EG (Tür und umgebendes Kellertreppenhaus) ausreichend dickwandig gedämmt werden. Zusätzlich bereiten wir das Haus auf 2 Wohneinheiten vor (Möglichkeit zur späteren Trennung von EG und DG). Daher müssen oben Küchenanschlüsse und ein eigener Eingang (am Ende der Treppe zum DG) vorbereitet werden. Hierdurch sind die Positionen der Hauseingangstür und der Treppe ins DG auch fix. Ziel ist ein möglichst energieeffizientes Haus. Laut Aussage unseres Energieberaters ist "KfW40 möglich, KfW55 sicher".
Ist das realistisch? Gibt es hier im Forum Erfahrungen im Bereich "KfW40/55-Neubau auf nicht-isoliertem Bestandskeller"?

Hausentwurf
Von wem stammt die Planung: Erster CAD-Entwurf eines Architekten nach gemeinsamer, mehrstündiger Skizzenarbeit
Was gefällt besonders? Warum?:
  • Alle gewünschten Räume sind eingeplant
  • Relativ großzügiger Garderobenbereich durch "Kragplatte" (Erweitern des Eingangsbereichs durch anbetonierte Kellerdeckenerweiterung)
  • Trennung der Wohneinheiten DG und EG möglich
  • Grundsätzlich gefällt uns das Erdgeschoss ganz gut, insbesondere die schöne Küche Richtung Süd-Osten mit toller Aussicht
  • Waschmaschine in DG Bad integriert (weniger Wäschetragen)
Was gefällt nicht? Warum?:
  • Kniestock von 0,65m (lichte Höhe) ist zu gering: Hierdurch verlieren wir im Bad 2m² und im Kinderzimmer kann das Bett nicht bis an die Wand gestellt werden. Der Kniestock ist wohl auch deshalb so niedrig, damit die Fensterbrüstungshöhe der Gaubenfenster noch im erträglichen Bereich liegt. Es sollte hier nach meinem Verständnis aber noch Maßnahmen geben die Gaubenfenster tiefer in das Dach "reinzuziehen" (z.B. durch Verblechung).
  • Der Dachspitz ist, durch den kleinen Kniestock und die sehr großzügige DG-Raumhöhe (hier würde es auch weniger tun) mit 1,70 sehr klein. Insbesondere die Platzspartreppe (statt der Ausziehtrepe, eigentlich eine nette Idee) macht so keinen Sinn, da der Austritt "firstfern" nur gebückt erfolgen kann
  • Der Balkon (Bauherrenwunsch, nicht die Schuld des Architekten) klaut uns womöglich zu viel Fläche in den Kinderzimmern, und könnte uns die Energiebilanz verhageln
  • Das Schleppgaubendach ist mit 22° sehr flach, wir hatten uns hier eher 30° erhofft (Optik und bessere Eignung für Photovoltaik), hier müsste die Anbindung der Gaube an die Kehlbalken verändert werden. Aktuell ist da sehr viel Fassadenfläche zwischen Gaubenfenster und Gaubendachrinne.
  • Wandrücksprünge bei den Duschen in EG und DG: Eigentlich eine nette Idee, aber im EG ist der Rücksprung mit 30cm so gering, dass im angrenzenden Büro Möbel nicht sinnvoll gestellt werden können. Im DG ist der Wandrücksprung wiederum zu groß, hier würde uns auch eine ~1,1x1,1m Dusche (geschlossen) genügen.
  • Garderobenbereich (Bauherrenwunsch) noch suboptimal in Schlafzimmer integriert. Eventuell müssen wir hier auf einen klassischen Bett-zugewandten Schrank zurückgehen
  • Vorbereitung für Küchenanschluss in Kind 2 statt Kind 1 (Küche der DG-Wohnung später in Kind 2 geplant).
  • Treppe EG-DG / Diele EG: Die erste Stufe ragt als Stolperfalle vor den Raum der Eingangstür. Eventuell kann die anbetonierte Kellerdecke um weitere 1,5m nach Westen verlängert werden (das eine Kellerfenster muss ohnehin geschlossen werden), damit auch die Treppe weiter in Richtung Norden kann.
  • Terrasse: Uns reicht eine Terrasse, dafür aber größer. Hier bevorzugen wir die straßenabgewandte Terrasse 1 und würden Terrasse 2 mitsamt Türen zum Haus streichen
  • 3x nordseitige Dachfenster in Bad, Treppenhaus und Kinderzimmer 1 könnten zur Verbesserung der Lichtsituation sinnvoll sein, evtl. mit Oberlicht über der Dielentür OG.
  • Bodentiefe (statt normale) Fenster in EZ und Bad sind nicht notwendig, hier schätzen wir die Privatsphäre und erwarten im Zusammenspiel mit Gaubenfenster (EZ) bzw. evtl. zusätzlichem Dachfenster (Bad) genügend Helligkeit
  • Die Entscheidung zur Bauweise (Holz oder Massiv) steht noch aus, aber es gibt eine Massivtendenz. Der Plan basiert daher auf 42,5er Porenbetonsteinen als Außenwände. Diese überkragen die Kellerdeckenkontur um 4cm umlaufend. Nach Rücksprache mit dem örtlichen Massivbauexperten können die Steine statisch wohl problemlos 12cm über den Keller kragen. Das könnte dem Grundriss noch einmal Luft geben und erleichtert den Übergang zur geplanten nachträglichen Außendämmung des Kellers.
  • Noch kein Konzept zur Trennung von Wohn- und Essbereich im EG
Preisschätzung laut Architekt/Planer: Steht noch aus. Was noch an teuren Posten dazu kommt: Photovoltaik, Wasser/Wasser-Wärmepumpe, Zentrale Kontrollierte-Wohnraumlüftung. Wir planen aktuell ohne angezogene Handbremse mit allen Wünschen artikuliert, der Rotstift kommt dann (wohl) noch
Persönliches Preislimit fürs Haus, inkl. Ausstattung: 700T€ (grob überschlagen: Abriss bis auf OK Kellerdecke: 30T€, Haus: 530T€, Baunebenkosten inkl. Statik Keller: 50T€, Doppelgarage: 30T€, Küche/Möbel: 40T€, Außenanlage: 20T€)
favorisierte Heiztechnik: Wärmepumpe mit Fußbodenheizung. Falls im Budget darstellbar: Sole/Wasser-Wärmepumpe mit Tiefenbohrung.

Wenn Ihr verzichten müsst, auf welche Details/Ausbauten
-könnt Ihr verzichten
: Nur ungern, aber in absteigender Reihenfolge: Kamin, Balkon, begehbarer Dachspitz mit fester Treppe, Speis/Hauswirtschaftsraum
-könnt Ihr nicht verzichten: Homeoffice-Büro

Warum ist der Entwurf so geworden, wie er jetzt ist?
Mehrstündige gemeinsame Ausarbeitung der Ideen mit dem Architekten mit Stift und Backpapier. Davor Telefonate und ein Vor-Ort-Besuch (inkl. Energieberater).
Grundriss eines Hauses mit Heizung, Waschen, Keller und grün markierten Garagenfundamenten.

Grundriss eines Hauses: Kochen/Essen/Wohnen, Schlafen, Dusche/ WC; roter Außenwandumriss; Garage.

Grundriss eines Hauses: Dachgeschoss mit Eltern- und Kind-Zimmern, Diele, Bad, Balkon.

Querschnitt A-A durch Haus mit Keller, Treppe, Wohn- und Dachgeschoss (Architekturplan).

Weißes Einfamilienhaus mit braunem Ziegeldach, Holztür, Fensterfront und Kellerfläche.

Modernes weißes Einfamilienhaus mit Satteldach, Balkon und großen Fenstern im Garten.

Modernes zweistöckiges Haus mit weißer Fassade, dunklem Dach und großen Glasfenstern.

Modernes weißes Einfamilienhaus mit Satteldach, großen Glasfenstern und Garage.
 
Zuletzt aktualisiert 09.10.2025
Im Forum Grundrissplanung / Grundstücksplanung gibt es 2513 Themen mit insgesamt 87220 Beiträgen


Ähnliche Themen zu Grundriss: Neubau auf Bungalow-Bestandskeller, 1,5-Geschossige
Nr.ErgebnisBeiträge
1Unsaniertes Einfamilienhaus von 1973 - Sanierung oder Neubau? 32
2Sanierung oder Abriss und Neubau - Entscheidungshilfe Architekt? - Seite 325
3Ist Schwörerhaus ein Premium-Anbieter im Vergleich mit Streif Haus? 22
4Firma Streif Haus Weinsheim - Erfahrungen mit Zahlungsverpflichtung? - Seite 453
5Entwurf / Verbesserung Einfamilienhaus 150-175m² mit Walmdach und Keller 39
6Erster Entwurf Einfamilienhaus 150m² mit Keller 38
7Grundriss-Entwurf: Einfamilienhaus; mit Keller; 800qm Grundstück - Seite 210
8Grundriss-Entwurf: Einfamilienhaus mit Keller; 560qm Grundstück - Seite 365
9Entwurf EFH, 2 Vollgeschosse, Satteldach, kein Keller, Doppelgarage - Seite 231
10Sanierung & DG-Ausbau: KfW? Wirtschaftlichkeit vs. Neubau? - Seite 218
11Wie Hauswirtschaftsraum im Keller sinnvoll in die thermische Hülle? - Seite 315
12Altbau-Sanierung sinnvoll? - Seite 442
13Kostenschätzung bei Abriss und Neubau. - Seite 275
14Neubau Einfamilienhaus oder Kernsanierung Haus BJ 1978 - Seite 339
15Haus aus dem 30-er Jahren. Sanieren oder Neubau? 25
16Kostenpauschale bei Haus Sanierung - was ist realistisch? 15
17Abriss Haus 270 J. alt & Neubau modernen Multifunktionsgebäude 23
18Abriss altes Haus - Keller bleibt - neues Haus drauf bauen? - Seite 216
19Bundesförderung für effiziente Gebäude (BEG) ab I. Quartal 2021 - Seite 16240
20Energieberater meint KFW 55 - Mit Massivbau zu empfehlen? 21

Oben