Grundriss Einfamilienhaus mit ca 150 qm auf Hinterliegergrundstück

4,80 Stern(e) 8 Votes
Zuletzt aktualisiert 20.11.2025
Sie befinden sich auf der Seite 7 der Diskussion zum Thema: Grundriss Einfamilienhaus mit ca 150 qm auf Hinterliegergrundstück
>> Zum 1. Beitrag <<

H

Hausbaurer

Nur so ein Gedanke: wenn der Nachbar ständig Eure Einfahrt benutzt, repariert er die dann auch mit, wenn sie kaputt geht?
Das haben wir noch nicht überlegt. Würde einem Pflaster schon eine gewissen Haltbarkeit zutrauen, auch wenn die PKW scheinbar jetzt 2t oder mehr wiegen.
Habt Ihr denn schon eine Firma, mit der Ihr bauen wollt oder plant Ihr erstmal drauf los, um ein Gefühl für das Grundstück zu bekommen?
Wir haben schon bei mehreren Fertighausanbietern angefragt und auch einen Entwurf erhalten der allerdings anders als unserer aussieht. Wir wollen noch zum Vergleich bei Massivhausbauern fragen.
Kannst Du zu dem Grundstück noch die Maße nennen (das Gesamtrechteck reicht, ohne die Einfahrt)?
Nord, Ost, Süd, West: ca. 20x21x19x22 (in Metern).
 
H

hanghaus2023

Danke für das Luftbild.
Ich habe mal im Bayernatlas nachgemessen. MMn sollte die Grenze 11 m vom Nachbarhaus verlaufen. Trotzdem ist die Einfahrt vom Westen nur 5 m.




Luftbild eines Grundstücks mit gelben Parzellenlinien, überlagert von Grundrissplan.




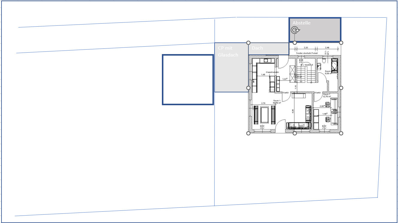
Hier mal noch das Grundstück nachgezeichnet.


Grundriss eines Hauses mit Nebengebäuden; Abstelle, CP mit Glasdach, Dach
 
11ant

11ant

Es scheint gar nicht so einfach Architekten zu finden, die sich mit der Planung eines Einfamilienhaus abgeben. So hab ich in der Region Nürnberg-Erlangen-Fürth viele Absagen erhalten.
Unsere bisherige Idee ist mit dem Planer eines Generalunternehmers zu arbeiten um den Hausbau zu verwirklichen.
Ich helfe gern bei der Findung von Architekten und Baufirmen. Auch mir sagt nicht jeder zu, aber nach Analyse Deiner Absagen mögen sich auch Ansatzpunkte für geschickteres Anfragen ergeben.
Meine Vorgehensweise wäre hier andersherum aufgezäumt ähnlich, und würde einen Architekten für zunächst das "Modul A" (Ein Hausbau-Fahrplan, auch für Sie: das Phasenmodell der HOAI!") mit einschließen. Wenn Du den Beitrag (mit den Anführungszeichen) ergugelt hast, kennst Du auch den Weg zu mir.
Die Höhenlage des Grundstücks ist unspektakulär, fast ebene Fläche. [...] Wir können uns vorstellen hier drei oder vier Räume einzurichten. Einer der Räume wird für die Technik verwendet.
Wenn das Grundstück einem Bodenplattenhaus nicht entgegensteht, ist ein Keller (ibs. für einen benötigten und drei oder vier noch sinnsuchende Räume) Luxus. Das kann man machen, aber in diesem Fall kaufe ich lieber ein großes Eis mit Sahne und freue mich über das hohe Wechselgeld.
 
Zuletzt aktualisiert 20.11.2025
Im Forum Grundrissplanung / Grundstücksplanung gibt es 2535 Themen mit insgesamt 87977 Beiträgen


Ähnliche Themen zu Grundriss Einfamilienhaus mit ca 150 qm auf Hinterliegergrundstück
Nr.ErgebnisBeiträge
1Kostenplanung Einfamilienhaus inkl. Grundstück, Nebenkosten, Architekten 32
2Kostenschätzung zweier Architekten liegen weit auseinander! 10
3Grundstück reserviert, Baufinanzierung Plan, Architekt/Bauantrag 21
4Vorplanung mit dem Architekten - eigener Grundriss sinnvoll? - Seite 218
5Meinungen zum Grundstück am Hang. - Seite 222
6Fragen/vernachlässigtes Grundstück/Wiese, Baumaßnahmen eruieren - Seite 544
7Baukosten bei Bau mit Architekten. Was sagt eure Erfahrung? 18
8Architekten finden - aber wie? - Seite 426
9Grundstück reserviert. Finanzierung steht an - Seite 252
10Massivhaus vom Architekten, ungefähre Kosten? 16
11Grundstückskauf an Architekten gebunden ist das Normal? 16
12Bauvorhaben mit Architekten 31
13langes, schmales Grundstück teilen - Seite 212
14Hausbau auf schmalen Grundstück? 3-Familienhaus besteht schon - Seite 356
15Einschätzung Bebaubarkeit großes Grundstück nach §34 - Seite 217
16Erst Haus planen und erst danach dann Grundstück kaufen? - Seite 1079
17Vorschläge vom Architekten enttäuschend - Wie weiter? 32
18Altbau auf Grundstück - Bungalow Anbau - Diverse Probleme 10
19Grundflächenzahl/Geschossflächenzahl bei Grundstück ohne Bebauungsplan: Wie kalkulieren? Erfahrungen? - Seite 218
20Neubau Rohbau Auswahl: Unternehmen oder Architekten nehmen? 52

Oben