Grundriss Einfamilienhaus mit ca 150 qm auf Hinterliegergrundstück

4,70 Stern(e) 7 Votes
Zuletzt aktualisiert 08.10.2025
Sie befinden sich auf der Seite 16 der Diskussion zum Thema: Grundriss Einfamilienhaus mit ca 150 qm auf Hinterliegergrundstück
>> Zum 1. Beitrag <<

RomeoZwo

RomeoZwo

Da ja das Auto selten bewegt werden soll und eine untergeordnete Rolle spielt - hier mit minimierter Einfahrtsfläche (jeder m2 Pflaster kostet).


Grundriss eines Hauses mit Carport oben, Innenaufteilung sichtbar, Nachbar-Garage links
 
D

dieJulia

Ja, wobei wir tatsächlich die Idee mit dem Carport im Westen gar nicht so schlecht finden.
Küche und Wohnzimmer tauschen, hat dann aber den Effekt.


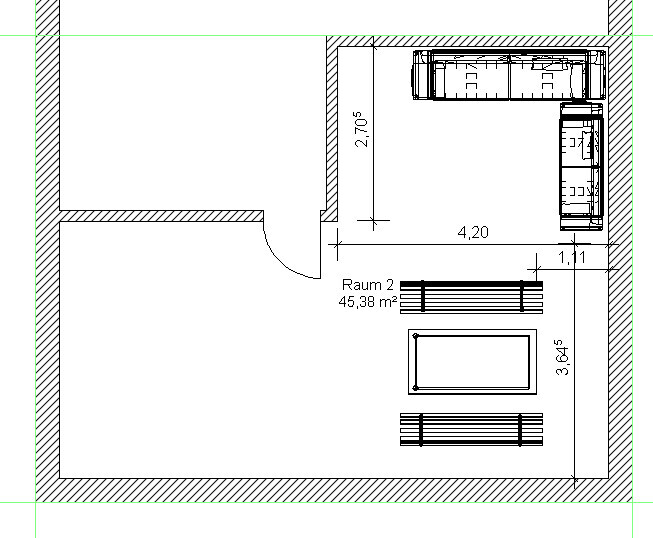
2D-Grundriss eines Wohnraums mit Sitzgruppe und Durchgängen

Die 4,20 ist ok, ein bissl mehr durch Erker geht auch. Der TV steht dann ja z.B. an der westlichen Innenwand. Aber die 2,70 funktionieren nicht gut. Dh Raum dafür müsste man über das Büro schaffen. Halben Meter kürzer, nehm ich gerne, wüsste aber eben nicht, wie man das dann gut mit dem Wohnzimmer im Osten machen soll. Mit WZ im Westen kann man das Haus tatsächlich gut noch nen halben Meter kleiner machen. Irgendwo hab ich da auch eine Version. Mit dem halben meter ist es aber "luftiger". Man merkt es dann an ein paar Stellen, zumindest auf dem Plan schon.

Die Wand hinter der Tür hätte die Funktion gehabt ein wenig als Sichtschutz zu funktionieren und Stellfläche für ein Bücherregal oä zu schaffen.

Wir waren gestern nochmal da und hab nochmal geschaut, wie es sich verhält, wenn wir das Haus an die 3m Grenze im Norden schieben, 4m von der Westgrenze weg und aber eben die 9,25 haben. Es ist schon Gewinn für den Süden, wenn die 1,5m + 1,75 zum Garten kommen, wenn das Haus wie beim ersten Plan gedreht ist.

Budget: ja, also irgendwo ist dann bei 660k inkl der Baunebenkosten, ohne Außenanlagen bei mir auch Schluss. Nu muss man aber auch sagen, dass wir eben ein Holzhaus möchten und das schon teurer ist, als massiv, zumindest das was wir so an Angeboten bekommen haben. Von Fertighausbauern habe ich konkrete Zahlen, bei Massiv bisher noch kein fertig ausgearbeitetes, sondern eher so grobe Schätzungen.
 
11ant

11ant

Mir gibt es halt nix, ein großes Schlafzimmer zu haben und meinem Mann auch nichts.
Nicht vergessen: je kleiner das Schlafzimmer, desto bedeutender die (möglichst: zentrale) Kontrollierte-Wohnraumlüftung.
zig mal die Nachbarn befragt, deren Bauvorhaben sich massiv verzögert hat, weil der Bauantrag nicht durch ging (der im übrigen von einem Architekten stammt)
Da würde ich doch einen von deren Architekten nehmen, wenn die schon Erfahrung mit diesem Baugebiet haben. So hätte sich das Architektensuchen in NüFüErl schon erledigt (andernfalls stehe ich natürlich gerne zur Verfügung).
Hier die gedrehte Version.
Was sind das für Wandstärken und Öffnungsmaße - soll mit einem Holzer (Bien-Zenker ?) gebaut werden ?
 
D

dieJulia

Ja, holzständer, aber nicht Bien-Zenker. Die Angebote der Holzhäuser wurden in den entsprechenden Standardwandstärken der jeweiligen Anbieter erstellt. Zwischen 345 bis 410 außen war so ziemlich alles gängiges dabei. Dadurch schiebt sich natürlich alles ein wenig, ist aber in Summe kein Problem.
 
D

dieJulia

Ich glaub, ich würde die Hütte an die 3m im Norden ran schieben, Radschuppen Richtung Nordosten. Bin mir nur nicht sicher, ob mal da in den carport rein und rauskommt. Ggf muss ne Ecke vom Haus weg
 
Zuletzt aktualisiert 08.10.2025
Im Forum Grundrissplanung / Grundstücksplanung gibt es 2512 Themen mit insgesamt 87205 Beiträgen


Ähnliche Themen zu Grundriss Einfamilienhaus mit ca 150 qm auf Hinterliegergrundstück
Nr.ErgebnisBeiträge
1Haus, Garage / Carport auf dem Grundstück platzieren - Seite 493
2Grundriss 120 m², Einfamilienhaus 1,5, Carport. Meinungen, Ideen, Vorschläge - Seite 742
3Grenzbebauung Doppelgarage/Carport 6x9m Niedersachsen - Seite 329
4Carport aus Aluminium - Seite 229
5Carport mit Terrassendach gleich kombinieren - Rechtlich - Seite 213
6Garage genehmigt, aber Carport gebaut - Seite 323
7Carport Abweichung vom Bauantrag 21
8Kosten für Punkt-Fundamente und Carport-Entwässerung - Seite 225
9Carport/Garage Breite - Reichen 2.50m oder ist das eher zu schmal 29
10Zufahrt zum Carport wie steil? 14
11Carport mit großer Spannweite ohne extra Mittelfpfosten - Seite 215
12Carport Entwässerung, Wassermenge berechnen - Seite 213
13Carport Untersicht verputzen 26
14Carport oder Garage, was macht mehr Sinn? - Seite 244
15Carport mit begrüntem Dach und Begrünung seitlich 17
16Haus / Carport mit L-Steinen oder gibt es bessere Alternativen? 21
17Carport mit Geräteraum: Bestellen oder selbst bauen? - Seite 210
18Carport Kosten realistisch? Was hat euer Carport gekostet? - Seite 739
19Doppelgarage massiv vs. Fertiggarage vs. Carport 46
20Carport als Terrassenüberdachung nutzen? - Seite 318

Oben