ᐅ Grundriss Einfamilienhaus mit ca 150 qm auf Hinterliegergrundstück
Erstellt am: 27.02.23 08:24
H
HausbaurerH
Hausbaurer27.02.23 08:24Hallo Hausbau-Foristen,
ich lese gerne in diesem Forum und möchte unsere Planung zur Diskussion stellen. Unser Grundstück ist die Flurnummer 173/6.
Bebauungsplan/Einschränkungen
Größe des Grundstücks: 498 m² (Zufahrt ca 60 m²)
Hang: Nein
Grundflächenzahl: Kein Bebauungsplan (§34 Baugesetzbuch)
Geschossflächenzahl: Kein Bebauungsplan (§34 Baugesetzbuch)
Baufenster, Baulinie und -grenze: 3 m zur Grundstücksgrenze gem. Bayrischer Bauordnung
Randbebauung: keine
Anzahl Stellplatz: 1
Geschossigkeit: 1,5
Dachform: Satteldach 40-45° Dachneigung
Stilrichtung: Einfamilienhaus
Ausrichtung: Firstlinie Ost/West
Platzierung auf dem Grundstück: Nordwesten
Maximale Höhen/Begrenzungen: ca. 9m (§34 Baugesetzbuch)
Direkte Nachbarschaft: Nachbar Nord 1,5-geschossig mit Satteldach. Nachbar Süd 1-geschossig mit Walmdach. Nachbar West 1,5-geschossig mit Satteldach.
Übernächster Nachbar Süd 1,5-2-geschossig mit Satteldach und Kniestock >1,2 m.
Anforderungen der Bauherren
Stilrichtung, Dachform, Gebäudetyp: Satteldach, Kniestock 1,4 m, Einfamilienhaus
Keller, Geschosse: Nutzkeller (Beton), EG, OG
Anzahl der Personen, Alter: 4 (2 Erwachsene + 2 Kleinkinder)
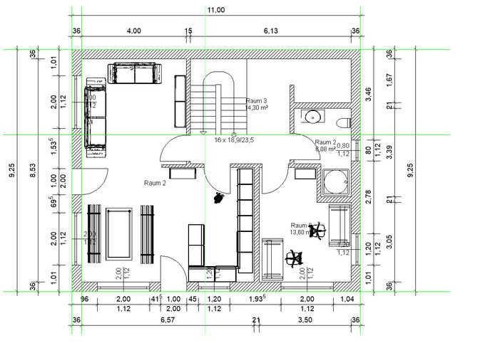
Raumbedarf im EG, OG: EG (Küche, Wohnen, Duschbad, Garderobe, Arbeitszimmer), OG (2 Schlafzimmer, 2 Kinderzimmer, Bad)
Büro: Homeoffice
Schlafgäste pro Jahr: 0
offene oder geschlossene Architektur: Tendenziell eher geschlossen.
konservativ oder moderne Bauweise: Modern
offene Küche, Kochinsel: Ja, Kochinsel nein.
Anzahl Essplätze 6-8
Kamin: Nein
Musik/Stereowand: Nein
Balkon, Dachterrasse: Nein
Garage, Carport: Garage oder Carport
Nutzgarten, Treibhaus: Nein
weitere Wünsche/Besonderheiten/Tagesablauf, gern auch Begründungen, warum dieses oder das nicht sein soll:
Hausentwurf
Von wem stammt die Planung:
-Do-it-Yourself
Was gefällt besonders? Warum?: Duschnischen in den Bädern, große Kinderzimmer nach Westen, L-förmiger Wohn-Essbereich anstelle Schlauch
Was gefällt nicht? Warum?: OG Bad, Arbeitszimmer im Südosten anstelle Nordwest.
Preisschätzung lt Architekt/Planer: 580000 EUR
Persönliches Preislimit fürs Haus, inkl. Ausstattung:
favorisierte Heiztechnik: Luft-Wasser-Wärmepumpe mit Fußbodenheizung.
Wenn Ihr verzichten müsst, auf welche Details/Ausbauten
-könnt Ihr verzichten:
Arbeitszimmer im EG (Sofern Ersatz im KG)
-könnt Ihr nicht verzichten:
4 Schlafzimmer
Warum ist der Entwurf so geworden, wie er jetzt ist?
Anforderungen und viele Versuche mit unseren Möbeln. Möglichst viel Garten im Süden und Osten.
Was ist die wichtigste/grundlegende Frage zum Grundriss in 130 Zeichen zusammengefasst?
Wieviel Abstand sollte man im Norden zur Garage oder zum Carport einplanen? Durchgang sollte Platz für Menschen und Fahrräder bieten (Fahrradschuppen hinter Garage/Carport geplant. Ist der Entwurf insgesamt verwendbar oder haben wir etwas übersehen?
Viele Grüße,
Hausbaurer




ich lese gerne in diesem Forum und möchte unsere Planung zur Diskussion stellen. Unser Grundstück ist die Flurnummer 173/6.
Bebauungsplan/Einschränkungen
Größe des Grundstücks: 498 m² (Zufahrt ca 60 m²)
Hang: Nein
Grundflächenzahl: Kein Bebauungsplan (§34 Baugesetzbuch)
Geschossflächenzahl: Kein Bebauungsplan (§34 Baugesetzbuch)
Baufenster, Baulinie und -grenze: 3 m zur Grundstücksgrenze gem. Bayrischer Bauordnung
Randbebauung: keine
Anzahl Stellplatz: 1
Geschossigkeit: 1,5
Dachform: Satteldach 40-45° Dachneigung
Stilrichtung: Einfamilienhaus
Ausrichtung: Firstlinie Ost/West
Platzierung auf dem Grundstück: Nordwesten
Maximale Höhen/Begrenzungen: ca. 9m (§34 Baugesetzbuch)
Direkte Nachbarschaft: Nachbar Nord 1,5-geschossig mit Satteldach. Nachbar Süd 1-geschossig mit Walmdach. Nachbar West 1,5-geschossig mit Satteldach.
Übernächster Nachbar Süd 1,5-2-geschossig mit Satteldach und Kniestock >1,2 m.
Anforderungen der Bauherren
Stilrichtung, Dachform, Gebäudetyp: Satteldach, Kniestock 1,4 m, Einfamilienhaus
Keller, Geschosse: Nutzkeller (Beton), EG, OG
Anzahl der Personen, Alter: 4 (2 Erwachsene + 2 Kleinkinder)
Raumbedarf im EG, OG: EG (Küche, Wohnen, Duschbad, Garderobe, Arbeitszimmer), OG (2 Schlafzimmer, 2 Kinderzimmer, Bad)
Büro: Homeoffice
Schlafgäste pro Jahr: 0
offene oder geschlossene Architektur: Tendenziell eher geschlossen.
konservativ oder moderne Bauweise: Modern
offene Küche, Kochinsel: Ja, Kochinsel nein.
Anzahl Essplätze 6-8
Kamin: Nein
Musik/Stereowand: Nein
Balkon, Dachterrasse: Nein
Garage, Carport: Garage oder Carport
Nutzgarten, Treibhaus: Nein
weitere Wünsche/Besonderheiten/Tagesablauf, gern auch Begründungen, warum dieses oder das nicht sein soll:
Hausentwurf
Von wem stammt die Planung:
-Do-it-Yourself
Was gefällt besonders? Warum?: Duschnischen in den Bädern, große Kinderzimmer nach Westen, L-förmiger Wohn-Essbereich anstelle Schlauch
Was gefällt nicht? Warum?: OG Bad, Arbeitszimmer im Südosten anstelle Nordwest.
Preisschätzung lt Architekt/Planer: 580000 EUR
Persönliches Preislimit fürs Haus, inkl. Ausstattung:
favorisierte Heiztechnik: Luft-Wasser-Wärmepumpe mit Fußbodenheizung.
Wenn Ihr verzichten müsst, auf welche Details/Ausbauten
-könnt Ihr verzichten:
Arbeitszimmer im EG (Sofern Ersatz im KG)
-könnt Ihr nicht verzichten:
4 Schlafzimmer
Warum ist der Entwurf so geworden, wie er jetzt ist?
Anforderungen und viele Versuche mit unseren Möbeln. Möglichst viel Garten im Süden und Osten.
Was ist die wichtigste/grundlegende Frage zum Grundriss in 130 Zeichen zusammengefasst?
Wieviel Abstand sollte man im Norden zur Garage oder zum Carport einplanen? Durchgang sollte Platz für Menschen und Fahrräder bieten (Fahrradschuppen hinter Garage/Carport geplant. Ist der Entwurf insgesamt verwendbar oder haben wir etwas übersehen?
Viele Grüße,
Hausbaurer
Hausbaurer schrieb:
Ist der Entwurf insgesamt verwendbar [...]Ja, schau mal da: https://www.hausbau-forum.de/threads/eigener-grundrissentwurf-stadtvilla-180qm-mit-doppelgarage-feedback.44736/page-8#post-620055 Entwurf Nr. 2 - das hast Du quasi ein bißchen sparsamer und auf "Anderthalbgeschösser" übersetzt.Hausbaurer schrieb:
[...] oder haben wir etwas übersehen?Selbst wenn nicht: ich würde stets mit Architekt bauen (und vor der Planung möglichst wenig bildhaft selber werkeln). Dennoch ist auch ein Kataloghaus als Grundlage hier nicht ausgeschlossen (vom Grundstück höhenmäßig und vom Keller zeigst Du leider nichts).https://www.instagram.com/11antgmxde/
https://www.linkedin.com/company/bauen-jetzt/
H
Hausbaurer28.02.23 08:3711ant schrieb:
Selbst wenn nicht: ich würde stets mit Architekt bauen (und vor der Planung möglichst wenig bildhaft selber werkeln). Dennoch ist auch ein Kataloghaus als Grundlage hier nicht ausgeschlossen (vom Grundstück höhenmäßig und vom Keller zeigst Du leider nichts).Es scheint gar nicht so einfach Architekten zu finden, die sich mit der Planung eines Einfamilienhaus abgeben. So hab ich in der Region Nürnberg-Erlangen-Fürth viele Absagen erhalten. Unsere bisherige Idee ist mit dem Planer eines Generalunternehmers zu arbeiten um den Hausbau zu verwirklichen.Die Höhenlage des Grundstücks ist unspektakulär, fast ebene Fläche. Auf dem Flurstück 173/5 wird gerade gebaut und bei der Errichtung dessen Rohbaus gab es keine Auffälligkeiten.
Der Keller selber soll ein Nutzkeller werden. Für die Aufteilung der Räume gibt es noch keine Festlegung. Wir können uns vorstellen hier drei oder vier Räume einzurichten. Einer der Räume wird für die Technik verwendet.
H
hanghaus202328.02.23 09:01Der Lageplan zeigt mir kein unbebautes Grundstück und eine große Grenzgarage des Nachbarn auch nicht. Welches Grundstück ist es denn?
H
Hausbaurer28.02.23 10:28hanghaus2023 schrieb:
Der Lageplan zeigt mir kein unbebautes Grundstück und eine große Grenzgarage des Nachbarn auch nicht. Welches Grundstück ist es denn?Unser Grundstück ist die Flurnummer 173/6. Der Nachbar auf der Flurnummer 190/25 plant eine Doppelgarage als Grenzbebauung auf seiner östlichen Grenze. Diese geplante Garage findet sich auf dem Grundriss EG mit Umgebung wieder an unserer westlichen Grenze.Die auf dem Lageplan bei 173/6 und 190/25 eingezeichneten Garagen wurden bereits abgerissen.
H
hanghaus202328.02.23 18:34Warum stellst Du einen Plan ein, wo Dein Grundstück nur teilweise enthalten ist?
Ähnliche Themen