Grundriss Einfamilienhaus ca 200 qm für 4 Personen die ersten Entwürfe

4,90 Stern(e) 8 Votes
Zuletzt aktualisiert 25.11.2025
Sie befinden sich auf der Seite 8 der Diskussion zum Thema: Grundriss Einfamilienhaus ca 200 qm für 4 Personen die ersten Entwürfe
>> Zum 1. Beitrag <<

D

darek6er

Da bin ich wieder nach einen ersten Termin mit dem Architekten hat er uns etwas verändert hier die erste Variante die mehr mein Favorit ist.

Eure Meinung ?

Danke schon mal !




Zwei Grundrisse: EG mit Kochen/Essen/Wohnen, Arbeiten, WC; OG mit Bad, Schlafen, Ankleide, Kind I/II

Vier Ansichten eines modernen Gebäudes mit schrägem Dach: Westen, Süden, Osten, Norden.
 
I

ivenh0


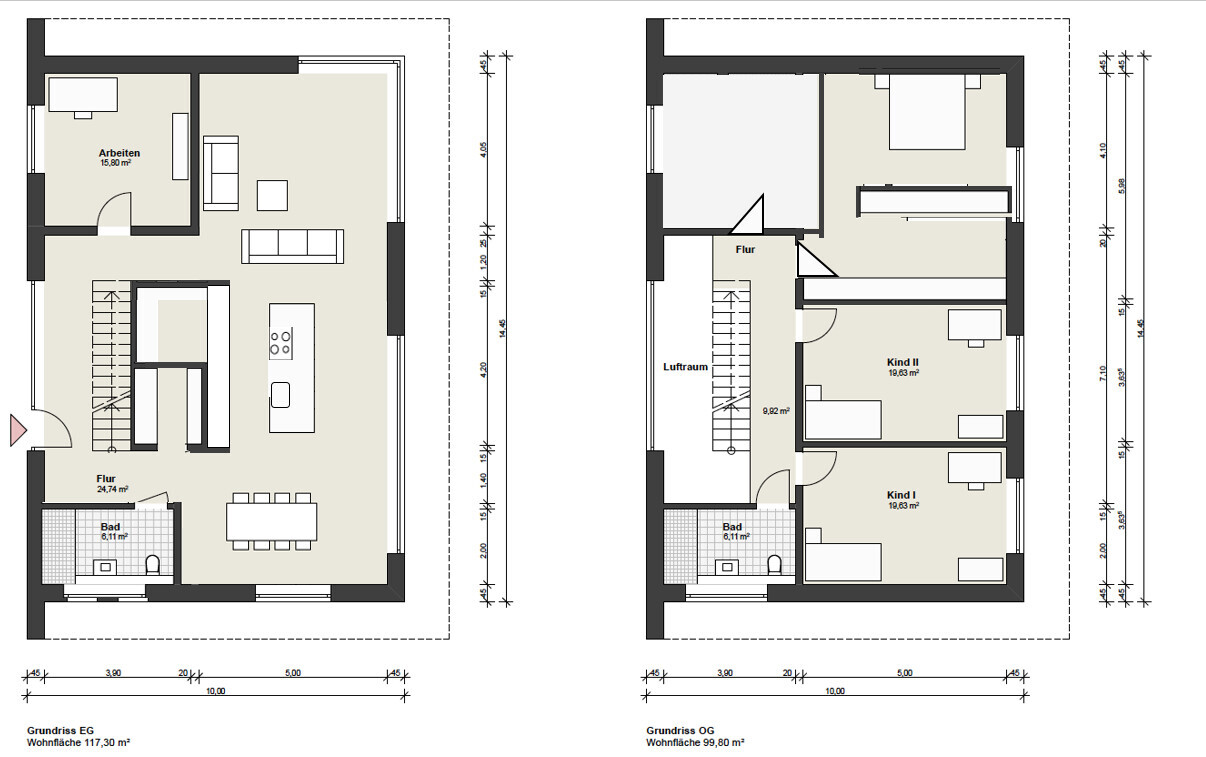
Zweigeschossiger Grundriss: EG mit Küche, Wohnen; OG mit Flur, Luftraum, zwei Kinderzimmer, Bad.


Ich habe mal etwas gepuzzelt:
EG
--> vernünftiger Flugzeugträger (3,6m) als Küche mit versteckter Speisekammer
--> Duschbad anstatt nur WC
OG
--> Elternbereich im vorderen Bereich. Dadurch muss man nicht an schlafenden Kindern vorbei. Durch Änderung deutlich größer und geräumiger auf gleicher Fläche

So wäre es meins. Vllt gefällt es dir, vllt auch nicht.

Ansicht ist auch noch nicht wirklich gut. Auf das Haus gehört ein Flachdach und dann geht es in so eine Richtung:

Zweigeschossiges modernes Haus mit großen Glasfronten und grauen Fassadenplatten.


Das bekommt euer Architekt bestimmt cool hin. Auf gehts
 
Zuletzt bearbeitet:
Zuletzt aktualisiert 25.11.2025
Im Forum Grundrissplanung / Grundstücksplanung gibt es 2536 Themen mit insgesamt 88015 Beiträgen
Oben