ᐅ Grundrissplanung Keller, EG + DG
Erstellt am: 26.04.16 20:44
Hallo zusammen,
nach reichlichem Lesen würde ich euch gerne unseren Grundriss vorstellen und vielleicht
den ein oder anderen Hinweis dazu erhalten was man ändern sollte oder verbessern könnte.
Bebauungsplan/Einschränkungen
Größe des Grundstücks: 485
Hang: nein
Grundflächenzahl: 0,35
Geschossflächenzahl: 0,70
Randbebauung: links Stückobstwiese, Rechts Neubau
2 Garagen
Geschossigkeit: 2
Satteldach
Ausrichtung Süd
Maximale Höhen/Begrenzungen: 11,50 m
Traufhöhe: 4,50 m
Anforderungen der Bauherren
Keller, EG + DF
zur Zeit noch 2 Personen
Homeoffice
offene oder geschlossene Architektur: frei
konservativ oder moderne Bauweise: modern
offene Küche, Kochinsel: offen
Anzahl Essplätze 4
Kamin nein
2 Garage, Carport
Wunsch: GErade Treppe
Hausentwurf
Von wem stammt die Planung: Architekt nach Vorgabe
Was gefällt nicht? Garderobe im Eingangsbereich
Preisschätzung lt Architekt/Planer: 360000 €
favorisierte Heiztechnik: Erdwärme
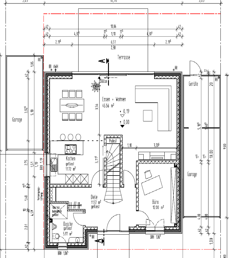
Das was wir aktuell praktisch noch überlegen ist quasi das drehen des EG, also Küche auf der Planung nach rechts und Wohnbereichseite nach links, da dann die Rohre alle auf einer Seite verlaufen können. Ursprünglich war das DG umgekehrt, allerdings fanden wir es schöner das Schlafzimmer Richtung grüner Wiese zu haben anstatt zum Nachbarn. Der Podestbereich im Treppenabgang ist im wesentlichen für Getränkekisten gedacht, ist aber eine offene Option.
Gruß
Sascha




nach reichlichem Lesen würde ich euch gerne unseren Grundriss vorstellen und vielleicht
den ein oder anderen Hinweis dazu erhalten was man ändern sollte oder verbessern könnte.
Bebauungsplan/Einschränkungen
Größe des Grundstücks: 485
Hang: nein
Grundflächenzahl: 0,35
Geschossflächenzahl: 0,70
Randbebauung: links Stückobstwiese, Rechts Neubau
2 Garagen
Geschossigkeit: 2
Satteldach
Ausrichtung Süd
Maximale Höhen/Begrenzungen: 11,50 m
Traufhöhe: 4,50 m
Anforderungen der Bauherren
Keller, EG + DF
zur Zeit noch 2 Personen
Homeoffice
offene oder geschlossene Architektur: frei
konservativ oder moderne Bauweise: modern
offene Küche, Kochinsel: offen
Anzahl Essplätze 4
Kamin nein
2 Garage, Carport
Wunsch: GErade Treppe
Hausentwurf
Von wem stammt die Planung: Architekt nach Vorgabe
Was gefällt nicht? Garderobe im Eingangsbereich
Preisschätzung lt Architekt/Planer: 360000 €
favorisierte Heiztechnik: Erdwärme
Das was wir aktuell praktisch noch überlegen ist quasi das drehen des EG, also Küche auf der Planung nach rechts und Wohnbereichseite nach links, da dann die Rohre alle auf einer Seite verlaufen können. Ursprünglich war das DG umgekehrt, allerdings fanden wir es schöner das Schlafzimmer Richtung grüner Wiese zu haben anstatt zum Nachbarn. Der Podestbereich im Treppenabgang ist im wesentlichen für Getränkekisten gedacht, ist aber eine offene Option.
Gruß
Sascha
Der Zugang zum WZ ist grausig!!! Die Küche zu klein!
Und wo ist Nord, wo die Straße?
Und dann möbliert doch bitte mal die Kinderzimmer, wenn die Betten gewachsen sind mit nem Schrank plus Regal ... Argh, und was muss durch die Küche vom Keller so geschleppt werden? Ist gar nicht so meins : wir hatten auch im RH eine Kellertreppe, die vom Esszimmer aus betreten wurde. So wirklich konnte man den Keller dadurch nicht für Fahrräder, Gartengedöns etc nicht benutzen 🙁
Und wo ist Nord, wo die Straße?
Und dann möbliert doch bitte mal die Kinderzimmer, wenn die Betten gewachsen sind mit nem Schrank plus Regal ... Argh, und was muss durch die Küche vom Keller so geschleppt werden? Ist gar nicht so meins : wir hatten auch im RH eine Kellertreppe, die vom Esszimmer aus betreten wurde. So wirklich konnte man den Keller dadurch nicht für Fahrräder, Gartengedöns etc nicht benutzen 🙁
Args, Nord Angabe fehlt. Wohnzimmer hat eine Süd/Südwest Ausrichtung, Eingang im Norden mit einer Einliegerstr. die von Westen kommt und zu uns aufs Grundstück führt.
Durch den Keller schleppe ich mit Sicherheit keine Fahrraeder oder sonst etwas in die Richtung. Dafür muss der Anbau der Garage oder eine ganze Garage her halten. Dafür müsste wenn eine Außentreppe her, dann wäre nur zu klären wie wir das mit dem hohen Grundwasser lösen und vor allem wohin mit der. Das mit dem Kinderzimmer ist ein berechtigter Einwand, mal schauen was uns dazu einfällt.
Durch den Keller schleppe ich mit Sicherheit keine Fahrraeder oder sonst etwas in die Richtung. Dafür muss der Anbau der Garage oder eine ganze Garage her halten. Dafür müsste wenn eine Außentreppe her, dann wäre nur zu klären wie wir das mit dem hohen Grundwasser lösen und vor allem wohin mit der. Das mit dem Kinderzimmer ist ein berechtigter Einwand, mal schauen was uns dazu einfällt.
Hallo,
die Garderobe ist klein und schlecht zu nutzen, da die Dusche den Platz wegnimmt. Man kann praktisch nur die vordere Ecke nutzen. Wenn man rechts ins Wohnzimmer geht, muss man erst durch einen engen kleinen Gang gehen. Das sieht überhaupt nicht einladend aus. Auf dem Sofa sitzend, muss man sich auch ganz schön den Hals verdrehen um fern zu sehen. Wenn man die Treppe nach oben geht, dann steht man in einem dunklem Flur und muss immer das Licht anmachen.
LG
Sabine
die Garderobe ist klein und schlecht zu nutzen, da die Dusche den Platz wegnimmt. Man kann praktisch nur die vordere Ecke nutzen. Wenn man rechts ins Wohnzimmer geht, muss man erst durch einen engen kleinen Gang gehen. Das sieht überhaupt nicht einladend aus. Auf dem Sofa sitzend, muss man sich auch ganz schön den Hals verdrehen um fern zu sehen. Wenn man die Treppe nach oben geht, dann steht man in einem dunklem Flur und muss immer das Licht anmachen.
LG
Sabine
Sehe ich das richtig, dass 2 Urinale geplant sind? ^^
Die Nische für die Dusche im EG würde ich sofort raus nehmen, weil die Garderobe dadurch sehr unpraktisch wird.
Auch ein WC neben dem Urinal empfinde ich als suboptimal. Wenn man da auf dem Klo sitzt, hat man schön auf Kopfhöhe daneben den Pisspott. Selbst mit großem Putzeifer und Urinaldeckel finde ich sowas nicht gerade einladend. Aber das ist Geschmackssache.
Die Idee mit der Treppe in der Mitte finde ich schön, allerdings völlig unpraktisch. Ich würde wohl mit jedem 2. Einkauf auf dem Weg von der Haustüre zur Küche über die Treppe stolpern, die einfach enorm weit in den Eingangsbereich rein ragt.
Hab mir Bilder bei den von Yvonne erwähnten Jette Häusern angesehen und da kommt der Eingang wirklich toll rüber. Allerdings auch nur, weil alle 3 dieser Häuser breiter sind, als Eures.
Der Gang mit 1,10 reicht vollkommen, allerdings passt er nicht wirklich zu dem herrschaftlichen Auftreten des Eingangs mit der Treppe.
Wohnen/Kochen/Essen ist mit fast 57m² eigentlich nicht gerade klein, aber irgendwie nicht wirklich praktisch.
Habt ihr das Wohnzimmer mal versucht zu möblieren?
Wie breit ist die Schranknische im rechten Kinderzimmer (Kind 2)?
Gut Finde ich den Abstellraum mit Platz für Waschmaschine+Trockner im OG, wo auch die Wäsche anfällt.
Wo wird allerdings gebügelt? Auch in dem 5m² Kämmerlein?
Die Nische für die Dusche im EG würde ich sofort raus nehmen, weil die Garderobe dadurch sehr unpraktisch wird.
Auch ein WC neben dem Urinal empfinde ich als suboptimal. Wenn man da auf dem Klo sitzt, hat man schön auf Kopfhöhe daneben den Pisspott. Selbst mit großem Putzeifer und Urinaldeckel finde ich sowas nicht gerade einladend. Aber das ist Geschmackssache.
Die Idee mit der Treppe in der Mitte finde ich schön, allerdings völlig unpraktisch. Ich würde wohl mit jedem 2. Einkauf auf dem Weg von der Haustüre zur Küche über die Treppe stolpern, die einfach enorm weit in den Eingangsbereich rein ragt.
Hab mir Bilder bei den von Yvonne erwähnten Jette Häusern angesehen und da kommt der Eingang wirklich toll rüber. Allerdings auch nur, weil alle 3 dieser Häuser breiter sind, als Eures.
Der Gang mit 1,10 reicht vollkommen, allerdings passt er nicht wirklich zu dem herrschaftlichen Auftreten des Eingangs mit der Treppe.
Wohnen/Kochen/Essen ist mit fast 57m² eigentlich nicht gerade klein, aber irgendwie nicht wirklich praktisch.
Habt ihr das Wohnzimmer mal versucht zu möblieren?
Wie breit ist die Schranknische im rechten Kinderzimmer (Kind 2)?
Gut Finde ich den Abstellraum mit Platz für Waschmaschine+Trockner im OG, wo auch die Wäsche anfällt.
Wo wird allerdings gebügelt? Auch in dem 5m² Kämmerlein?
Ähnliche Themen