B
bluminger02.05.16 19:48Hallo.
Wir hatten bereits eine erste Version hier im Forum vorgestellt. Nach wie vor sind wir eine kleine Familie mit Kleinkind und bald weiterem Baby.
Was wurde seit der ersten Version geändert:
Bebauungsplan/Einschränkungen: Traufhöhe 3,80m
Größe des Grundstücks: 700qm
Hang: nein
Geschossigkeit: 2 Vollgeschosse
Dachform: Satteldach
Ausrichtung: Straße im Süden
Anforderungen der Bauherren
Stilrichtung, Dachform, Gebäudetyp: Landhaus mit mittigem Erker im Süden
Keller, Geschosse: Unterkellert, Wohnen EG, Schlafen DG
Anzahl der Personen, Alter: Familie mit derzeit 2 Kleinkindern/Baby
Raumbedarf im EG: Neben Wohnbereich ein weiteres Zimmer + Klo mit Dusche
Raumbedarf im OG: Elternschlafzimmer, 3 Kinderzimmer
Büro: Homeoffice
konservativ oder moderne Bauweise: Hmm?
offene Küche, Kochinsel: keine Kochinsel
Anzahl Essplätze: mind 5
Kamin: gerne, aber eher als gemütliche Hobbyheizung
Musik/Stereowand: TV Wand
Balkon, Dachterrasse: überdachter Balkon
Garage, Carport: Doppelgarage
Nutzgarten, Treibhaus: Garten soll nicht mit Anbau oder Werkzeugschuppen besetzt werden
weitere Wünsche/Besonderheiten/Tagesablauf: Arbeitsküche im Keller
Hausentwurf
Von wem stammt die Planung: Architekt
Was gefällt besonders? Südräume im EG
Was gefällt nicht? Frau möchte kein Fenster im Rücken auf dem sofa
Preisschätzung lt Architekt/Planer: 400.000
Persönliches Preislimit fürs Haus, inkl Ausstattung: 500.000
favorisierte Heiztechnik: Luft-Wasser-Wärmepumpe
Wenn Ihr verzichten müsst, auf welche Details/Ausbauten
-könnt Ihr verzichten:
-könnt Ihr nicht verzichten: Lichtes Haus, Platz in Küche
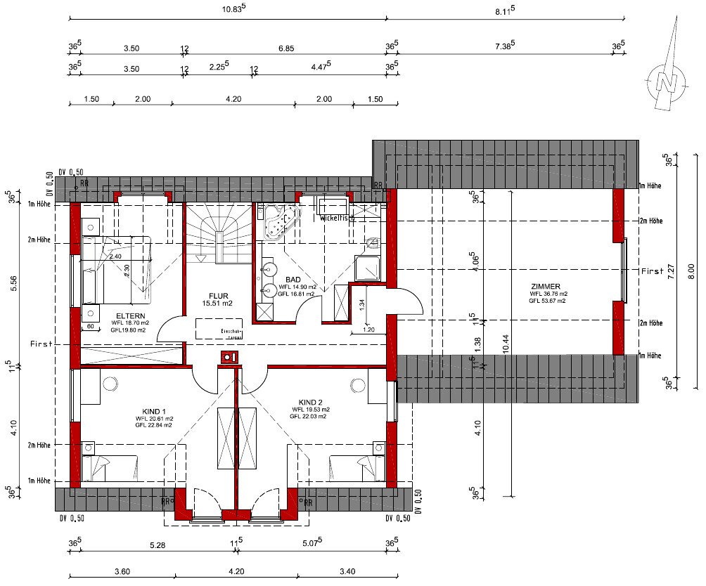
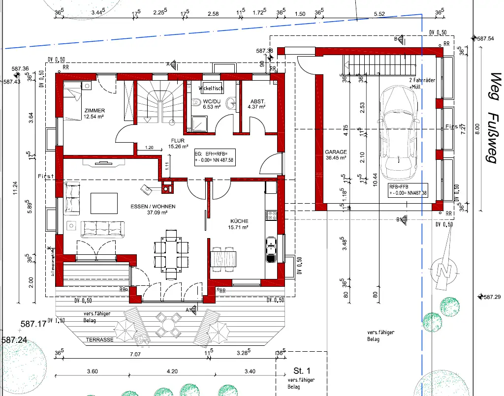
Erdgeschoss:
Dachgeschoss:
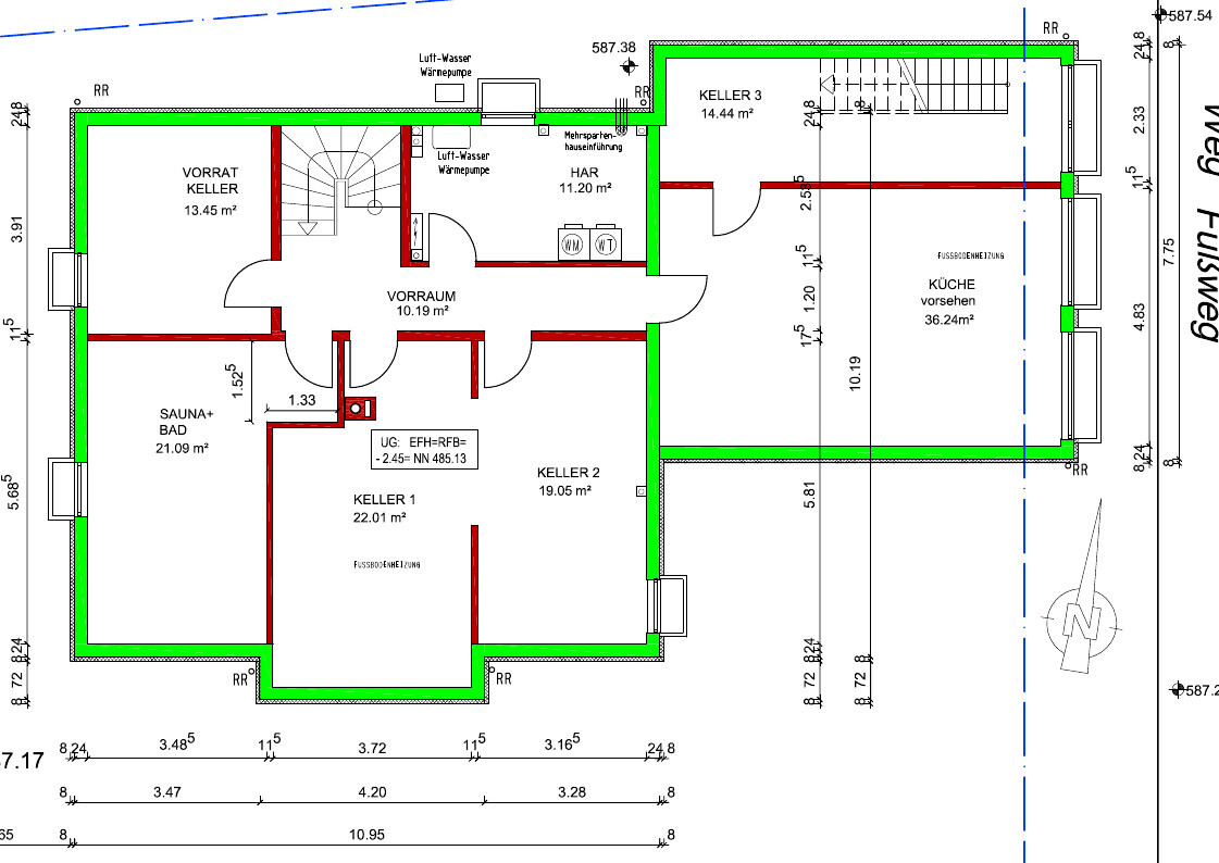
Keller:
Schnitt:
Eure Anmerkungen zur ersten version waren wirklich sehr hilfreich! Vielen Dank hierfür.
Was haltet Ihr nun von dem geänderten Grundriss?
Danke.
Wir hatten bereits eine erste Version hier im Forum vorgestellt. Nach wie vor sind wir eine kleine Familie mit Kleinkind und bald weiterem Baby.
Was wurde seit der ersten Version geändert:
- Garage ca 1 Meter nach vorne versetzt.
- Bad im Dachgeschoss vergrößert.
- 1 Zimmer im Dachgeschoss wurde gestrichen.
- Elternschlafzimmer hat nun mehr Schrankfläche.
- Im Erdgeschoss wurde das Wohnzimmer zu Kosten des Flures vergrößert.
Bebauungsplan/Einschränkungen: Traufhöhe 3,80m
Größe des Grundstücks: 700qm
Hang: nein
Geschossigkeit: 2 Vollgeschosse
Dachform: Satteldach
Ausrichtung: Straße im Süden
Anforderungen der Bauherren
Stilrichtung, Dachform, Gebäudetyp: Landhaus mit mittigem Erker im Süden
Keller, Geschosse: Unterkellert, Wohnen EG, Schlafen DG
Anzahl der Personen, Alter: Familie mit derzeit 2 Kleinkindern/Baby
Raumbedarf im EG: Neben Wohnbereich ein weiteres Zimmer + Klo mit Dusche
Raumbedarf im OG: Elternschlafzimmer, 3 Kinderzimmer
Büro: Homeoffice
konservativ oder moderne Bauweise: Hmm?
offene Küche, Kochinsel: keine Kochinsel
Anzahl Essplätze: mind 5
Kamin: gerne, aber eher als gemütliche Hobbyheizung
Musik/Stereowand: TV Wand
Balkon, Dachterrasse: überdachter Balkon
Garage, Carport: Doppelgarage
Nutzgarten, Treibhaus: Garten soll nicht mit Anbau oder Werkzeugschuppen besetzt werden
weitere Wünsche/Besonderheiten/Tagesablauf: Arbeitsküche im Keller
Hausentwurf
Von wem stammt die Planung: Architekt
Was gefällt besonders? Südräume im EG
Was gefällt nicht? Frau möchte kein Fenster im Rücken auf dem sofa
Preisschätzung lt Architekt/Planer: 400.000
Persönliches Preislimit fürs Haus, inkl Ausstattung: 500.000
favorisierte Heiztechnik: Luft-Wasser-Wärmepumpe
Wenn Ihr verzichten müsst, auf welche Details/Ausbauten
-könnt Ihr verzichten:
-könnt Ihr nicht verzichten: Lichtes Haus, Platz in Küche
Erdgeschoss:
Dachgeschoss:
Keller:
Schnitt:
Eure Anmerkungen zur ersten version waren wirklich sehr hilfreich! Vielen Dank hierfür.
Was haltet Ihr nun von dem geänderten Grundriss?
Danke.
D
develloper02.05.16 21:12Habe den alten Thread als stiller Leser mitverfolgt.
Ich finde den neuen Grundriss und die Veränderungen, die gemacht wurden, super!
Evtl. nochmal die Tür von Kinderzimmer 2 nach planrechts verschieben, damit, wie in anderen Räumen auch, ein Schrank dahinter passt.
Auch das in der Badplanung keine große Dusche realisiert ist fände ich persönlich nicht ideal. Eine große Dusche ist wirklich super! Evtl. die Tür zum Bad nach planlinks und hinter ihr eine Dusche?
Ich finde den neuen Grundriss und die Veränderungen, die gemacht wurden, super!
Evtl. nochmal die Tür von Kinderzimmer 2 nach planrechts verschieben, damit, wie in anderen Räumen auch, ein Schrank dahinter passt.
Auch das in der Badplanung keine große Dusche realisiert ist fände ich persönlich nicht ideal. Eine große Dusche ist wirklich super! Evtl. die Tür zum Bad nach planlinks und hinter ihr eine Dusche?
Viel besser:
ein paar Dinge die mir noch ins Auge stechen:
1. die Haustür würde ich Richtung WC schieben, dann hast du an der Wand zur Küche ne gute Möglichkeit für ne schöne Garderobe.
2. Eingang zur Küche: macht euch Gedanken, wie ihr später die Küche gestalten wollt. Evtl. macht es Sinn die Küchentür Richtung Eingang zu schieben, damit ihr an die Wand zum Esszimmer auch noch Schränke stellen könnt.
3. Gleiches im Kinderzimmer. Tür ein Stück weg von der Wand, um Stellfläche zu gewinnen.
4. Wenn ihr den Durchgang im OG zur Garage etwas breiter macht (1,40/1,50m statt 1,20) - sprich das Bad etwas verkleinert, habt ihr die Möglichkeit eine größere Dusche zu planen. Platz für nen Schrank hinter der Badezimmertür bleibt dennoch.
5. Dachfenster über der Treppe zwecks Belichtung des OGs.
6. Im EG würde ich entweder ein Seitenteil zur Tür einplanen oder aber alternativ ein Fenster.
ein paar Dinge die mir noch ins Auge stechen:
1. die Haustür würde ich Richtung WC schieben, dann hast du an der Wand zur Küche ne gute Möglichkeit für ne schöne Garderobe.
2. Eingang zur Küche: macht euch Gedanken, wie ihr später die Küche gestalten wollt. Evtl. macht es Sinn die Küchentür Richtung Eingang zu schieben, damit ihr an die Wand zum Esszimmer auch noch Schränke stellen könnt.
3. Gleiches im Kinderzimmer. Tür ein Stück weg von der Wand, um Stellfläche zu gewinnen.
4. Wenn ihr den Durchgang im OG zur Garage etwas breiter macht (1,40/1,50m statt 1,20) - sprich das Bad etwas verkleinert, habt ihr die Möglichkeit eine größere Dusche zu planen. Platz für nen Schrank hinter der Badezimmertür bleibt dennoch.
5. Dachfenster über der Treppe zwecks Belichtung des OGs.
6. Im EG würde ich entweder ein Seitenteil zur Tür einplanen oder aber alternativ ein Fenster.
B
bluminger03.05.16 09:46Hallo BeHaElJa,
die Küche wird, wir schon im letzten Thread geschrieben, nicht so aussehen, wie hier im Entwurf des Architekten. Die Küchenplanung kann der Architekt leider nicht leisten. Er setzt ohnehin schon nicht alles um, was wir bei einem Treffen sagen.
Wir haben die Küchenplanung neulich mit einem Küchenstudio begonnen, wo wir nächste Woche den nächsten Termin haben. Wir hoffen, dass wir dann einen Plan bekommen, den wir hier einstellen können.
Wir haben uns mit dem Thema Küchenplanung beschäftigt. Eigentlich wollten wir ja eine geschlossene Küche, jetzt gefällt und aber auch eine offene mit einer ca 3m langen Arbeitsfläche im Westen Richtung Esszimmer und einer Abstellfläche im Osten. Dann kann man auch statt Fenster in Süden bodentiefe Türen machen. Allerdings haben wir noch ein wenig Bedenken wegen der Einsehbarkeit.
Danke für den Hinweis mit dem Licht im Flur (oben und unten). Hast Du eine Idee, wie man das lösen kann?
die Küche wird, wir schon im letzten Thread geschrieben, nicht so aussehen, wie hier im Entwurf des Architekten. Die Küchenplanung kann der Architekt leider nicht leisten. Er setzt ohnehin schon nicht alles um, was wir bei einem Treffen sagen.
Wir haben die Küchenplanung neulich mit einem Küchenstudio begonnen, wo wir nächste Woche den nächsten Termin haben. Wir hoffen, dass wir dann einen Plan bekommen, den wir hier einstellen können.
Wir haben uns mit dem Thema Küchenplanung beschäftigt. Eigentlich wollten wir ja eine geschlossene Küche, jetzt gefällt und aber auch eine offene mit einer ca 3m langen Arbeitsfläche im Westen Richtung Esszimmer und einer Abstellfläche im Osten. Dann kann man auch statt Fenster in Süden bodentiefe Türen machen. Allerdings haben wir noch ein wenig Bedenken wegen der Einsehbarkeit.
Danke für den Hinweis mit dem Licht im Flur (oben und unten). Hast Du eine Idee, wie man das lösen kann?
B
bluminger03.05.16 12:22Hallo develloper, hallo Manu,
danke für Eure Feedbacks. Wir gehen so bald wie möglich darauf ein.
danke für Eure Feedbacks. Wir gehen so bald wie möglich darauf ein.
Ähnliche Themen