ᐅ Grundriss Einfamilienhaus, 140 qm mit Keller
Erstellt am: 03.01.17 16:43
Hallo,
ich lese hier schon länger mit und habe auch schon einige gute Ideen gesammelt.
Heute würde ich euch aber gerne zu unserem Grundriss befragen.
Wir bauen auf einem relativ kleinen Grundstück. Daher haben wir uns entschieden mit Keller zu bauen, da meine Frau und ich beide auch zu Hause arbeiten und daher ein Büro brauchen.
Da wir Kinder geplant haben, brauchen wir auch Platz für diese.
Hier ist erst mal der ausgefüllte Fragebogen:
Bebauungsplan/Einschränkungen
Größe des Grundstücks: 402qm
Grundflächenzahl: 0,4
Baufenster, Baulinie und -grenze: siehe Bild im Anhang
Randbebauung: ja
Anzahl Stellplatz:2
Geschossigkeit: II
Dachform: SD Max 45°, PD, ZD Max 30°
Stilrichtung : grundsätzlich Mauerwerk, Putz oder Holzfassaden zulässig
Maximale Höhen/Begrenzungen: GH Max 9,5, TH Max 4,5
Anforderungen der Bauherren
Stilrichtung, Dachform, Gebäudetyp
Keller, Geschosse: Keller + 2
Anzahl der Personen, Alter 2 (30) + 2 Kinder (geplant)
Büro: Homeoffice
Schlafgäste pro Jahr
offene oder geschlossene Architektur
konservativ oder moderne Bauweise
offene Küche, Kochinsel
Anzahl Essplätze: 6
Kamin
kein Balkon oder Dachterrasse nötig
Garage oder Carport je nach Kosten
Hausentwurf
Von wem stammt die Planung:
-Planer eines Bauunternehmens
Preisschätzung lt Architekt/Planer liegt noch nicht vor
favorisierte Heiztechnik: aus Kostengründen vermutlich Gas
Wenn Ihr verzichten müsst, auf welche Details/Ausbauten
-könnt Ihr verzichten:
Carport oder Garage kann später errichtet werden
-könnt Ihr nicht verzichten:
großes Büro, Kamin
Warum ist der Entwurf so geworden, wie er jetzt ist? ZB
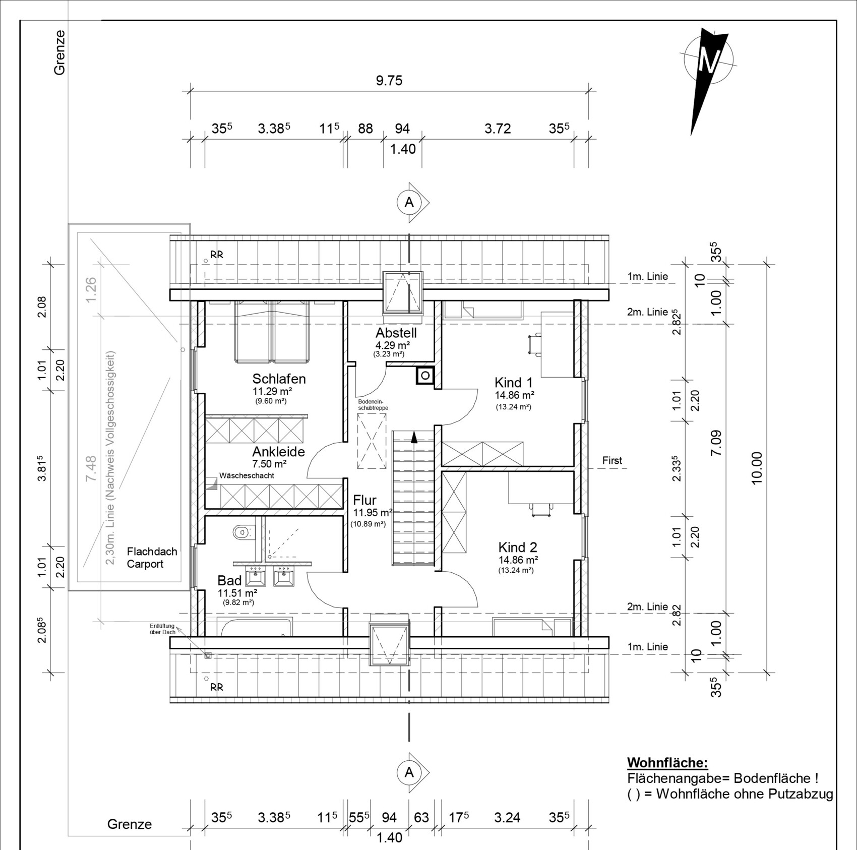
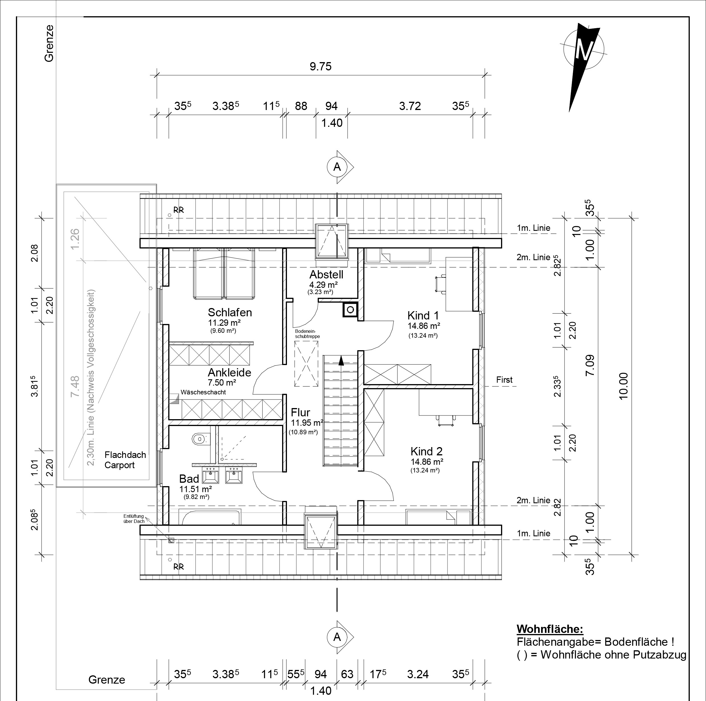
Plan ist nach einem Haus entstanden, das uns gefiel. Allerdings musste es kleiner werden und dafür mit Keller. Zunächst waren die Treppen vertauscht. Uns gefiel aber nicht, dass Kinder immer durchs Wohnzimmer mussten.
Zusätzlich ist ein Wäscheschacht dazugekommen und der Kamin aus der Ecke, wo der Wäscheschacht jetzt ist an seine jetzige Position gewandert.
Dafür ist im Obergeschoss ein Abstellraum dazu gekommen (an der Treppe). Der gefällt uns nicht, weil er das Licht für den Flur schluckt.



ich lese hier schon länger mit und habe auch schon einige gute Ideen gesammelt.
Heute würde ich euch aber gerne zu unserem Grundriss befragen.
Wir bauen auf einem relativ kleinen Grundstück. Daher haben wir uns entschieden mit Keller zu bauen, da meine Frau und ich beide auch zu Hause arbeiten und daher ein Büro brauchen.
Da wir Kinder geplant haben, brauchen wir auch Platz für diese.
Hier ist erst mal der ausgefüllte Fragebogen:
Bebauungsplan/Einschränkungen
Größe des Grundstücks: 402qm
Grundflächenzahl: 0,4
Baufenster, Baulinie und -grenze: siehe Bild im Anhang
Randbebauung: ja
Anzahl Stellplatz:2
Geschossigkeit: II
Dachform: SD Max 45°, PD, ZD Max 30°
Stilrichtung : grundsätzlich Mauerwerk, Putz oder Holzfassaden zulässig
Maximale Höhen/Begrenzungen: GH Max 9,5, TH Max 4,5
Anforderungen der Bauherren
Stilrichtung, Dachform, Gebäudetyp
Keller, Geschosse: Keller + 2
Anzahl der Personen, Alter 2 (30) + 2 Kinder (geplant)
Büro: Homeoffice
Schlafgäste pro Jahr
offene oder geschlossene Architektur
konservativ oder moderne Bauweise
offene Küche, Kochinsel
Anzahl Essplätze: 6
Kamin
kein Balkon oder Dachterrasse nötig
Garage oder Carport je nach Kosten
Hausentwurf
Von wem stammt die Planung:
-Planer eines Bauunternehmens
Preisschätzung lt Architekt/Planer liegt noch nicht vor
favorisierte Heiztechnik: aus Kostengründen vermutlich Gas
Wenn Ihr verzichten müsst, auf welche Details/Ausbauten
-könnt Ihr verzichten:
Carport oder Garage kann später errichtet werden
-könnt Ihr nicht verzichten:
großes Büro, Kamin
Warum ist der Entwurf so geworden, wie er jetzt ist? ZB
Plan ist nach einem Haus entstanden, das uns gefiel. Allerdings musste es kleiner werden und dafür mit Keller. Zunächst waren die Treppen vertauscht. Uns gefiel aber nicht, dass Kinder immer durchs Wohnzimmer mussten.
Zusätzlich ist ein Wäscheschacht dazugekommen und der Kamin aus der Ecke, wo der Wäscheschacht jetzt ist an seine jetzige Position gewandert.
Dafür ist im Obergeschoss ein Abstellraum dazu gekommen (an der Treppe). Der gefällt uns nicht, weil er das Licht für den Flur schluckt.
Für meinen Geschmack wenig zu meckern. (Außer, dass meine Vorlieben andere sind ) (Kochen/Essen an der Terrasse, Wohnen eher im Rückzugsbereich)
Treppe vom Keller landet jetzt im Wohnzimmer. Kommt da eine Tür vor? Würde ich empfehlen.
Wäscheschacht, den würde ich so platzieren, dass er vom Flur OG erreichbar ist (das müßte eigentlich klappen und sich bis KG durchziehen lassen). Dann müssen die Kinder nicht die Ankleide der Eltern nutzen, sondern man kann den Wäscheschacht für alle in der Flurwand zur Ankleide nutzbar machen.
Zur Küchenplanung .. darauf achten, dass das bodentiefe Fenster so sitzt, dass Abstand Kochhalbinsel/Zeile nicht über 120 cm wachsen. Generell könnte eine Kochhalbinsel so zu klein sein, kaum Abstellplatz rund um die Töpfe, der Raum ist nur 324 cm breit ... je mehr ich draufgucke, desto mehr würde ich die Küche ganz anders in den Raum setzen. Nur als kurze Stichworte: Planunten Hochschränke, also dann kein Fenster planunten, planlinks Kochfeldzeile, Mitte Spüleninsel mit Bank zwischen den bodentiefen Fenstern rechts. Kann ich bei Bedarf auch mal genauer skizzieren.
Treppe vom Keller landet jetzt im Wohnzimmer. Kommt da eine Tür vor? Würde ich empfehlen.
Wäscheschacht, den würde ich so platzieren, dass er vom Flur OG erreichbar ist (das müßte eigentlich klappen und sich bis KG durchziehen lassen). Dann müssen die Kinder nicht die Ankleide der Eltern nutzen, sondern man kann den Wäscheschacht für alle in der Flurwand zur Ankleide nutzbar machen.
Zur Küchenplanung .. darauf achten, dass das bodentiefe Fenster so sitzt, dass Abstand Kochhalbinsel/Zeile nicht über 120 cm wachsen. Generell könnte eine Kochhalbinsel so zu klein sein, kaum Abstellplatz rund um die Töpfe, der Raum ist nur 324 cm breit ... je mehr ich draufgucke, desto mehr würde ich die Küche ganz anders in den Raum setzen. Nur als kurze Stichworte: Planunten Hochschränke, also dann kein Fenster planunten, planlinks Kochfeldzeile, Mitte Spüleninsel mit Bank zwischen den bodentiefen Fenstern rechts. Kann ich bei Bedarf auch mal genauer skizzieren.
Für ein Haus ohne Keller würde mir der Grundriss sehr gut gefallen.
Was mir aber nicht gefällt: Zugang zum Keller durchs Wohnzimmer und den gigantischen Abstellraum im EG, der vermutlich bei einem Haus ohne Keller als Hausanschlussraum/Hauswirtschaftsraum reichen würde, hier aber dank Keller völlig überdimensioniert ist.
Vermutlich kommen diese "Probleme" vom Übertragen des Grundrisses eines Hauses ohne Keller auf einen Entwurf mit Keller.
Was mir aber nicht gefällt: Zugang zum Keller durchs Wohnzimmer und den gigantischen Abstellraum im EG, der vermutlich bei einem Haus ohne Keller als Hausanschlussraum/Hauswirtschaftsraum reichen würde, hier aber dank Keller völlig überdimensioniert ist.
Vermutlich kommen diese "Probleme" vom Übertragen des Grundrisses eines Hauses ohne Keller auf einen Entwurf mit Keller.
Hi,
vielen Dank für die schnellen Antworten.
Der Abstellraum ist wirklich relativ groß. haben den gestern mal in unserer Wohnung abgesteckt und sind etwas erschrocken. Der ist zu groß. Und ja, in dem Haus, das als Vorlage dient, ist da die Haustechnik.
Leider ist der ja schon relativ schmal. Um den kleiner zu machen kann man ja nur das Wohnzimmer vergrößern und den dann noch schmaler machen, oder?
Den Wäscheschacht in den Flur zu machen ist auf jeden Fall eine super Idee. Will ja später nicht durch alle Zimmer laufen und die Wäsche einsammeln, wenn die Kinder das selbst machen können.
In unserem Hausvorbild ist die Küche auch anders angelegt. da ist der Herd planunten neben der Spüle und die Kochinsel ist also eher eine Theke. Da sind wir aber auch noch vollkommen frei. Eine skizzierte Idee wäre sicher hilfreich.
Vielen Dank schon mal.
vielen Dank für die schnellen Antworten.
Der Abstellraum ist wirklich relativ groß. haben den gestern mal in unserer Wohnung abgesteckt und sind etwas erschrocken. Der ist zu groß. Und ja, in dem Haus, das als Vorlage dient, ist da die Haustechnik.
Leider ist der ja schon relativ schmal. Um den kleiner zu machen kann man ja nur das Wohnzimmer vergrößern und den dann noch schmaler machen, oder?
Den Wäscheschacht in den Flur zu machen ist auf jeden Fall eine super Idee. Will ja später nicht durch alle Zimmer laufen und die Wäsche einsammeln, wenn die Kinder das selbst machen können.
In unserem Hausvorbild ist die Küche auch anders angelegt. da ist der Herd planunten neben der Spüle und die Kochinsel ist also eher eine Theke. Da sind wir aber auch noch vollkommen frei. Eine skizzierte Idee wäre sicher hilfreich.
Vielen Dank schon mal.
D
Doc.Schnaggls04.01.17 12:42Hallo,
insgesamt ein schöner Grundriss.
Nachdenken würde ich aber noch über folgende Punkte:
Dusche im Bad im EG:
Wäre es hier nicht sinnvoll, die Nische genau so groß zu machen, dass die Dusche exakt hineinpasst und dann nur noch nach vorne eine Glatür benötigt - anstatt eine zweiseitige Duschkabine wie sie lt. Plan erforderliche wäre?
Abstellraum im EG:
Wie schon mehrfach erwähnt leicht überdimensioniert für ein Haus mit Keller.
Bad im DG:
Der Abstand zwischen Ende der Waschbecken und der 2m Linie kommt mir etwas knapp vor - wie groß seit Ihr denn? Bei 190cm + könnte man sich da im Zweifel schnell den Kopf stossen, wenn man nur einen Schritt zurück macht.
Kind2:
Die Tür ist etwas unglücklich positioniert. Wenn man diese mit Schwung öffnet knallt sie nach etwas mehr als 90° ins Dach. Um dies zu vermeiden müsste man einen Türstopper quasi "mitten in den Raum" auf den Boden (Stolperfalle) oder ins Dach (gewöhnungsbedürftige Optik) schrauben.
Schlafzimmer:
Hier würde ich mir überlegen, ob ich die Wand zwischen Schlafbereich und Ankleide wirklich brauche, oder ob ich die Raumtrennung nicht auch durch einen raumhohen Einbauschrank hinbekomme. dadurch spart man Geld und Fläche.
Zum Schluss noch eine Frage:
Denkt Ihr eventuell über eine Photovoltaikanlage nach?
So wie derzeit geplant steht Euer Kamin auf der südlichen Dachhälfte. Hier sollte man (sofern eine Photovoltaik angedacht ist) unbedingt auch das Thema Schattenwurf und dadurch verminderte Leistung der gesamten Anlage auf dem Schirm haben.
Grüße,
Dirk
insgesamt ein schöner Grundriss.
Nachdenken würde ich aber noch über folgende Punkte:
Dusche im Bad im EG:
Wäre es hier nicht sinnvoll, die Nische genau so groß zu machen, dass die Dusche exakt hineinpasst und dann nur noch nach vorne eine Glatür benötigt - anstatt eine zweiseitige Duschkabine wie sie lt. Plan erforderliche wäre?
Abstellraum im EG:
Wie schon mehrfach erwähnt leicht überdimensioniert für ein Haus mit Keller.
Bad im DG:
Der Abstand zwischen Ende der Waschbecken und der 2m Linie kommt mir etwas knapp vor - wie groß seit Ihr denn? Bei 190cm + könnte man sich da im Zweifel schnell den Kopf stossen, wenn man nur einen Schritt zurück macht.
Kind2:
Die Tür ist etwas unglücklich positioniert. Wenn man diese mit Schwung öffnet knallt sie nach etwas mehr als 90° ins Dach. Um dies zu vermeiden müsste man einen Türstopper quasi "mitten in den Raum" auf den Boden (Stolperfalle) oder ins Dach (gewöhnungsbedürftige Optik) schrauben.
Schlafzimmer:
Hier würde ich mir überlegen, ob ich die Wand zwischen Schlafbereich und Ankleide wirklich brauche, oder ob ich die Raumtrennung nicht auch durch einen raumhohen Einbauschrank hinbekomme. dadurch spart man Geld und Fläche.
Zum Schluss noch eine Frage:
Denkt Ihr eventuell über eine Photovoltaikanlage nach?
So wie derzeit geplant steht Euer Kamin auf der südlichen Dachhälfte. Hier sollte man (sofern eine Photovoltaik angedacht ist) unbedingt auch das Thema Schattenwurf und dadurch verminderte Leistung der gesamten Anlage auf dem Schirm haben.
Grüße,
Dirk
Ähnliche Themen