ᐅ Einfamilienhaus 200qm mit Keller+Doppelgarage Eure Meinungen?
Erstellt am: 08.12.16 11:26
S
SebastianV.S
SebastianV.08.12.16 11:26Welche Änderungen bzw. Fehler in in der Raumaufteilung der einzelnen Geschosse haben wir gemacht ?
Ist die Bauwerkskostenaufstellung realistisch ? (hinzu kommen laut Architekten noch ca. 13% Baunebenkosten)
Stadtvilla/Walmdach
Größe des Grundstücks: 740 qm, 31mx23,9m
Ausrichtung: Eingang Ost, Gartenbereich West
Anzahl Stellplatz: 2 Stück + Doppelgarage
Geschossigkeit: 2 Vollgeschosse
Dachform: Walmdach
Stilrichtung: modern
Anforderungen der Bauherren:
Stilrichtung, Dachform, Gebäudetyp: Stadtvilla, modern
Keller, Geschosse: Vollunterkellert, 2 Vollgeschosse
Raumbedarf im EG, OG: alles was im Grundriss enthalten ist
Büro: Familiennutzung oder Homeoffice?: Homeoffice
konservativ oder moderne Bauweise: modern
offene Küche
Anzahl Essplätze: 10
Kamin: ja
Balkon, Dachterrasse: ja
Garage, Carport: Garage
Zusatz im Garten: Pool ca. 9x3m² Ausrichtung West an Terrasse anschließend
Energie: Erdwärme+Solarthermie (keine Gasversorgung)
Vielen Dank schon einmal vorab.

Ist die Bauwerkskostenaufstellung realistisch ? (hinzu kommen laut Architekten noch ca. 13% Baunebenkosten)
Stadtvilla/Walmdach
Größe des Grundstücks: 740 qm, 31mx23,9m
Ausrichtung: Eingang Ost, Gartenbereich West
Anzahl Stellplatz: 2 Stück + Doppelgarage
Geschossigkeit: 2 Vollgeschosse
Dachform: Walmdach
Stilrichtung: modern
Anforderungen der Bauherren:
Stilrichtung, Dachform, Gebäudetyp: Stadtvilla, modern
Keller, Geschosse: Vollunterkellert, 2 Vollgeschosse
Raumbedarf im EG, OG: alles was im Grundriss enthalten ist
Büro: Familiennutzung oder Homeoffice?: Homeoffice
konservativ oder moderne Bauweise: modern
offene Küche
Anzahl Essplätze: 10
Kamin: ja
Balkon, Dachterrasse: ja
Garage, Carport: Garage
Zusatz im Garten: Pool ca. 9x3m² Ausrichtung West an Terrasse anschließend
Energie: Erdwärme+Solarthermie (keine Gasversorgung)
Vielen Dank schon einmal vorab.
S
SebastianV.08.12.16 12:43Ja, bitte jpg.
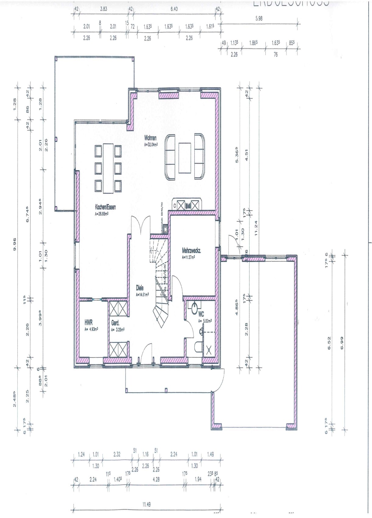
Was mir so auf den ersten Blick auffällt:
Warum die schräge Tür im OG für Schlafzimmer und KZ? Was soll das für einen Nutzen bringen???
Fast 33 qm für Schlafzimmer und Ankleide, aber nur 14qm für ein Bad, das 4 Personen nutzen sollen. Da ist für mich was in Schieflage...
Das eine Kind hat Balkonzugang, das andere schaut in die Röhre, auch nicht so ideal.
Für was braucht ihr 23qm Schlafzimmer? Ist dort noch was anderes als Schlafen geplant?
Nordrichtung fehlt mir auch, aber ich nehme mal an, das Schlafzimmer ist auch in schönster Südlage.
Folglich wäre für mich das OG völlig umzugestalten:
Gleichwertige Kinderzimmer mit Balkonzugang für beide (oder ganz auf den Balkon verzichten; erfahrungsgemäß wird der nämlich so gut wie nie genutzt, wenn ein Garten da ist) Richtung Süden.
Schlafzimmer verkleinern und dafür Bad größer oder (besser noch) ein Kinderbad planen.
Was mir so auf den ersten Blick auffällt:
Warum die schräge Tür im OG für Schlafzimmer und KZ? Was soll das für einen Nutzen bringen???
Fast 33 qm für Schlafzimmer und Ankleide, aber nur 14qm für ein Bad, das 4 Personen nutzen sollen. Da ist für mich was in Schieflage...
Das eine Kind hat Balkonzugang, das andere schaut in die Röhre, auch nicht so ideal.
Für was braucht ihr 23qm Schlafzimmer? Ist dort noch was anderes als Schlafen geplant?
Nordrichtung fehlt mir auch, aber ich nehme mal an, das Schlafzimmer ist auch in schönster Südlage.
Folglich wäre für mich das OG völlig umzugestalten:
Gleichwertige Kinderzimmer mit Balkonzugang für beide (oder ganz auf den Balkon verzichten; erfahrungsgemäß wird der nämlich so gut wie nie genutzt, wenn ein Garten da ist) Richtung Süden.
Schlafzimmer verkleinern und dafür Bad größer oder (besser noch) ein Kinderbad planen.
J
j.bautsch08.12.16 13:20oben steht im eingangspost :Ausrichtung: Eingang Ost, Gartenbereich West
somit liegt das schlafzimmer nordwestlich
somit liegt das schlafzimmer nordwestlich
J
j.bautsch08.12.16 13:24ich denke ja ihr habt das geld schon, aber braucht man wirklich ein 200m² Haus mit vollunterkellerung für 4 personen? wer macht das ganze sauber? ohne Keller und mit entsprechenden ersatzräumen im eg und og kann ich 200m² verstehen, planen wir auch in etwa (räume sind nicht winzig aber auch keine tanzsäle). aber wenn man ein ganzes geschoss mehr zur verfügung hat?
ich habe den eindruck ihr habt das eg geplant und dann hat sich der rest der fläche eben so ergeben. vielleicht mal überlegen das og kleiner zu machen als das eg. bzw mehrzweck und Hauswirtschaftsraum in den keller zu verlegen?
ich habe den eindruck ihr habt das eg geplant und dann hat sich der rest der fläche eben so ergeben. vielleicht mal überlegen das og kleiner zu machen als das eg. bzw mehrzweck und Hauswirtschaftsraum in den keller zu verlegen?
Ähnliche Themen