Grundriss Einfamilienhaus ca 200 qm für 4 Personen die ersten Entwürfe

4,90 Stern(e) 8 Votes
Zuletzt aktualisiert 25.11.2025
Sie befinden sich auf der Seite 12 der Diskussion zum Thema: Grundriss Einfamilienhaus ca 200 qm für 4 Personen die ersten Entwürfe
>> Zum 1. Beitrag <<

kaho674

kaho674

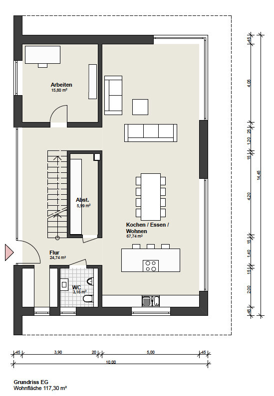
Ich finds ganz cool. Ich hoffe, Du hast nen guten Fensterbauer.
Eine Kleinigkeit muss ich aber noch loswerden: Im Kinderbad Tür anders herum aufschlagen lassen. Sonst kriegt Kind 1 regelmäßig Beulen am Kopf. Die Badtür neben dem Kopfende des Bettes im Eltern-Schlafzimmer fänd ich sehr ungemütlich. Dann doch lieber Bett 180° drehen und an die Wand gegenüber stellen.
 
D

darek6er

Ich finds ganz cool. Ich hoffe, Du hast nen guten Fensterbauer.
Eine Kleinigkeit muss ich aber noch loswerden: Im Kinderbad Tür anders herum aufschlagen lassen. Sonst kriegt Kind 1 regelmäßig Beulen am Kopf. Die Badtür neben dem Kopfende des Bettes im Eltern-Schlafzimmer fänd ich sehr ungemütlich. Dann doch lieber Bett 180° drehen und an die Wand gegenüber stellen.

Die Kita wird nach Innen aufgehen, Bett kommt auch auf die andere Seite das hat der Architekt einfach nur falsch eingezeichnet.

Aber wie ich mich kenn da kommt noch eine oder andere Veränderung und in der Bauphase auch

Fensterbauer ist so ne Geschichte ..... eigentlich der Onkel meine Frau der ist Schlosser eigne Firma und so da arbeitet meine Frau auch, er hat aber noch keine Ahnung was auf Ihm zukommt.
 
kaho674

kaho674

Eieiei, für diese Fenster brauchts am besten jemand, der sonst bei Hufhaus die Fenster baut, oder ähnliches. Ich würde definitiv niemand nehmen, der noch nie oder nur selten sowas gemacht hat und schon gar nicht aus der Verwandtschaft, wenn man die mag.
 
Zuletzt aktualisiert 25.11.2025
Im Forum Grundrissplanung / Grundstücksplanung gibt es 2536 Themen mit insgesamt 88015 Beiträgen


Ähnliche Themen zu Grundriss Einfamilienhaus ca 200 qm für 4 Personen die ersten Entwürfe
Nr.ErgebnisBeiträge
1Fenstereinbau WDVS - Wann kann der Fensterbauer ausmessen? 24
2Bett SUNDNES - welche Schrauben? 15
3Idee Schlafzimmer - Bett / Schrank Anordnung 32

Oben