ᐅ Grundriss Einfamilienhaus 130qm, Hanggrundstück, 2-Geschoss
Erstellt am: 09.12.21 19:09
P
PitiglianoP
Pitigliano09.12.21 19:09Anbei der Fragebogen mit Grundriss und Grundstücksangaben zur Diskussion.
Bebauungsplan/Einschränkungen
Größe des Grundstücks: 2200qm
Hang: Südhang, im Baufenster ca. 2,50m
Grundflächenzahl: §34 - angrenzend stehen 1,5 - 2 Geschosser mit Satteldächern
Geschossflächenzahl: §34
Baufenster, Baulinie und -grenze
Randbebauung
Anzahl Stellplatz: 2
Geschossigkeit: 2 Vollgeschosse
Dachform: 22 Grad Satteldach
Stilrichtung
Ausrichtung: Südhang, dementsprechend auch die Ausrichtung
Maximale Höhen/Begrenzungen
weitere Vorgaben
Anforderungen der Bauherren
Stilrichtung, Dachform, Gebäudetyp: Klassisch, Satteldach, Einfamilienhaus ohne Vorsprünge
Keller, Geschosse: kein Keller, aber wegen Hang soll das Wohn-UG halbseitig im Hang verschwinden. Darauf dann das EG als Vollgeschoss.
Anzahl der Personen, Alter: 2 Erw. (42 und 49), 1 Kind (19)
Raumbedarf im EG, OG: jeweils ca. 65qm
Büro: Familiennutzung oder Homeoffice? Nein
Schlafgäste pro Jahr: nicht der Rede wert
offene oder geschlossene Architektur: offen im EG
konservativ oder moderne Bauweise:
offene Küche, Kochinsel: Ja, mit Insel
Anzahl Essplätze: 6
Kamin: nein
Musik/Stereowand
Balkon, Dachterrasse: nein
Garage, Carport: Doppelgarage gewünscht, zur Not auch nur Carport
Nutzgarten, Treibhaus
weitere Wünsche: Photovoltaik geplant, Kontrollierte-Wohnraumlüftung ist eingepreist, KfW55ee
Hausentwurf
Von wem stammt die Planung: DIY und Planer GU
-Planer eines Bauunternehmens: Ja
-Architekt: Nein
-Do-it-Yourself: Ja
Was gefällt besonders? Warum? Südausrichtung, Ausblick
Was gefällt nicht? Warum? Das sagt ihr uns
Preisschätzung lt Architekt/Planer: 330.000
Persönliches Preislimit fürs Haus, inkl Ausstattung: 450.000 inkl Baunebenkosten
favorisierte Heiztechnik: Luft-Wasser-Wärmepumpe
Wenn Ihr verzichten müsst, auf welche Details/Ausbauten
-könnt Ihr verzichten: Garage
-könnt Ihr nicht verzichten: nicht kleiner bauen
Warum ist der Entwurf so geworden, wie er jetzt ist? ZB
Info aus www (speziell auch hier) und Kontakte zu anderen Bauherren
Was macht ihn in Euren Augen besonders gut oder schlecht? ka
Was ist die wichtigste/grundlegende Frage zum Grundriss in 130 Zeichen zusammengefasst?
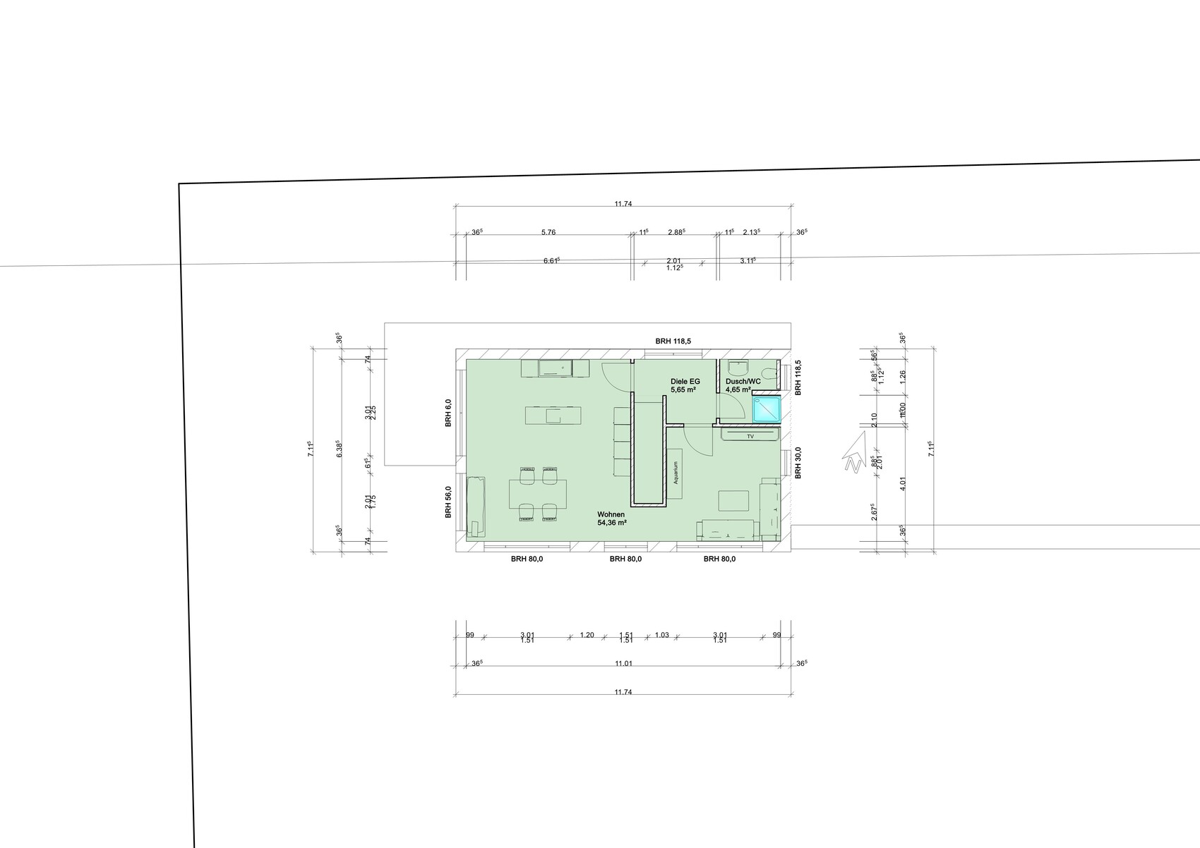
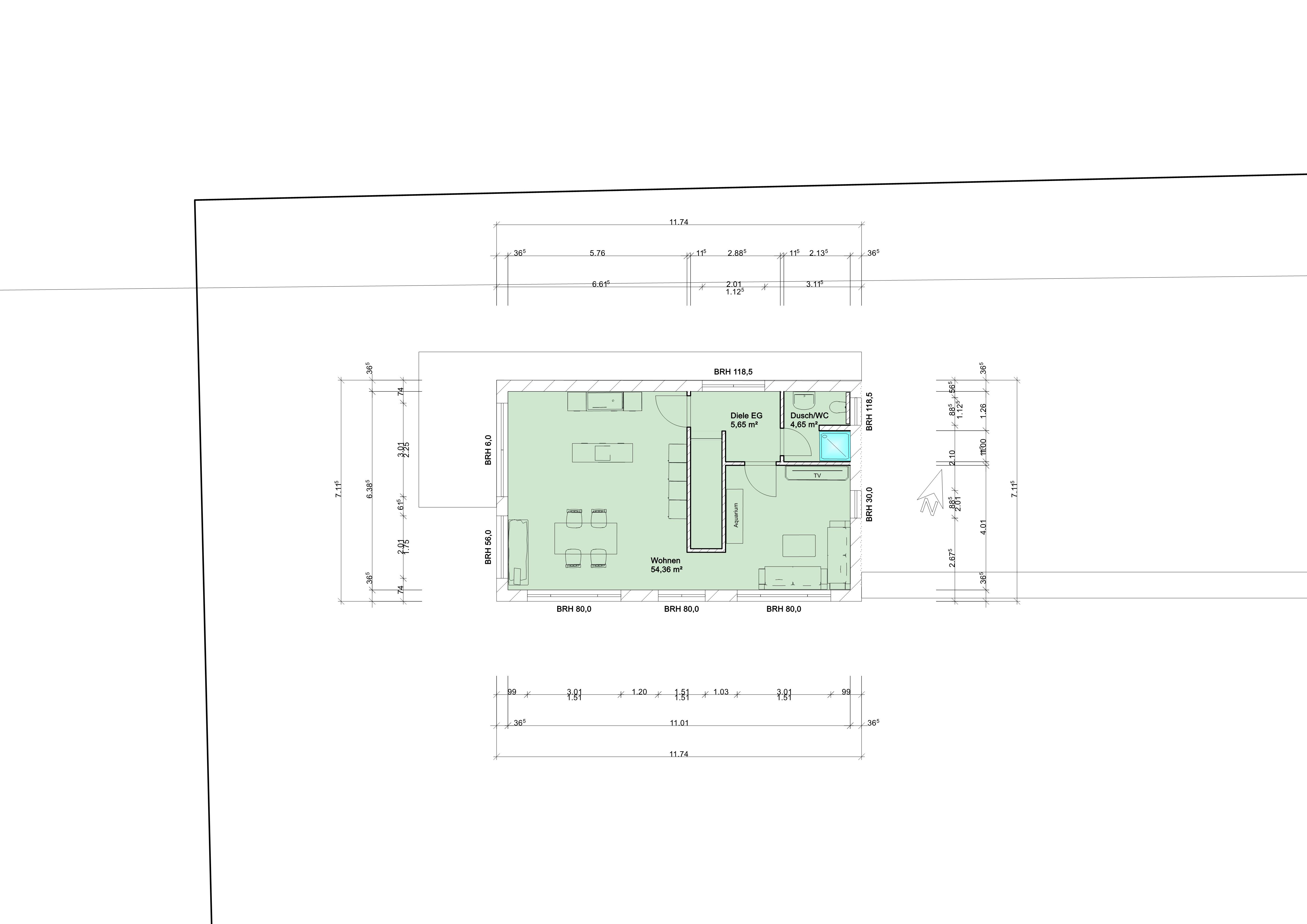
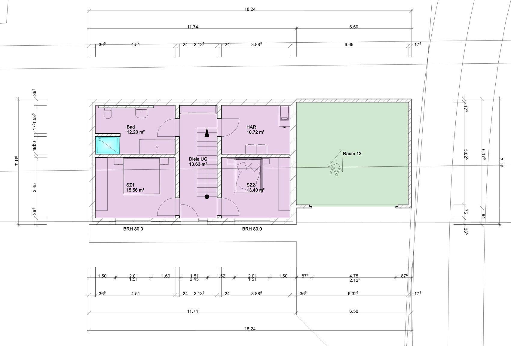
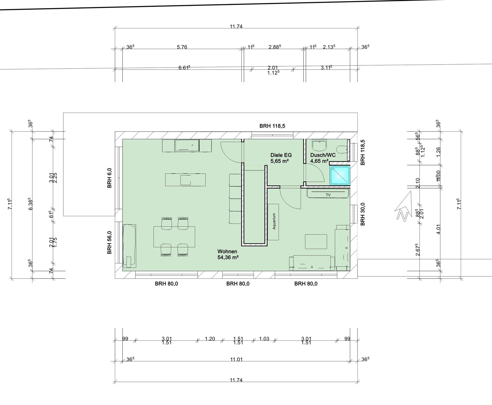
Auch aufgrund dieses Forums ist die Gebäudehülle so geplant wie sie momentan da steht. Wohn-UG soll talseitig zur Hälfte im Hang verschwinden. Zur offenen Seite hin die zwei Schlafzimmer sowie der Hauseingang. Rechts daneben die Doppelgarage, auch hälftig im Hang verschwindend. Im Hang dann der HAR und ein Bad. Das EG darüber soll ausschließlich "Leben" sein mit Terrassen- Gartenzugang und mit kleinem Bad.
Feuer frei und danke Euch.
PlanOben ist Norden.




Bebauungsplan/Einschränkungen
Größe des Grundstücks: 2200qm
Hang: Südhang, im Baufenster ca. 2,50m
Grundflächenzahl: §34 - angrenzend stehen 1,5 - 2 Geschosser mit Satteldächern
Geschossflächenzahl: §34
Baufenster, Baulinie und -grenze
Randbebauung
Anzahl Stellplatz: 2
Geschossigkeit: 2 Vollgeschosse
Dachform: 22 Grad Satteldach
Stilrichtung
Ausrichtung: Südhang, dementsprechend auch die Ausrichtung
Maximale Höhen/Begrenzungen
weitere Vorgaben
Anforderungen der Bauherren
Stilrichtung, Dachform, Gebäudetyp: Klassisch, Satteldach, Einfamilienhaus ohne Vorsprünge
Keller, Geschosse: kein Keller, aber wegen Hang soll das Wohn-UG halbseitig im Hang verschwinden. Darauf dann das EG als Vollgeschoss.
Anzahl der Personen, Alter: 2 Erw. (42 und 49), 1 Kind (19)
Raumbedarf im EG, OG: jeweils ca. 65qm
Büro: Familiennutzung oder Homeoffice? Nein
Schlafgäste pro Jahr: nicht der Rede wert
offene oder geschlossene Architektur: offen im EG
konservativ oder moderne Bauweise:
offene Küche, Kochinsel: Ja, mit Insel
Anzahl Essplätze: 6
Kamin: nein
Musik/Stereowand
Balkon, Dachterrasse: nein
Garage, Carport: Doppelgarage gewünscht, zur Not auch nur Carport
Nutzgarten, Treibhaus
weitere Wünsche: Photovoltaik geplant, Kontrollierte-Wohnraumlüftung ist eingepreist, KfW55ee
Hausentwurf
Von wem stammt die Planung: DIY und Planer GU
-Planer eines Bauunternehmens: Ja
-Architekt: Nein
-Do-it-Yourself: Ja
Was gefällt besonders? Warum? Südausrichtung, Ausblick
Was gefällt nicht? Warum? Das sagt ihr uns
Preisschätzung lt Architekt/Planer: 330.000
Persönliches Preislimit fürs Haus, inkl Ausstattung: 450.000 inkl Baunebenkosten
favorisierte Heiztechnik: Luft-Wasser-Wärmepumpe
Wenn Ihr verzichten müsst, auf welche Details/Ausbauten
-könnt Ihr verzichten: Garage
-könnt Ihr nicht verzichten: nicht kleiner bauen
Warum ist der Entwurf so geworden, wie er jetzt ist? ZB
Info aus www (speziell auch hier) und Kontakte zu anderen Bauherren
Was macht ihn in Euren Augen besonders gut oder schlecht? ka
Was ist die wichtigste/grundlegende Frage zum Grundriss in 130 Zeichen zusammengefasst?
Auch aufgrund dieses Forums ist die Gebäudehülle so geplant wie sie momentan da steht. Wohn-UG soll talseitig zur Hälfte im Hang verschwinden. Zur offenen Seite hin die zwei Schlafzimmer sowie der Hauseingang. Rechts daneben die Doppelgarage, auch hälftig im Hang verschwindend. Im Hang dann der HAR und ein Bad. Das EG darüber soll ausschließlich "Leben" sein mit Terrassen- Gartenzugang und mit kleinem Bad.
Feuer frei und danke Euch.
PlanOben ist Norden.
P
Pitigliano09.12.21 19:25Zeichne das Haus mal ins Grundstück ein; und ziehe den Lageplanausschnitt erheblich weiträumiger - so kann man ja kein faktisches Baufenster erkennen.
https://www.instagram.com/11antgmxde/
https://www.linkedin.com/company/bauen-jetzt/
https://www.instagram.com/11antgmxde/
https://www.linkedin.com/company/bauen-jetzt/
Ich würde die Garage nicht unbedingt ans Haus bauen. vor allem der Eingang sehe ich oben. Der Bereich Schlafen, Bad gehört weg vom Eingang. Ihr hört jeden der kommt und geht - bei einem großen Kind kommt es doch öfter zu nächtlichen Besuchen. Dazu läuft man öfter leicht begleitet vom Schlafzimmer ins Bad. Da möchte ich keinem Paketboten begegnen. Nachts barfuß durch Straßendreck im Winter muss ebenfalls nicht sein
Ist es Absicht das die Terrasse hangaufwärts liegt?
Ist es Absicht das die Terrasse hangaufwärts liegt?
S
saralina8710.12.21 07:17Ich würde den Eingang auch definitiv oben sehen. Bei der Vorstellung jedes mal die Einkäufe vom Auto zur Küche zu tragen... Oha.
Ansonsten find ich die Idee aber schön!
Ansonsten find ich die Idee aber schön!
H
hampshire10.12.21 10:18Die Klarheit und Schlichtheit des Entwurfes gefällt mir ausgesprochen gut. Beim näheren Hinsehen kommen mir ein paar Gedanken:
Es geht für mich nicht um Eingang unten oder oben, ich würde zwei Eingänge bauen - und zwar einen unten für den volljährigen Sohn direkt in seinen Bereich und einen oben für alle. Für diese Grundidee ist allerdings der untere Grundriss nicht ganz passend, denn ein nützlicher Windfang und die Treppe würden sich stören, es sei denn Ihr baut einen Windfang davor, was aber die klare Hausfassade wiederum stören könnte und Extrageld kostet.
So eine Ausweichdusche ist eine tolle Sache, wenn man zu dritt wohnt. Die Lage in Deinem Haus ist nicht ideal aber damit kann man prima leben.
Hauswirtschaftsraum neben Schafraum macht mir Gedanken - plant schon mal einen sehr guten Schallschutz. Brummende Wärmepumpen (wo soll eigentlich dann das Außenteil hin?) und laufende Waschmaschinen sind nicht des Wohnens bester Freund.
Wollt ihr ernsthaft bei einer Hanglage mit dem Rücken zum Ausblick im Wohnzimmer sitzen? Das muss doch besser gehen ohne auf Glotze und Aquarium zu verzichten.
Der Koch-Essbereich ist im Verhältnis zu allen anderen Räumen geradezu verschwenderisch groß. Ihr habt quasi eine Innenterrasse vor der Außenterrasse.
Die schöne, gut strukturierende, klare und gerade Treppe hat den Preis der räumlichen Ineffizienz, macht Wohn- und Jugendzimmer unnötig klein.
Es geht für mich nicht um Eingang unten oder oben, ich würde zwei Eingänge bauen - und zwar einen unten für den volljährigen Sohn direkt in seinen Bereich und einen oben für alle. Für diese Grundidee ist allerdings der untere Grundriss nicht ganz passend, denn ein nützlicher Windfang und die Treppe würden sich stören, es sei denn Ihr baut einen Windfang davor, was aber die klare Hausfassade wiederum stören könnte und Extrageld kostet.
So eine Ausweichdusche ist eine tolle Sache, wenn man zu dritt wohnt. Die Lage in Deinem Haus ist nicht ideal aber damit kann man prima leben.
Hauswirtschaftsraum neben Schafraum macht mir Gedanken - plant schon mal einen sehr guten Schallschutz. Brummende Wärmepumpen (wo soll eigentlich dann das Außenteil hin?) und laufende Waschmaschinen sind nicht des Wohnens bester Freund.
Wollt ihr ernsthaft bei einer Hanglage mit dem Rücken zum Ausblick im Wohnzimmer sitzen? Das muss doch besser gehen ohne auf Glotze und Aquarium zu verzichten.
Der Koch-Essbereich ist im Verhältnis zu allen anderen Räumen geradezu verschwenderisch groß. Ihr habt quasi eine Innenterrasse vor der Außenterrasse.
Die schöne, gut strukturierende, klare und gerade Treppe hat den Preis der räumlichen Ineffizienz, macht Wohn- und Jugendzimmer unnötig klein.
Ähnliche Themen