ᐅ Grundriss Vorteile und Nachteile auf Basis von Satteldach 229m²
Erstellt am: 02.12.22 12:55
T
TeilzeitplanerT
Teilzeitplaner02.12.22 12:55Servus Mitanand,
vorab möchte ich mich gerne bei euch für den großen Input in meinem vorherigen Thread bedanken 🙂.
Ich für meinen Teil bin tw. schier überfordert mit den grenzenlosen Möglichkeiten einer neuen Hausplanung auf einem Acker.
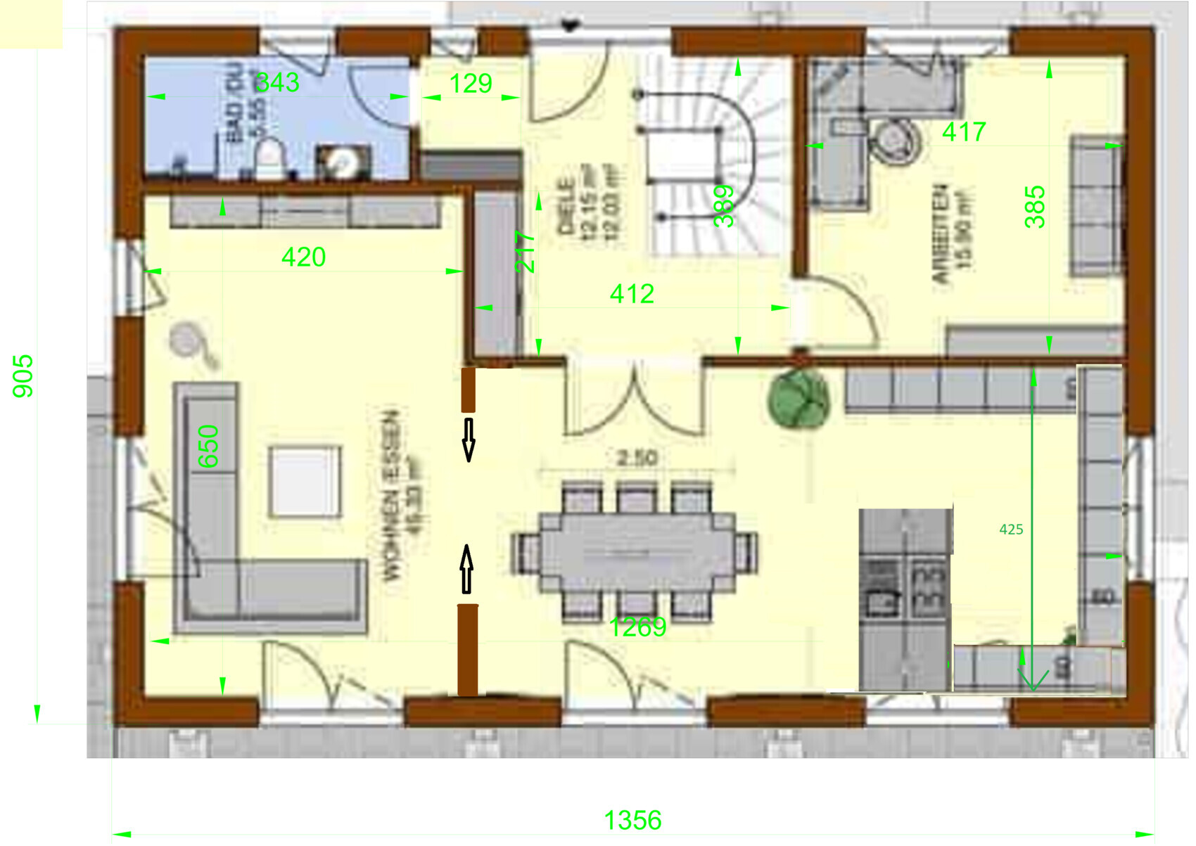
Mit den angehänten Grundriss möchte ich gerne mit euch die Vor- und Nachteile durchgehen.
Grundstücksgröße sowie Lage zu Nachbarn etc. findet ihr hier: Garagenposition am Grundstück - Entscheidunghilfe
Der Grundriss ist aus dem Internet, nachfolgend was mir daran gefällt:
- Satteldach => passt zum Ortsbild + Photovoltaikanlage + günstig und gut
- rechteckiger Grundriss => Wohnräume alle im Süden, bei voller Südausrichtung
- großes Wohnzimmer => ich hätte gerne eine 5.1 Anlage und gerne dabei die hinteren Boxen nicht mehr an meinen Ohrmuscheln 🙂
- große Küche möglich => bevorzugt eine G/U-Küche mit erhöhtem Tresen zum Esstisch
- große Wohnräume im EG => bei "verhältnismäßig" schmaler Breite des Hauses / Satteldach
- solide Garderobe direkt am Eingang
- Treppenform erlaubt einfachen Kellerzugang
- großes Büro
- Eingang Mittig und "luftig" mit Blick durch das Haus
Wünsche die es leider (vielleicht noch) nicht geschafft haben (man kann nicht alles haben 🙂):
- Speis / Abstellraum im EG
- Garagenzugang
- Schlafzimmer - Ankleide - Bad trackt
Geplant was aktuell nicht im Grundriss enthalten ist:
- Kellergeschoss
- Schiebetür zw. Esszimmer und Wohnzimmer
- ein kalter Wintergarten / Lounge / Terrasse im Westen:

Im ersten Schritt bin ich gespannt auf eure Meinung, bevor ich mit meinen Fragen beginne.
Alles ist möglich, nichts muss, viel Spaß und Grüße aus Bayern 😉!


vorab möchte ich mich gerne bei euch für den großen Input in meinem vorherigen Thread bedanken 🙂.
Ich für meinen Teil bin tw. schier überfordert mit den grenzenlosen Möglichkeiten einer neuen Hausplanung auf einem Acker.
Mit den angehänten Grundriss möchte ich gerne mit euch die Vor- und Nachteile durchgehen.
Grundstücksgröße sowie Lage zu Nachbarn etc. findet ihr hier: Garagenposition am Grundstück - Entscheidunghilfe
Der Grundriss ist aus dem Internet, nachfolgend was mir daran gefällt:
- Satteldach => passt zum Ortsbild + Photovoltaikanlage + günstig und gut
- rechteckiger Grundriss => Wohnräume alle im Süden, bei voller Südausrichtung
- großes Wohnzimmer => ich hätte gerne eine 5.1 Anlage und gerne dabei die hinteren Boxen nicht mehr an meinen Ohrmuscheln 🙂
- große Küche möglich => bevorzugt eine G/U-Küche mit erhöhtem Tresen zum Esstisch
- große Wohnräume im EG => bei "verhältnismäßig" schmaler Breite des Hauses / Satteldach
- solide Garderobe direkt am Eingang
- Treppenform erlaubt einfachen Kellerzugang
- großes Büro
- Eingang Mittig und "luftig" mit Blick durch das Haus
Wünsche die es leider (vielleicht noch) nicht geschafft haben (man kann nicht alles haben 🙂):
- Speis / Abstellraum im EG
- Garagenzugang
- Schlafzimmer - Ankleide - Bad trackt
Geplant was aktuell nicht im Grundriss enthalten ist:
- Kellergeschoss
- Schiebetür zw. Esszimmer und Wohnzimmer
- ein kalter Wintergarten / Lounge / Terrasse im Westen:
Im ersten Schritt bin ich gespannt auf eure Meinung, bevor ich mit meinen Fragen beginne.
Alles ist möglich, nichts muss, viel Spaß und Grüße aus Bayern 😉!
Leider fehlen so ein paar Informationen, die in einer kopierbaren Checkliste in https://www.hausbau-forum.de/threads/grundriss-planung-unbedingt-vor-beitrag-erstellung-lesen.11714/ definiert sind.
K
K a t j a02.12.22 14:08Grundsätzlich solide Sache.
Was mich stören würde:
- der Allraum wirkt sehr schlauchig - die Chillecke entsprechend sehr fade. Ob man das mit der Einrichtung allein korrigieren kann? Fraglich. Vielleicht ist eine Trennung in Höhe Kamin schöner? Küche an die Ostseite und Tisch etwas nach Osten rücken? Müsste man mal bissl rumprobieren - aber ohne Maße...
- Die Laufwege - insbesondere zu den Terrassentüren sind verstellt. Eigentlich müssten die Terrassentüren auf der Südseite genau dorthin, wo jetzt Wand ist. Das würde aber die Außenoptik zerschmettern - vielleicht trennt man sich von der Symmetrie und macht eine Hebeschiebetüranlage auf breiter Front hinter Küche und Essplatz.
- Wenn die Terrasse auf die Westseite soll, läuft man immer quer durch die Chillecke - das wär doof. Terrasse auf der Südseite sollte nicht ohne Verschattung geplant werden - ich empfehle schon mal wenigstens 2 Bäume zu pflanzen.
- Ich würde die Treppenrichtung umkehren, um den Abstand zur Haustür zu vergrößern.
Was mich stören würde:
- der Allraum wirkt sehr schlauchig - die Chillecke entsprechend sehr fade. Ob man das mit der Einrichtung allein korrigieren kann? Fraglich. Vielleicht ist eine Trennung in Höhe Kamin schöner? Küche an die Ostseite und Tisch etwas nach Osten rücken? Müsste man mal bissl rumprobieren - aber ohne Maße...
- Die Laufwege - insbesondere zu den Terrassentüren sind verstellt. Eigentlich müssten die Terrassentüren auf der Südseite genau dorthin, wo jetzt Wand ist. Das würde aber die Außenoptik zerschmettern - vielleicht trennt man sich von der Symmetrie und macht eine Hebeschiebetüranlage auf breiter Front hinter Küche und Essplatz.
- Wenn die Terrasse auf die Westseite soll, läuft man immer quer durch die Chillecke - das wär doof. Terrasse auf der Südseite sollte nicht ohne Verschattung geplant werden - ich empfehle schon mal wenigstens 2 Bäume zu pflanzen.
- Ich würde die Treppenrichtung umkehren, um den Abstand zur Haustür zu vergrößern.
T
Teilzeitplaner02.12.22 16:36Ich habe noch mittels Paint die Schiebetür und Küche wie wir uns diese vorstellen aktualisiert.
Fenster habe ich erstmal so belassen, wir planen tendenziell mit größeren Fenstern.
Bebauungsplan/Einschränkungen
Grundstücksgröße Nachbarbebauung siehe: LINK
Dachform = aktuell Satteldach
Maximale Höhen/Begrenzungen => max. 2 Geschosse bei 30° DN
Anforderungen der Bauherren
Keller = Ja zu 80%
Personen => 2 + 3 Kinder Zukunft
Kamin => eigentlich nicht
Musik/Stereowand => 5.1 im WZ
Balkon, Dachterrasse => kein Balkon oder Dachterrasse gewünscht
Weitere Details was uns gefällt im ersten Post 🙂.


Fenster habe ich erstmal so belassen, wir planen tendenziell mit größeren Fenstern.
Bebauungsplan/Einschränkungen
Grundstücksgröße Nachbarbebauung siehe: LINK
Dachform = aktuell Satteldach
Maximale Höhen/Begrenzungen => max. 2 Geschosse bei 30° DN
Anforderungen der Bauherren
Keller = Ja zu 80%
Personen => 2 + 3 Kinder Zukunft
Kamin => eigentlich nicht
Musik/Stereowand => 5.1 im WZ
Balkon, Dachterrasse => kein Balkon oder Dachterrasse gewünscht
Weitere Details was uns gefällt im ersten Post 🙂.
H
hanghaus202302.12.22 18:14Bei 230 m2 traue ich mich mal nach dem Budget zu fragen.
hanghaus2023 schrieb:
Bei 230 m2 traue ich mich mal nach dem Budget zu fragen.plus Keller wohlgemerkt. Mich irritiert das Ackerland, welches noch kein Bauland ist. Soviel ich weiß, dauert dieser Prozess 10-15 Jahre.@Teilzeitplaner Wie lange läuft der Prozess der Umwandlung in Bauland schon?
Und bei Acker denke ich gleich an Eingeschossigkeit 😉
Ähnliche Themen