Grundriss - 135qm, 1,5-Geschosse, Satteldach

4,30 Stern(e) 7 Votes
Zuletzt aktualisiert 21.11.2025
Sie befinden sich auf der Seite 10 der Diskussion zum Thema: Grundriss - 135qm, 1,5-Geschosse, Satteldach
>> Zum 1. Beitrag <<

H

haydee

Warum wollt ihr keine Gaube?
Mit Gaube bekommt ihr einen Raum mit mehr Stehhöhe ins DG
Bessere Nutzung für Schränke
Etwas mehr Wohnfläche
 
R

Reluctance

Warum wollt ihr keine Gaube?
Mit Gaube bekommt ihr einen Raum mit mehr Stehhöhe ins DG
Bessere Nutzung für Schränke
Etwas mehr Wohnfläche
Sind halt Zusatzkosten, die wir nicht eingeplant haben. Unser Puffer wird für andere Dinge draufgehen, wie andere Fliesen als Standard, Badezimmerausstattung oder Eingangsvorbau (den wir vergessen haben mit einzuplanen ) usw. Daher wollen wir keine Gaube
 
kaho674

kaho674

  • Für die Farbgestaltung der Putzfassaden sind nur Töne aus dem Bereich von weiß, gelb, braun, grün und grau mit einem Hellbezugswert von 40 bis 80 zulässig.
Wie jetzt, kein Rosa?

Dafür, dass Du "keinen" Bebauungsplan hast, sind es doch einige Vorschriften. Find das aber ok - sehe jetzt nichts dramatisch Furchtbares.
 
H

haydee

Ich würde lieber Gaube nehmen, statt Wasserhähne und Fliesen aufzumustern. Eine Eingangsüberdachung kann man später anbringen - stört doch eh nur bei Regen

Ist eure Entscheidung. Zeichne nur unbedingt in jeden Grundriss eure Möbel ein und spielt das ganze mit Kind durch.
 
kaho674

kaho674

Deinen Google-Lageplan kann ich leider nicht identifizieren. Ist das Ding genordet oder ist der kleine Kompaß rechts oben relevant? Zu welcher Straße muss Du jetzt die Traufe ausrichten? Durch das Grundstück links von Euch geht da eine Straße oder kommt die noch weg?

Dein Grundrissversuch erinnert mich ein wenig an das "Jedermann Klassik" von Büdenbender. Ohne OG ist ein Grundriss allerdings nichts wert, solange Du keinen Bungalow planst.


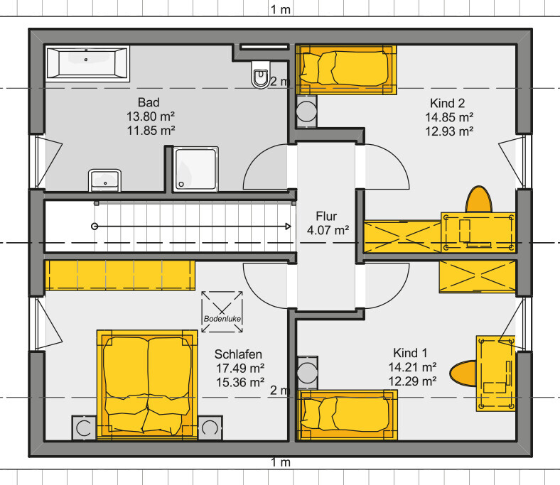
Grundriss eines Obergeschosses: Bad, Schlafen, Kind 1, Kind 2, Flur in der Mitte.

Grundriss: Offene Küche mit Essplatz, Wohnen/Essen, Arbeiten, Treppe, WC, Diele, Garderobe.
 
Y

ypg

Ich würde lieber Gaube nehmen, statt Wasserhähne und Fliesen aufzumustern. Eine Eingangsüberdachung kann man später anbringen - stört doch eh nur bei Regen
Da man ja nun auch nicht weiß, wie viel Fläche überbaut werden darf, kann man zu zweit oder zu dritt gut ein Haus mit Satteldach bauen, ohne mit Gaube auszukommen. Bei Neigungen von 35-55 entsteht unterm Dach auch adäquater Wohnraum. Ggf könnte man bei Nachwuchs dann auch nachrüsten.
 
Zuletzt aktualisiert 21.11.2025
Im Forum Grundrissplanung / Grundstücksplanung gibt es 2535 Themen mit insgesamt 87978 Beiträgen


Ähnliche Themen zu Grundriss - 135qm, 1,5-Geschosse, Satteldach
Nr.ErgebnisBeiträge
1Ideenfindung für Grundriss 120m2 Einfamilienhaus 12
2Meinungen und Tipps zu unserem Grundriss 12
3Grundriss Einfamilienhaus ca. 200qm mit Keller - Hinterbebauung 20
43. Grundriss-Entwurf Neubau Einfamilienhaus 220qm 2 Vollgeschosse Dachterrasse - Seite 1061
5Grundriss Einfamilienhaus-Sattelhaus mit Keller, ca. 200 qm - Seite 1076
6Grundriss Einfamilienhaus 1 Vollgeschoss Technik und Tageslicht - Seite 11194
7Grundriss Einfamilienhaus, leichte Hanglage, NW-Ausrichtung - Seite 674
8Grundriss eines barrierefreien Bungalow - Seite 23229
9Was ist das für eine Gaube - Seite 210
10Gaube nicht möglich, weil Drempel zu hoch 12
11Unterschied Gaube Zwerchgiebel Zwerchhaus - Unklarer Bebauungsplan 16
12Nur Gaube erlaubt, Lösungen? 82
13Welcher Belag im Bad statt Fliesen 14
14Fliesen andere Hersteller finden / Bauträger Bemustern - Seite 213
1545x90 Feinsteinzeug-Fliesen 11
16Fußbodenheizung, Raumthermostate und kalte Fliesen 28
17Vinylboden auf Fliesen, Vorbehandlung 12
18Neubau Kfw70 Fußbodenheizung und Fliesen 11
19Fliesen kaufen während Rohbau 24
20Fliesen, Vinyl oder anderweitiger Bodenbelag bei Fußbodenheizung? - Seite 223

Oben