ᐅ Grundriss - 135qm, 1,5-Geschosse, Satteldach
Erstellt am: 18.02.19 21:20
Reluctance18.02.19 21:20
Hallo zusammen,
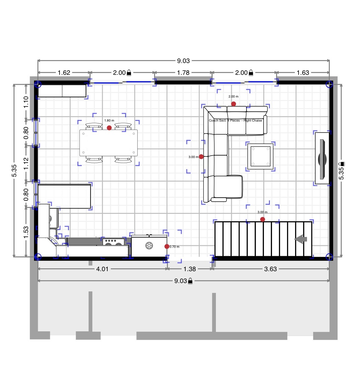
ich lese hier schon eine Weile mit und nun ist es bei uns auch soweit, dass die Grundrissplanung losgeht. Wir haben in dieser Woche den ersten Termin mit dem Architekten und haben bereits zur Vorbereitung unsere Vorstellungen mit ihm ausgetauscht. Daraufhin haben wir einen ersten Entwurf bekommen, den wir in unserem Termin besprechen werden. Wir hatten zusätzlich auch eigene Entwürfe gebastelt (ohne Beachtung von Statik, Fenstern, Treppe ist viel zu klein eingezeichnet etc. - wirklich nur ganz grob, damit unsere Vorstellungen klar werden, die hänge ich mal mit an).
Bebauungsplan/Einschränkungen
Größe des Grundstücks: 635 qm
Größe des Hauses: 135qm
Geschossigkeit: 1,5
Dachform: Satteldach
Maximale Höhen/Begrenzungen: Kniestock 1,20m
(Am liebsten hätten wir Bungalow oder Stadtvilla gebaut - leider gibt es hier keine Grundstücke und wir sind froh, dass wir nun eines gefunden haben, auch wenn das heißt, dass wir uns nun mit 1,5 Geschossen und einem Kniestock abfinden müssen).
Anforderungen der Bauherren
Keller, Geschosse: kein Keller
Anzahl der Personen, Alter: 2 Personen, 39 (Kinder sind zu 90% nicht mehr geplant)
Büro: Homeoffice 1xmal die Woche - wobei ich eher im Wohnzimmer mit Laptop arbeite
Schlafgäste: vllt. 2 bis 3 mal im Jahr, hat in der Wohnung bisher auch geklappt ohne Gästezimmer
Architektur: offen
Bauweise: modern
Küche: Kochinsel wird kaum passen, aber offene Küche sollte es sein, ggf. Tresen
Essplätze: 4 bis 6 - falls man mal Besuch hat - würde aber auch gehen, dann mal spontan einen Tisch reinzustellen und im Alltag auf einen Küchentresen zurückzugreifen
Kamin: aus Kosten- und Platzgründen eher nein
Balkon, Dachterrasse: Terrasse
Garage, Carport: Carport
Wunsch Erdgeschoss:
enthält Hauswirtschaftsraum, Gäste-WC, Diele, Wohnbereich (bestehend aus Wohnzimmer, Küche, Essbereich/bzw. Sonstiges)
Eingangsbereich und Nebenräume:
- kleiner Flur, Platz für Garderobe
- Hauswirtschaftsraum ca. 8 qm, Platz für Technik, Waschmaschine, Hundefutter & Co.
- Gäste-WC Max. 3 qm; keine Gäste-Dusche nötig
Wohnbereich:
- schneller Zugang vom Eingang zum Wohnbereich, idealerweise zuerst zur Küche
- Wohn-/Küchen-/Essbereich größtmöglich (ideal ca. 50qm), möglichst wenig Platzverschwendung durch andere Bereiche/Räume im EG
- Küche ggf. mit Insel/Tresen, wenn Platz reicht
- Bücherecke mit Fenstersitzbank wenn Platz reicht (zur Info: Ich habe ca. 1.000 Bücher und ein Klavier - das muss irgendwo unter gebracht werden)
- Treppe platzsparend, gerne offen/frei im Wohnbereich integriert, um Flurfläche zu sparen
Wunsch Obergeschoss:
enthält Badezimmer, Schlafzimmer, Ankleideraum, Hobbyraum, weiteres Zimmer (ggf. Büro, Gäste)
Bad
- Badezimmer mit bodengleicher Dusche + Badewanne (freistehend = nice to have)
- ggf. Wandabtrennung für Toilette (wenn es passt)
Schlafbereich und Ankleide
- Schlafzimmer mit begehbaren Schrankbereich/Ankleideraum, wenn bei Hausgröße sinnvoll machbar
- Durchgang von Schlafzimmer ins Ankleidezimmer und ins Bad
Weitere Zimmer
- Hobbyzimmer mit Platz für Schreibtisch, Bastelecken, kleine Sitzgelegenheit
- Weiteres Zimmer als Büro/Sport-/Gästeraum oder ggf. doch noch als Kinderzimmer - alternativ größerer Flur/Galerie mit Sitzecke und Lichthof nach unten
Hausentwurf
Von wem stammt die Planung: Planer/Architekt eines Bauunternehmens
Was gefällt nicht? Warum?:
Preisschätzung lt Architekt/Planer: 240k - so ist es auch finanziell eingeplant (ohne Küche oder zusätzliche Möbel, Grundstück und Außenanlagen gerechnet - gesamt liegen wir bei 400k)
favorisierte Heiztechnik: Luftwärmepumpe
Wenn Ihr verzichten müsst, auf welche Details/Ausbauten könnt ihr verzichten: sehr sehr schweren Herzens auf das Ankleide-/Schrankzimmer
Was ist die wichtigste/grundlegende Frage zum Grundriss in 130 Zeichen zusammengefasst?
Wie gehen wir nun am besten mit dem Entwurf um? Gibt es aus eurer Sicht Ideen, mit denen wir unseren Vorstellungen näher kommen und die wir sinnvoll in das Gespräch einbringen sollten/könnten? Von welchen Ideen/Vorstellungen sollten wir uns ganz verabschieden?
Noch ein paar Anmerkungen: Wenn ich hier die anderen Beiträge so lese, bekomme ich immer ein schlechtes Gewissen, weil wir "nur" mit 135qm bauen und alles irgendwie so "mini" ist. Dennoch möchte ich für mein Geld hier das bestmögliche rausholen. Finanziell ist diese Größe im Moment am vernünftigsten.
(PS: Und falls die Frage kommt: Warum Kinder nur zu 90% ausgeschlossen? Das kann vielerlei Gründe haben - zum Beispiel, weil es mit dem Kinderwunsch nicht klappt, aber man noch nicht ganz aufgegeben hat.)
Vielen Dank schon mal für eure Meinung.






ich lese hier schon eine Weile mit und nun ist es bei uns auch soweit, dass die Grundrissplanung losgeht. Wir haben in dieser Woche den ersten Termin mit dem Architekten und haben bereits zur Vorbereitung unsere Vorstellungen mit ihm ausgetauscht. Daraufhin haben wir einen ersten Entwurf bekommen, den wir in unserem Termin besprechen werden. Wir hatten zusätzlich auch eigene Entwürfe gebastelt (ohne Beachtung von Statik, Fenstern, Treppe ist viel zu klein eingezeichnet etc. - wirklich nur ganz grob, damit unsere Vorstellungen klar werden, die hänge ich mal mit an).
Bebauungsplan/Einschränkungen
Größe des Grundstücks: 635 qm
Größe des Hauses: 135qm
Geschossigkeit: 1,5
Dachform: Satteldach
Maximale Höhen/Begrenzungen: Kniestock 1,20m
(Am liebsten hätten wir Bungalow oder Stadtvilla gebaut - leider gibt es hier keine Grundstücke und wir sind froh, dass wir nun eines gefunden haben, auch wenn das heißt, dass wir uns nun mit 1,5 Geschossen und einem Kniestock abfinden müssen).
Anforderungen der Bauherren
Keller, Geschosse: kein Keller
Anzahl der Personen, Alter: 2 Personen, 39 (Kinder sind zu 90% nicht mehr geplant)
Büro: Homeoffice 1xmal die Woche - wobei ich eher im Wohnzimmer mit Laptop arbeite
Schlafgäste: vllt. 2 bis 3 mal im Jahr, hat in der Wohnung bisher auch geklappt ohne Gästezimmer
Architektur: offen
Bauweise: modern
Küche: Kochinsel wird kaum passen, aber offene Küche sollte es sein, ggf. Tresen
Essplätze: 4 bis 6 - falls man mal Besuch hat - würde aber auch gehen, dann mal spontan einen Tisch reinzustellen und im Alltag auf einen Küchentresen zurückzugreifen
Kamin: aus Kosten- und Platzgründen eher nein
Balkon, Dachterrasse: Terrasse
Garage, Carport: Carport
Wunsch Erdgeschoss:
enthält Hauswirtschaftsraum, Gäste-WC, Diele, Wohnbereich (bestehend aus Wohnzimmer, Küche, Essbereich/bzw. Sonstiges)
Eingangsbereich und Nebenräume:
- kleiner Flur, Platz für Garderobe
- Hauswirtschaftsraum ca. 8 qm, Platz für Technik, Waschmaschine, Hundefutter & Co.
- Gäste-WC Max. 3 qm; keine Gäste-Dusche nötig
Wohnbereich:
- schneller Zugang vom Eingang zum Wohnbereich, idealerweise zuerst zur Küche
- Wohn-/Küchen-/Essbereich größtmöglich (ideal ca. 50qm), möglichst wenig Platzverschwendung durch andere Bereiche/Räume im EG
- Küche ggf. mit Insel/Tresen, wenn Platz reicht
- Bücherecke mit Fenstersitzbank wenn Platz reicht (zur Info: Ich habe ca. 1.000 Bücher und ein Klavier - das muss irgendwo unter gebracht werden)
- Treppe platzsparend, gerne offen/frei im Wohnbereich integriert, um Flurfläche zu sparen
Wunsch Obergeschoss:
enthält Badezimmer, Schlafzimmer, Ankleideraum, Hobbyraum, weiteres Zimmer (ggf. Büro, Gäste)
Bad
- Badezimmer mit bodengleicher Dusche + Badewanne (freistehend = nice to have)
- ggf. Wandabtrennung für Toilette (wenn es passt)
Schlafbereich und Ankleide
- Schlafzimmer mit begehbaren Schrankbereich/Ankleideraum, wenn bei Hausgröße sinnvoll machbar
- Durchgang von Schlafzimmer ins Ankleidezimmer und ins Bad
Weitere Zimmer
- Hobbyzimmer mit Platz für Schreibtisch, Bastelecken, kleine Sitzgelegenheit
- Weiteres Zimmer als Büro/Sport-/Gästeraum oder ggf. doch noch als Kinderzimmer - alternativ größerer Flur/Galerie mit Sitzecke und Lichthof nach unten
Hausentwurf
Von wem stammt die Planung: Planer/Architekt eines Bauunternehmens
Was gefällt nicht? Warum?:
- Schlauchküche. Habe ich auch in der Wohnung und brauche/möchte ich nicht mehr. Ist sowas tatsächlich nicht anders möglich? Statik oder sonstige Gründe?
- Treppe im Schmutzbereich. Schuhe, Schmutz etc. Da will ich nicht jedes Mal durchlaufen, wenn ich nach oben will.
- Ankleidezimmer in der Schräge. Da bleibt nicht viel Platz für Schränke...
- Büro 7qm. Macht sowas Sinn? Falls da wider allen Erwartungen nun doch noch ein Kind kommt, wäre das am Ende das Hobbyzimmer, was dann viel zu klein wäre.
- Bäder. Macht das Sinn? Dachte immer, dass die unter-/übereinander liegen sollten?
- Technik. Nicht auch auf Dachboden möglich?
Preisschätzung lt Architekt/Planer: 240k - so ist es auch finanziell eingeplant (ohne Küche oder zusätzliche Möbel, Grundstück und Außenanlagen gerechnet - gesamt liegen wir bei 400k)
favorisierte Heiztechnik: Luftwärmepumpe
Wenn Ihr verzichten müsst, auf welche Details/Ausbauten könnt ihr verzichten: sehr sehr schweren Herzens auf das Ankleide-/Schrankzimmer
Was ist die wichtigste/grundlegende Frage zum Grundriss in 130 Zeichen zusammengefasst?
Wie gehen wir nun am besten mit dem Entwurf um? Gibt es aus eurer Sicht Ideen, mit denen wir unseren Vorstellungen näher kommen und die wir sinnvoll in das Gespräch einbringen sollten/könnten? Von welchen Ideen/Vorstellungen sollten wir uns ganz verabschieden?
Noch ein paar Anmerkungen: Wenn ich hier die anderen Beiträge so lese, bekomme ich immer ein schlechtes Gewissen, weil wir "nur" mit 135qm bauen und alles irgendwie so "mini" ist. Dennoch möchte ich für mein Geld hier das bestmögliche rausholen. Finanziell ist diese Größe im Moment am vernünftigsten.
(PS: Und falls die Frage kommt: Warum Kinder nur zu 90% ausgeschlossen? Das kann vielerlei Gründe haben - zum Beispiel, weil es mit dem Kinderwunsch nicht klappt, aber man noch nicht ganz aufgegeben hat.)
Vielen Dank schon mal für eure Meinung.
Niloa18.02.19 21:56
Juhu, viele Bücher, das finde ich toll! Hab auch meistens das Problem, dass in vorgefertigten Grundrissen kaum bzw gar kein Platz für Bücherregale ist.
Verstehe die Treppe in deinen Grundrissen nicht. Ist die nicht viel zu kurz?
Verstehe die Treppe in deinen Grundrissen nicht. Ist die nicht viel zu kurz?
Reluctance18.02.19 22:08
Niloa schrieb:
Juhu, viele Bücher, das finde ich toll! Hab auch meistens das Problem, dass in vorgefertigten Grundrissen kaum bzw gar kein Platz für Bücherregale ist.Ja, das ist echt ein Problem für mich... schlimm, oder?
Niloa schrieb:
Verstehe die Treppe in deinen Grundrissen nicht. Ist die nicht viel zu kurz?Das waren unsere eigenen (nicht wirklich ernst zu nehmenden) Grundrissentwürfe ohne Beachtung von Statik, Fenstern, Kniestock etc.pp. und in meiner Grundriss-App war die Treppe im Standard nur so klein und ich hab nicht darauf geachtet, die zu vergrößern Im Entwurf des Planers müsste die Größe dann schon eher hinkommen.
ypg18.02.19 22:13
Lageplan und Bebauungsplan bitte
11ant19.02.19 02:34
635 qm Grundstück sind ja schon´mal ganz nett, da darf man in anderen Bundesländern fast nur von träumen. Wie wären denn da die Grund- bzw. Geschossflächenzahl ?
Die Eigenplanungsgrundrisse sind leider im wesentlichen aus zwei Gründen praktisch komplett wertlos (im Sinne, daß sie noch nicht einmal zur Veranschaulichung möglicher Flächenaufteilungen taugen): erstens passen die Maßstäbe von Türen / Fenstern ./. Räumen ./. Möbel- und sonstigen Objektsymbolen vorne und hinten nicht zusammen, und zweitens funktioniert ein "Anderthalbgeschösser" mit 120 cm Kniestock nicht, wenn man die Möblierung so denkt, als hätte man es mit einem "Stadtvilla"-Dachgeschoss zu tun.
Aus diesen beiden Gründen scheitert die gedankliche Projektion hinüber in realistische Grundrisse.
Die Eigenplanungsgrundrisse sind leider im wesentlichen aus zwei Gründen praktisch komplett wertlos (im Sinne, daß sie noch nicht einmal zur Veranschaulichung möglicher Flächenaufteilungen taugen): erstens passen die Maßstäbe von Türen / Fenstern ./. Räumen ./. Möbel- und sonstigen Objektsymbolen vorne und hinten nicht zusammen, und zweitens funktioniert ein "Anderthalbgeschösser" mit 120 cm Kniestock nicht, wenn man die Möblierung so denkt, als hätte man es mit einem "Stadtvilla"-Dachgeschoss zu tun.
Aus diesen beiden Gründen scheitert die gedankliche Projektion hinüber in realistische Grundrisse.
Reluctance19.02.19 07:35
ypg schrieb:
Lageplan und Bebauungsplan bitte Habe ich selbst noch nicht in den Händen - darum hat sich der Bauunternehmer gekümmert. Ich hoffe, dass ich das beim Termin in dieser Woche bekomme.
11ant schrieb:
Die Eigenplanungsgrundrisse sind leider im wesentlichen aus zwei Gründen praktisch komplett wertlos (im Sinne, daß sie noch nicht einmal zur Veranschaulichung möglicher Flächenaufteilungen taugen): erstens passen die Maßstäbe von Türen / Fenstern ./. Räumen ./. Möbel- und sonstigen Objektsymbolen vorne und hinten nicht zusammen, und zweitens funktioniert ein "Anderthalbgeschösser" mit 120 cm Kniestock nicht, wenn man die Möblierung so denkt, als hätte man es mit einem "Stadtvilla"-Dachgeschoss zu tun.
Aus diesen beiden Gründen scheitert die gedankliche Projektion hinüber in realistische Grundrisse.Um den Fokus auf die Entwürfe des Planers zu lenken, würde ich die eigenen Varianten gerne rausnehmen, leider geht das nicht mehr. Bitte ignoriert diese, wenn sie nichts taugen. Wir haben tatsächlich anfangs mit Bungalow-Grundrissen rumgespielt und dann mit Stadtvilla geplant. Dass wir auf 1.20 Kniestock zurückgeworfen sind, wissen wir erst seit ca. 1 Woche. Die "Malereien" habe ich seitdem nicht mehr angepasst. Und diese sollen lediglich dazu dienen, unsere Vorstellungen bzgl. Raumaufteilung irgendwie zu visualisieren - z.B. offene Küche, Treppe im Wohnbereich. Dass die Zeichnungen nicht realistisch sind, ist klar. Das ist ja dann Aufgabe des Planers - ich bin ja leider keiner Gut möglich, dass unsere Vorstellungen nicht umsetzbar sind. Wenn das so ist, sagt mir das gerne - dann versuche ich beim Gespräch mit dem Architekten nicht darauf zu beharren
Ähnliche Themen