Fenster Brüstungshöhe 130 im Schlafzimmer / Arbeitszimmer?

4,80 Stern(e) 6 Votes
Zuletzt aktualisiert 20.11.2025
Sie befinden sich auf der Seite 16 der Diskussion zum Thema: Fenster Brüstungshöhe 130 im Schlafzimmer / Arbeitszimmer?
>> Zum 1. Beitrag <<

A

audiophilone

1. Ja das mit den Vor und Rücksprüngen ist uns bewußt und werden da auf jeden fall die hilfe eines Freundes in anspruch nehmen der in dem Gewerbe tätig ist.

2. theoretisch könnte man die Zimmer Spiegeln das würde wohl gehen nur was macht man dann wieder für Brüstungshöhen im Süden für die Räume...

Naja ich sag mal so die Brüstungshöhe 130 sieht man häufiger an Häusern also so blöd kann das ja dann nicht sein...klar da wo diese Sinn machen...für mich machen sie Sinn im Bad. Wüßte erhlich gesagt jetzt nicht wo ich noch 55 Brüstungshöhe hinsetzen sollte.

Das mit den Türen ist uns auch schon aufgefallen...Der Hauswirtschaftsraum... wir wollten halt direkt von der Garage durch in den Abstellraum bzw Küche. Garage bekommt eh kein Nebenraum wurde nur fiktiv hier eingezeichnet. Die Garage ist nur mit einer Tür zum Garten und in das Haus versehen. Das Bad macht ja mit 2 Türen schon Sinn gegenüberliegend vom Kinderzimmer oder etwa nicht? und vom Schlafzimmer immer rumlaufen ist auch blöd. Unter der Treppe ist halt die Abstellkammer wüßte nicht warum ich die weglassen sollte?
 
11ant

11ant

die von @11ant angesprochenen diversen Vor- und Rücksprüngen zwischen EG und OG: die finde ich zwar optisch gelungen, sie erzeugen allerdings erhebliche Mehrkosten und sind eine potentielle Schwachstelle bei mangelhafter Ausführung.
Ich würde sogar noch weiter gehen und sagen (bzw. habe das ja bereits angedeutet): ich erwarte geradezu, daß die Mehrkosten (aber nicht auch der Mehrpreis) mit mangelhafter Ausführung wieder auszugleichen versucht werden. Als Motiv vermute ich schlicht "Angst" vor andernfalls überdosierter Schlichtheit (oder solche "Gründe" wie das Dogma eines bestimmten Sofa-Fernseher-Abstandes, wie es den Beginn des R.Hotzenplotz-Desasters https://www.hausbau-forum.de/threads/grundrissplanung-kurz-vor-bauantragsstellung.25647/ markiert hat).
Ja das mit den Vor und Rücksprüngen ist uns bewußt und werden da auf jeden fall die hilfe eines Freundes in anspruch nehmen der in dem Gewerbe tätig ist.
Im Bausachverständigengewerbe, oder was ist gemeint ?
 
A

audiophilone

Eine ganz mutige Variante für die Ostseite...finden es aber eigentlich ganz gut...die Smokey eyes im Westen kann man sich ja wegdenken.

Ostansicht eines modernen Gebäudes mit zwei Stockwerken, großen Fenstern und Garage.


Südansicht eines modernen, zweistöckigen Hauses mit Garage links und großen Glasfenstern rechts.


Westansicht eines zweigeschossigen Hauses mit Garage, Fenstern und Maßangaben


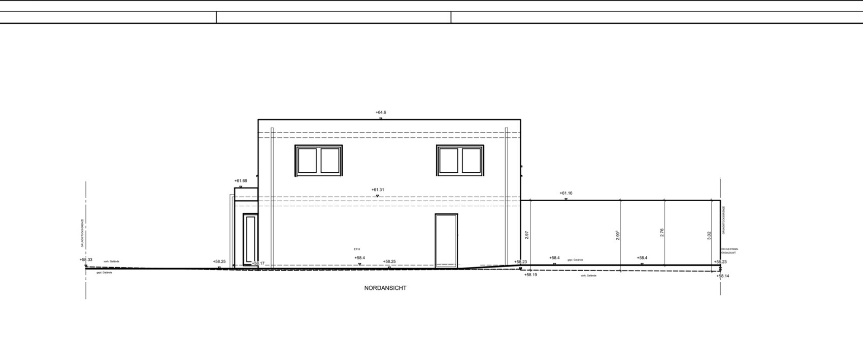
Architekten-Nordansicht eines zweistöckigen Hauses mit zwei Obergeschossfenstern, Türen und Maßlinien.
 
Zuletzt aktualisiert 20.11.2025
Im Forum Fenster / Türen gibt es 1364 Themen mit insgesamt 15526 Beiträgen


Ähnliche Themen zu Fenster Brüstungshöhe 130 im Schlafzimmer / Arbeitszimmer?
Nr.ErgebnisBeiträge
14m Zufahrt ausreichend zur Garage? - Seite 213
2Tür Haus/Garage: Nebeneingangstür als Brandschutztür? 27
3Korrekte Ausführung thermische Trennung Haus/Garage - Seite 216
4Angebot Baukosten gerechtfertigt - gemauerte Garage 9x6 m 14
5Grundrissplanungen Einfamilienhaus und Garage - Seite 332
6Einfamilienhaus mit Einliegerwohnung & Garage 14
7Haus ohne Garage und Keller? Ausbau Dachboden? Fresswarze? - Seite 585
8Technikraum in Garage einbauen? Ist dies möglich? 35
9Grundriss mit Garage auf Grundstück realisierbar? - Seite 329
10Garage - Bauantrag - Verwirrung - Seite 636
11Balkon auf Garage auf Grenze 11
12Garage sofort bauen lassen oder später - Erfahrungen? - Seite 317
13Unabsichtliche Grenzüberbauung Garage 16
14Grundstück - Baufenster - Lage von Haus und Garage - Seite 344
15Grenzbebauung Garage an einer anderen Grundstücksecke - Seite 218
16Garage genehmigt, aber Carport gebaut - Seite 323
17Garage zu tief wegen Ortsgestaltungssatzung - Seite 213
18Bearbeitung von Sockel bei Garage und Gehwegsbegrenzung 11
19Gas,- Wasser, Strom,- Telefonleitungen überbauen mit Garage? 13
20Abdichtung der Garage mit Betonboden? 21

Oben