W
Mein Konto
Hausbau - Ratgeber
Bauherrenhilfe
- Bauherrenhilfe vor Vertragsabschluss
-- Warum einen unabhängigen Baubetreuer?
-- Vertragsgrundlagen
-- Bausumme
-- Zahlungsplan zur Kostenkontrolle
-- Pflichten des Bauherren vor Vertragsabschluss
-- Unterlagen beim Hausbau vor Vertragsabschluss
- Bauherrenhilfe nach Vertragsabschluss
-- Bauantrag bei Behörden
-- Bau-Genehmigungsverfahren bei Baubehörden
-- Bauspezifische Versicherungen
-- Bauzeitenplan
-- Baubeginn - die Letzten Pflichten der Bauherrschaft
- Bauherrenhilfe während der Bauzeit
- Gewährleistungsansprüche
- Bauabnahme
Baufinanzierung
- Baufinanzierung - Allgemeine Fragen
- Kreditarten
- Kredit-Konditionen
- Bausparen
- Staatliche Förderungen
- Verkehrswert
- Haushaltsrechnung und Bonität
Hausbau Planung
- Haustypen
- Hausbau Vorbereitungsarbeiten
- Das Baugrundstück
- Baugrund beim Hausbau
- Baurecht
- Gebäudeschutz
- Erdarbeiten und Wasserhaltung
- Stützmauern
- Einfriedung
- Untergeschoss
- Kanalisation
- Tragende Elemente
- Nichttragende Innenwände
- Fundation / Fundament
- Deckenkonstruktionen
- Dächer
- Kaminanlagen
- Treppen Rampen Leitern
- Dachbeläge und Spengler
- Fenster
- Sonnen und Wetterschutz
- Aussenputze
- Einbauten, Küchen, Türen
- Bodenbeläge und Unterlagsböden
- Parkett
- Gips, Wand, Decke
Haustechnik und Energie
- Heiztechnik
- Lüftung und Klimatechnik
- Sanitärtechnik
- Elektrotechnik
- Erneuerbare Energie
Whirlpools / Jacuzzi
Hausbau Magazin
- Baufinanzierung trotz Krise?
- Das Blockhaus
- Moderne Dämmstoffe im Vergleich
- Erker Vor- und Nachteile
- Glasflächen beim Hausbau
- Günstig ein Haus Bauen
- Mediterraner Hausbaustil
- Mehrgenerationenhaus
- Moderne Architektur
- Gartengestaltung leicht gemacht
- Traditioneller Ziegelbau
- Villa als höchster Traum
- Im Eigenheim Ruhestand geniessen
- Altbau sanieren
- Kauf einer Holzgarage
- Immobilienmakler
- Arbeitshandschuhe für den Winter
- Zuhause verschönern
- Outdoor-Plissees
- Schlafzimmer planen
- Terrassenüberdachung
- Wohngebäudeversicherung
- Zaunarten und Eigenschaften
- Hauseingang gestalten
- Der perfekte Grundriss
- Sparsamer heizen im Altbau
- Einfamilienhaus smart finanzieren
- Planung einer PV-Anlage
- Neues Haus
- Immobilienfinanzierung
- Installation einer Photovoltaikanlage
- Asbest erkennen und entfernen
- Sauna im Fokus - Wellness zuhause
- Erfolgreich vermieten
- Die perfekte Winterbekleidung
- Das Niedrigenergiehaus
- Der April und seine Stürme
- Architektonische Vielfalt
- Ökologisch und nachhaltig bauen
- Das perfekte Schlafzimmer
- Nachhaltige Energieversorgung
- Zukunftsorientiert bauen
- Nachhaltigkeit beim Hausbau
- Tiny Houses
- Wärmepumpen als nachhaltige Heizvariante
- Maßgeschneiderten Kleiderschrank
- Der richtige Baukredit
- Ratgeber für erfolgreichen Hausbau
- Haus als Altersvorsorge
Do-it-yourself Anleitungen
- Verlegeanleitung für Bodenbeläge und Parkett
- Bodenbeläge und Parkett reinigen und pflegen
- Malerarbeiten am Haus
- Garten Tipps
- Umzug und Reinigung

ᐅ Fenster Brüstungshöhe 130 im Schlafzimmer / Arbeitszimmer?


Erstellt am: 23.11.21 17:37

audiophilone23.11.21 17:37
Moin... und zwar haben wir folgendes Problem. Da wir nicht zu viele verschiedene Fensterhöhen am Haus haben wollen und auch irgendwie den Übergang von 130 Brüstungshöhe auf ein niedriges Fenster im selben Raum bzw. am Übergang zu den Seiten nicht wirklich schön finden stehen wir vor dem oben genannten Problem. Eigentlich weiss ich gar nicht ob es wirklich ein Problem ist.

Westansicht eines zweigeschossigen Hauses als Architekten-Entwurfszeichnung mit Fenstern und Eingangstür.


Südansicht eines modernen Gebäudes mit Garage links, mehreren Fenstern und Flachdächern.


Nordansicht eines modernen Gebäudes, zwei Ebenen, Fensterreihen und Maßlinien


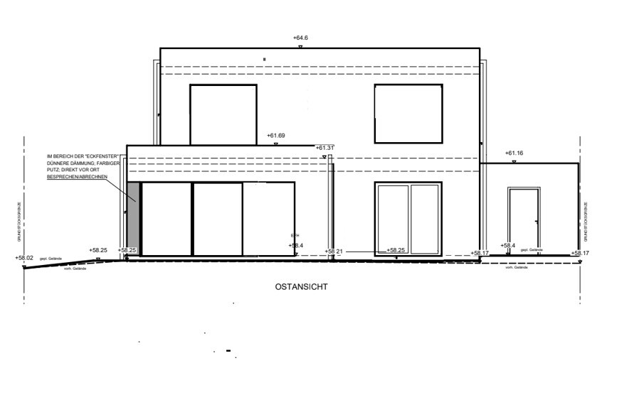
Ostansicht eines modernen Hauses mit flachem Dach, großer Fensterfront und Türen.
hampshire23.11.21 17:44
Ich würde immer von innen nach außen bauen. Wenn die Fenster gut in die Räume passen ist es richtig. Wenn den Räumen ein anderes Format oder eine andere Brüstungshöhe besser steht, würde ich lieber mehr unterschiedliche Fenster an der Fassade wählen oder eine andere Lösung finden, die allen Gesichtspunkten gerecht wird.
ypg23.11.21 17:49
Von außen ist es kein Problem, stört keiner Ästhetik.
Dennoch würde ich mal sagen: wenn es keine Ausgleichsfenster im Raum gibt, wird es dunkel bzw. dunkler. Es kommt ja weniger Licht rein.
hampshire23.11.21 17:54
Könnt ihr aufgrund des Flachdachs auch mit Licht von oben arbeiten? Dann wird es in den Räumen heller und die Fensterlinien außen bleiben in der gewünschten Klarheit und Proportion.
audiophilone23.11.21 17:55
Ja allen Gesichtspunkten gerecht zu werden ist nicht einfach und genau da ist unser Problem. Aber meinst du nicht ein 265cm und ein 201 Fenster bringen nicht genug Licht rein?
audiophilone23.11.21 17:56
Auf die Idee von oben bin ich noch gar nicht gekommen...wüßte aber auch nicht so recht wie genau das funktionieren sollte.
fensterbrüstungshöhe