Feedback zu unserer Grundrissidee, kleines Baufenster

4,50 Stern(e) 4 Votes
Zuletzt aktualisiert 18.11.2025
Sie befinden sich auf der Seite 4 der Diskussion zum Thema: Feedback zu unserer Grundrissidee, kleines Baufenster
>> Zum 1. Beitrag <<

Lassemann

Lassemann

@kiska: coole Idee mit der Wäscherutsche. werde ich gleich Montag prüfen lassen.

Elternschlaf: ja, wäre eine Möglichkeit .... Würden dann aber den tollen, frontalen Blick ins Grüne verlieren.
 
W

Wanderdüne

@Lassemann
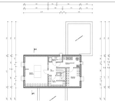
Eingang so gestalten, daß die Garderobe (evtl. in Übertiefe als Abstellkammerersatz, planoben oberhalb der Treppe realisiert wird, hängt aber auch von der Lichtplanung ab. Sitzmöglichkeit oder / und Schuhschrank dann zwischen den Türen. Wenn Garagentür weniger repräsentativ dann sinnig mit Schrank "verstecken".
Schlafzimmer wirkt beengt, Schränke als Raumteiler, ist dort besser als Wand, Abgrenzung (von Ankleide) nur bei Schichtdienst u.ä..
 
Lassemann

Lassemann

@Wanderdüne: hmm, kannst Du das irgendwie noch mal anders erklären, ich fürchte, ich habe es nicht verstanden.

Schlafzimmer: wir sind tatsächlich am überlegen, ob wir die Trennwand und auch die mittigen Schränke weglassen...
 
W

Wanderdüne

Vorweg: Späte Konzeptänderungen sind problematisch und können, besonders sobald eine Treppe betroffen ist, den gesamten Entwurf in die Tonne befördern.

Eingang: gedanklich Garderobe und Abstellkammer entfernen. Dann an die Nordseite der Treppe eine neue Garderobe hin, gerne tiefer als die üblichen 60/65 cm. Dann an die Außenwand zwischen Haupt- und Garageneingang Sitzbank und Schuhschrank hin. Schöne Türen zur Garage kosten Geld, wenn nicht ausreichend vorhanden, kann man die Tür durch geeignete Maßnahmen verstecken.

Schlafzimmer: es darf nicht zu verwinkelt wirken

Sonstiges: mir ist Euer geplanter Möbelstil nicht klar. Bezogen auf das Äußere des Gebäudes passen evtl. Schränke freistehend oder in Nischen besser als moderne Einbauschränke...
 
M

milkie

Ich finde die Abstellkammer im Flur super. Da kann man alles reinstellen und es verschwindet aus dem Sichtbereich. Top!
 
Zuletzt aktualisiert 18.11.2025
Im Forum Grundrissplanung / Grundstücksplanung gibt es 2536 Themen mit insgesamt 87971 Beiträgen


Ähnliche Themen zu Feedback zu unserer Grundrissidee, kleines Baufenster
Nr.ErgebnisBeiträge
1Eingang Grundriss welche Treppenvariante - Seite 231
2Grundriss Einfamilienhaus ohne Keller/Schlafzimmer und Bad im EG - Seite 427
3Fenster / Türen / Garderobe 13
4Einfamilienhaus mit Keller und Doppelgarage 9,2x11m Grundriss-Plan optimieren 20
5Ankleide/Schlafzimmer Problem - Grundrissdiskussion 25
6Grundrissfrage, Treppe, Fenster, Ausrichtung - Seite 212
7Stadtvilla mit gerader Treppe, offene moderne Bauweise, 140m² 18
8Wie sieht eine gelungene Garderobe aus? 33
9Treppe im Wohnzimmer als Hype - Pro & Contra? - Seite 426
10Grundriss Schlafzimmer, Ankleide und Bad en Suite 36
11Lösung für die Garderobe 106
12Grundrissfrage, Garage, Treppe 33
13Einfamilienhaus ca. 150 qm Grundriss - Treppe wie planen? 65
14Schrank unter der Treppe oder kleiner Abstellraum - Seite 211
15Planung Einbaustrahler Flur und Garderobe - Tipps - Seite 662
16Grundrissfrage: Tausch gerader Treppe durch L-Treppe - Seite 631
17Wohin mit der Treppe? Dachausbau Walmdachbungalow - Seite 219
18Treppe Grundriss Planung, Auftritt und Unterzug - Seite 221
19Idee Schlafzimmer - Bett / Schrank Anordnung 32
20Grundriss Einfamilienhaus barrierefrei fürs Alter mit Eltern-Schlafzimmer im EG - Seite 744

Oben