Einfamilienhaus für 4 Personen - Meinungen

4,70 Stern(e) 6 Votes
Zuletzt aktualisiert 20.11.2025
Sie befinden sich auf der Seite 21 der Diskussion zum Thema: Einfamilienhaus für 4 Personen - Meinungen
>> Zum 1. Beitrag <<

C

Chrisi1906

das ist wie überall Geschmackssache. Langweilig finde ich es je nach Fenster sicherlich nicht. Fensterfläche ist automatisch auch vergebene Stellfläche, die der TS meiner Meinung nach benötigen wird.

Ich hätte außerdem keinen Bock im Glashaus zu sitzen. Außerdem braucht man im WZ oft nicht so viel Licht wie in der Küche oder am EZ-Tisch.
Genau, möchte auch nicht im Glashaus sitzen. Im Wohnzimmer steht auch der TV, da ist zu viel Licht ehr schlecht. An die Wohnzimmer Außenwand kommt ein Schuppen. Das heißt direkt hinter der Garage. Da Garage und Schuppen direkt am Haus sind haben wir keine Wahl bezüglich Fenster.

Doch. Vielleicht ist es hell genug aber es ist vor allem langweilig. Fenster auf 2 Seiten ist ein anderes Lebensgefühl.
Das es schöner ist steht außer Frage. Finde es aber nicht Kriegsentscheident. Hell genug ist es im Raum.
 
C

Chrisi1906

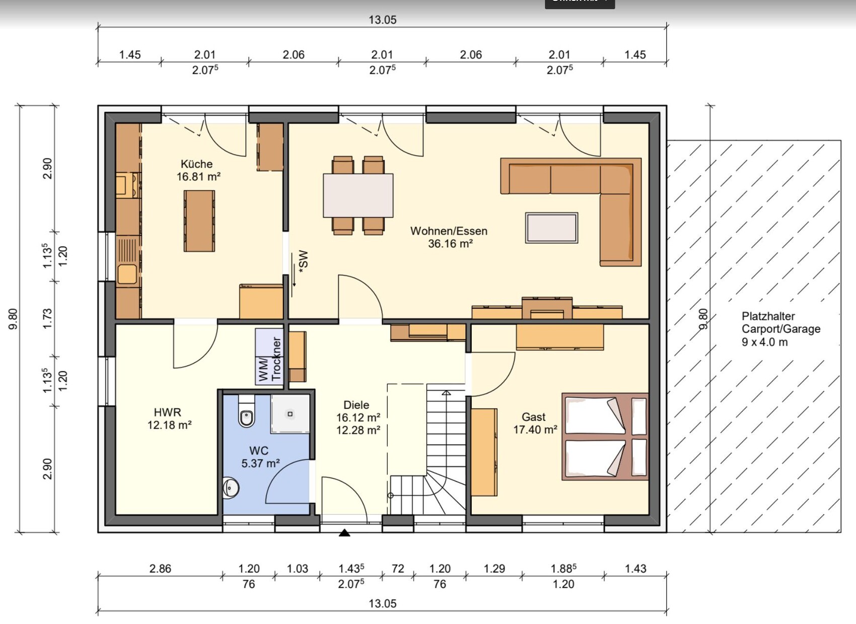
Anbei der neuste Entwurf vom Planer.

Im EG haben wir beim Hauswirtschaftsraum wieder den Weg durch die Küche. Das ist bewusst so gewählt da wir so das Gäste-WC etwas größer bekommen. Küchenplanung kommt noch, gleiche gilt für Badplanung. Leider hat der Planer wieder seine Standard Bad möbel in den Grundriss eingebaut. Wo so nicht gewollt, werde das auch noch mal ansprechen.

Im DG sind wir wieder zu den ursprünglichen tiefenboden Fenstern zurückgekehrt weil man so die Möbel besser stellen kann.

Frage: Wie findet ihr die Fenster der Hausfront? Also die beiden Querfenster als Doppelflügel?

Der Vorteil beim Fenster quer: Die Fensterflügel lassen sich ohne Probleme komplett öffnen, wenn man hier das Fenster als Doppelflügel einbaut. Wenn es kein Doppelflügel ist, entsteht das gleiche Problem, dass der Flügel an Stufenkanten bzw. Treppengeländer anstößt. Ich hoffe, die Erläuterung ist verständlich. Zur optischen Unterstützung dienen die 3D Ansichten von Straßenansicht und Innenansicht.

Wenn die Fenster in der Diele hochkant sind müsste man diese in Richtung Haustür das Fenster "schieben", dass die Unterkante des Fensters vor der 5. Treppenstufe liegt - sonst kann man den Fensterflügel nicht öffnen. So entstehen aber auch Spalten zwischen Treppenstufe und Unterkante Fenster.

Grundriss eines Hauses: Küche, Wohnen/Essen, Diele, HWR, WC, Gästezimmer, Carport/Garage.


Grundriss eines Wohnhauses mit Flur, Bad, Abstellraum, Büro, Schlafen und zwei Kinderzimmer.


Innen- und Straßenansicht eines Hauses mit Treppenhaus und Fenstern mit Doppelflügeln.
 
C

Curly

Wie findest du die Fenster der Hausfront? Also die beiden Querfenster mit Doppelflügel,
klein, altmodisch, passend für Kanonenrohre . Im Flur oben alles dunkel, im Wohnzimmer so niedrige Fenster, dass größere Leute den Kopf einziehen müssen. Wie hoch werden denn eure Decken, sind die so niedrig?

LG
Sabine
 
Zuletzt aktualisiert 20.11.2025
Im Forum Grundrissplanung / Grundstücksplanung gibt es 2535 Themen mit insgesamt 87978 Beiträgen


Ähnliche Themen zu Einfamilienhaus für 4 Personen - Meinungen
Nr.ErgebnisBeiträge
1Platzierung der Möbel im Wohnzimmer im Grundriss 10
2Sport-Schuppen bzw Garage - Tipps? 18
3Grundriss: 150qm Einfamilienhaus+Einliegerwohnung - Carport / Garage + Schuppen / Werkstatt - Seite 245
4Grenzbebauung Garage und Schuppen Max. 9 Meter -mehr geht nicht? - Seite 420
5Wohnzimmer Grundrissplanungs-Ideen? - Seite 239
6Grundriss, längliches Einfamilienhaus, integrierte Garage kein Keller 16
7Garage konstruktiv eigenständig - Was bedeutet das konkret? 15
8Bungalow mit 140qm und Garage im Grundriss 13
9Grundrissentwurf eines Passivhauses 170m² mit Garage - Seite 218
10Einfamilienhaus mit Einliegerwohnung & Garage 14
11Haus ohne Garage und Keller? Ausbau Dachboden? Fresswarze? - Seite 585
12Grundriss Einfamilienhaus mit Garage 18
13Grundriss Einfamilienhaus mit Garage, eigenplanung 17
14Lage von Haus & Garage im Baufenster planen *Vorplanung* - Seite 2129
15Einfamilienhaus - Stadtvilla: Wohnzimmer L oder I Form? 25
16Haus, Garage / Carport auf dem Grundstück platzieren - Seite 493
17Grundriss Bungalow 150qm mit Garage - Seite 1379
18Braucht man LAN Kabel in der Garage? 107
19Grundriss für Einfamilienhaus mit 200m² mit Einliegerwohnung 75 +Keller 140m² +Garage 56m² 59
20Grundriss Einfamilienhaus, 200m2, 2 Vollgeschosse, Garage, ohne Keller 39

Oben