Hallo,
nachdem ich unser Vorhaben schonmal zuvor eingestellt hatte, es aber (vermutlich aufgrund meiner eigenen Inkompetenz) plötzlich wieder aus dem Forum verschwunden ist, wollte ich nun nach einiger Überarbeitung einen neuen Versuch starten.
Hier einmal die Liste:
Bebauungsplan/Einschränkungen
Größe des Grundstücks: etwa 22x22m (ein paar cm weniger), entspricht etwa 500m2
Hang: minimal, zu vernachlässigen
Grundflächenzahl: - (kein Bebauungsplan)
Geschossflächenzahl: - (kein Bebauungsplan)
Baufenster, Baulinie und -grenze: §34 (3m zu den Nachbarn)
Randbebauung: Garage
Anzahl Stellplatz: 1-2
Geschossigkeit: 2 Vollgeschosse
Dachform: Walmdach
Stilrichtung: Stadtvilla
Anzahl der Personen, Alter: 2 Erwachsene, 1 Kind + 1 weiteres in Planung
Raumbedarf im EG, OG
Büro: Familiennutzung - als Spielzimmer/Gästezimmer
Schlafgäste pro Jahr: wenige (1-2)
offene oder geschlossene Architektur: eher offen
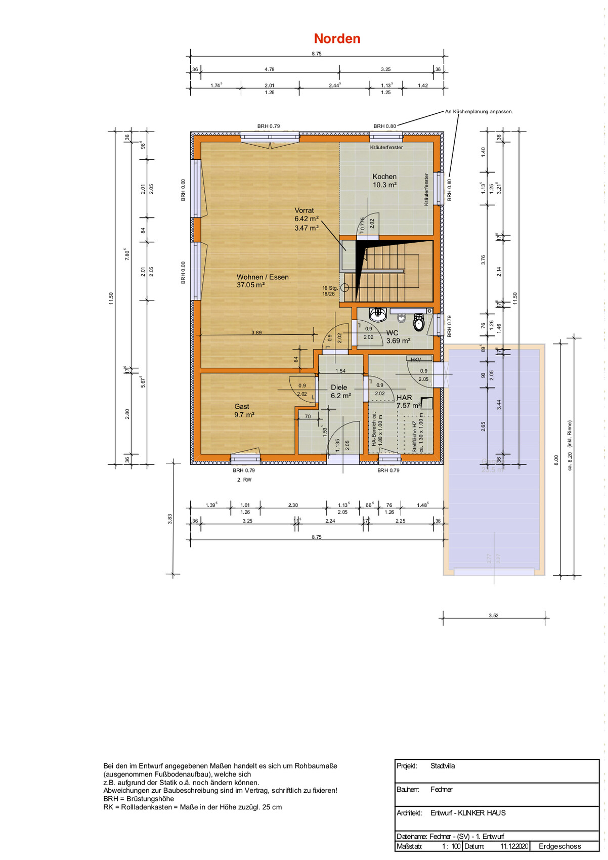
offene Küche
Anzahl Essplätze: 4
Kamin: nein
Garage: 3,75 x 8m geplant
Garten mit kleinem Gemüsebeet + Spielplatz/Schaukel für Kinder, ansonsten pflegeleicht angelegt
weitere Wünsche/Besonderheiten/Tagesablauf, gern auch Begründungen, warum dieses oder das nicht sein soll: Wir wünschen uns im EG einen großzügigen, offen gestalteten Wohn-,Ess-, Kochbereich; ansonsten ein kleines Gäste-/Spielzimmer im EG um das Wohnzimmer vor einer Flut von Spielzeug zu schützen. Mein Mann wünscht sich (unbedingt) eine Tür von Garage zu HTR. Hauswirtschaftsraum und HTR sollen räumlich getrennt sein.
Hausentwurf
Von wem stammt die Planung: Mischung aus eigenem Entwurf, einem "fertigen" Grundriss aus dem Netz und der Zeichnung unseres GU
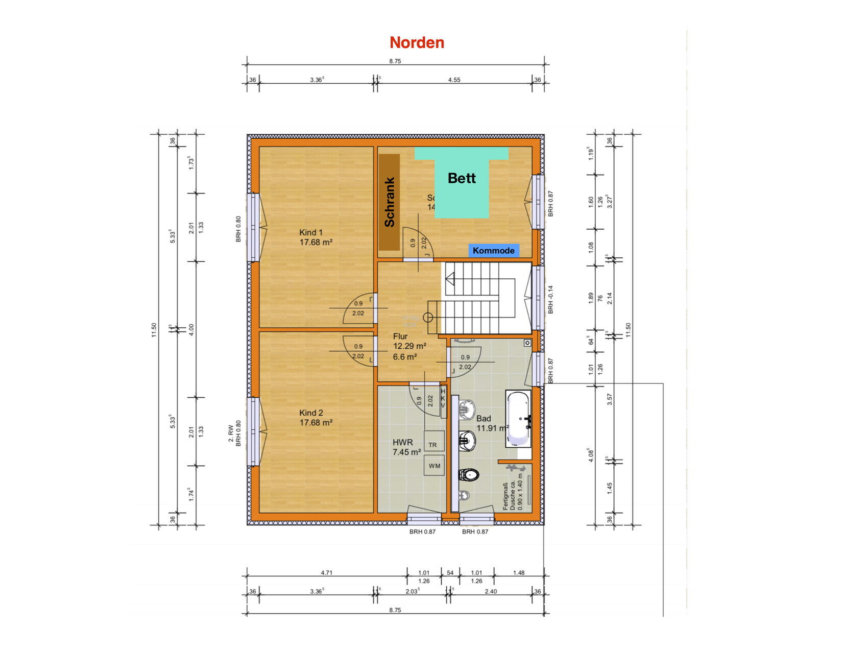
Was gefällt besonders? Warum?: Aufteilung EG empfinden wir als idealen Kompromiss aus unseren Wünschen und dem was machbar scheint. Treppe "offen" im WZ vermutlich nicht ideal, dennoch von uns so akzeptiert um den Platz im Allraum zu gewinnen und nicht an den Flur zu verschenken. Halbgewendelte Podesttreppe mögen wir sehr. Kleiner Flur im OG.
Was gefällt nicht? Warum?: Fenster, vor allem im OG (in Schlafzimmer/KZ) zu wenige. Bad im OG schlauchig - nicht sicher ob das besser geht; eventuell Richtung Süden ausrichten und dafür Hauswirtschaftsraum anders? Oder wirkt das nur schlauchig (wir haben momentan nur ein Minibad; daher fehlt uns vielleicht das Vorstellungsvermögen wie groß es wirklich ist). Außenansicht (Fenster) nicht schön/asymmetrisch
Preisschätzung lt Architekt/Planer: etwa 320.000 inkl. Garage (eventuell etwas mehr weil Garage vorher etwas kleiner geplant war)
Persönliches Preislimit fürs Haus, inkl Ausstattung: 400.000
favorisierte Heiztechnik: Gas + Solarthermie
Was gibt es sonst noch zu sagen? Das Grundstück wurde aus dem westl. liegenden Grundstück heraus geteilt. Dieses gehört der Oma (90 Jahre) von meinem Mann. Die Straße im Süden ist eine unbefestigte Straße mit einer leichten Steigung. Alle Medien (bis auf Wasser/Abwasser) liegen nur in der befestigten Straße im Westen an. Wir möchten über den Sandweg erschließen und nicht über das Grundstück der Oma, auch wenn der Weg ggf. länger ist und damit teurer.
Wir hatten zuerst einen quadratischen Grundriss. Dort hat alles aber nicht ganz so ideal reingepasst, deshalb sind wir nun zu diesem rechteckigen Ergebnis gekommen. Ich persönlich hätte das Haus lieber gedreht (Allraum Richtung Süden, Eingang in den Osten) und an die nördliche Baugrenze gerückt. Allerdings ist so die Garage nicht mehr direkt am Haus zu realisieren (was mein Mann wirklich gern so hätte). Außerdem würde man so vermutlich im Garten/ auf der Terrasse auf dem Präsentierteller sitzen.
Der "Stellplatz" vor der Garage ist vermutlich viel zu kurz für alles, was größer ist als ein Smart. Auf jeden Fall wollten wir vor der Garage keinen Zaun/kein Tor ziehen, sondern den Platz davor frei lassen (gepflastert), um direkt mit dem Auto rauf fahren zu können.
Okay, ich glaube ich habe alles beisammen. Nun bin ich sehr gespannt, wie sehr der Grundriss in der Luft zerrissen wird ;-)







nachdem ich unser Vorhaben schonmal zuvor eingestellt hatte, es aber (vermutlich aufgrund meiner eigenen Inkompetenz) plötzlich wieder aus dem Forum verschwunden ist, wollte ich nun nach einiger Überarbeitung einen neuen Versuch starten.
Hier einmal die Liste:
Bebauungsplan/Einschränkungen
Größe des Grundstücks: etwa 22x22m (ein paar cm weniger), entspricht etwa 500m2
Hang: minimal, zu vernachlässigen
Grundflächenzahl: - (kein Bebauungsplan)
Geschossflächenzahl: - (kein Bebauungsplan)
Baufenster, Baulinie und -grenze: §34 (3m zu den Nachbarn)
Randbebauung: Garage
Anzahl Stellplatz: 1-2
Geschossigkeit: 2 Vollgeschosse
Dachform: Walmdach
Stilrichtung: Stadtvilla
Anzahl der Personen, Alter: 2 Erwachsene, 1 Kind + 1 weiteres in Planung
Raumbedarf im EG, OG
Büro: Familiennutzung - als Spielzimmer/Gästezimmer
Schlafgäste pro Jahr: wenige (1-2)
offene oder geschlossene Architektur: eher offen
offene Küche
Anzahl Essplätze: 4
Kamin: nein
Garage: 3,75 x 8m geplant
Garten mit kleinem Gemüsebeet + Spielplatz/Schaukel für Kinder, ansonsten pflegeleicht angelegt
weitere Wünsche/Besonderheiten/Tagesablauf, gern auch Begründungen, warum dieses oder das nicht sein soll: Wir wünschen uns im EG einen großzügigen, offen gestalteten Wohn-,Ess-, Kochbereich; ansonsten ein kleines Gäste-/Spielzimmer im EG um das Wohnzimmer vor einer Flut von Spielzeug zu schützen. Mein Mann wünscht sich (unbedingt) eine Tür von Garage zu HTR. Hauswirtschaftsraum und HTR sollen räumlich getrennt sein.
Hausentwurf
Von wem stammt die Planung: Mischung aus eigenem Entwurf, einem "fertigen" Grundriss aus dem Netz und der Zeichnung unseres GU
Was gefällt besonders? Warum?: Aufteilung EG empfinden wir als idealen Kompromiss aus unseren Wünschen und dem was machbar scheint. Treppe "offen" im WZ vermutlich nicht ideal, dennoch von uns so akzeptiert um den Platz im Allraum zu gewinnen und nicht an den Flur zu verschenken. Halbgewendelte Podesttreppe mögen wir sehr. Kleiner Flur im OG.
Was gefällt nicht? Warum?: Fenster, vor allem im OG (in Schlafzimmer/KZ) zu wenige. Bad im OG schlauchig - nicht sicher ob das besser geht; eventuell Richtung Süden ausrichten und dafür Hauswirtschaftsraum anders? Oder wirkt das nur schlauchig (wir haben momentan nur ein Minibad; daher fehlt uns vielleicht das Vorstellungsvermögen wie groß es wirklich ist). Außenansicht (Fenster) nicht schön/asymmetrisch
Preisschätzung lt Architekt/Planer: etwa 320.000 inkl. Garage (eventuell etwas mehr weil Garage vorher etwas kleiner geplant war)
Persönliches Preislimit fürs Haus, inkl Ausstattung: 400.000
favorisierte Heiztechnik: Gas + Solarthermie
Was gibt es sonst noch zu sagen? Das Grundstück wurde aus dem westl. liegenden Grundstück heraus geteilt. Dieses gehört der Oma (90 Jahre) von meinem Mann. Die Straße im Süden ist eine unbefestigte Straße mit einer leichten Steigung. Alle Medien (bis auf Wasser/Abwasser) liegen nur in der befestigten Straße im Westen an. Wir möchten über den Sandweg erschließen und nicht über das Grundstück der Oma, auch wenn der Weg ggf. länger ist und damit teurer.
Wir hatten zuerst einen quadratischen Grundriss. Dort hat alles aber nicht ganz so ideal reingepasst, deshalb sind wir nun zu diesem rechteckigen Ergebnis gekommen. Ich persönlich hätte das Haus lieber gedreht (Allraum Richtung Süden, Eingang in den Osten) und an die nördliche Baugrenze gerückt. Allerdings ist so die Garage nicht mehr direkt am Haus zu realisieren (was mein Mann wirklich gern so hätte). Außerdem würde man so vermutlich im Garten/ auf der Terrasse auf dem Präsentierteller sitzen.
Der "Stellplatz" vor der Garage ist vermutlich viel zu kurz für alles, was größer ist als ein Smart. Auf jeden Fall wollten wir vor der Garage keinen Zaun/kein Tor ziehen, sondern den Platz davor frei lassen (gepflastert), um direkt mit dem Auto rauf fahren zu können.
Okay, ich glaube ich habe alles beisammen. Nun bin ich sehr gespannt, wie sehr der Grundriss in der Luft zerrissen wird ;-)
S
Schimi179115.12.20 14:06Spontan: Ich würde das WC im EG nicht an das WZ grenzen lassen, auch wenn es in einer Ecke ist. Stattdessen würde ich die Lage des WC mit dem Hauswirtschaftsraum tauschen.
Die Treppe im WZ muss man mögen. Wurde hier - glaube - schon mal diskutiert - wegen der möglichen Hellhörigkeit nach oben.
Nur eine Dusche??
Die Treppe im WZ muss man mögen. Wurde hier - glaube - schon mal diskutiert - wegen der möglichen Hellhörigkeit nach oben.
Nur eine Dusche??
Den Flur zöge ich noch bis zum WC durch, dieses wollte ich nicht vom Essbereich abgehen lassen. Du läßt sehr viele Raummaße aus dem Richtmaß springen, das führt zu Pfuschertaschen. Warum ?
https://www.instagram.com/11antgmxde/
https://www.linkedin.com/company/bauen-jetzt/
https://www.instagram.com/11antgmxde/
https://www.linkedin.com/company/bauen-jetzt/
11ant schrieb:
Den Flur zöge ich noch bis zum WC durch, dieses wollte ich nicht vom Essbereich abgehen lassen. Du läßt sehr viele Raummaße aus dem Richtmaß springen, das führt zu Pfuschertaschen. Warum ?Das mit dem Flur ist ein guter Punkt! Vielen Dank dafür. Könntest du mir den zweiten Satz nochmal näher erläutern bzw erklären? Ich verstehe nur Bahnhof.
S
Schimi179115.12.20 15:22Ich wüsste nun auch nicht wirklich, ob ich einen Hauswirtschaftsraum im OG haben möchte. Die Absicht verstehe ich - Wäsche dort zu waschen, wo sie anfällt. Bei uns laufen aber Waschmaschine und Trockner auch abends, so dass die Geräuschentwicklung im OG ggfs. störend wäre. Final würde ich dann aber - als Rechtshänder - Waschmaschine und Trockner tauschen 🙂
Robbini schrieb:
nachdem ich unser Vorhaben schonmal zuvor eingestellt hatte, es aber (vermutlich aufgrund meiner eigenen Inkompetenz) plötzlich wieder aus dem Forum verschwunden ist,Das müßte mir durch die Lappen gegangen sein, wenn Du es hier schon einmal eingestellt hättest. Hattest Du eventuell externe Links hineingepackt ? - die wären hier ein Regelverstoß gewesen.Robbini schrieb:
Könntest du mir den zweiten Satz nochmal näher erläuternWandlängen nicht auf die Steinmaße abzustimmen führt dazu, daß die Steine dann an den Stoßfugen (also wo sie an den Kopfseiten aneinanderstoßen) nicht knirsch ineinander verzahnt werden können. In je größerem Umfang das geschieht, desto mehr wird das dann damit ausgeglichen, Lücken zwischen den Steinen zuzumörteln, was nicht fachgerecht ist und leicht vermieden werden kann, indem man "brav" im Achtelmeterraster plant. Beispiel Südseite OG: Raumbreiten 3.365 - 2.035 - 240, "korrekt" 3.38.5 - 2.01 - 2.385 bzw. Wandstücke (nur Mauer, ohne Dämmung gerechnet) 4.59 / 0.54 / 1.36; da wären es dann "korrekt" 4.625 / 0.50 / 1.375 - die Differenzen bringen viel Sägerei oder eben Pfuschertaschen.https://www.instagram.com/11antgmxde/
https://www.linkedin.com/company/bauen-jetzt/
Ähnliche Themen