ᐅ Haus, Garage / Carport auf dem Grundstück platzieren
Erstellt am: 14.08.18 08:29
G
Grantlhaua14.08.18 08:29Bebauungsplan/Einschränkungen
Größe des Grundstücks: 883m²
Hang: leichte Hanglage, ca 1m Steigung auf 10m
Baufenster, Baulinie und -grenze: Standard
Randbebauung: für Garage möglich
Anzahl Stellplatz: 2 in der Garage
Geschossigkeit: 2 Vollgeschosse
Dachform: Walmdach:
Stilrichtung: Modern
Ausrichtung: Süden
Maximale Höhen/Begrenzungen: Orientierung am gewachsenen Gelände laut Landratsamt
Anforderungen der Bauherren
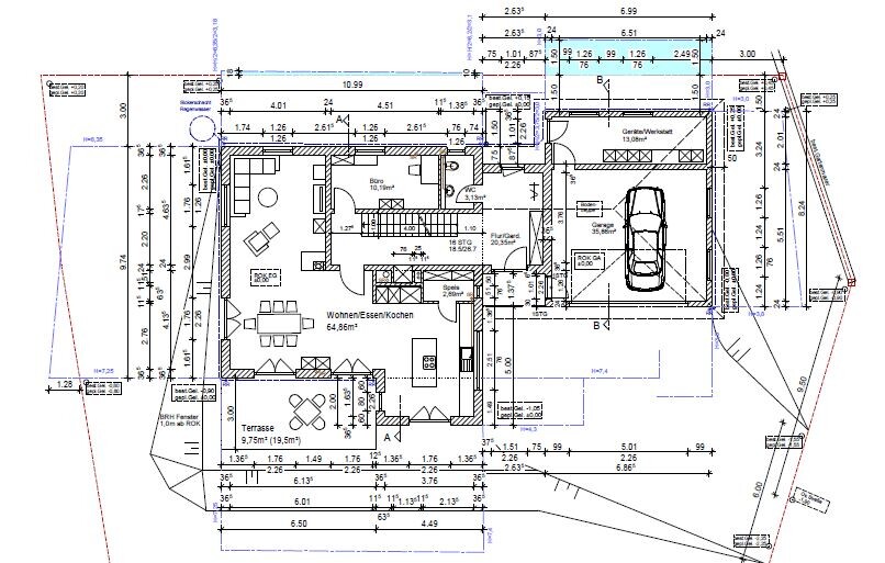
Der Grundriss des Hauses ist fest, nur wird er komplett von West nach Ost gespiegelt
Hausentwurf
Von wem stammt die Planung:
-Architekt
Was gefällt besonders? Warum? die Haustüre zwischen Garage und Haus
Was gefällt nicht? Warum?
Preisschätzung lt Architekt/Planer: 420.000 (unsere Schätzung ca. 500.000 all in)
Persönliches Preislimit fürs Haus, inkl Ausstattung: 500.000
favorisierte Heiztechnik: Luftwärmepumpe
Wenn Ihr verzichten müsst, auf welche Details/Ausbauten
-könnt Ihr verzichten: nichts
-könnt Ihr nicht verzichten: Garage, Werkstatt
Was ist die wichtigste/grundlegende Frage zum Grundriss in 130 Zeichen zusammengefasst?
Der Grundriss ist soweit fix, nur dass wir aus Gründen der Lautstärke(Straße) und Einsehbarkeit das ganze Haus spiegeln wollen. Damit von Westen nach Osten die Garage, die Haustüre, der Erker und dann das Haus und die Terrasse angelegt werden.
Leider gibt es dazu nun viele Diskussionen, da wir das Grundstück von der Verwandtschaft geschenkt bekommen haben und die im Haus dahinter leicht erhöht (ca 3m erhöht im Norden) wohnen. Sie haben Angst, dass ihr Haus von Süden her nicht mehr zu sehen ist, wenn wir mit der Garage bis auf 2-3m an die Grundstücksgrenze im Westen heran rutschen. Wenn wir allerdings 6-7m (wo das jetzige Hauseck liegt) weg gehe, habe ich zwischen Grenze, Straße, Einfahrt und Garage 80m² "verschwendeten Raum. Habt ihr eine Idee, wie ich diese Fläche nutzbar machen könnte oder wie ich sie gar nicht entstehen lasse ohne den Rest des Entwurfes kaputt zu machen?
Die Bilder stellen noch die alte Version dar, da wir erst umplanen lassen wenn uns eine Lösung eingefallen ist...
Vielen Lieben Dank!




Größe des Grundstücks: 883m²
Hang: leichte Hanglage, ca 1m Steigung auf 10m
Baufenster, Baulinie und -grenze: Standard
Randbebauung: für Garage möglich
Anzahl Stellplatz: 2 in der Garage
Geschossigkeit: 2 Vollgeschosse
Dachform: Walmdach:
Stilrichtung: Modern
Ausrichtung: Süden
Maximale Höhen/Begrenzungen: Orientierung am gewachsenen Gelände laut Landratsamt
Anforderungen der Bauherren
Der Grundriss des Hauses ist fest, nur wird er komplett von West nach Ost gespiegelt
Hausentwurf
Von wem stammt die Planung:
-Architekt
Was gefällt besonders? Warum? die Haustüre zwischen Garage und Haus
Was gefällt nicht? Warum?
Preisschätzung lt Architekt/Planer: 420.000 (unsere Schätzung ca. 500.000 all in)
Persönliches Preislimit fürs Haus, inkl Ausstattung: 500.000
favorisierte Heiztechnik: Luftwärmepumpe
Wenn Ihr verzichten müsst, auf welche Details/Ausbauten
-könnt Ihr verzichten: nichts
-könnt Ihr nicht verzichten: Garage, Werkstatt
Was ist die wichtigste/grundlegende Frage zum Grundriss in 130 Zeichen zusammengefasst?
Der Grundriss ist soweit fix, nur dass wir aus Gründen der Lautstärke(Straße) und Einsehbarkeit das ganze Haus spiegeln wollen. Damit von Westen nach Osten die Garage, die Haustüre, der Erker und dann das Haus und die Terrasse angelegt werden.
Leider gibt es dazu nun viele Diskussionen, da wir das Grundstück von der Verwandtschaft geschenkt bekommen haben und die im Haus dahinter leicht erhöht (ca 3m erhöht im Norden) wohnen. Sie haben Angst, dass ihr Haus von Süden her nicht mehr zu sehen ist, wenn wir mit der Garage bis auf 2-3m an die Grundstücksgrenze im Westen heran rutschen. Wenn wir allerdings 6-7m (wo das jetzige Hauseck liegt) weg gehe, habe ich zwischen Grenze, Straße, Einfahrt und Garage 80m² "verschwendeten Raum. Habt ihr eine Idee, wie ich diese Fläche nutzbar machen könnte oder wie ich sie gar nicht entstehen lasse ohne den Rest des Entwurfes kaputt zu machen?
Die Bilder stellen noch die alte Version dar, da wir erst umplanen lassen wenn uns eine Lösung eingefallen ist...
Vielen Lieben Dank!
Würde mir da einen genauen Höhenplan machen und mit der lieben Verwandtschaft zusammen auskaspern, wo die Garage stehen muss, damit noch genug Sonne auf ihr Grundstück fällt. Wenn Ihr das Haus noch ein Stück gen Süden setzt, ist das Land im Norden doch deswegen nicht unnütz! Gerade bei den zu erwartenden Hitzesommern, wachsen dort dann wenigstens noch 3 grüne Halme.
G
Grantlhaua14.08.18 09:22Guten Morgen Katja,
das ist ja genau das Problem. Wenn wir die Garage in den Westen setzten haben sie statt 8,30 nur 4,50m Gebäudehöhe vor ihrem Haus. Allerdings wollen sie unbedingt, dass man ihr Haus von der Kreuzung im Südwesten aus noch sehen kann. Eigentlich geht es ja bloß darum, dass sie vom Küchenfenster aus sehen können wer da unten so spazieren geht
Daher liegts weniger an der Höhe als an der West-Ost Verschiebung.
das ist ja genau das Problem. Wenn wir die Garage in den Westen setzten haben sie statt 8,30 nur 4,50m Gebäudehöhe vor ihrem Haus. Allerdings wollen sie unbedingt, dass man ihr Haus von der Kreuzung im Südwesten aus noch sehen kann. Eigentlich geht es ja bloß darum, dass sie vom Küchenfenster aus sehen können wer da unten so spazieren geht
Daher liegts weniger an der Höhe als an der West-Ost Verschiebung.
Grantlhaua schrieb:
Eigentlich geht es ja bloß darum, dass sie vom Küchenfenster aus sehen können wer da unten so spazieren geht
Daher liegts weniger an der Höhe als an der West-Ost Verschiebung.Oh mein Gott. Das sind Schwierigkeiten. Vielleicht nehmt Ihr lieber deren Haus und die Verwandtschaft baut unten neu? Im Ernst, wenn Euer Haus steht, egal wo, dann sehen sie natürlich weniger von der Straße. Wenn das so wichtig ist, könnt Ihr ja ne Kamera installieren. Man kann ja auch zusammen die Gebäude noch bissl verschieben, aber weil man nun unbedingt sehen muss, ob Tante Erna kommt oder Onkel H. vorbei läuft - das ist albern.
G
Grantlhaua14.08.18 10:05kaho674 schrieb:
Im Ernst, wenn Euer Haus steht, egal wo, dann sehen sie natürlich weniger von der Straße. Wenn das so wichtig ist, könnt Ihr ja ne Kamera installieren. Man kann ja auch zusammen die Gebäude noch bissl verschieben, aber weil man nun unbedingt sehen muss, ob Tante Erna kommt oder Onkel H. vorbei läuft - das ist albern.Genau das ist das Problem! Alle finden es albern, nur sie eben nicht. Da kommen Argumente von wegen das Haus (wohl gemerkt über 50 Jahre alt) ist dann weniger wert und früher, als es gebaut wurde, waren alle da und haben es sich angeschaut weil es so schön ist... Dass vielleicht der Nachbesitzer mal ganz froh ist (eventuell mein Bruder), dass er nicht wie auf dem Präsentierteller auf der Terrasse sitzt, ist dann allerdings wieder kein Argument. Das Thema kostet mich noch den letzten Nerv. Ich habs grad ausgemessen, es geht tatsächlich um einen Winkel, der nicht mal 3m Sichtfeld ausmacht.
Ich kann ja nicht mal den aktuellen Grundriss auf der Ostseite bis an die Grenze schieben, weil sie sich da auch ein Fahrtrecht schreiben haben lassen, falls sie mal Holz oder ähnliches angeliefert bekommen...
Ich verstehe die Intension nicht ganz. Sie haben Euch das Land geschenkt, damit Ihr darauf bauen könnt, aber Ihr sollt bitte nicht bauen, weil sonst deren Haus von der Straße nicht mehr zu sehen sei?
Ich würde ernsthaft überlegen, ein anderes Grundstück irgendwo zu bekommen, bevor ich am Familienzerwürfnis Schuld bin.
Ich würde ernsthaft überlegen, ein anderes Grundstück irgendwo zu bekommen, bevor ich am Familienzerwürfnis Schuld bin.
Ähnliche Themen