ᐅ Planung Grundriss Doppelhaus, kleines Grundstück, Bauhausstil
Erstellt am: 05.12.21 14:03
D
duke1085Liebes Forum,
wir starten einen neuen Versuch mit einer Doppelhaushälfte und haben hierfür bereits das passende kleine Grundstück erworben.
Wir sind bei der Variantenplanung für die Bauvoranfrage schon etwas tiefer mit dem Architekten ins Detail gegangen und würden uns über Anregungen zu den 2 geplanten Varianten freuen.
Anforderungen der Bauherren
Stilrichtung, Dachform, Gebäudetyp - Modern, Flachdach, Doppelhaus
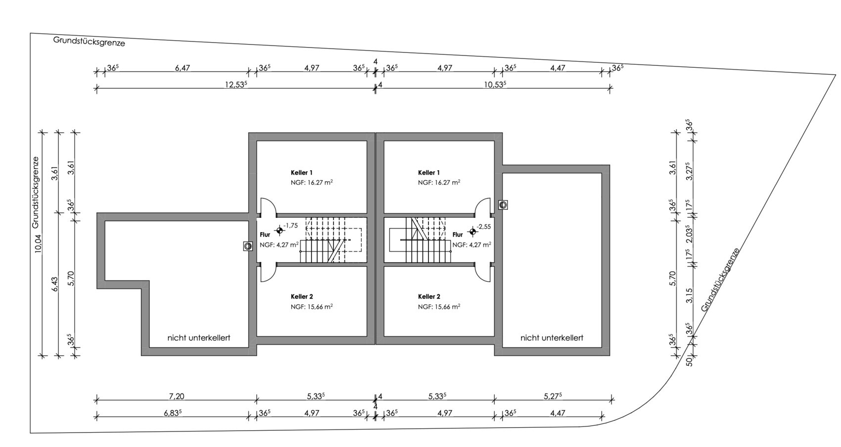
Keller, Geschosse - Keller / EG / 1 .OG / Staffelgeschoss
Anzahl der Personen - aktuell 2
offene oder geschlossene Architektur - offen
konservativ oder moderne Bauweise - modern
offene Küche, Kochinsel - Eine Wohnküche mit freistehender Kochinsel + L-Form
Anzahl Essplätze - 6
Kamin - Ja (ggf. Gaskamin)
Musik/Stereowand - Ja, mindestens 2m breit
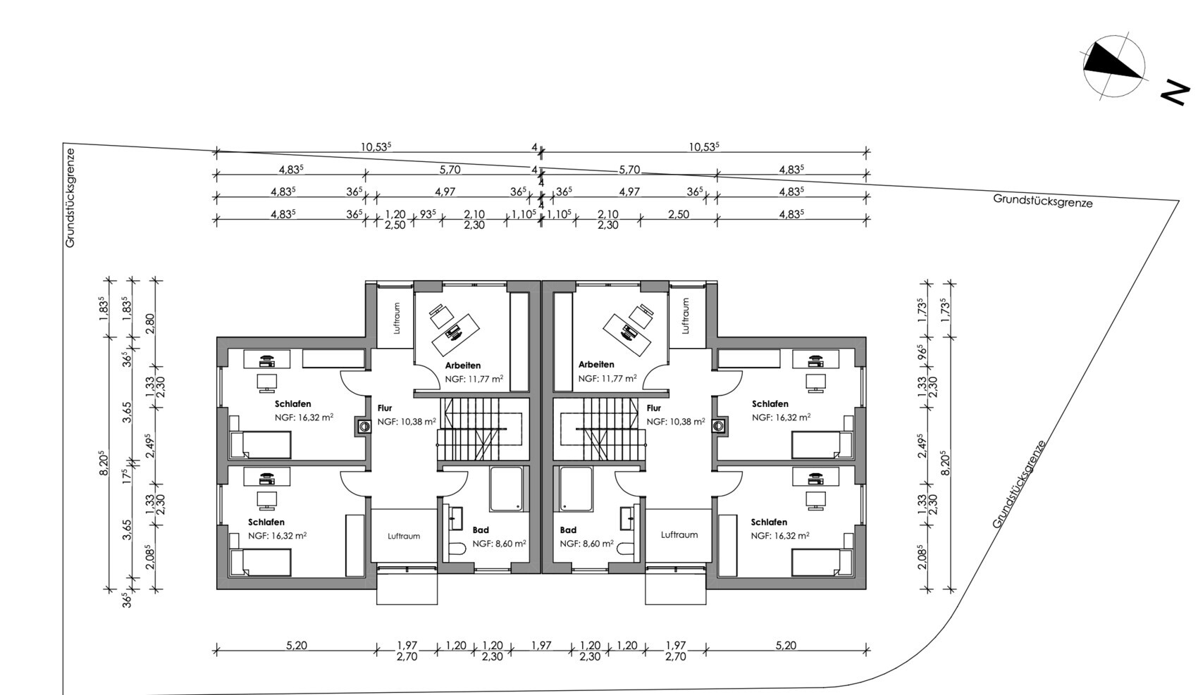
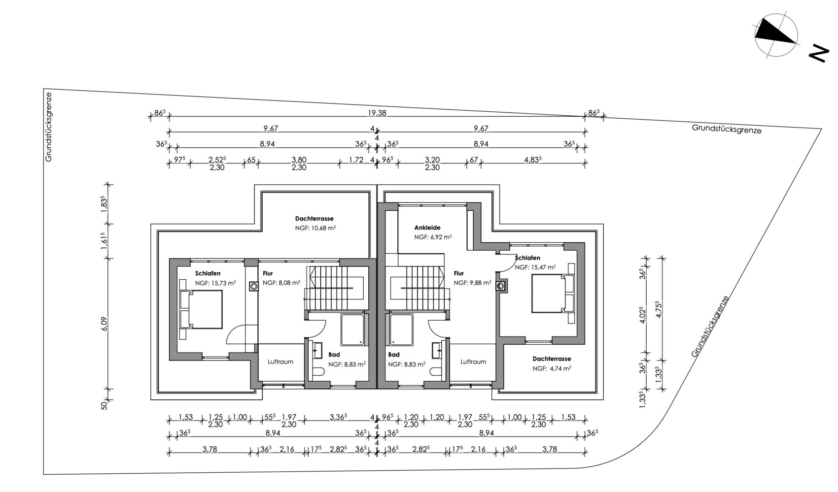
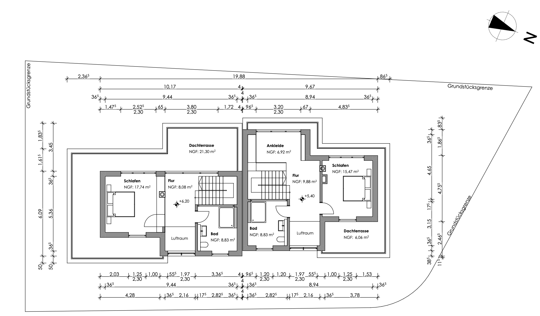
Balkon, Dachterrasse - Staffelgeschoss mit Dachterrasse
Garage, Carport - Carport
Nutzgarten, Treibhaus - Garten siehe Grundriss
Hausentwurf
Von wem stammt die Planung: -Architekt
Was gefällt nicht? Sagt ihr mir bestimmt 🙂
Was ist die wichtigste/grundlegende Frage zum Grundriss in 130 Zeichen zusammengefasst?
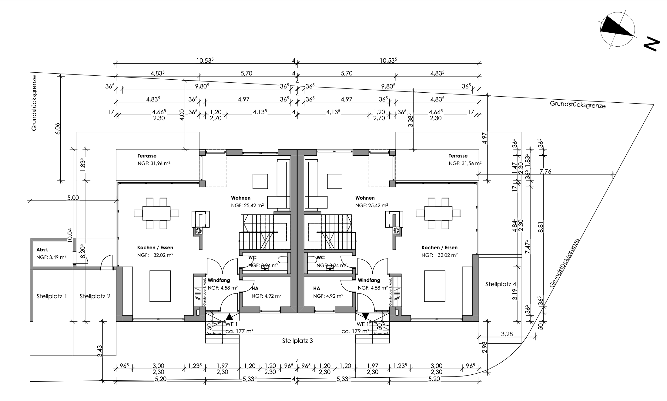
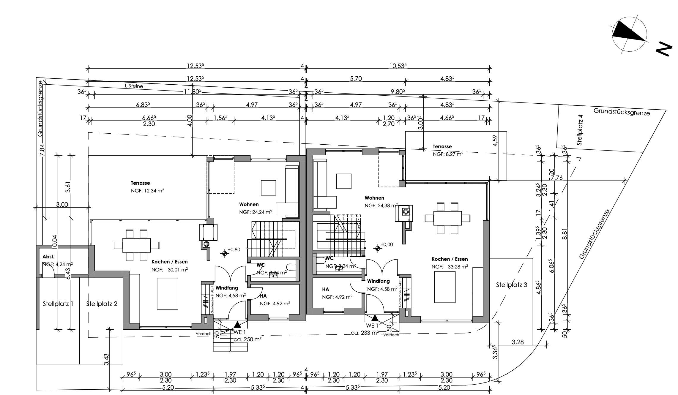
Das Doppelhaus wird auf einem ziemlich kleinen Grundstück gebaut (540 Quadratmeter). Daher sind die Möglichkeiten relativ begrenzt. Wichtig war uns ein großer Wohn / Ess- und Kochbereich mit o.g. freistehender Insel, trotzdem jedoch aufgeteilt in jeweilige "Nischen. Zudem Privatsphäre zum Nachbarhaus.
Mit den Entwürfen sind wir bis jetzt sehr zufrieden.
Die Kücheninsel würde ich allerdings gerne quer stellen. Dafür fehlt dann links und rechts etwas Platz. Zudem noch eine rückseitige Küchenzeile beim Fenster zur Straßenseite. Dieses wäre dann natürlich nicht mehr bodentief sondern angrenzend an die Küchenzeile.
Außerdem haben wir bis jetzt noch keine Wand für TV etc. frei.
Geräte die vorm Fenster stehen gefallen uns eher nicht.
Folgende Möbel sollten hier Platz finden:
Eine Küche in L-Form + freistehender Kochinsel (Momentan haben wir eine Inselküche mit folgenden Abmessungen:
Rückseitige Küchenzeile 3 Meter breit / Halbinsel 2,10m x 1,17m
Ein esstisch in 2m x 1m
Ein Sofa in L-Form in 3m x 1,90m an der längsten Seite
Ein Lowboard für TV / Sound-Anlage etc. ca. 2 Meter breit
Ich freue mich über jegliche Verbesserungsvorschläge und bin jetzt schon gespannt...
Besten Gruß!




wir starten einen neuen Versuch mit einer Doppelhaushälfte und haben hierfür bereits das passende kleine Grundstück erworben.
Wir sind bei der Variantenplanung für die Bauvoranfrage schon etwas tiefer mit dem Architekten ins Detail gegangen und würden uns über Anregungen zu den 2 geplanten Varianten freuen.
Anforderungen der Bauherren
Stilrichtung, Dachform, Gebäudetyp - Modern, Flachdach, Doppelhaus
Keller, Geschosse - Keller / EG / 1 .OG / Staffelgeschoss
Anzahl der Personen - aktuell 2
offene oder geschlossene Architektur - offen
konservativ oder moderne Bauweise - modern
offene Küche, Kochinsel - Eine Wohnküche mit freistehender Kochinsel + L-Form
Anzahl Essplätze - 6
Kamin - Ja (ggf. Gaskamin)
Musik/Stereowand - Ja, mindestens 2m breit
Balkon, Dachterrasse - Staffelgeschoss mit Dachterrasse
Garage, Carport - Carport
Nutzgarten, Treibhaus - Garten siehe Grundriss
Hausentwurf
Von wem stammt die Planung: -Architekt
Was gefällt nicht? Sagt ihr mir bestimmt 🙂
Was ist die wichtigste/grundlegende Frage zum Grundriss in 130 Zeichen zusammengefasst?
Das Doppelhaus wird auf einem ziemlich kleinen Grundstück gebaut (540 Quadratmeter). Daher sind die Möglichkeiten relativ begrenzt. Wichtig war uns ein großer Wohn / Ess- und Kochbereich mit o.g. freistehender Insel, trotzdem jedoch aufgeteilt in jeweilige "Nischen. Zudem Privatsphäre zum Nachbarhaus.
Mit den Entwürfen sind wir bis jetzt sehr zufrieden.
Die Kücheninsel würde ich allerdings gerne quer stellen. Dafür fehlt dann links und rechts etwas Platz. Zudem noch eine rückseitige Küchenzeile beim Fenster zur Straßenseite. Dieses wäre dann natürlich nicht mehr bodentief sondern angrenzend an die Küchenzeile.
Außerdem haben wir bis jetzt noch keine Wand für TV etc. frei.
Geräte die vorm Fenster stehen gefallen uns eher nicht.
Folgende Möbel sollten hier Platz finden:
Eine Küche in L-Form + freistehender Kochinsel (Momentan haben wir eine Inselküche mit folgenden Abmessungen:
Rückseitige Küchenzeile 3 Meter breit / Halbinsel 2,10m x 1,17m
Ein esstisch in 2m x 1m
Ein Sofa in L-Form in 3m x 1,90m an der längsten Seite
Ein Lowboard für TV / Sound-Anlage etc. ca. 2 Meter breit
Ich freue mich über jegliche Verbesserungsvorschläge und bin jetzt schon gespannt...
Besten Gruß!
B
Bertram10005.12.21 14:58Was heisst den begrenzter Platz? Ich finde das Haus ordentlich gross für 2 Erwachsene. Ich finde den Luftraum auch albern und hätte vor allem im DG lieber mehr Platz. Aber das ist ja eine persönliche Sache.
Wie bei beinahe allen Neubauplanungen finde ich den Flur zu eng. Ich würde die Außentür nach außen öffnen lassen. Wird leider heutzutage in D nicht mehr häufig geplant, hat aber durchaus Vorteile.
Beim Tausch mit Abstellraum würde ich gucken ob das so praktisch ist wenn man erst zur Toilette, dann Jacke an, dann raus geht, dann wird es ungemütlich im Flur.
Es sieht so aus als wäre der Essbereich quasi nur Fensterfläche? Das wäre blöd denn dann scheint einem die Sonne immer ins Gesicht, es wird schnell warm und man muss verschütten und hat keine Wandfläche für die Möbel.
Wie bei beinahe allen Neubauplanungen finde ich den Flur zu eng. Ich würde die Außentür nach außen öffnen lassen. Wird leider heutzutage in D nicht mehr häufig geplant, hat aber durchaus Vorteile.
Beim Tausch mit Abstellraum würde ich gucken ob das so praktisch ist wenn man erst zur Toilette, dann Jacke an, dann raus geht, dann wird es ungemütlich im Flur.
Es sieht so aus als wäre der Essbereich quasi nur Fensterfläche? Das wäre blöd denn dann scheint einem die Sonne immer ins Gesicht, es wird schnell warm und man muss verschütten und hat keine Wandfläche für die Möbel.
Auf den schnellen Blick ein sehr schöner Entwurf. Da würde ich mich wohl fühlen. ich würde nichts tauschen. Wenn Kinder Einzug halten sollten, dann die Mini-Lufträume weglassen - die sehen in dieser Größe wie Wäscheabwurfschächte aus, und auch etwas albern. Die haben den Nachteil, dass der Schall und Zug in die Etagen wandert.
Ich bin für den ersten.
Ich bin für den ersten.
Hmm ... linke Hälfte
EG Variante 1 und 2 ... warum HA im EG, wenn es einen Keller gibt?
EG Variante 2 ... Essbereich für einen gescheit nutzbaren Esstisch zu schmal .. das sind weniger als 3 m
DG in beiden Variante ... Wo ist im Schlafbereich = Eltern? Platz für Klamotten?
Warum in Variante 2 der minimale Versatz der beiden Hälften?
Wo sollen Fahrräder etc. untergebracht werden?
Für einen gescheiten Ansatz einer TV-Wand mal probieren, wie sich Tausch von Wohnen/Kochen macht.
EG Variante 1 und 2 ... warum HA im EG, wenn es einen Keller gibt?
EG Variante 2 ... Essbereich für einen gescheit nutzbaren Esstisch zu schmal .. das sind weniger als 3 m
DG in beiden Variante ... Wo ist im Schlafbereich = Eltern? Platz für Klamotten?
Warum in Variante 2 der minimale Versatz der beiden Hälften?
Wo sollen Fahrräder etc. untergebracht werden?
Für einen gescheiten Ansatz einer TV-Wand mal probieren, wie sich Tausch von Wohnen/Kochen macht.
Ähnliche Themen