ᐅ Bungalow mit ausgebautem DG 135 m² (Laien)Entwurf bitte bewerten
Erstellt am: 26.03.18 21:28
J
jawkneeHallo zusammen,
ich lese immer wieder mal, dass man sich bevor man nicht bei einer Baufirma / Architekten war sich gar nicht so detailliert mit dem Grundriss auseinandersetzen braucht, weil am Ende eh was andres raus kommt, aber ich kann einfach nicht anders und möchte schon so viel wie möglich durchdenken 😉 und ich will nicht erst nach dem ersten Angebotsgespräch plötzlich alles umwerfen müssen, wenn irgendwas so gar nicht geht.
Bebauungsplan/Einschränkungen
Größe des Grundstücks: ca. 750m², wird demnächst erschlossen, reserviert
Hang: minimal nach Süden abfallend, aber annähernd eben
Grundflächenzahl: 0,4
Geschossflächenzahl: 0,8
Baufenster, Baulinie und –grenze: ca. 17 x 16m
Randbebauung: s. Bild
Anzahl Stellplatz: 2
Geschossigkeit: E+D
Dachform: Walmdach, bis 35 Grad und 80cm Kniestock
Stilrichtung: Bungalow
Ausrichtung: s. Bild
Maximale Höhen/Begrenzungen: TH 6,5
weitere Vorgaben: Garage mit Satteldach
Anforderungen der Bauherren
Stilrichtung, Dachform, Gebäudetyp: vom Bebauungsplan vorgegeben
Keller, Geschosse: ohne Keller, EG + ausgebautes DG
Anzahl der Personen, Alter: 1 (33), soll aber auch für bis zu 3 Personen brauchbar sein
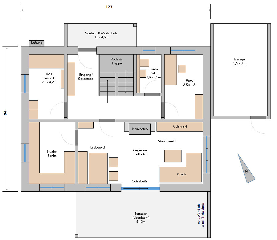
Raumbedarf im EG, OG: EG ca. 80m² / DG ca. 50m² (nicht zwingend so aufgeteilt)
Büro: Familiennutzung oder Homeoffice?: Zockerzimmer + sporadisch Homeoffice
Schlafgäste pro Jahr: rechne erstmal mit maximal 2 Personen / Quartal
offene oder geschlossene Architektur: geschlossen
konservativ oder moderne Bauweise: eher konservativ, Gemütlichkeit steht im Vordergrund
offene Küche, Kochinsel: nein, geschlossene Küche o. Kochinsel
Anzahl Essplätze: 5-6
Kamin: definitiv
Musik/Stereowand: reguläre Wohnwand mit TV
Balkon, Dachterrasse: nein
Garage, Carport: Einzelgarage (evtl. + Geräteraum) + freier Einzelstellplatz (laut Bebauungsplan mit Satteldach, aber in der Nachbarschaft gibt es auch Flachdächer, letzteres wäre gewünscht und zu klären)
Nutzgarten, Treibhaus: nichts Spezielles, normales Gemüsebeet
weitere Wünsche: Kontrollierte-Wohnraumlüftung voraussichtlich (ist heutzutage ja kaum wegzudenken)
Hausentwurf
Von wem stammt die Planung: Do-it-Yourself (Excel)
Was gefällt besonders? Warum?: Ich schreib mal alles was mir wichtig war:
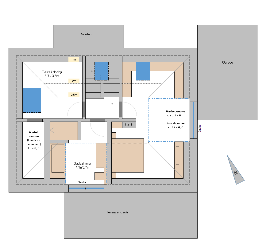
- Schlaf- und Badezimmer finde ich im DG gemütlicher und dadurch dass man nicht das Gefühl haben muss, dass jederzeit jemand am Fenster vorbeilaufen könnte, reine Gefühlssache
- Schlafzimmer möglichst weit weg vom Hauswirtschaftsraum wegen Lärm und nicht komplett im Südwesten gelegen wegen Hitze im Sommer
- Schlafzimmer recht geräumig (auch wenn viele wohl das Schlafzimmer nur als Schlafkoje sehen). Mich stört es aktuell ungemein in meinem 12m² Schlafzimmer, dass man sich ständig wo stößt und auf die schrankwand guckt, kaum Platz zum anziehen hat und einfach nur ne Dunkelkammer zum schlafen ist. Zudem find ich es eine gute Idee wenn man ein Ausweichzimmer hat, falls man doch mal vom (noch zu findenden) Partner braucht oder die Dame in Ruhe ihre Jogamatte wo hinwerfen will 😀
- Badezimmer auch groß genug mit offener Dusche ohne Glaswand (find ich nicht schön)
- Überdachte Terrasse vor Ess-/Wohnbereich, da ich kein Fan von direkt reinknallender Sonne (kein Sonnenanbeter) und man die Terrasse auch bei nicht so tollem Wetter nutzen kann. Ob die Lichtverhältnisse dann ausreichen bin ich noch nicht sicher
- Keine Zimmertüren / Laufwege im Schmutzbereich
- Treppe nicht im Schmutzbereich und möglichst zentral
- Gauben für mehr Raum und Optik von außen (+allgemeine Vorteile von Gauben)
- Wohn-/Essbereich in einem Raum, Küche getrennt davon
- min. 1 zusätzlicher Raum für Büro/Hobby/Kind; idealerweise 2
- Dachschrägen als Stauraum nutzbar
Was gefällt nicht? Warum?: da es mein eigener Erguss ist, bis jetzt nicht viel:
- Eingangsbereich vielleicht noch etwas zu schmal und vielleicht könnte man ihn etwas abgrenzen bis zu Treppe(?)
- Beim Schlafzimmer bin ich mir nicht sicher, ob das statisch ohne zusätzliche Stützen machbar ist (stört mich im Raumgefühl)Preisschätzung lt Architekt/Planer: noch nicht vorhanden [/B]
[/B]
- Persönliches Preislimit fürs Haus, inkl Ausstattung: [B]320k
favorisierte Heiztechnik:[B] [B]LWW oder Gas (noch unsicher)
[/B]
Wenn Ihr verzichten müsst, auf welche Details/Ausbauten
-könnt Ihr verzichten: Vordach über Eingangsbereich, Abstellkammer; den Rest hab ich aus Kostengründen eh schon weggelassen ^^
-könnt Ihr nicht verzichten: [B]Kamin, Bad mit Wanne, Überdachte Terrasse
[/B]
Warum ist der Entwurf so geworden, wie er jetzt ist? ZB
Ich baue das Haus erstmal für mich allein, heiß ich bin solo und möchte aber das Haus so planen, dass es im Zweifelsfall auch zu zweit bis maximal zu dritt noch gut bewohnbar ist.
Ich kann auf dem Grundstück nur einen Bungalow bauen und habe mit Grundrissen auf einer Ebene rumgespielt, aber konnte nicht so recht einen für mich finden, der auch ins Baufenster passt. Zudem bin ich auch ein Fan von Dachgeschossen (solang diese nicht zur Sauna werden).
Ursprünglich bin ich davon ausgegangen, dass ich mit 120m² ganz gut hinkomme, aber alles in allem sind es jetzt doch die ca. 135m² geworden, um mich richtig wohl damit zu fühlen.
Ich hab mich schwer getan durch die vielen Schrägen die Zimmer richtig unterzukriegen, und viel geschoben, aber entweder hat dann ein Raum zu viel Schräge gehabt oder es hat mit dem EG nicht mehr zusammengepasst (z. B. Hauswirtschaftsraum unterm Schlafzimmer).
Was ist die wichtigste/grundlegende Frage zum Grundriss in 130 Zeichen zusammengefasst?
[B]Da es mein eigener Entwurf ist, möchte ich wissen, ob es eklatante Fehler gibt, die objektiv einfach Murks sind. Details oder rein persönlicher Geschmack sollte dabei bitte außen vor bleiben.
PS: Ich hoffe die Bemaßung ist in dem Stadium nicht so detailliert nötig sonst versuch ich das noch nachzutragen.
[/B]





ich lese immer wieder mal, dass man sich bevor man nicht bei einer Baufirma / Architekten war sich gar nicht so detailliert mit dem Grundriss auseinandersetzen braucht, weil am Ende eh was andres raus kommt, aber ich kann einfach nicht anders und möchte schon so viel wie möglich durchdenken 😉 und ich will nicht erst nach dem ersten Angebotsgespräch plötzlich alles umwerfen müssen, wenn irgendwas so gar nicht geht.
Bebauungsplan/Einschränkungen
Größe des Grundstücks: ca. 750m², wird demnächst erschlossen, reserviert
Hang: minimal nach Süden abfallend, aber annähernd eben
Grundflächenzahl: 0,4
Geschossflächenzahl: 0,8
Baufenster, Baulinie und –grenze: ca. 17 x 16m
Randbebauung: s. Bild
Anzahl Stellplatz: 2
Geschossigkeit: E+D
Dachform: Walmdach, bis 35 Grad und 80cm Kniestock
Stilrichtung: Bungalow
Ausrichtung: s. Bild
Maximale Höhen/Begrenzungen: TH 6,5
weitere Vorgaben: Garage mit Satteldach
Anforderungen der Bauherren
Stilrichtung, Dachform, Gebäudetyp: vom Bebauungsplan vorgegeben
Keller, Geschosse: ohne Keller, EG + ausgebautes DG
Anzahl der Personen, Alter: 1 (33), soll aber auch für bis zu 3 Personen brauchbar sein
Raumbedarf im EG, OG: EG ca. 80m² / DG ca. 50m² (nicht zwingend so aufgeteilt)
Büro: Familiennutzung oder Homeoffice?: Zockerzimmer + sporadisch Homeoffice
Schlafgäste pro Jahr: rechne erstmal mit maximal 2 Personen / Quartal
offene oder geschlossene Architektur: geschlossen
konservativ oder moderne Bauweise: eher konservativ, Gemütlichkeit steht im Vordergrund
offene Küche, Kochinsel: nein, geschlossene Küche o. Kochinsel
Anzahl Essplätze: 5-6
Kamin: definitiv
Musik/Stereowand: reguläre Wohnwand mit TV
Balkon, Dachterrasse: nein
Garage, Carport: Einzelgarage (evtl. + Geräteraum) + freier Einzelstellplatz (laut Bebauungsplan mit Satteldach, aber in der Nachbarschaft gibt es auch Flachdächer, letzteres wäre gewünscht und zu klären)
Nutzgarten, Treibhaus: nichts Spezielles, normales Gemüsebeet
weitere Wünsche: Kontrollierte-Wohnraumlüftung voraussichtlich (ist heutzutage ja kaum wegzudenken)
Hausentwurf
Von wem stammt die Planung: Do-it-Yourself (Excel)
Was gefällt besonders? Warum?: Ich schreib mal alles was mir wichtig war:
- Schlaf- und Badezimmer finde ich im DG gemütlicher und dadurch dass man nicht das Gefühl haben muss, dass jederzeit jemand am Fenster vorbeilaufen könnte, reine Gefühlssache
- Schlafzimmer möglichst weit weg vom Hauswirtschaftsraum wegen Lärm und nicht komplett im Südwesten gelegen wegen Hitze im Sommer
- Schlafzimmer recht geräumig (auch wenn viele wohl das Schlafzimmer nur als Schlafkoje sehen). Mich stört es aktuell ungemein in meinem 12m² Schlafzimmer, dass man sich ständig wo stößt und auf die schrankwand guckt, kaum Platz zum anziehen hat und einfach nur ne Dunkelkammer zum schlafen ist. Zudem find ich es eine gute Idee wenn man ein Ausweichzimmer hat, falls man doch mal vom (noch zu findenden) Partner braucht oder die Dame in Ruhe ihre Jogamatte wo hinwerfen will 😀
- Badezimmer auch groß genug mit offener Dusche ohne Glaswand (find ich nicht schön)
- Überdachte Terrasse vor Ess-/Wohnbereich, da ich kein Fan von direkt reinknallender Sonne (kein Sonnenanbeter) und man die Terrasse auch bei nicht so tollem Wetter nutzen kann. Ob die Lichtverhältnisse dann ausreichen bin ich noch nicht sicher
- Keine Zimmertüren / Laufwege im Schmutzbereich
- Treppe nicht im Schmutzbereich und möglichst zentral
- Gauben für mehr Raum und Optik von außen (+allgemeine Vorteile von Gauben)
- Wohn-/Essbereich in einem Raum, Küche getrennt davon
- min. 1 zusätzlicher Raum für Büro/Hobby/Kind; idealerweise 2
- Dachschrägen als Stauraum nutzbar
Was gefällt nicht? Warum?: da es mein eigener Erguss ist, bis jetzt nicht viel:
- Eingangsbereich vielleicht noch etwas zu schmal und vielleicht könnte man ihn etwas abgrenzen bis zu Treppe(?)
- Beim Schlafzimmer bin ich mir nicht sicher, ob das statisch ohne zusätzliche Stützen machbar ist (stört mich im Raumgefühl)Preisschätzung lt Architekt/Planer: noch nicht vorhanden [/B]
[/B]
- Persönliches Preislimit fürs Haus, inkl Ausstattung: [B]320k
favorisierte Heiztechnik:[B] [B]LWW oder Gas (noch unsicher)
[/B]
Wenn Ihr verzichten müsst, auf welche Details/Ausbauten
-könnt Ihr verzichten: Vordach über Eingangsbereich, Abstellkammer; den Rest hab ich aus Kostengründen eh schon weggelassen ^^
-könnt Ihr nicht verzichten: [B]Kamin, Bad mit Wanne, Überdachte Terrasse
[/B]
Warum ist der Entwurf so geworden, wie er jetzt ist? ZB
Ich baue das Haus erstmal für mich allein, heiß ich bin solo und möchte aber das Haus so planen, dass es im Zweifelsfall auch zu zweit bis maximal zu dritt noch gut bewohnbar ist.
Ich kann auf dem Grundstück nur einen Bungalow bauen und habe mit Grundrissen auf einer Ebene rumgespielt, aber konnte nicht so recht einen für mich finden, der auch ins Baufenster passt. Zudem bin ich auch ein Fan von Dachgeschossen (solang diese nicht zur Sauna werden).
Ursprünglich bin ich davon ausgegangen, dass ich mit 120m² ganz gut hinkomme, aber alles in allem sind es jetzt doch die ca. 135m² geworden, um mich richtig wohl damit zu fühlen.
Ich hab mich schwer getan durch die vielen Schrägen die Zimmer richtig unterzukriegen, und viel geschoben, aber entweder hat dann ein Raum zu viel Schräge gehabt oder es hat mit dem EG nicht mehr zusammengepasst (z. B. Hauswirtschaftsraum unterm Schlafzimmer).
Was ist die wichtigste/grundlegende Frage zum Grundriss in 130 Zeichen zusammengefasst?
[B]Da es mein eigener Entwurf ist, möchte ich wissen, ob es eklatante Fehler gibt, die objektiv einfach Murks sind. Details oder rein persönlicher Geschmack sollte dabei bitte außen vor bleiben.
PS: Ich hoffe die Bemaßung ist in dem Stadium nicht so detailliert nötig sonst versuch ich das noch nachzutragen.
[/B]
hm... EG sieht zwar jetzt so gar nicht so falsch aus, aber ohne Vermassung auch nicht recht bewertbar.
Ich halte es bei groben Entwürfen besser, einfach mal auf Bleistiftskizzen auf Karopapier zurückzugreifen, um dann Verhältnisse besser beurteilen zu können.
Im OG wird Dich die Dachschräge erschlagen und macht Möblierung in der Nutzung, wie es Dir vorschwebt, unmöglich. Bett ist von einer Seite nicht nutzbar. Toilette gar nicht.
Schlafzimmer wird das, was Du nicht möchtest, eher klein und gedrungen ohne Bewegungsfreiheit.
Zum Yoga wird auch kein Platz sein, außer man bewegt sich nur krabbelnd.
Wenn Du ein OG schon ausbauen möchtest, würde ich auf Satteldach zurückgreifen, und den Kniestock innen vergrößern. Eigentlich müsste man oben auf 2,30 Höhe abmauern und den Rest dahinter dichtmachen.
Ggf auf ein versetztes Pult zurückgreifen: eine Seite höhergesetzt mit angenehmer Wohnhöhe, andere Seite zB zum EG offen oder als niedrige Abseite.
Ich halte es bei groben Entwürfen besser, einfach mal auf Bleistiftskizzen auf Karopapier zurückzugreifen, um dann Verhältnisse besser beurteilen zu können.
Im OG wird Dich die Dachschräge erschlagen und macht Möblierung in der Nutzung, wie es Dir vorschwebt, unmöglich. Bett ist von einer Seite nicht nutzbar. Toilette gar nicht.
Schlafzimmer wird das, was Du nicht möchtest, eher klein und gedrungen ohne Bewegungsfreiheit.
Zum Yoga wird auch kein Platz sein, außer man bewegt sich nur krabbelnd.
Wenn Du ein OG schon ausbauen möchtest, würde ich auf Satteldach zurückgreifen, und den Kniestock innen vergrößern. Eigentlich müsste man oben auf 2,30 Höhe abmauern und den Rest dahinter dichtmachen.
Ggf auf ein versetztes Pult zurückgreifen: eine Seite höhergesetzt mit angenehmer Wohnhöhe, andere Seite zB zum EG offen oder als niedrige Abseite.
ypg schrieb:
Toilette gar nicht.
Schlafzimmer wird das, was Du nicht möchtest, eher klein und gedrungen ohne Bewegungsfreiheit.
Zum Yoga wird auch kein Platz sein, außer man bewegt sich nur krabbelnd.Obwohl Du natürlich recht hast, dass es gedrungen und eng wirkt, ich glaub Du hast die Gauben übersehen, oder? Nach meinem Verständnis müsste das Toi funktionieren. Aber Kleiderschrank ist ein Problem, richtig?Was mir auch eher fragwürdig erscheint, ist die Podesttreppe.
Ich würde oben nur 2 Zimmer planen: 1x Schlafzimmer, 1x Bad. Einfach wegen zu wenig Stellfläche für Möbel. Da nützen auch keine Gauben. Irgendwo muss der Anzug ja hin. Und wenn dann erst noch Ballkleider oder gar Hochzeitskleider rein müssen... Deshalb braucht es eine längere Wand innerhalb der 2m Grenze. Oder willst Du Dein Leben lang zum Schrank kriechen? Ich würde auch die Schräge mit Vorsatzwänden auf 1,5m o.ä. abmildern.
Nur mal angedeutet in der Skizze.

Nur mal angedeutet in der Skizze.
Ähnliche Themen