Hausbau - Ratgeber
Bauherrenhilfe
- Bauherrenhilfe vor Vertragsabschluss
-- Warum einen unabhängigen Baubetreuer?
-- Vertragsgrundlagen
-- Bausumme
-- Zahlungsplan zur Kostenkontrolle
-- Pflichten des Bauherren vor Vertragsabschluss
-- Unterlagen beim Hausbau vor Vertragsabschluss
- Bauherrenhilfe nach Vertragsabschluss
-- Bauantrag bei Behörden
-- Bau-Genehmigungsverfahren bei Baubehörden
-- Bauspezifische Versicherungen
-- Bauzeitenplan
-- Baubeginn - die Letzten Pflichten der Bauherrschaft
- Bauherrenhilfe während der Bauzeit
- Gewährleistungsansprüche
- Bauabnahme
Baufinanzierung
- Baufinanzierung - Allgemeine Fragen
- Kreditarten
- Kredit-Konditionen
- Bausparen
- Staatliche Förderungen
- Verkehrswert
- Haushaltsrechnung und Bonität
Hausbau Planung
- Haustypen
- Hausbau Vorbereitungsarbeiten
- Das Baugrundstück
- Baugrund beim Hausbau
- Baurecht
- Gebäudeschutz
- Erdarbeiten und Wasserhaltung
- Stützmauern
- Einfriedung
- Untergeschoss
- Kanalisation
- Tragende Elemente
- Nichttragende Innenwände
- Fundation / Fundament
- Deckenkonstruktionen
- Dächer
- Kaminanlagen
- Treppen Rampen Leitern
- Dachbeläge und Spengler
- Fenster
- Sonnen und Wetterschutz
- Aussenputze
- Einbauten, Küchen, Türen
- Bodenbeläge und Unterlagsböden
- Parkett
- Gips, Wand, Decke
Haustechnik und Energie
- Heiztechnik
- Lüftung und Klimatechnik
- Sanitärtechnik
- Elektrotechnik
- Erneuerbare Energie
Whirlpools / Jacuzzi
Hausbau Magazin
- Baufinanzierung trotz Krise?
- Das Blockhaus
- Moderne Dämmstoffe im Vergleich
- Erker Vor- und Nachteile
- Glasflächen beim Hausbau
- Günstig ein Haus Bauen
- Mediterraner Hausbaustil
- Mehrgenerationenhaus
- Moderne Architektur
- Gartengestaltung leicht gemacht
- Traditioneller Ziegelbau
- Villa als höchster Traum
- Im Eigenheim Ruhestand geniessen
- Altbau sanieren
- Kauf einer Holzgarage
- Immobilienmakler
- Arbeitshandschuhe für den Winter
- Zuhause verschönern
- Outdoor-Plissees
- Schlafzimmer planen
- Terrassenüberdachung
- Wohngebäudeversicherung
- Zaunarten und Eigenschaften
- Hauseingang gestalten
- Der perfekte Grundriss
- Sparsamer heizen im Altbau
- Einfamilienhaus smart finanzieren
- Planung einer PV-Anlage
- Neues Haus
- Immobilienfinanzierung
- Installation einer Photovoltaikanlage
- Asbest erkennen und entfernen
- Gartenpflege im Frühling – worauf achten
- Sauna im Fokus - Wellness zuhause
- Erfolgreich vermieten
- Die perfekte Winterbekleidung
- Das Niedrigenergiehaus
- Der April und seine Stürme
- Architektonische Vielfalt
- Ökologisch und nachhaltig bauen
- Das perfekte Schlafzimmer
- Nachhaltige Energieversorgung
- Zukunftsorientiert bauen
- Nachhaltigkeit beim Hausbau
- Tiny Houses
- Wärmepumpen als nachhaltige Heizvariante
- Maßgeschneiderten Kleiderschrank
- Der richtige Baukredit
- Ratgeber für erfolgreichen Hausbau
- Haus als Altersvorsorge
Do-it-yourself Anleitungen
- Verlegeanleitung für Bodenbeläge und Parkett
- Bodenbeläge und Parkett reinigen und pflegen
- Malerarbeiten am Haus
- Garten Tipps
- Umzug und Reinigung

ᐅ Bungalow Grundriss Max. 140 m² - Masse laut der Norm ok?

Erstellt am: 27.07.18 17:14
A
Ala34
A
Ala34
27.07.18 17:14
Bebauungsplan/Einschränkungen: kein Bebauungsplan §34 Umfeld Doppelhaushälfte, Bungalow etc.
Grösse des Grundstücks: 1056 m²
Hang: nein
Wohngebiet
Anzahl Stellplatz: 2
Dachform: Walmdach
Stilrichtung: Bungalow klassisch
Ausrichtung: Ost-Süd
Maximale Höhen/Begrenzungen: -

Anforderungen der Bauherren
Stilrichtung, Dachform, Gebäudetyp: Landhausstil, Bungalow, Walmdach
Keller, Geschosse; nein, 1 geschossig
Anzahl der Personen: 2, 35 Jahre
Raumbedarf: 4 Zimmer
Büro: Homeoffice
Schlafgäste pro Jahr: 2-4
offene oder geschlossene Architektur: offen
konservativ oder moderne Bauweise: modern
offene Küche, Kochinsel: Ja
Anzahl Essplätze: 2
Kamin: Ja
Balkon, Dachterrasse: nein
Garage, Carport: Ja
Nutzgarten, Treibhaus: Ja

Hausentwurf
Von wem stammt die Planung: Do-it-Yourself/ Scanhaus Marlow Marlow
Was gefällt besonders? Warum? Überdachte Terrasse, Luftraum, eigener Privatbereich
Was gefällt nicht? Warum? kleiner Hauswirtschaftsraum,
Preisschätzung lt Architekt/Planer: 270.000 €
Persönliches Preislimit fürs Haus, inkl Ausstattung: 300.000 €, 350.000 € inkl. Nebenkosten
favorisierte Heiztechnik: Erdwärmepumpe mit Tiefenbohrung

Durchgehender Blick Haustür in den Garten mit Flügeltür

Was ist die wichtigste/grundlegende Frage zum Grundriss in 130 Zeichen zusammengefasst?

Grundriss gefällt, sind die Maße laut Norm ok?
Ist der Luftraum machbar. Statik?
Aufteilung ok? Wohnfläche soll Max. 140 m² betragen, was nicht einfach mit 4 Zimmern vereinbar war.

Danke im Voraus.
K
kaho674
27.07.18 17:26

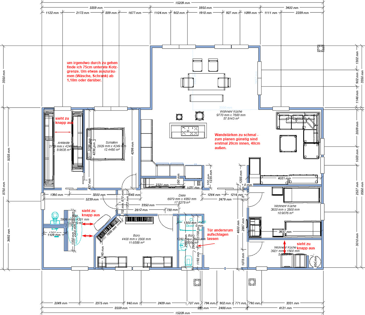
Grundriss eines Hauses mit Küche, Wohnzimmer, Schlafzimmer, Ankleide, Büro und Fluren.

Einfamilienhaus aus Backstein mit grauem Dach, weißen Säulen am Eingang und rundem Beton-Vorplatz.

Einfamilienhaus aus Backstein mit großen Glasfenstern, Holzterrasse auf grünem Rasen.
K
kaho674
27.07.18 17:40
Anmerkungen siehe Bild.
Luftraum kann ich leider nichts sagen, habe aber schon größere in Planung gesehen - also warum nicht?
Schräge im Büro würde ich vermutlich rausnehmen zu Gunsten des Bades. Tische im Büro vielleicht gegenüber in die Mitte - gibt richtig schönes Büro-Feeling.


Detaillierter Grundriss eines Einfamilienhauses mit Wohnküche, Schlafzimmer, Büro und Bad
1
11ant
27.07.18 20:02
Das Programm benutzt Maßlinien wohl eher zum Verwirren - Abstände von Zimmerecke bis Fenstermitte kann man da lesen, aber die Stärke der Wohnmobilwände habe ich nicht ersehen.

Das Bild der Eingangsseite erinnert mich ein wenig an den Bungalow von @Michaela1986 https://www.hausbau-forum.de/threads/Grundriss-Bungalow-was-gibt-es-zu-beachten.25046 - in diesem Thread sind übrigens noch mehrere weitere Bungalows verlinkt.
https://www.instagram.com/11antgmxde/
https://www.linkedin.com/company/bauen-jetzt/
K
kbt09
28.07.18 07:46
Hmm, was heißt Ost-West-Lage? Nordpfeil auf dem Grundriss und eine möglichst genordete Grundrissskizze sind immer hilfreich.

4 Zimmer ...
- Schlafzimmer
- Büro
- Gästezimmer?
- Wohnen/Essen/Kochen?

Und Vermaßung umstellen .

Küche, wenn so wie geplant ein Side By Side Kühlschrank stehen soll, dann steht der mit der Kühlteilseite ungünstig zur Küche.
A
Ala34
28.07.18 20:19
Hallo zusammen!
Vielen Dank für die Anregungen.
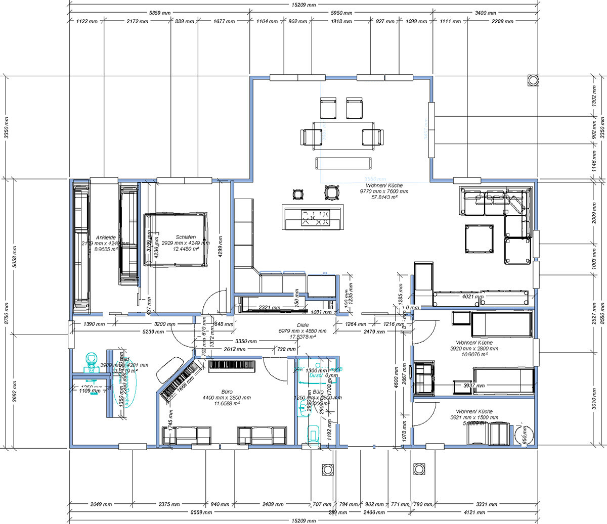
Grundriss angepasst.
Wandstärken überlassen wir den Architekten.
Ausrichtung, Terrasse Richtung Ost-Süd. Leider kein Kompass im Programm gefunden...
scanhaus marlowbungalowkücheluftraumgrundrissbebauungsplandachformwalmdachzimmerterrasse