ᐅ Grundriss Bungalow mit Satteldach - Optimierungspotential?
Erstellt am: 09.06.18 10:05
Hallo
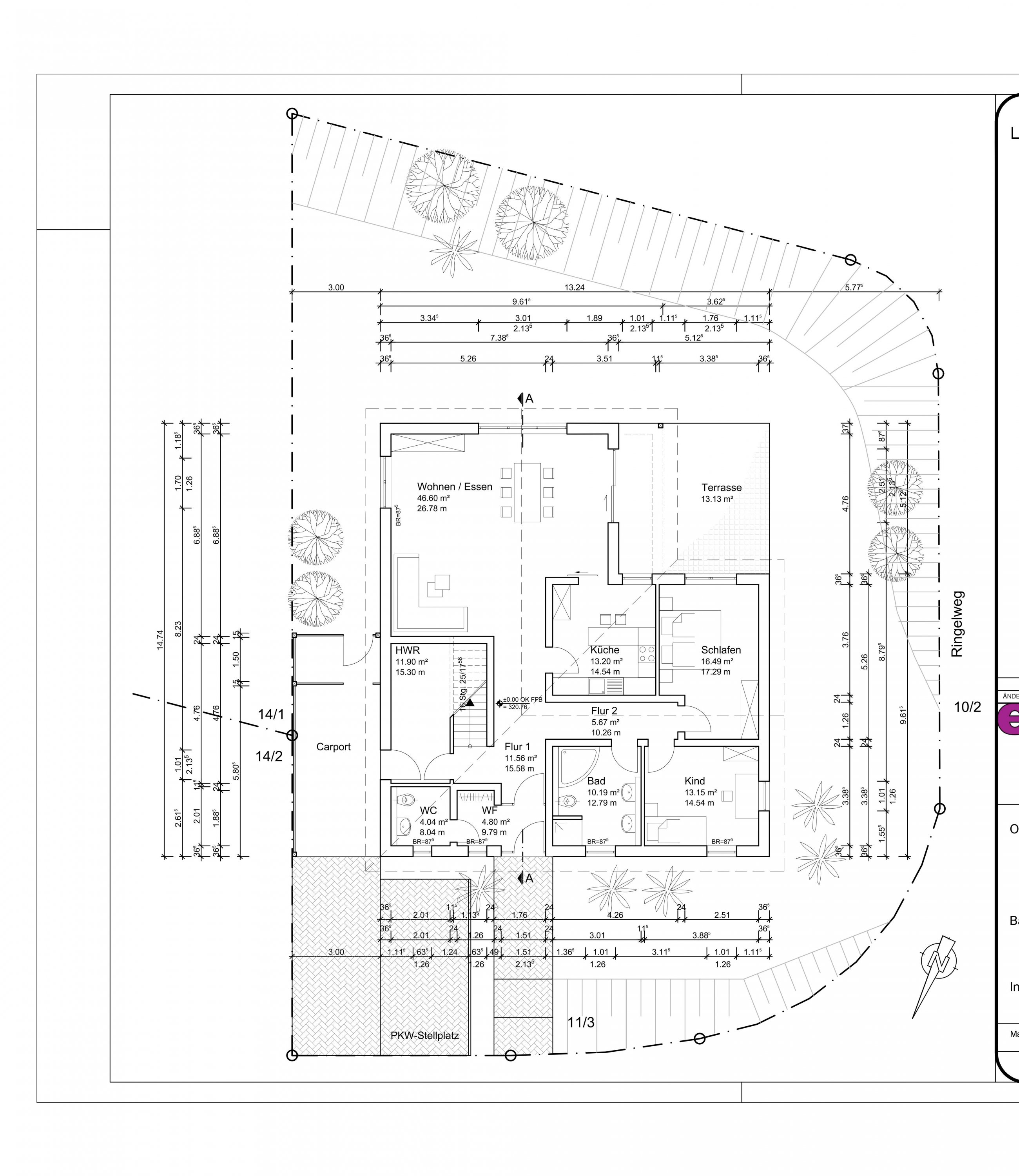
Anbei unser Grundriss für ein Bungalow mit Satteldach (Stauraum unter dem Satteldach ).
Küche und Badausstattung sind noch zu planen . Da ist nur die Raumgröße definiert . Türen können da noch bissl verschoben werden .
Auf Höhe der Treppe kann man optional einen Windfang verbauen . (Weniger Heizung nötig ). Die Terrasse wird halbrund werden nach vorne also noch bissl größer .
Hauptaugenmerk soll die Innenoptimierung sein .
Die Höchstmaße für den Grundriss in der Breite sind ausgereizt - leider . 1 Meter mehr wäre besser gewesen .
Was könnte man noch optimieren ?
Habe den Plan als PDF und JPG angefügt
Danke
Bebauungsplan/Einschränkungen
Größe des Grundstücks : 612 m²
Eben
Grundflächenzahl - Keine Einschränkungen - normales Baurecht 80% der Fläche dürfen bebaut werden
Geschossflächenzahl - Keine Einschränkungen - normales Baurecht
Baufenster, Baulinie und -grenze - Eingezeichnet - Regelung nach Hessischem Baugesetz
Randbebauung - NEIN
Anzahl Stellplatz : 1 Stellplatz und 1 Carport
Geschossigkeit : 1
Dachform - Satteldach
Stilrichtung : Bungalow mit Stauraum unter Satteldach und kleinem Studio für den Junior später
Ausrichtung : Wohnzimmer nach Süden
Maximale Höhen/Begrenzungen : Keine
Anforderungen der Bauherren
Stilrichtung, Dachform, Gebäudetyp - Bungalow
Keller, Geschosse - 1
Anzahl der Personen, Alter : 3 (38 , 38 , 1 )
Raumbedarf im EG, OG -
Büro: Familiennutzung oder Homeoffice? -
Schlafgäste pro Jahr - 5
offene oder geschlossene Architektur - geschlossen
konservativ oder moderne Bauweise - konversativ
offene Küche, Kochinsel - Halboffen
Anzahl Essplätze - 3 in Küche
Kamin - Nein
Musik/Stereowand - Nein
Balkon, Dachterrasse - Nein
Garage, Carport - Carport neben Haus , Stellplatz vor Haus
Nutzgarten, Treibhaus - Nein
weitere Wünsche/Besonderheiten/Tagesablauf, gern auch Begründungen, warum dieses oder das nicht sein soll - Ruhebereich und Wohnbereich etwas getrennt
Hausentwurf
Von wem stammt die Planung:
-Architekt + -Do-it-Yourself
Was gefällt besonders? Warum? - Ruhebereich Planrechts . Wohnen Südseitig
Was gefällt nicht? Warum? - Elternschlafzimmer suboptimal
Preisschätzung lt Architekt/Planer: 300.000
Persönliches Preislimit fürs Haus, inkl Ausstattung: 300.000
favorisierte Heiztechnik: Wird noch erarbeitet mit TGA - Energieplaner
Wenn Ihr verzichten müsst, auf welche Details/Ausbauten
-könnt Ihr verzichten: /
-könnt Ihr nicht verzichten: /
Warum ist der Entwurf so geworden, wie er jetzt ist? ZB :
Standardentwurf vom Planer? - Nein unsere Wünsche wurden versucht umzusetzen
Entsprechende/Welche Wünsche wurden vom Architekten umgesetzt?
Ruhebereich etwas abgekupfert von Fertighausanbieter
Was macht ihn in Euren Augen besonders gut oder schlecht?
Elternschlafzimmer bei durchgehender Schrankwand - Durchgang von Bett zu Schrank zu gering (nur ca 50 cm) ...

Anbei unser Grundriss für ein Bungalow mit Satteldach (Stauraum unter dem Satteldach ).
Küche und Badausstattung sind noch zu planen . Da ist nur die Raumgröße definiert . Türen können da noch bissl verschoben werden .
Auf Höhe der Treppe kann man optional einen Windfang verbauen . (Weniger Heizung nötig ). Die Terrasse wird halbrund werden nach vorne also noch bissl größer .
Hauptaugenmerk soll die Innenoptimierung sein .
Die Höchstmaße für den Grundriss in der Breite sind ausgereizt - leider . 1 Meter mehr wäre besser gewesen .
Was könnte man noch optimieren ?
Habe den Plan als PDF und JPG angefügt
Danke
Bebauungsplan/Einschränkungen
Größe des Grundstücks : 612 m²
Eben
Grundflächenzahl - Keine Einschränkungen - normales Baurecht 80% der Fläche dürfen bebaut werden
Geschossflächenzahl - Keine Einschränkungen - normales Baurecht
Baufenster, Baulinie und -grenze - Eingezeichnet - Regelung nach Hessischem Baugesetz
Randbebauung - NEIN
Anzahl Stellplatz : 1 Stellplatz und 1 Carport
Geschossigkeit : 1
Dachform - Satteldach
Stilrichtung : Bungalow mit Stauraum unter Satteldach und kleinem Studio für den Junior später
Ausrichtung : Wohnzimmer nach Süden
Maximale Höhen/Begrenzungen : Keine
Anforderungen der Bauherren
Stilrichtung, Dachform, Gebäudetyp - Bungalow
Keller, Geschosse - 1
Anzahl der Personen, Alter : 3 (38 , 38 , 1 )
Raumbedarf im EG, OG -
Büro: Familiennutzung oder Homeoffice? -
Schlafgäste pro Jahr - 5
offene oder geschlossene Architektur - geschlossen
konservativ oder moderne Bauweise - konversativ
offene Küche, Kochinsel - Halboffen
Anzahl Essplätze - 3 in Küche
Kamin - Nein
Musik/Stereowand - Nein
Balkon, Dachterrasse - Nein
Garage, Carport - Carport neben Haus , Stellplatz vor Haus
Nutzgarten, Treibhaus - Nein
weitere Wünsche/Besonderheiten/Tagesablauf, gern auch Begründungen, warum dieses oder das nicht sein soll - Ruhebereich und Wohnbereich etwas getrennt
Hausentwurf
Von wem stammt die Planung:
-Architekt + -Do-it-Yourself
Was gefällt besonders? Warum? - Ruhebereich Planrechts . Wohnen Südseitig
Was gefällt nicht? Warum? - Elternschlafzimmer suboptimal
Preisschätzung lt Architekt/Planer: 300.000
Persönliches Preislimit fürs Haus, inkl Ausstattung: 300.000
favorisierte Heiztechnik: Wird noch erarbeitet mit TGA - Energieplaner
Wenn Ihr verzichten müsst, auf welche Details/Ausbauten
-könnt Ihr verzichten: /
-könnt Ihr nicht verzichten: /
Warum ist der Entwurf so geworden, wie er jetzt ist? ZB :
Standardentwurf vom Planer? - Nein unsere Wünsche wurden versucht umzusetzen
Entsprechende/Welche Wünsche wurden vom Architekten umgesetzt?
Ruhebereich etwas abgekupfert von Fertighausanbieter
Was macht ihn in Euren Augen besonders gut oder schlecht?
Elternschlafzimmer bei durchgehender Schrankwand - Durchgang von Bett zu Schrank zu gering (nur ca 50 cm) ...
Zwei Dinge fallen mir spontan auf: erstens, daß es die Terrasse einbezogen ein Rechteckgrundriss ist (und ich erwägen würde, das Satteldach entsprechend und nicht wie über einem Winkelgrundriss anzulegen); und zweitens die unüblich großzügige Verwendung von 24er Innenwänden. Die Einzelkindfrage ist abschließend verkorkt ?
https://www.instagram.com/11antgmxde/
https://www.linkedin.com/company/bauen-jetzt/
https://www.instagram.com/11antgmxde/
https://www.linkedin.com/company/bauen-jetzt/
Elnino schrieb:
Die Dachkonstruktion besteht aus sich 2 stossende Satteldächern. Das kann ich heute Abend noch mal anfügen.Das brauchst Du nicht, es ist erkennbar. Und so habe ich es auch verstanden, aber lediglich eine andere Variante vorgeschlagen. Die ist konstruktionsbedingt kostengünstiger und wegen der übw. südorientierten Terrasse wirst Du für mehr Schatten dankbar sein. Dunkel werden muß es dadurch nicht.https://www.instagram.com/11antgmxde/
https://www.linkedin.com/company/bauen-jetzt/
C
chand198609.06.18 20:53Um mal von Rüsseltier nach Baudeutsch für Dummies zu übersetzen: 11ant schlägt vor, die Terrasse derart zu überdachen, dass man schlicht ein einfaches rechteckiges Satteldach auf den L-Bungalow setzt. Kosten und Verschattung profitieren beide.
Die Idee findet btw meine Zustimmung. Grundriss finde ich ok. Mag keine Küche mit zwei Türen.
Die Idee findet btw meine Zustimmung. Grundriss finde ich ok. Mag keine Küche mit zwei Türen.
Ähnliche Themen