ᐅ Meinungen zur Grundrissplanung (Iso Ansichten, Grundrisse, Bebauungsplan)
Erstellt am: 13.08.18 21:05
D
DopaminHallo zusammen,
wir planen gerade in Eigenregie einen Grundriss für unser Einfamilienhaus auf dem kürzlich erworbenen Grundstück (Parzelle 13). Da der Bebauungsplan und das Baufenster uns schon klare Richtungen vorgeben, haben wir versucht innerhalb dieser Schranken das Beste draus zu machen.
Neben der 6m breiten Doppelgarage (min. für 2 Autos) können wir noch maximal 9m für die Hausbreite im Baufenster nutzen.
Das bedeutet das Haus muss in Nord-Süd Ausrichtung länger werden.
Weil die Garage in der Ost-Seite liegt und direkt ans Haus anbaut, haben wir versucht Räume die weniger Licht benötigen dort reinzulegen.
Der Garten in Südrichtung hat wie man im Plan sieht viel Fläche die wir auch gerne in beiden Stockwerken über viele Fenster sehen wollen.
Es würde mich freuen, wenn ihr ein paar Anregungen geben könnt oder im besten Fall einen Bestätigung, dass der Plan so ganz gut ist
Grüße Thomas
Hier noch die beantworteten Fragen:
Bebauungsplan/Einschränkungen
Größe des Grundstücks - 740qm
Hang - minimal ca 1%
Grundflächenzahl - 0,35
Geschossflächenzahl - 0,5
Baufenster, Baulinie und -grenze - laut Plan
Randbebauung - Nachbargrundstück
Anzahl Stellplatz - 2
Geschossigkeit 2
Dachform - Satteldach
Stilrichtung - modern
Ausrichtung - NS
Maximale Höhen/Begrenzungen - 5,5m Trauf ab OK-FB-EG
weitere Vorgaben
Anforderungen der Bauherren
Stilrichtung, Dachform, Gebäudetyp - Sichtdachstuhl, klare Strukturen
Keller, Geschosse - Keller 2 Geschosse
Anzahl der Personen, Alter - heute 2 Erw, in paar Jahren +2Kinder
Raumbedarf im EG, OG
Büro: Familiennutzung oder Homeoffice? - kleines Büro/Gästezimmer
Schlafgäste pro Jahr - selten
offene oder geschlossene Architektur - offener Wohnraum
konservativ oder moderne Bauweise - schlicht
offene Küche, Kochinsel - offen
Anzahl Essplätze - 1-2
Kamin - nein wegen Wärmepumpe
Musik/Stereowand - ka
Balkon, Dachterrasse - große Terrasse
Garage, Carport - Doppelgarage
Nutzgarten, Treibhaus
weitere Wünsche/Besonderheiten/Tagesablauf, gern auch Begründungen, warum dieses oder das nicht sein soll
Hausentwurf
Von wem stammt die Planung: - Eigenentwurf
-Planer eines Bauunternehmens
-Architekt
-Do-it-Yourself - Fliesen
Was gefällt besonders? Warum?
Was gefällt nicht? Warum?
Preisschätzung lt Architekt/Planer: 400-500 t€ ohne Grund
Persönliches Preislimit fürs Haus, inkl Ausstattung: 500t€
favorisierte Heiztechnik: Wärmepumpe










wir planen gerade in Eigenregie einen Grundriss für unser Einfamilienhaus auf dem kürzlich erworbenen Grundstück (Parzelle 13). Da der Bebauungsplan und das Baufenster uns schon klare Richtungen vorgeben, haben wir versucht innerhalb dieser Schranken das Beste draus zu machen.
Neben der 6m breiten Doppelgarage (min. für 2 Autos) können wir noch maximal 9m für die Hausbreite im Baufenster nutzen.
Das bedeutet das Haus muss in Nord-Süd Ausrichtung länger werden.
Weil die Garage in der Ost-Seite liegt und direkt ans Haus anbaut, haben wir versucht Räume die weniger Licht benötigen dort reinzulegen.
Der Garten in Südrichtung hat wie man im Plan sieht viel Fläche die wir auch gerne in beiden Stockwerken über viele Fenster sehen wollen.
Es würde mich freuen, wenn ihr ein paar Anregungen geben könnt oder im besten Fall einen Bestätigung, dass der Plan so ganz gut ist
Grüße Thomas
Hier noch die beantworteten Fragen:
Bebauungsplan/Einschränkungen
Größe des Grundstücks - 740qm
Hang - minimal ca 1%
Grundflächenzahl - 0,35
Geschossflächenzahl - 0,5
Baufenster, Baulinie und -grenze - laut Plan
Randbebauung - Nachbargrundstück
Anzahl Stellplatz - 2
Geschossigkeit 2
Dachform - Satteldach
Stilrichtung - modern
Ausrichtung - NS
Maximale Höhen/Begrenzungen - 5,5m Trauf ab OK-FB-EG
weitere Vorgaben
Anforderungen der Bauherren
Stilrichtung, Dachform, Gebäudetyp - Sichtdachstuhl, klare Strukturen
Keller, Geschosse - Keller 2 Geschosse
Anzahl der Personen, Alter - heute 2 Erw, in paar Jahren +2Kinder
Raumbedarf im EG, OG
Büro: Familiennutzung oder Homeoffice? - kleines Büro/Gästezimmer
Schlafgäste pro Jahr - selten
offene oder geschlossene Architektur - offener Wohnraum
konservativ oder moderne Bauweise - schlicht
offene Küche, Kochinsel - offen
Anzahl Essplätze - 1-2
Kamin - nein wegen Wärmepumpe
Musik/Stereowand - ka
Balkon, Dachterrasse - große Terrasse
Garage, Carport - Doppelgarage
Nutzgarten, Treibhaus
weitere Wünsche/Besonderheiten/Tagesablauf, gern auch Begründungen, warum dieses oder das nicht sein soll
Hausentwurf
Von wem stammt die Planung: - Eigenentwurf
-Planer eines Bauunternehmens
-Architekt
-Do-it-Yourself - Fliesen
Was gefällt besonders? Warum?
Was gefällt nicht? Warum?
Preisschätzung lt Architekt/Planer: 400-500 t€ ohne Grund
Persönliches Preislimit fürs Haus, inkl Ausstattung: 500t€
favorisierte Heiztechnik: Wärmepumpe
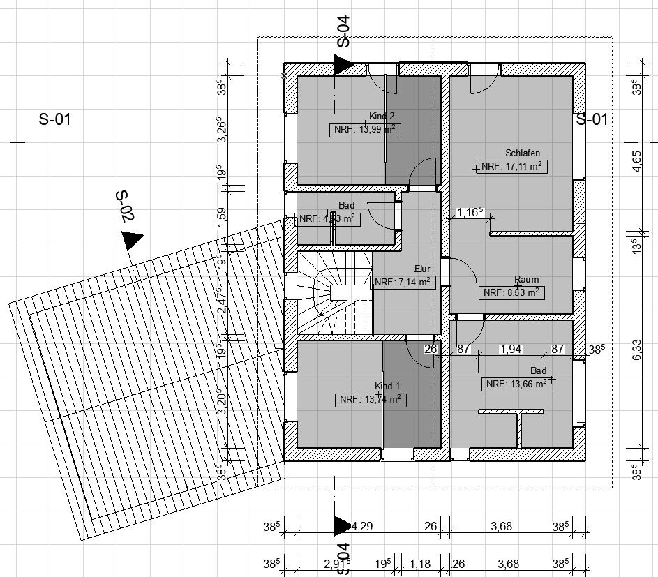
Gefällt mir ganz gut. Das OG ist m.E. noch nicht perfekt. Wie soll das kleine Bad entwässert werden? Zudem schläft Kind 2 mit dem Ohr an der Schlafzimmer-Wand. Da würde ich noch mal versuchen, ein wenig "durchzuschütteln". Bei der Gelegenheit bekommt man vielleicht noch einen Wäscheschacht bis in den Keller.
Die Überdachungen der Terrasse sieht etwas bescheiden aus. Das kann aber Programm-geschuldet sein.
Die Überdachungen der Terrasse sieht etwas bescheiden aus. Das kann aber Programm-geschuldet sein.
kaho674 schrieb:
Gefällt mir ganz gut. Das OG ist m.E. noch nicht perfekt. Wie soll das kleine Bad entwässert werden? Zudem schläft Kind 2 mit dem Ohr an der Schlafzimmer-Wand. Da würde ich noch mal versuchen, ein wenig "durchzuschütteln". Bei der Gelegenheit bekommt man vielleicht noch einen Wäscheschacht bis in den Keller.
Die Überdachungen der Terrasse sieht etwas bescheiden aus. Das kann aber Programm-geschuldet sein.Das kleine Bad hat keine Probleme beim Bauunternehmer erzeugt, er meinte er bekommt das hin (Extrakosten).
Die Wand zwischen Eltern Schlafzimmer und Kind 2 ist tragend also sollte diese genügend Schall schlucken und wir sind eh nicht die lautesten ...
Wäscheschacht wollen wir keinen .
Die Terrasse soll nur mal so angedeutet sein.
Danke für die Antwort.
Dopamin schrieb:
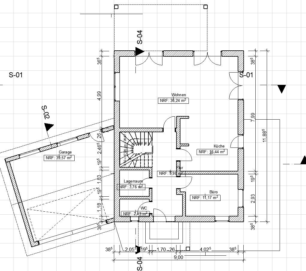
Das kleine Bad hat keine Probleme beim Bauunternehmer erzeugt, er meinte er bekommt das hin (Extrakosten).Mmh. Vorsicht mit dem, was der Bauleiter "hin bekommt" und dem, was man als wohnlich bezeichnet. Abfluss durchs WZ ist nicht gerade das Hintergrundrauschen, das man sich z.B zum Weihnachtsbraten wünscht.Auf den ersten Blick finde ich ihn auch ok.
Ich würde den/einen Dielenschrank auf 60er Tiefe bringen und in der Küche die Tür mit den Hochschränken tauschen. Kühlschrank und Ofen ist zu weit von der Arbeits- und Abstellfläche entfernt.
Im OG ist gar nicht optimal: bodentiefe Fenster direkt am Duschausgang. Diese Fenster sind ja immer versperrt, damit keiner luschern kann.
Ich würde den/einen Dielenschrank auf 60er Tiefe bringen und in der Küche die Tür mit den Hochschränken tauschen. Kühlschrank und Ofen ist zu weit von der Arbeits- und Abstellfläche entfernt.
Im OG ist gar nicht optimal: bodentiefe Fenster direkt am Duschausgang. Diese Fenster sind ja immer versperrt, damit keiner luschern kann.
Ähnliche Themen