ᐅ Grundriss-Entwurf: Einfamilienhaus; 140qm; ohne Keller; 730qm Grundstück
Erstellt am: 01.03.24 08:55
N
numerobisN
numerobis01.03.24 08:55Guten Morgen,
Ende letzten Jahres haben wir ein Grundstück angeboten bekommen. Seitdem bin ich regelmäßig hier im Forum - bisher als stiller Leser. Dabei habe ich schon viele interessante Ideen mitgenommen. Vielleicht hat ja der ein oder andere auch Feedback zu unseren ersten Entwürfen.
Schon mal vielen Dank für eure Zeit.
Grüße,
Numerobis
Bebauungsplan/Einschränkungen (Bebauungsplan Nr. 122 "Ochtruper Straße-Nord" (Rheine))
Anforderungen der Bauherren
Was gefällt besonders? Warum?
Was gefällt nicht? Warum?
Wenn Ihr verzichten müsst, auf welche Details/Ausbauten




Ende letzten Jahres haben wir ein Grundstück angeboten bekommen. Seitdem bin ich regelmäßig hier im Forum - bisher als stiller Leser. Dabei habe ich schon viele interessante Ideen mitgenommen. Vielleicht hat ja der ein oder andere auch Feedback zu unseren ersten Entwürfen.
Schon mal vielen Dank für eure Zeit.
Grüße,
Numerobis
Bebauungsplan/Einschränkungen (Bebauungsplan Nr. 122 "Ochtruper Straße-Nord" (Rheine))
- Größe des Grundstücks: 730qm
- Hang: nein
- Grundflächenzahl: 0,4
- Geschossflächenzahl: 0,8
- Baufenster, Baulinie und -grenze: Ja, vorhanden.
- Randbebauung: Möglich mit Garage.
- Anzahl Stellplatz: 1
- Geschossigkeit: I-II
- Dachform: Satteldach (I: Neigung min 35°, max 45°; II: min 18°, max 32°)
- Stilrichtung: Modern, klare Linien und Formen, roter Klinker
- Ausrichtung: Hauptfirstrichtung Ost-West
- Maximale Höhen/Begrenzungen: keine bekannt
- weitere Vorgaben: keine bekannt
Anforderungen der Bauherren
- Stilrichtung, Dachform, Gebäudetyp: Satteldach
- Keller, Geschosse: 1 Vollgeschosse ohne Keller
- Anzahl der Personen, Alter: 4 Personen (2 Kleinkinder)
- Raumbedarf im EG: ca 75qm
- Flur: So klein wie möglich, so groß wie nötig. ca. 8qm
- Büro: Home-Office und Gästezimmer?: ca. 10qm (Schlafgäste pro Jahr: 5-10 Übernachtungen / Jahr)
- offene Küche (mit Kochinsel), offener Essbereich 6 Essplätze, offenes Wohnzimmer: ca 45qm
- Gäste-WC mit Dusche: ca. 4qm
- Hauswirtschaftsraum 1: (Haustechnik & Co) ca 10qm
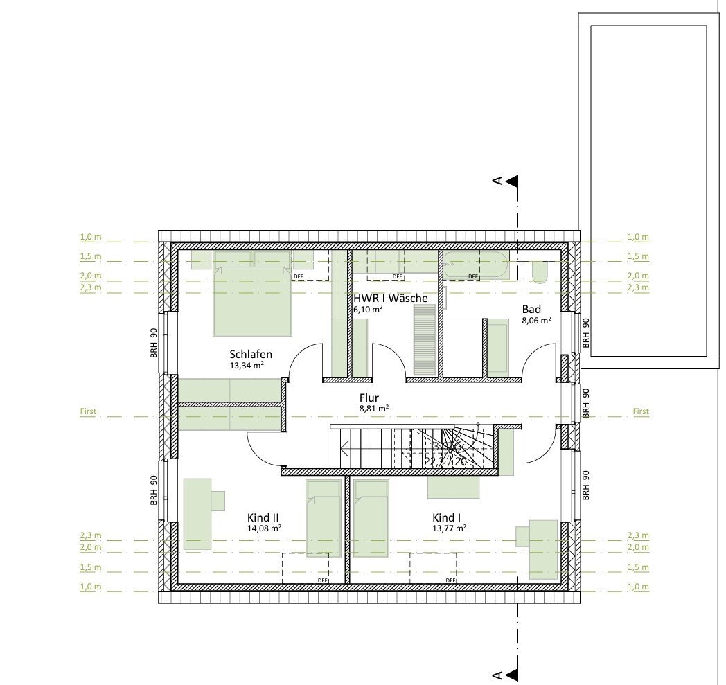
- Raumbedarf im OG: ca 60qm
- Flur: So klein wie möglich, so groß wie nötig. ca. 8qm
- Schlafzimmer: 3 mit jeweils ca 14qm
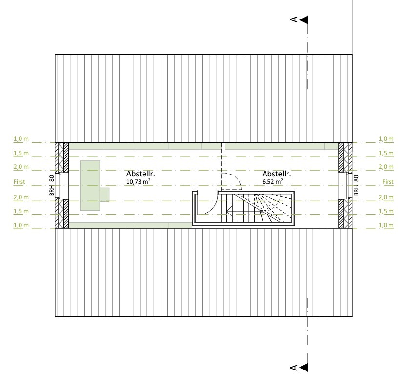
- Hauswirtschaftsraum 2 (Abstellraum, Wäsche): ca 8qm
- Bad: ca 10cm
- Offene oder geschlossene Architektur: Offener Koch-Wohn-Essbereich, geschlossene Flure
- Konservativ oder moderne Bauweise: modern. siehe Stilrichtung
- Kamin: Nein
- Musik/Stereowand: Nein
- Balkon, Dachterrasse: Nein
- Garage, Carport: Carport mit Schuppen
- Nutzgarten, Treibhaus: Nein
- Von wem stammt die Planung: Architekt
Was gefällt besonders? Warum?
- Moderne Design
- Offener Wohn/Essraum
- Büro Richtung Süden
- Wäscheraum im OG
- Gäste-WC mit Dusche
- Abstellkammer neben der Küche (unter der Treppe)
- Möglichkeit für ein Mehrzweckraum (Spielzimmer, TV-Zimmer, Gästezimmer wahlweise im EG oder unter dem Dach)
Was gefällt nicht? Warum?
- Ich bin skeptisch ob wir die Anzahl der Räume reduzieren, oder die Grundfläche leicht erhöhen sollten (z.B. Haus um ca. 50-100cm Richtung Süden erweitern).
- EG: sind 4,37qm für das Gäste-WC mit Dusche groß genug?
- EG: sind 8,19qm für das Büro groß genug für 3-4 Tage Home Office? Würde da eine schlafcouch reinpassen?
- OG: ist Kinderzimmer 1 zu schmal? 1,98m (bis 2m Höhe), 2,47m (bis 1,5m Höhe), 2,76m (bis Wand/1m Höhe)
Wenn Ihr verzichten müsst, auf welche Details/Ausbauten
- könnt Ihr verzichten: Büro im EG, Wäscheraum im OG
- könnt Ihr nicht verzichten: 2. Dusche, Abstellfläche unter dem Dach
Willkommen im Forum,
Ich habe keine professionelle Ahnung vom Grundriss entwerfen, aber deiner gefällt mir gut, da könnte ich ohne groß zu ändern einziehen.
Was mir zu denken gibt, ist der ebenerdige Eingang. Bei mir wäre immer eine Stufe ins Haus, dafür sehe ich zu viele Überschwemmungen in den Nachrichten
Ich habe keine professionelle Ahnung vom Grundriss entwerfen, aber deiner gefällt mir gut, da könnte ich ohne groß zu ändern einziehen.
Was mir zu denken gibt, ist der ebenerdige Eingang. Bei mir wäre immer eine Stufe ins Haus, dafür sehe ich zu viele Überschwemmungen in den Nachrichten
Ich finde den Grundriss grundsätzlich auch gut. Zu klein finde ich den Küchenbereich, daher, wenn
Die einzelnen Wandabschnitte sind ja leider nicht vermaßt. Im Büro/Gästezimmer .. ein Einzelbett wohl ja, aber irgendwie Couch zum Doppelbett dürfte sehr eng werden.
Empfehlung .. Papier im passenden Maßstab mit den Möbelmassen ausschneiden und im entsprechenden Raum hin- und herschieben. Dann sieht man, ob es passt.
Im OG Badaufteilung ok .. allerdings finde ich den Waschtisch gleich am Eingang nicht so gut. Aber auch hier fehlen die Wandeinzelmaße, so dass man das wenig Vorschläge unterbreiten kann.
EG-Bad, kein Tanzsaal, aber das könnte gut passen, aber auch hier fehlen wieder Wandmaße für echte Kontrolle.
numerobis schrieb:Süden planunten ist, finde ich die Erweiterung schon passend.
oder die Grundfläche leicht erhöhen sollten (z.B. Haus um ca. 50-100cm Richtung Süden erweitern)
Die einzelnen Wandabschnitte sind ja leider nicht vermaßt. Im Büro/Gästezimmer .. ein Einzelbett wohl ja, aber irgendwie Couch zum Doppelbett dürfte sehr eng werden.
Empfehlung .. Papier im passenden Maßstab mit den Möbelmassen ausschneiden und im entsprechenden Raum hin- und herschieben. Dann sieht man, ob es passt.
Im OG Badaufteilung ok .. allerdings finde ich den Waschtisch gleich am Eingang nicht so gut. Aber auch hier fehlen die Wandeinzelmaße, so dass man das wenig Vorschläge unterbreiten kann.
EG-Bad, kein Tanzsaal, aber das könnte gut passen, aber auch hier fehlen wieder Wandmaße für echte Kontrolle.
N
numerobis01.03.24 11:04Nida35a schrieb:
Willkommen im Forum,
Ich habe keine professionelle Ahnung vom Grundriss entwerfen, aber deiner gefällt mir gut, da könnte ich ohne groß zu ändern einziehen.
Was mir zu denken gibt, ist der ebenerdige Eingang. Bei mir wäre immer eine Stufe ins Haus, dafür sehe ich zu viele Überschwemmungen in den NachrichtenGuter Punkt. Daran hatte ich gar nicht gedacht. Spreche ich an!N
numerobis01.03.24 11:13kbt09 schrieb:
Ich finde den Grundriss grundsätzlich auch gut. Zu klein finde ich den Küchenbereich, daher, wenn
Süden planunten ist, finde ich die Erweiterung schon passend.
Die einzelnen Wandabschnitte sind ja leider nicht vermaßt. Im Büro/Gästezimmer .. ein Einzelbett wohl ja, aber irgendwie Couch zum Doppelbett dürfte sehr eng werden.
Empfehlung .. Papier im passenden Maßstab mit den Möbelmassen ausschneiden und im entsprechenden Raum hin- und herschieben. Dann sieht man, ob es passt.
Im OG Badaufteilung ok .. allerdings finde ich den Waschtisch gleich am Eingang nicht so gut. Aber auch hier fehlen die Wandeinzelmaße, so dass man das wenig Vorschläge unterbreiten kann.
EG-Bad, kein Tanzsaal, aber das könnte gut passen, aber auch hier fehlen wieder Wandmaße für echte Kontrolle.Die fehlenden Maße sind in der Tat ärgerlich. Ich bin gerade dabei die PDF Datei um ein paar Informationen zu erweitern. Dann tausche ich die Bilder noch mal aus.
Der Plan ist genordet. Also ja: Süden ist unten.
Das Büro ist von links nach rechts ca. 3m breit und von oben nach unten ca. 2,75m tief (genauso wie die Küche). Daher meine Idee das ganze Haus noch etwas in die Richtung zu strecken.
Was stört dich an dem Waschtisch gleich am Eingang? Die Wand ist übrigens ca 1,40m lang.
Schon mal vielen Dank und Grüße!
Von den QM / Räumen her passen die beiden Bäder meiner Meinung nach. Wir haben im EG 3.5qm Gäste-WC mit Dusche und ich finde das sogar recht geräumig. Unser Familienbad für 4 Personen ist auch ca 8qm und auch völlig ausreichend. Dafür, wie man die einzelnen Elemente gut positioniert gibt es hier erfahrenere Leute 🙂
Ich würde versuchen, Räume unter einer Breite von ~3-3.50m zu vermeiden. Mein altes Büro war nur 2,30 breit, das war gar nicht schön. In eurem Grundriss könnte das vor allem Kind I und Büro / Küche treffen. Wir haben in der Küche 3,20 und da kann ein U auch schon eng werden...
Ich würde versuchen, Räume unter einer Breite von ~3-3.50m zu vermeiden. Mein altes Büro war nur 2,30 breit, das war gar nicht schön. In eurem Grundriss könnte das vor allem Kind I und Büro / Küche treffen. Wir haben in der Küche 3,20 und da kann ein U auch schon eng werden...
Ähnliche Themen