Bungalow Grundriss ~16x9.5m ( außen ) in 1000m² mit Altbestand

4,00 Stern(e) 11 Votes
Zuletzt aktualisiert 05.10.2025
Sie befinden sich auf der Seite 4 der Diskussion zum Thema: Bungalow Grundriss ~16x9.5m ( außen ) in 1000m² mit Altbestand
>> Zum 1. Beitrag <<

M

micric3

Y

ypg

Man könnte auch Flur mit WC/Garderobe tauschen und die Garderobe als Dreieck stehen lassen...

die Größe der Küche gerechtfertigt ist gegenüber des Wohnzimmers. Sollte nicht das Wohnzimmer die Freiheit/Geben. Aktuell ist es genauso gross wie in unserer Wohnung, und da sind 16m² schon relativ klein.
Nunja: zum einen wäre bei Deiner Variante der Wohnbereich ja nur die 3,10 Breite, der Rest ist Essbereich.Zum anderen: wie sieht denn Euer Alltag aus? ...Im Haus?!
Wollt Ihr die Chillcouch zentral, weil ihr nach Feierabend kaum noch aktiv seid? Oder spielt sich der abendliche Alltag bewegend, aktiv ab, wo das gemeinsame Essen und reden am Tisch die Familie zusammenhält.
Die Tendenz der Familien geht ja in Richtung aktiver Abend am großen Tisch, wo gemeinsam Spiele gespielt werden oder gebastelt. Rückzugsort kann dann ruhig etwas kleiner ausfallen - mehr als Couch und TV braucht man nicht.

Bei Deiner Variante wird der TV das ganze Haus beschallen
 
M

micric3

guten morgen,

es geht mir in erster Linie auch nicht um die brutto Fläche, sondern um den "gelebten Freiraum"
ich möchgte mich in meinem Wohnzimmer nicht fühlen wie in einer stadtwohnung, daher darf es ruhig offen sein, aber nich unbedingt zur Küche.

die beschallung durch den TV hört man wenn, nur in der Diele und ggf. in der Küche. Der "private" Wohnbereich ist doch getrennt, von daher sehe ich kein Problem.
 
M

micric3

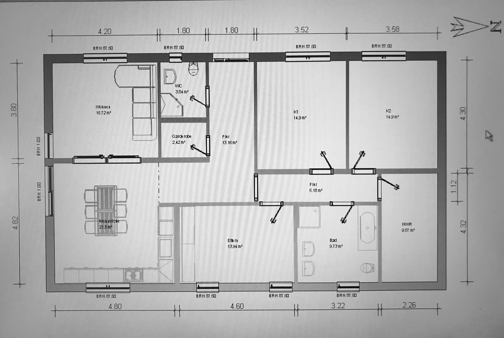
Ich hab die Tür doch mal in den Flur geschoben. Bei 180 Breite ist das in Ordnung. Anhang anzeigen 35813
Hatte mich soeben gewundert, warum die Nettofläche kleiner ausfällt, liegt wohl an den dickeren Außenmauerwerk. Was hast du da als Maß genommen?

Hast du eine Bemaßung des Flurs? Ich habe mal in unserer Wohnung nachgemessen: 1,20m ist schon relativ schmal aber vermutlich ausreichend, wenn es nur Laufweg sein soll.

Ggf. sollte ich mich mit der Idee anfreunden, die Küche und Wohnzimmer teilweise offen zu gestalten, um eine weitläufigeren Blick zu haben.

Was mir nicht gefällt, sind die spärlichen Fenster an der Südseite, hier wünsche ich mir mehr "Glas"

Was hältst du davon, dass Bad und Garderobe nach Osten zwischen Küche und Schlafzimmer? Damit könnte man die Stube vergrößern? Das Badezimmer mit ~10m² ist vielleicht überdimensioniert und man könnte da etwas und von der Küche wegnehmen.

Viel Glück
Michael
 
Zuletzt bearbeitet:
Y

ypg

Hast du eine Bemaßung des Flurs?
Da steht 1,80
1,20m ist schon relativ schmal aber vermutlich ausreichend, wenn es nur Laufweg sein soll.
Man will sich dort auch bewegen. Eine Familie kommt oft gemeinsam nach Haus: sollen die sich durch den Flur schieben, bis sie im WZ stehen und sich dann die Matschschuhe ausziehen können?
den dickeren Außenmauerwerk. Was hast du da als Maß genommen?
Ich glaube, ich hab 34 genommen. Ich wusste, dass Town & Country nicht gerade dick baut ...
Damit könnte man die Stube vergrößern?
Warum ?
Das Badezimmer mit ~10m² ist vielleicht überdimensioniert und man könnte da etwas und von der Küche wegnehmen.
Ich glaube, Du versuchst jetzt krampfhaft, überall von guten Größen etwas wegzunehmen, damit man in einem Raum, wo man eher inaktiv sich auf einem möbel befindet, also kaum Bewegungsfläche nötig ist, mehr bekommt. Du orientierst Dich an Zahlen.
Das Bad zb wollen 4 Personen benutzen, das wird beim Feintuning noch spannend, wenn Du eine Begehbare Dusche und eine Schamwand und einen Heizkörper haben möchtest.
Was ist mit der Küche? Wird es eine Frau im Haus geben? Hat sie Inselwünsche? Hat sie viel Küchengeräte? Wo steht Eurer Obst? Messerblock?
Und wenn man mittig einen Esstisch hat, dann muss man den auch ständig bezwingen.

Dein nächster Entwurf sollte auf jeden Fall Möbel mit drin haben. Ohne kannst Du nicht bewerten.
 
Zuletzt aktualisiert 05.10.2025
Im Forum Grundrissplanung / Grundstücksplanung gibt es 2510 Themen mit insgesamt 87166 Beiträgen


Ähnliche Themen zu Bungalow Grundriss ~16x9.5m ( außen ) in 1000m² mit Altbestand
Nr.ErgebnisBeiträge
1Optimierung Winkelbungalow 108 von Town & Country 21
2Bungalow 128 Town & Country nach Musterhaus 60
3Town & Country Raumwunder 100 mit wenig Änderungen 20
4Town & Country Flair 110 - Extras oder nicht? 564
5Wohnzimmer Grundrissplanungs-Ideen? - Seite 239
6Fenster / Türen / Garderobe 13
7Einteilung Grundriss Allraum Küche Wohnen Essen - Seite 358
8Umbau bestehende EG Wohnung - zus. Büro 49
9Wohnbereich Grundriss einplanen - Seite 462
10MHW Haas Wohnbau GmbH, Town & Country 45
11Town & Country Bocholt Erfahrungen von Forum 13
12Town & Country Haus in Heilbronn 11
13Town & Country, IBG-Haus, Die Baupartner 24
14Franchisenehmer von Town & Country Karlsruhe Erfahrungen? 11
15Town & Country in WDR-Fernsehen Beitrag 15
16Erfahrungen mit Town & Country in Köln 11
17Erfahrung mit der Matthias Wand Massivhaus GmbH (Town & Country)? 96
18Town & Country Görz GmbH, Rosenheim Wer kennt diesen Bauunternehmer? 15
19Town & Country Franchise Partner Wolfgang Rieche 26
20Town & Country Erfahrungen, Erfahrungsberichte 36

Oben